Trapezului, 1 Decembrie 1918, Prevederii, apropiere metrou
120.000 €
Trapezului, 1 Decembrie 1918, Prevederii, apropiere metrou
120.000 €
Caracteristici
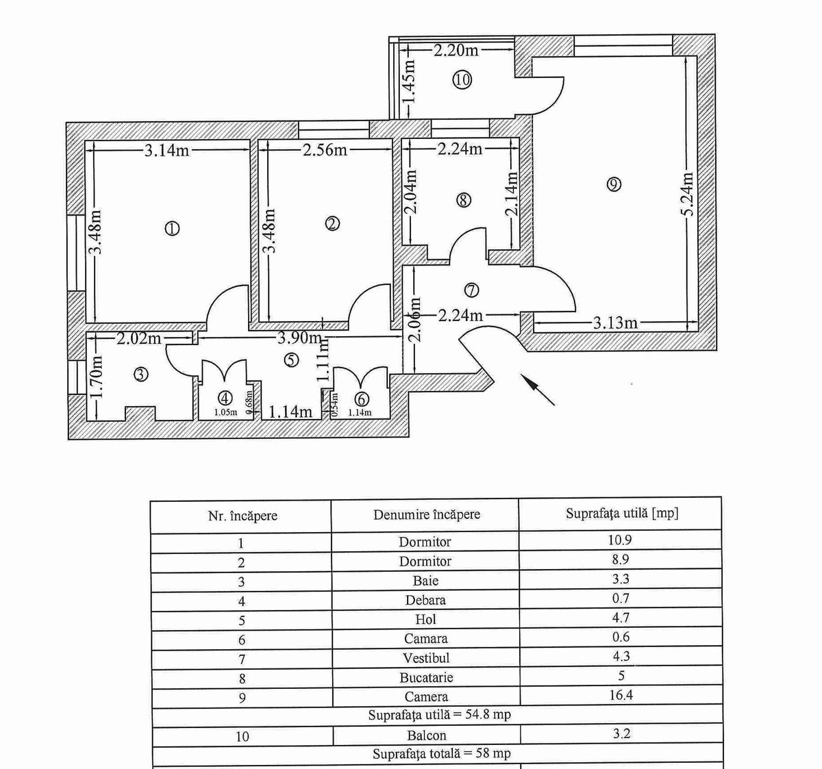
Suprafata 58 mp
An 1974
Decomandat
Etaj 2 din 8
Optiuni interior: Balcon Debara Inst. electrice noi Inst. sanitare noi Renovat recent Termopan Usa metalica
Optiuni exterior: Lift Reabilitat termic Structura beton M 2 min.
Optiuni interior: Balcon Debara Inst. electrice noi Inst. sanitare noi Renovat recent Termopan Usa metalica
Optiuni exterior: Lift Reabilitat termic Structura beton M 2 min.
Descriere
Va prezentam spre vanzare un apartament de 3 camere, situat pe Strada Prevederii, la doar 3 minute de statia de metrou 1 Decembrie 1918, intr-un imobil reabilitat termic.
Locuinta este complet renovata si beneficiaza de instalatii electrice si sanitare noi, tamplarie termopan, gresie, faianta, parchet, usa metalica si usi interioare inlocuite integral. Baia este prevazuta cu geam pentru aerisire naturala si dispune de boiler electric montat in paralel cu sistemul de termoficare, pentru un plus de confort in situatii neprevazute.
Documentatia este completa si actualizata.
Comision agentie: 2%.
Va asteptam la vizionare.
Locuinta este complet renovata si beneficiaza de instalatii electrice si sanitare noi, tamplarie termopan, gresie, faianta, parchet, usa metalica si usi interioare inlocuite integral. Baia este prevazuta cu geam pentru aerisire naturala si dispune de boiler electric montat in paralel cu sistemul de termoficare, pentru un plus de confort in situatii neprevazute.
Documentatia este completa si actualizata.
Comision agentie: 2%.
Va asteptam la vizionare.
18 vizualizari
Bucuresti, Sector 3, Publicat azi; 15:15
Actualizat azi; 15:15
Actualizat azi; 15:15
Statii metrou
| 1 Decembrie 1918 (M3) | 2 min | |
| Nicolae Grigorescu | 19 min | |
| Nicolae Teclu | 21 min |
Statii STB
| 1 Decembrie 1918 | 3 min | |
| Bd. 1 Decembrie 1918 | 4 min | |
| Ozana | 4 min | |
| Oficiul Poștal 72 | 12 min |
Evolutia preturilor imobiliare in Titan-Dristor
se incarca..
