Pipera apartament 3 camere cu gradina proprie, mutare imediata, comision 0%
230.000 €
Pipera apartament 3 camere cu gradina proprie, mutare imediata, comision 0%
230.000 €
Caracteristici
Suprafata 120 mp
An 2024
Semidecomandat
Etaj parter din 3
Optiuni exterior: Interfon Lift
Optiuni exterior: Interfon Lift
Descriere
Descopera confortul unui stil de viata modern in nordul Bucurestiului, intr-un apartament deosebit situat in ansamblul rezidential Pipera Loft 1, pe strada Mircea cel Batran nr. 2.
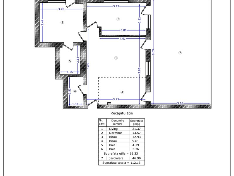
Proprietatea este amplasata la parter si beneficiaza de o compartimentare eficienta, ideala pentru o familie sau pentru investitie. Suprafata utila interioara este de 65.23 mp, la care se adauga o terasa generoasa cu gradina proprie de 46.90 mp, rezultand o suprafata totala de 112.13 mp.
Apartamentul este compus din living luminos de 21.37 mp, doua dormitoare confortabile de 13.57 mp si 12.93 mp, un al treilea dormitor/birou de 9.61 mp, doua bai moderne de 4.39 mp si 3.36 mp, precum si acces direct catre terasa cu gradina, perfecta pentru relaxare sau timp petrecut in familie.
Locuinta se preda finisata la cheie, cu materiale de calitate, fiind pregatita pentru mutare imediata. Toate actele sunt finalizate, ceea ce permite o tranzactie rapida.
Pipera Loft 1 este un proiect rezidential boutique, cu un numar redus de apartamente, conceput pentru a oferi intimitate, confort si acces facil catre principalele puncte de interes din zona de nord a capitalei.
Zona Pipera este una dintre cele mai dinamice si cautate zone din Bucuresti, oferind acces rapid catre centre de business importante, precum Dimitrie Pompeiu, dar si catre scoli internationale, gradinite, restaurante, cafenele si centre comerciale. In apropiere se regasesc Promenada Mall, Pipera Plaza, precum si multiple supermarketuri si facilitati pentru viata de zi cu zi. Accesul catre mijloacele de transport si principalele artere rutiere este facil, asigurand conexiuni rapide cu restul orasului.
Acesta este ultimul apartament disponibil in proiectul Pipera Loft 1.
Achizitia se face direct de la dezvoltator, fara comision, fara costuri ascunse.
Pentru cei interesati de investitii viitoare, dezvoltatorul are in desfasurare si proiectul Pipera Loft 2, situat pe Bulevardul Pipera nr. 42, cu termen de finalizare estimat pentru sfarsitul anului 2026. Apartamentele disponibile pot fi consultate pe site-ul oficial: piperaloft.ro.
Pentru mai multe detalii sau programarea unei vizionari, va stam la dispozitie.
Proprietatea este amplasata la parter si beneficiaza de o compartimentare eficienta, ideala pentru o familie sau pentru investitie. Suprafata utila interioara este de 65.23 mp, la care se adauga o terasa generoasa cu gradina proprie de 46.90 mp, rezultand o suprafata totala de 112.13 mp.
Apartamentul este compus din living luminos de 21.37 mp, doua dormitoare confortabile de 13.57 mp si 12.93 mp, un al treilea dormitor/birou de 9.61 mp, doua bai moderne de 4.39 mp si 3.36 mp, precum si acces direct catre terasa cu gradina, perfecta pentru relaxare sau timp petrecut in familie.
Locuinta se preda finisata la cheie, cu materiale de calitate, fiind pregatita pentru mutare imediata. Toate actele sunt finalizate, ceea ce permite o tranzactie rapida.
Pipera Loft 1 este un proiect rezidential boutique, cu un numar redus de apartamente, conceput pentru a oferi intimitate, confort si acces facil catre principalele puncte de interes din zona de nord a capitalei.
Zona Pipera este una dintre cele mai dinamice si cautate zone din Bucuresti, oferind acces rapid catre centre de business importante, precum Dimitrie Pompeiu, dar si catre scoli internationale, gradinite, restaurante, cafenele si centre comerciale. In apropiere se regasesc Promenada Mall, Pipera Plaza, precum si multiple supermarketuri si facilitati pentru viata de zi cu zi. Accesul catre mijloacele de transport si principalele artere rutiere este facil, asigurand conexiuni rapide cu restul orasului.
Acesta este ultimul apartament disponibil in proiectul Pipera Loft 1.
Achizitia se face direct de la dezvoltator, fara comision, fara costuri ascunse.
Pentru cei interesati de investitii viitoare, dezvoltatorul are in desfasurare si proiectul Pipera Loft 2, situat pe Bulevardul Pipera nr. 42, cu termen de finalizare estimat pentru sfarsitul anului 2026. Apartamentele disponibile pot fi consultate pe site-ul oficial: piperaloft.ro.
Pentru mai multe detalii sau programarea unei vizionari, va stam la dispozitie.
66 vizualizari
Bucuresti, Sector 1, Publicat ieri; 14:18
Actualizat ieri; 14:18
Actualizat ieri; 14:18
Statii metrou
Statii STB
| 449 , 450 , 459 , 473 , 488 | BRD | 1 min |
| 449 , 450 , 459 , 473 , 488 | Biserica Adormirea Maicii Domnului | 5 min |
| 449 , 450 , 459 , 488 | Drumul Bisericii | 7 min |
| 473 | Chivu Dumitru | 7 min |
| Frăsari | 8 min |
