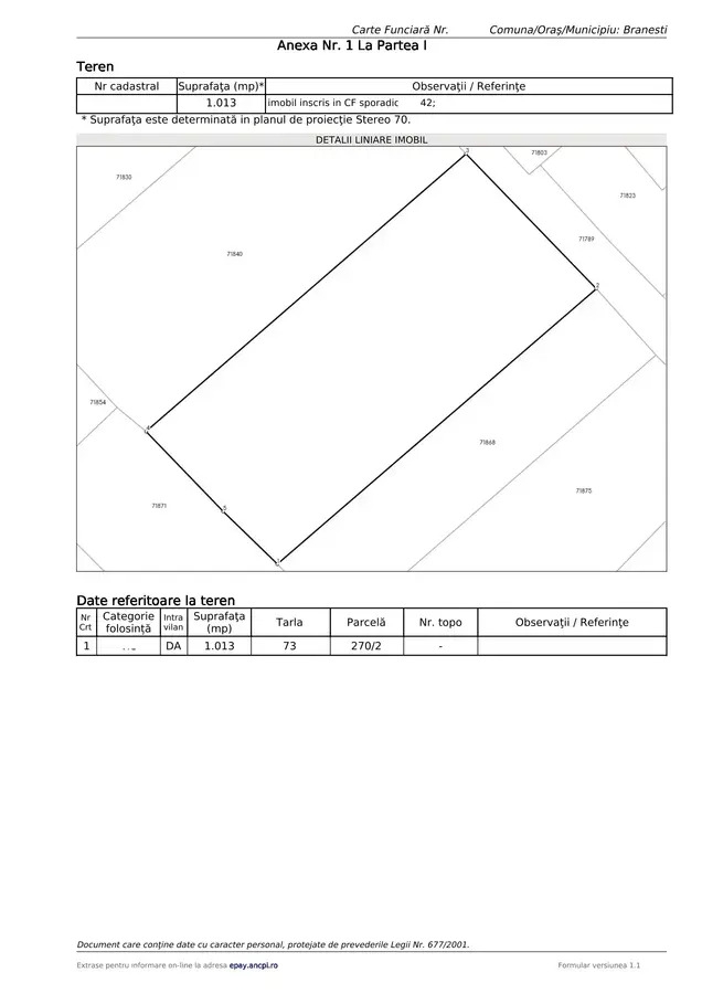
Pasarea, Branesti, teren intravilan, 1.013 mp
- Suprafata 1.013 mp
- Intravilan
- Deschidere 22 ml
Calculeaza distanta
Descriere anunt
Va oferim spre vanzare un teren intravilan de 1013 mp, situat in localitatea Pasarea, Branesti, intr-o zona linistita, ideala pentru constructia unei locuinte sau a unei case de vacanta.
Caracteristici:
- Utilitati disponibile la proprietate: gaz si curent electric
- Acces facil
- Vecinatati naturale: lac si padure, perfect pentru iubitorii de natura si relaxare
- Facilitati in apropiere: gradinita, scoala, colegiu, magazine, piata
- Zona linistita, fara circulatie auto, ideala pentru familii si pentru cei care cauta un refugiu departe de agitatia urbana
Un loc deosebit, unde natura si confortul se imbina perfect!
Contactati-ne pentru detalii si vizionare!
VAUNT ID: 91133
Acces mijloace transport
| Statii STB | Timp |
|---|---|
|
Strada Brașov
403
|
9 min. |
|
Grădinița Pasărea
403
|
10 min. |


Vezi galeria
403
9 min.