Obor | Ferdinand | S P 3e 4Er | 12 apartamente | B5248
- Suprafata utila 1.135 mp
- Sp. comercial
Piața Iancului ...
4 min.
Calculeaza distanta
Descriere anunt
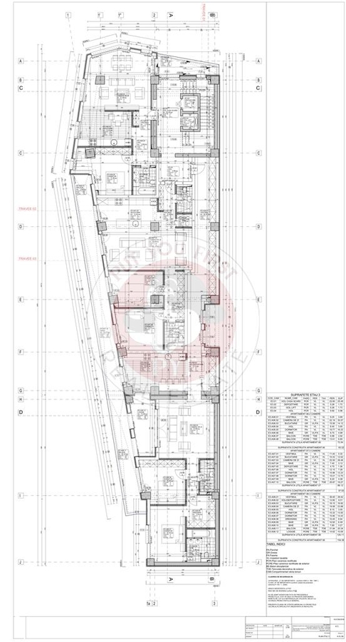
Pyf001B5248 O casa reprezinta oricare patru pereti care incadreaza persoana potrivita, dar cum ar fi ca si locuinta ta sa fie exact cea potrivita pentru nevoile tale? Astfel, arunca o privire in portofoliul PYF REAL ESTATE ( www.pyfrealestate.ro) pentru a nu rata sansa de a-ti gasi linistea intr-un nou camin. PYF REAL ESTATE va propune, spre achizitie, in vederea realizarii unei investitii profitabile, un imobil situat in apropierea soselei Mihai Bravu si a liceului Iulia Hasdeu. Imobilul, a carui constructie a inceput in anul 2020, este realizat in proportie de 70% din structura ( pilotii, subsolul si o parte din parter si etaj 1 fiind turnate). Conform autorizatiei de constructie aici se pot realiza un numar de 8 apartamente de 3 camere si 2 de 2 camere intre etajele 1 si 4 iar la parter pot fi realizate spatii de birouri si/sau comerciale. Imobilul are un regim de inaltime de S P 3Et 4Er iar parcarea este gandita pe sistem Klaus generand 15 locuri la interior. Suplimentar se mai pot realiza 3 locuri de parcare si in exteriorul cladirii. Avand o amprenta de 375mp si o suprafata utila de 2.000mp imobilul are o suprafata desfasurata totala de 2.223mp, suprafata la care se adauga balcoanele si lojiile in suprafata de 600mp.. Parcarea este realizata, conform planurilor, atat la subsolul imobilului cat si la parterul acestuia, parter unde vom gasi si spatiile tehnice aferente imobilui. De asemenea blocul este prevazut si cu gol de lift.
Zona in care se afla acest imobil este o zona de interes atat pentru rezidenti avand in vedere ca se afla la numai 100 de metri de liceul Iulia Hasdeu dar si la numai 500 de metri de piata Obor dar si pentru office deoarece, la numai 300metri gasim statia de metrou Iancului. In acest fel imobilul poate fi finalizat cu destinatie rezidentiala urmand a valorifica apartamentele rezultate dar si cu destinatie office urmand a inchiria aceste spatii pe termen lung ceea ce va genera un venit constant
Curiozitatea va este starnita? Echipa PYF REAL ESTATE va invita la vizionare, pentru a vedea cu ochii dumnevoastra toate aceste avantaje, avantaje dobandite prin cumpararea acestui imobil la pretul de 850.000 Euro, pret la care se adauga TVA in regim de taxare inversa. In situatia in care sunteti persoana fizica neplatitoare de TVA atunci acesta se adauga la pret. Doriti mai multe informatii sau aceasta oferta nu este ceea ce cautati? Nici o problema! Echipa PYF REAL ESTATE este bucuroasa sa va ajute sa alegeti cea mai buna casa pentru familia dvs si de aceea va invitam sa ne contactati pentru ca, impreuna, sa gasim cea mai buna solutie locativa pentru dumneavoastra. | ID intern: Pyf001B5248
Put You First nu este doar un motto, este misiunea noastra! Pyf Real Estate percepe un comision de 50% din contravaloarea unei chirii lunare pentru intermedierea unei tranzactii de inchiriere sau 2% din valoarea de achizitie a unui bun imobil pentru intermedierea unei tranzactii de vanzare-cumparare. Din cauza numarului mare de oferte si a fluctuatiei pietei imobiliare informatiile din oferta pot suferi modificari atat in sens apreciativ, cat si in sens depreciativ, de asemenea, este posibil sa nu mai fie de actualitate la momentul prezentarii. Pentru clarificarea acestor aspecte va rugam solicitati actualizarea ofertei/ ofertelor dorite! De asemenea Pyf Real Estate este operator de date cu caracter personal, in conformitate cu reglementarile in vigoare. Pentru vizionarea unei ofere din portofoliul nostru va trebui semnat un contract de colaborare iar agentii nostri va vor cere un act de identitate pentru a completa acest contract. Neprezentarea acestui act poate conduce la neprogramarea sau anularea vizionarii ofertei dorite.D
Acces mijloace transport
| Statii metrou | Timp | |
|---|---|---|
![]() |
Piața Iancului | 4 min. |
![]() |
Obor | 11 min. |
| Statii STB | Timp |
|---|---|
|
Șoseaua Mihai Bravu
69
85
,N108
|
2 min. |
|
Bd. Ferdinand
1
46
|
2 min. |
|
Oborul Nou
69
85
,N108
|
3 min. |
|
Șoseaua Mihai Bravu 88
330
,335
,N108
|
4 min. |
|
Piața Iancului
135
,311
,330
,335
,655
|
5 min. |
|
Șoseaua Mihai Bravu 33
101
,330
,335
,N108
|
6 min. |
|
Avrig
69
85
,101
,N108
|
6 min. |
|
Mătăsari
|
7 min. |
|
Horei
|
7 min. |
|
Șoseaua Pantelimon
69
85
,101
,N108
|
8 min. |


Vezi galeria
69
85
,N108
1