Snagov lac
- Suprafata utila 243 mp
- Teren 1.520 mp
- An 1991
- 6 camere
- La cheie
Calculeaza distanta
Descriere anunt
Vanzare vila individuala, cu piscina exterioara ( 96 mp ), deosebita, situata in Snagov, amplasata intr-un cadru de poveste pe malul lacului Snagov, cu ponton propriu.
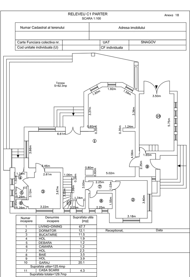
Vila are un regim de inaltime S+P+1E, a fost construita in anul 1991, pe un teren de 1520 mp, cu o suprafata utila de 243 mp ( 281 mp utili totali ), amprenta la sol- 170 mp, ideala pentru o familie ce isi doreste un camin primitor, aer curat si o priveliste de poveste.
Vila este strcturata astfel:
Subsol: camera tehnica, sauna, hol
Parter: living+ dining de 68 mp, 1 dormitor, bucatarie, debarale, 3 holuri, 1 baie, garaj 20 mp,
Etaj: 3 domitoare, 2 bai, debara, 1 balcon, 1 terasa.
Beneficiaza de o gradina amenajata si de o piscina exterioara, avand priveslistea minunata catre lacul Snagov.
Pret de vanzare- 999.000 Euro
Caracteristici, dotari
Obiective interes
| 1. | Gradinita CLAS - Snagov | 0771351537; 0732822114 | Intr. Tuberozelor, nr. 6, Snagov, judetul Ilfov |
| 2. | Oaki - Gradinita Ciofliceni, Snagov | 0722238682 | Str. Matei Corvin, nr.15 A, Sat Ciofliceni, com. Snagov, judetul Ilfov |
| vezi mai multe | |||


Vezi galeria