Apusului, Lacul Zanoaga nr. 33, 61 mp, 4 camere, vedere mixta
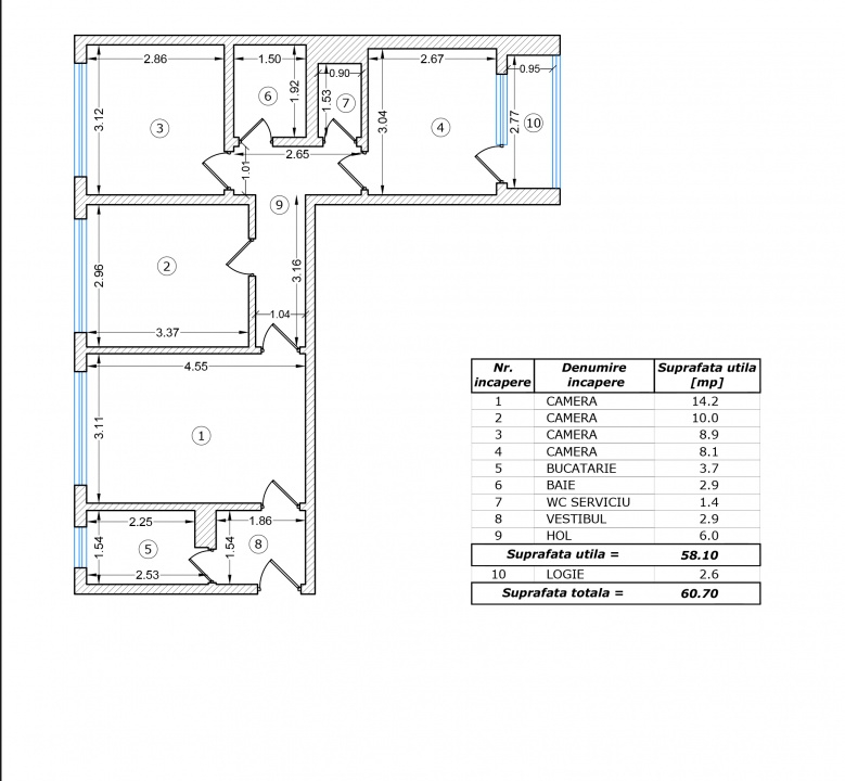
- Suprafata 60 mp
- An 1973
- Semidecomandat
- Etaj 10 din 10
Gorjului ...
19 min.
Calculeaza distanta
Descriere anunt
Avem placerea sa va prezentam o oportunitate rara pentru cei care cauta spatiu, lumina si libertatea de a-si crea locuinta exact asa cum isi doresc – un apartament de 4 camere situat la etajul 10, pe strada Lacul Zanoaga nr. 33, intr-o zona linistita si bine conectata a cartierului Militari.
Pozitionarea la etajul 10 ofera unul dintre cele mai apreciate avantaje de catre cunoscatori: panorama deschisa, lumina naturala pe tot parcursul zilei, intimitate crescuta fara vecini deasupra si un nivel redus de zgomot, pentru un confort autentic acasa.
Imobil construit in anul 1973, apartamentul beneficiaza de o suprafata utila totala de 60,7 mp si o compartimentare semidecomandata, ideala pentru familii sau pentru cei care doresc delimitarea eficienta a spatiilor.
Intrarea se face printr-un hol de aproximativ 3 mp, cu acces catre bucatarie si zona de zi; livingul continua armonios spatiul, iar un al doilea hol generos de 6 mp conecteaza cele trei dormitoare, baia principala cu cada, grupul sanitar de serviciu si dormitorul final cu balcon.
Toate ferestrele au fost recent inlocuite cu tamplarie de calitate Rehau, un avantaj important pentru eficienta termica si confort, in timp ce interiorul ofera libertatea unei reamenajari complete, astfel incat sa va personalizati locuinta dupa propriul stil si standard.
Vederea este mixta, zona oferind liniste, siguranta si multe spatii verzi in proximitate.
Acces facil catre transportul public: aproximativ 15 minute de mers pe jos pana la statiile de metrou Gorjului si Pacii, iar la doar 2 minute regasim liniile STB 178 si 106, pentru conexiuni rapide in oras.
Zona este ideala pentru familii, cu acces rapid catre unitati de invatamant precum Scoala Gimnaziala 198 Regina Maria, Scoala Gimnaziala 174 Constantin Brancusi, Scoala Gimnaziala 160 Sfanta Treime, gradinita Dumbrava Minunilor si cresa Harap Alb.
In proximitate se afla Policlinica Apusului, centre comerciale- Piata Apusului si toate facilitatile necesare unui stil de viata confortabil.
O locuinta cu vedere, liniste si potential real de transformare intr-un camin modern, adaptat perfect nevoilor dumneavoastra.
Va invitam la vizionare pentru a descoperi personal avantajele acestui apartament si pentru a-i vedea adevaratul potential de acasa ideal,
Acces mijloace transport
| Statii metrou | Timp | |
|---|---|---|
![]() |
Gorjului | 19 min. |
Obiective interes
| 1. | Planeta Copiilor - Gradinita Bucuresti | 0724212887 | Str. Gabriela Szabo, Nr. 3 - 11, Sector 6, Bucuresti |
| 2. | Harap Alb - Cresa sector 6 | 0376203298 | Str. Estacadei, Nr. 13 A, Sector 6 |
| 3. | Dumbrava Minunilor - Gradinita sector 6 | 0217962807 | Str. Apusului, nr. 71-73 , sector 6 |
| 4. | Casuta Strumfilor - Gradinita Bucuresti | 0733194605 | Intr. Jarului, Nr. 3, Sector 6 |
| 5. | HappyKidz - Before & Afterschool sector 6 | 0726348591 | Str. Albitei, Nr. 2K, Sector 6 |
| 6. | Lilo Club - Cresa si gradinita Ilfov | 0765149367; 0747068562 | Intr. Nuferilor, nr. 1, Rosu, Chiajna, judetul Ilfov |
| 7. | International Kids Academy - Scoala Primara & Gradinita Rosu | 0723027226 | Str. Capitan Ion Ionescu, nr. 2, Rosu, judetul Ilfov |
| 8. | Kids Learning Center - centru cultural-educativ Ilfov | 0762669907; 0765440404 | Drumul Bacriului, nr. 101, Rosu - Chiajna, judetul Ilfov |
| 9. | Alba ca Zapada, Gradinita, After School sector 6 | 0723737939; 0773967033; 0214330220 | Str. Cernisoara, Nr. 86A, Sector 6, Bucuresti |
| 10. | Guguta - Cresa, Gradinita Bucuresti | 0769256924 | Drumul Manastirea Sihastria, Nr. 11A, sector 6, Bucuresti |
| 11. | Emerald - Gradinita Bucuresti | 0722493479 | Drumul Manastirea Sihastria, Nr. 13C, Sector 6, Bucuresti |
| 12. | Dianva Kids - After School, Bucuresti | 0721959335 | Str. Orsova, Nr. 129, Sector 6 |
| 13. | Gradinita nr. 195 Prichindel sector 6 | 0214304000 | Bd. Iuliu Maniu, nr. 73-75, sector 6 |
| 14. | David Mihai - Gradinita, Ilfov | 0767817041; 0766305131; 0765703632; 0784203520 | Drumul Bacriului, nr. 42 B, Rosu, com. Chiajna, judetul Ilfov |
| 15. | Paradisul Piticilor - Gradinita sector 6 | 0214341214; 0214341213 | Str. Moinesti, nr. 9, sector 6 |
| 16. | LifeKids Club Afterschool | 0774458673 | Str. Crisul Repede, nr. 28, sector 6 |
| 17. | Castelul Voinicilor - Cresa, Gradinita After School Militari sector 6 | 0760991977 | Str. Rosiori de Vede, nr. 12A, Sector 6 |
| 18. | Gradinita nr. 250 Sector 6 | 0316201847 | Str. Dealul Tugulea, nr. 35, sector 6 |
| 19. | Waldorf Eruditio - Gradinita sector 6 | 0723346791 | Str. Orsova, nr. 77, sector 6 |
| 20. | Albinutele - Gradinita cu program prelungit sector 6 | 0311010031 | Str. Centurii, nr. 4, sector 6 |
| 21. | Sfantul Stelian - Gradinita, afterschool Ilfov | 0734087549; 0737012035 | Str. Marasesti, Nr. 2, Sat Rosu, Com. Chiajna |
| 22. | Elly\'s - Before & After School sector 6 | 0763188937 | Str. Cetatea de Balta, nr. 155, Sector 6 |
| 23. | Lumea Piticilor - Gradinita, Ilfov | 0723660168 | Str. Crinului, nr. 37A, Chiajna, judetul Ilfov |
| 24. | Centrul Multifunctional Romania Kids - Gradinita & After School Bucuresti | 0217770795; 0769060790 | Str. Rasaritului, Nr. 59, Sector 6, Bucuresti |
| 25. | Magic World Kindergarten - Gradinita sector 6 | 0720777221 | Drumul Bacriului, nr. 37B, sector 6 |
| 26. | Ada - Gradinita Bucuresti | 0723595916 | Str. Gheorghe Spacu, nr. 21, sector 6, Bucuresti |
| 27. | Scooby and Friends, Gradinita & After School - Bucuresti | 0214443344; 0766661001 | Str. Corcodusului, Nr. 9D, Sector 6, Bucuresti |
| 28. | Gradinita nr. 197 Zana Florilor sector 6 | 0214302179 | Str. Cetatuia, nr. 10, sector 6 |
| 29. | Priki - Gradinita sector 6 | 0753936611; 0742292143 | Str. Sergent Apostol Constantin, nr. 14, sector 6 |
| 30. | Aventura Kids Club After School Chiajna | 0740788017; 0741130233 | Str. Acvilei, Nr.10, Rosu, Chiajna, judetul Ilfov |
| 31. | Degetica - Gradinita si After School, Bucuresti | 0720222200; 0731313131; 0731313101 | Str. Bolidului, Nr. 4-6, Sector 6, Bucuresti |
| 32. | Gradinita Nr. 246 sector 6 | 0316208173 | Str. Fabricii, nr. 20, sector 6 |
| 33. | Kids Joy Land - Gradinita si after school, Ilfov | 0721216194 | Str. 1 Decembrie 1918, Nr. 181 A - Sediul 1, Comuna Chiajna, judetul Ilfov |
| 34. | Gradinita Nr. 229 sector 6 | 0214443400; 0214443301 | Aleea Dealul Macinului, nr. 5, sector 6 |
| 35. | Neghinita - Centru de zi sector 6 | 0376203301; 0376203302 | Aleea Craiesti, Nr. 1, Sector 6 |
| 36. | Gradinita Nr. 210 sector 6 | 0217787215; 0771131259 | Aleea Arinis, nr. 1bis, sector 6 |
| 37. | Centrul Educational Babylove - After School Bucuresti | 0722542715 | Aleea Muza Adormita, Nr. 12, Sector 6 |
| 38. | Happy Kiddo - Gradinita, Cresa si After School | 0763033010 | Str. Padurii, Nr. 5, Sat Dudu, Com. Chiajna, judetul Ilfov |
| 39. | Creative Kidz - Afterschool Rosu | 0735246217 | Str. Gospodari, Nr. 46, Sat Rosu, Com. Chiajna, judetul Ilfov |
| 40. | Cambridge Success - Gradinita Bucuresti | 0764474152 | Str. Rezervelor, Nr. 24C, Sector 6 |
| 41. | Kids Club Militari, Gradinita & After School - Bucuresti | 0314362520; 0728200900 | Str. Rezervelor, Nr. 91, Sector 6, Bucuresti |
| 42. | Gradinita Kids Club Militari Bucuresti | 0314362520; 0728200900 | Str. Rezervelor, Nr. 91, Sector 6, Balotesti |
| 43. | Gradinita nr. 94 sector 6 | 0214133574; 0724 531 595 | Str. Targu Neamt, Nr. 4, Sector 6 |
| 44. | Adeland - After school sector 6 | 0724531595 | Str. Targu Neamt, nr. 4, sector 6 |
| 45. | Gradinita nr. 208 sector 6 | 0217783025; 0741716 818 | Str. Valea Oltului, nr. 14, sector 6 |
| 46. | Montessori British School - Gradinita, Ilfov | 0756100116 | Str. Rasaritului, nr. 3, Chiajna, judetul Ilfov |
| 47. | Gradinita nr. 272 sector 6 | 0311070199; 0214133878 | Bd. Timisoara, nr. 39, sector 6 |
| 48. | Degetica Royal Palace - Gradinita Chiajna | 0731313131; 0733003300; 0769904269 | Str. Rezervelor, nr. 42B, Chiajna, judetul Ilfov |
| 49. | Gradinita Nr. 209 sector 6 | 0214401115; 0214134731 | Str. Pascani, nr. 15 bis, sector 6 |
| 50. | Gradinita nr. 57 Hillary Clinton sector 6 | 0214133928 | Aleea Pravat, nr. 16, sector 6 |
| 51. | Mickey\'s House - Before & After School sector 6 | 0785539018 | Str. Pietrele Doamnei, nr. 18, Sector 6 |
| 52. | Art & Play Kindergarten - Cresa, Gradinita Bucuresti | 0760670599; 0760670980 | Drumul Valea Danului, Nr. 22, Sector 6, Bucuresti |
| 53. | Clubul Buburuzelor, Gradinita sector 6 | 0769626385; 0766634420 | Drumul Valea Danului, Nr. 22, sector 6 |
| 54. | Rosa Zangara - Gradinita sector 6 | 0760505738 | Drumul Taberei, nr. 38A, sector 6 |
| 55. | Fulg de Nea - Gradinita sector 6 | 0212203132 | Sos. Ciurel, Nr. 9-11, sector 6 |
| 56. | Gradinita nr. 274 sector 6 | 0213163345 | Bd. Iuliu Maniu, nr. 11D, sector 6 |
| 57. | Nicholas Kindergarten - Gradinita Bucuresti | 0217786915; 0737504977; 0724809291 | Drumul Valea Cricovului, Nr. 41-47, Sector 6, Bucuresti |
| 58. | Gradinita Nr. 218 sector 6 | 0314344484 | Aleea Callatis, nr. 5, sector 6 |
| 59. | Roro - Gradinita sector 6 | 0731339933; 0735550500 | Drumul Valea Argovei, nr. 3-9, Sector 6 |
| 60. | Clubul Micilor Ghinde - Centru de joaca educativa Ilfov | 0720050205 | Str. Ion Luca Caragiale, nr. 43A, Dudu, judetul Ilfov |
| 61. | Casa Montessori Gradinita - Bucuresti | 0726327159 | Str. Valea Oltului, nr. 31-35, sector 6, Bucuresti |
| 62. | Gradinita Nr. 230 sector 6 | 0217782808 | Aleea Potaisa, Nr. 3, sector 6 |
| 63. | Joy - After-school Bucuresti | 0766055708 | Strada Valea Furcii, Nr. 56, sector 6 |
| 64. | Gradinita Nr. 87 Spiridusii sector 6 | 0214132440 | Str. Valea Calugareasca, Nr. 6, Sector 6 |
| 65. | Gradinita nr. 273 sector 6 | 0214133842; 0787731520 | Str. Valea lui Mihai, nr. 1, sector 6 |
| 66. | Cresa Pinochio (Cresa Drumul Taberei) sector 6 | 0376203313; 0376203312 | Aleea Compozitorilor, nr. 20, sector 6 |
| 67. | Genius - Afterschool Bucuresti | 0745045180 | Intrarea Craiovei, Nr. 21, Sector 6 |
| 68. | Gradinita Nr. 111 sector 6 | 0214135161 | Str. Sibiu, Nr. 8, Sector 6 |
| 69. | Hands-On - Centru educational Bucuresti | 0725977815 | Bd. Iuliu Maniu, nr. 7, Cotroceni Business Center, Corp U, parter, sector 6 |
| 70. | Smart & Fun After School Crangasi | 0765518746; 0766891844 | Intr. Sipetului, Nr. 3, Sector 6 |
| 71. | Good Family - Gradinita Bucuresti | 0748224225 | Str. Nicolae Filimon, Nr. 73A, sector 6 |
| 72. | Gradinita nr. 40 sector 6 | 0212203340 | Str. Tabla Butii, nr. 60, sector 6 |
| 73. | Art\' Alegria - Gradinita, After School Bucuresti | 0736163236 | Intrarea Cascioarele, sector 6 |
| 74. | Alegra, Gradinita - Bucuresti | 0746167291 | Str. Finta, Nr. 25, Sector 6, Bucuresti |
| 75. | After School Casuta Piticilor - Drumul Taberei, Militari | 0720548870; 0723230720 | Str. Sg. Maj. Alexandru Postolache, nr. 22, sector 6 |
| 76. | Gradinita nr. 41 sector 6 | 0214134988 | Str. Constantin Titel Petrescu, nr. 12, sector 6 |
| 77. | GoodStart - Gradinita, After School sector 6 | 0723380015; 0744626716 | Prelungirea Ghencea, nr. 109 B, Sector 6 |
| 78. | Sf. Andrei - Gradinita & After School Bucuresti | 0213116823; 0767817002 | Str. Bulgarus, Nr. 44, Sector 5, Bucuresti |
| 79. | Corina Club - After School Bucuresti | 0744353015; 0766332833 | Str. Garleni, Nr. 11A, Sector 6, Bucuresti |
| 80. | Colt de Rai - Gradinita sector 6 | 0217965203; 0752645946 | Str. Garleni, Nr. 10, Sector 6 |
| 81. | Smiley Kindergarten, Gradinita & After School - Bucuresti | 0314366138; 0722541744 | Str. Gabriel Cioran, nr. 6, sector 6, |
| 82. | Ana si Strumfii - After school Bucuresti | 0768185720; 0760193907 | Prelungirea Ghencea, nr. 255A, sector 6 |
| 83. | Happy Feet Education - Gradinita & Afterschool Chiajna | 0770342098 | Str. Vlad Tepes, nr. 63, Chiajna, judetul Ilfov |
| 84. | Casuta cu ghidusii - Gradinita privata Chiajna | 0744307260 | Str. Vlad Tepes, nr. 63, Chiajna, judetul Ilfov |
| 85. | TuMi School - gradinita, cresa si afterschool Chiajna | 0721111442 | Str. Libertatii, nr. 27, Chiajna, judetul Ilfov |
| 86. | Marchengarten - Gradinita cu predare bilingva sector 6 | 0744378796 | Str. G-ral Ioan Culcer, nr. 49, sector 6 |
| 87. | My Baby - Gradinita, After School Chiajna, Ilfov | 0732061947 | Intrarea Busuiocului, Nr. 4C, Chiajna, judetul Ilfov |
| 88. | Orhideea Kids - Gradinita & After School Bucuresti | 0748595311 | Calea Plevnei, Nr. 145B, sector 1, Bucuresti |
| 89. | Betty-Mar House - After / Before School, Bucuresti | 0732871827 | Str. Otescu Ion Nonna, nr. 23, sector 6 |
| 90. | Miro Kids World - Cresa, gradinita Bucuresti | 0767331173; 0756199161 | Str. Miroslavei, nr. 9, Sector 5 |
| 91. | Happy Planet Kids - Gradinita Bucuresti | 0214106984; 0722319863; 0740843914 | Str. Lt. Col. C-tin Marinescu, Nr. 17B, Sector 6, Bucuresti |
| 92. | Sfera Kinderzentrum - Gradinita, Before & After School Bucuresti | 0728024897 | Calea Grivitei, nr. 194, sector 1 |
| 93. | Kinderium - Before & After School Bucuresti | 0726177868 | Drumul Sarii, nr. 4A, sector 6 |
| 94. | Gradinita nr. 222 Bucuresti | 0721345993; 0216673480 | Str. Arad, nr. 38 , sector 1 |
| 95. | Kinderträume - Gradinita Bucuresti | 0744507988 | Splaiul Independentei, Nr. 195, sector 6, Bucuresti |
| 96. | Innababy - Cresa, gradinita, afterschool Bucuresti | 0722403847 | Str. Tintasului, Nr. 3, Sector 1, Bucuresti |
| 97. | Teddybar - Gradinita, Bucuresti | 0212224455; 0723048602 | Str. Soimarestilor, nr. 29, sector 1, Bucuresti |
| 98. | Gradinita din Povesti - Bucuresti | 0724987747 | Str. Costache Marinescu, Nr. 1A, Sector 1 |
| 99. | Gradinita nr. 271 sector 5 | 0214109024 | Bd. Eroii Sanitari, nr. 77, sector 5 |
| 100. | Adnan, Gradinita - Bucuresti | 0744606010; 0722205243 | Intr. Buturugeni, Nr. 7 Sector 5, Bucuresti |
| 101. | Zum Zum - Gradinita Bucuresti | 0745685556; 0740704922 | Str. Vespasian, Nr. 37, Sector 1, Bucuresti |
| 102. | Gradinita M.Ap.N. nr. 1 sector 6 | 0213196009; 0766298724 | Calea Plevnei, nr. 137B, sector 6 |
| 103. | Discover Me- Gradinita Bucuresti | 0747774809 | Str. Constantin Noica, Nr. 120, sector 6, Bucuresti |
| 104. | Pitiricky - Clubul celor mici - Bucuresti | 0724648513 | Str. Ialomicioarei, Nr. 13, Sector 1, Bucuresti |
| 105. | Young Academics - AfterSchool Bucuresti | 0755095974 | Str. Trotusului, nr. 39, sector 1 |
| 106. | Gradinita nr. 97 Bucuresti | 0212241162 | Str. Islaz, nr. 13, Sector 1 |
| 107. | Asociatia Conil - Gradinita pentru copii cu nevoi speciale Bucuresti | 0784412222; 0217466704; 0735847526 | Str. Dr. Victor Poloni , nr 14, Sector 5, Bucuresti |
| 108. | Micul Lord Gradinita - Bucuresti | 0730093603; 0745101507 | Str. Lespezi, nr. 4 , sector 5, |
| 109. | Cami - Gradinita particulara si afterschool Bucuresti | 0757402573 | Str. Carol Knappe, nr. 45,sector 1, Bucuresti |
| 110. | Cami Gradinita & After School - Bucuresti | 0757402573; 0749018642 | Str. Carol Knappe, Nr. 45, Sector 1, Bucuresti |
| 111. | Karin\'s Kids Academy - Gradinita Bucuresti | 0212250005 | Str. Hermann Oberth, Nr. 33, Sector 1, Bucuresti |
| 112. | Alexandra Kids, Gradinita, After School - Bucuresti | 0722151836; 0214206927 | Str. Petre Ispirescu, Nr. 69, Sector 5, Bucuresti |
| 113. | Little Team - Gradinita / After School Bucuresti | 0799774767 | Calea 13 Septembrie, nr. 191, sector 5 |
| 114. | Creative Minds Kindergarten - Gradinita Bucuresti | 0726152551 | Str. Alexandru Deparateanu, nr. 38, sector 1 |
| 115. | Sunshine Edu - After School Bucuresti | 0741123340 | Str. Lt. Av. Vasile Fuica, nr. 42, Sector 1 |
| 116. | Gradinita Floarea Soarelui sector 5 | 0214202148 | Str. M?rgeanului, nr. 81, sector 5 |
| 117. | Circle Time - Cresa, Gradinita Bragadiru | 0727585578 | Str. Margelelor, nr. 10F, Bragadiru, judetul Ilfov |
| 118. | Ingenius Club - After School Bucuresti | 0729164275; 0733975456 | Str. Virgil Plesoianu, nr. 108, sector 1 |
| 119. | Gradinita nr. 206 - Gradinita cu program prelungit Bucuresti | 0212229287 | Str. Constantin Disescu, nr. 37, sector 1 |
| 120. | Equilibrum - Gradinita Bucuresti | 0724064503; 0724862068 | Bd. Expozitiei, Nr. 2, Sector 1 |
| 121. | Olga Gudynn, Gradinita si Scoala Cotroceni - Bucuresti | 0734411332; 0214106995 | Str. Fagaras, Nr. 6, Sector 1, Bucuresti |
| vezi mai multe | |||
| 1. | Polimed Apaca - Policlinica, Bucuresti | 0214348003; 0214348026; 0213113810 | Str.Dezrobirii, Nr. 13, Sector 6, Bucuresti |
| 2. | Policlinica Regina Maria - Lujerului | 0219268 | Bd. Iuliu Maniu, nr. 51, sector , |
| 3. | Centrul Medical Gorjului- Bucuresti | 0214341557 | Bd. Iuliu Maniu, nr. 65, sector 6 , |
| 4. | Lifeline Services-Bucuresti | 0212221651; 0722279756 | Sos. Virtutii, nr. 19 D, Virtutii Business Center, Sector 6, |
| 5. | Clinica Medicala Rosana Medical-Bucuresti | Tel. 0214140220; 0372734300 | Str. Cetatea Histria , nr. 12, sector 6, |
| 6. | Doris - centru de testare COVID 19 Bucuresti | 0732684319 | Bd. Iuliu Maniu, nr. 11, sector 6, |
| 7. | Centrul Medical Brancusi | 0319119 | Str. Valea Doftanei, Nr. 113, Sector 6 |
| 8. | Centrul Medical Nicomed | 0216372458; 0731338524 | Calea Crangasi nr. 23, bl. 13, sc. 2, ap. 1, sector 6, |
| 9. | Centrul Medical Nicomed-Bucuresti | 0216372458; 0731338524 | Calea Crangasi, nr. 23, ap.1, sector 6, |
| 10. | Centrul medical PoeMedica Bucuresti | 0214139387; 0217461632; 0757109599 | Bd. 1 Mai, nr. 24, sector 6, |
| 11. | Clinica Doctor Acasa-Bucuresti | 0784276950; 0788629415; 0788676433 | Str.Prelungirea Ghencea, nr. 53 bis, lot1, bloc F3, scara A, etaj 1, sector 6, |
| 12. | Clinica Medicover-Bucuresti | 0219896 | Str. Sergent Constantin Ghercu,, nr. 1A, sector 1, |
| 13. | Prof. Dr. Panait Sirbu, Spitalul Clinic de Obstetrica-Ginecologie Bucuresti | 0213161281; 0213161283; 0213161287 | Calea Giulesti, nr. 5, sector 6, bucuresti |
| 14. | Prof. Dr. Panait Sirbu, Spitalul Clinic de Obstetrica-Ginecologie Bucuresti | 0213161281; 0213161283 | Calea Giulesti, nr. 5, sector 6 , |
| 15. | Policlinica Regina Maria - Cotroceni | 0219268 | Sos. Cotroceni, nr. 20, sector 6, |
| 16. | Centrul medical Ghencea Medical Center- Bucuresti | 0219838; 0752493636 ; 0756045204 | Bd. Ghencea , Nr. 43 B, sector 6, Bucuresti |
| 17. | Clinica Sanamed-Bucuresti | 0219442 | Calea Plevnei, Nr. 159,corpul B ,Sector 6, |
| 18. | Spitalul de Urgenta de Chirurgie Plastica, Reparatorie si Arsuri-Bucuresti | 0212240946; 02.2240947; Tel/Fax 0212241800 | Calea Grivitei , nr. 218, sector 1 , |
| 19. | Spitalul de Urgenta de Chirurgie Plastica, Reparatorie si Arsuri | 0212240946; 0212240947; Tel/Fax 0212241800 | Calea Grivitei nr. 218, sector 1, |
| 20. | Clinica de Excelenta in Patologia Somnului Somnolog-Bucuresti | 0213118822; 0784442277 | Str.Dr.Leonte Anastasievici, nr.11, sector 5, |
| 21. | Scanmed - Clinica Medicala Bucuresti | 0219215; 0317100141; 0729202202 | Sos. Panduri, nr. 71, Parter, Sector 5 |
| 22. | Centrul Medical Focus | 0753035038 | Str. Dinicu Golescu, nr. 23-25 , sector 1, |
| 23. | Spitalul Universitar de Urgenta Bucuresti - SUUB | Tel. 0213180519; Fax 0213180554 | Splaiul Independentei, nr. 169, sector 5 , |
| 24. | Spitalul Universitar de Urgenta Bucuresti - SUUB | Tel. 0213180519; 0213180554 | Splaiul Independentei nr. 169, sector 5, |
| 25. | Spitalul Clinic CF Witting + ambulatoriu | Tel. 0213129530; 0213129531; 0213176280 | Calea Plevnei nr. 142-144, sector 6, |
| 26. | Spitalul Universitar de Urgenta Militar Central Dr. Carol Davila | Tel. 0213193052/60; Fax.0213193030 | Str. Calea Plevnei, nr. 134, sector 1, Bucuresti |
| 27. | Centru Medical Mediclass - Cotroceni | 0214102727; 0214120128; 0214120129 | Str. Elefterie, nr. 47-49 (Complex Comercial Cotroceni), sector 5, |
| 28. | Spitalul Clinic de Nefrologie - Dr. Carol Davila | Tel. 0213189184 (centrala); Fax 0213189184 | Calea Grivitei nr. 4, sector 1, |
| 29. | Centrul Medical M Hospital-Bucuresti | Tel.0219136 | Str. Witing, nr. 10-12, sector 1 , |
| 30. | Dr. Carol Davila, Spitalul Universitar de Urgenta Militar Central Bucuresti + ambulatoriu | Tel. 0213193052/60; 0213193030 | Str. Calea Plevnei , nr. 134, sector 1, |
| 31. | Centrul Medical M Hospital-Bucuresti | 0219136; 0744812330; 0213162049 | Str.Witting, nr. 10-12, sector 1, Bucurestu |
| 32. | Centrul Medical Panduri-Bucuresti | 0731806118; 0219901 | Str. Dr. Ioan Atanasiu, nr. 34, sector 5, |
| 33. | Ambulatoriul Spitalului Universitar de Urgenta | Tel. 0213180519/29; 0212026147 | Splaiul Independentei, nr. 169, sector 5 , |
| 34. | RomGerMed - Clinica Medicala Bucuresti | Tel. 0213110075; 0727999602 | Calea Plevnei, 137 C, sector 6, |
| 35. | Institutul National pentru medicina complementara si alternativa | Tel.0783002934; 0214102419 | Sos. Panduri , nr. 22, sector 5, |
| 36. | Spitalul Clinic \"Prof. Dr. Theodor Burghele\" + Ambulatoriu | Tel.0214106910; Fax.0214111055 | Sos. Panduri, nr. 20, sector 5, |
| 37. | Spitalul Clinic \"Prof. Dr. Theodor Burghele\" + Ambulatoriu | Tel. 0214106910; Fax 0214111055 | Sos. Panduri nr. 20, sector 5, |
| 38. | Ioana Medical Center | 0212233810; 0786486156 | Bd. Alexandru Ioan Cuza, nr 81, et 1, sector 1 |
| 39. | Centrul Medical Ioana-Bucuresti | 0212233810; 0786486156 | Str. Alexandru Ioan Cuza, nr. 81,, et. 1,sector 1, Bucuresti |
| 40. | Clinica Lil Med-Bucuresti | 0214206055; Fax:0214212231 | Str. Suzana , nr. 7, corp 1,sector 5, |
| 41. | Imuno Medica - Centrul de preventie, diagnostic si tratament Sf. Ioan Botezatorul | 0314050350; 0771771333 | Str. Virgiliu nr. 81, sector 1 |
| vezi mai multe | |||
| 1. | Sfanta Treime, Scoala Gimnaziala - Bucuresti | 0376203770 | Aleea Ghirlandei, Nr. 7, Sector 6, Bucuresti |
| 2. | Planeta Copiilor , Scoala Primara si Gimnaziala - Bucuresti | 0724212970; 0724212887; 0214330263 | Gabriela Szabo, Nr. 3 - 11, Sector 6, Bucuresti |
| 3. | Regina Maria, Scoala Gimnaziala Nr.198 - Bucuresti | 0214340102; 0314040194 | Str. Apusului, Nr. 71-73, Sector 6, Bucuresti |
| 4. | Constantin Brancusi, Scoala Gimnaziala Nr. 174 - Bucuresti | 0314052556 | Str. Rosia Montana, Nr. 41, Sector 6, Bucuresti |
| 5. | Scoala Gimnaziala Regele Mihai I - Bucuresti | 0311011373 | Str. Dezrobirii, Nr. 41, Sector 6 |
| 6. | Scoala de Aplicatie pentru Ofiteri a Jandarmeriei Romane Mihai Viteazul | 0217696120; 0214349131; 0757099804 | Str. 1 Decembrie 1918, Nr. 2-4, Sat Rosu, judetul Ilfov |
| 7. | Ion Dumitriu, Scoala Gimnaziala Nr. 157 - Bucuresti | 0214340401 | Str. Hanul Ancutei, Nr. 4, Sector 6, Bucuresti |
| 8. | Scoala Gimnaziala Nr. 309 - Bucuresti | 0314190747; 0214340426 | Str. Moinesti, Nr. 9, Sector 6 |
| 9. | Scoala Gimnaziala Nr. 156 - Bucuresti | 0314040192 | Str. Dealul Tugulea, Nr. 35, Sector 6 |
| 10. | Doamna Chiajna, Liceul Tehnologic - Rosu | 0730614950; 0214360404 | Str. 1 Decembrie 1918, Nr. 90, Rosu, judetul Ilfov |
| 11. | Scoala Gimnaziala Nr. 142 - Bucuresti | 0314040196; 0214300511 | Str. Centurii, Nr. 4, Sector 6, Bucuresti |
| 12. | Colegiul Economic Costin C. Kiritescu - Bucuresti | 0314016830 | Str. Pestera Dambovicioarei, Nr. 12, Sector 6, Bucuresti |
| 13. | Scoala Gimnaziala Nr. 117 | 0214302040; 0784236131 | Str. Fabricii, Nr. 22, Sector 6, Bucuresti |
| 14. | Atlas, Scoala postliceala - Bucuresti | 0214400708 | Bd. Timisoara, Nr. 60D, Sector 6, Bucuresti |
| 15. | Sfintii Constantin si Elena, Scoala Gimnaziala Nr. 176 - Bucuresti | 0214442515 | Aleea Lunca Cernei, Nr. 3, Sector 6, Bucuresti |
| 16. | Gh. Airinei, Colegiul Tehnic de Posta si Telecomunicatii - Bucuresti | 0214134645 | Str. Romancierilor, Nr. 6, Sector 1, Bucuresti |
| 17. | Scoala Gimnaziala Nr. 206 - Bucuresti | 0217773980 | Aleea Arinis, Nr. 5, Sector 6, Bucuresti |
| 18. | Liceul Tehnologic Sfantul Antim Ivireanu - Bucuresti | 0314380278 | Aleea Poiana Muntelui, Nr. 1, Sector 6, Bucuresti |
| 19. | Petru Poni, Liceul Tehnologic - Bucuresti | 0213199316 | Bd. Preciziei, Nr. 18, Sector 6, Bucuresti |
| 20. | Tudor Vladimirescu, Colegiu National - Bucuresti | 0214103831 | Bd. Iuliu Maniu, Nr. 15, Sector 6, Bucuresti |
| 21. | Scoala Gimnaziala Nr. 169 - Bucuresti | 0214132431 | Str. Pascani, Nr. 2, Sector 6, Bucuresti |
| 22. | Scoala Gimnaziala Nr. 167 - Bucuresti | 0212205770 | Calea Crangasi, Nr. 140, Sector 6, Bucuresti |
| 23. | Colegiul Tehnic Gheorghe Asachi - Bucuresti | 0214130438; 0787858675; 0214134040 | Aleea Pravat, Nr. 24, sector 6 |
| 24. | Sfantul Andrei, Scoala Gimnaziala 172 - Bucuresti | 0217785959 | Aleea Parva, Nr. 3- 5, Sector 6, Bucuresti |
| 25. | Scoala Gimnaziala Nr. 164 Sfantul Calinic de la Cernica - Bucuresti | 0214131160 | Str. Pravat, Nr. 22, Sector 6, Bucuresti |
| 26. | Grigore Moisil, Colegiu National - Bucuresti | 0214132696; 0768191964 | Bd. Timisoara, Nr. 33, Sector 6, Bucuresti |
| 27. | Elena Cuza, Colegiul National - Bucuresti | 0214132495; 0214134768 | Str. Pestera Scarisoara, nr. 1, sector 6, Bucuresti |
| 28. | Liceul cu Program Sportiv Mircea Eliade - Bucuresti | 0213141389 | Splaiul Independentei, Nr. 315-317, Sector 6 |
| 29. | Eugen Lovinescu, Liceu teoretic - Bucuresti | 0214132947; 0214134195 | Str. Valea lui Mihai, Nr. 6, Sector 6, Bucuresti |
| 30. | Scoala Gimnaziala Speciala Constantin Paunescu Bucuresti | 0214442288 | Aleea Istru, Nr. 4, Sector 6 |
| 31. | Adrian Paunescu, Scoala Gimnaziala - Bucuresti | 0214133020 | Aleea Valea Prahovei, Nr. 1, Sector 6, Bucuresti |
| 32. | Marin Preda, Liceu teoretic - Bucuresti | 0212202344 | Str. Rusetu, Nr. 17, Sector 6, Bucuresti |
| 33. | Scoala Gimnaziala Nr. 197 - Bucuresti | 0214134330; 0786332028 | Str. Obcina Mare, Nr. 2, Sector 6, Bucuresti |
| 34. | Scoala Profesionala Speciala pentru Deficienti de Auz Sfanta Maria - Bucuresti | 0214440331; 0217787655 | Aleea Istru, Nr. 6, Sector 6 |
| 35. | Colegiul Tehnic Petru Maior - Bucuresti | 0736627798 | Bd. Timisoara, Nr. 6, Sector 6 |
| 36. | Scoala Gimnaziala Nr. 279 - Bucuresti | 0217773164 | Prelungirea Ghencea, Nr. 24, Sector 6, Bucuresti |
| 37. | UCECOM, Colegiul Spiru Haret - Bucuresti | 0213166195; 0213166196 | Str. Economu Cezarescu, Nr. 47-59, Sector 6, Bucuresti |
| 38. | Complex Scoalr Cronos Bucuresti | 0212225050; 0758107705 | Str. Chibzuintei, Nr. 15-17, Sector 1, Bucuresti |
| 39. | Orizont, Scoala Gimnaziala Nr. 193 - Bucuresti | 0214132355 | Str. Mihaela Ruxandra Marcu, Nr. 3, Sector 6, Bucuresti |
| 40. | Alegra - After-school Bucuresti | 0729987920; 0726487124 | Str. Portaresti, Nr. 11, etaj 1, sector 6 |
| 41. | Scoala Gimnaziala Nr. 144 - Bucuresti | 0214442093 | Str. Floarea de Gheata, Nr. 1B, Sector 5, Bucuresti |
| 42. | Scoala Gimnaziala Nr. 162 | 0212205484 | Str. Copsa Mica, Nr. 1A, Sector 1, Bucuresti |
| 43. | Carol I, Colegiu Tehnic - Bucuresti | 0212202750 | Str. Porumbacu, Nr. 52, Sector 6, Bucuresti |
| 44. | ForEvEr - After school, Bucuresti | 0733543937 | Strada Drumul Valea Larga, nr. 24A, sector 6 |
| 45. | Scoala Gimnaziala Nr.163 - Bucuresti | 0212201018 | Calea Giulesti, Nr. 54, Sector 6, Bucuresti |
| 46. | Scoala Gimnaziala Nr. 59 | 0314252104 | Str. Vladeasa, Nr. 9, Sector 6, Bucuresti |
| 47. | Scoala Gimnaziala Nr. 153 Bucuresti | 0212217651 | Drumul Sabareni, Nr. 21, Sector 6, Bucuresti |
| 48. | Scoala Gimnaziala Nr. 168 - Bucuresti | 0314326090 | Str. Alizeului, Nr. 9, Sector 6, Bucuresti |
| 49. | Scoala Gimnaziala Nr. 161- Bucuresti | 0212249328 | Calea Giulesti, Nr. 486A, Sector 6, Bucuresti |
| 50. | Scoala Gimnaziala Nr. 311- Bucuresti | 0214133440 | Str. Garleni, Nr. 10, Sector 6, Bucuresti |
| 51. | Alexandru Odobescu, Scoala Gimnaziala - Chiajna | 0372552412 | Str. Pacii, Nr. 72, Chiajna, judetul Ilfov |
| 52. | Colegiul Tehnic Dinicu Golescu - Bucuresti | 0216370484 | Calea Giulesti, Nr. 10, Sector 1 |
| 53. | Eugen Barbu, Scoala Gimnaziala Nr. 173 - Bucuresti | 0212240937 | Str. Ivan Petrovici Pavlov, Nr. 2-4, Sector 1, Bucuresti |
| 54. | Geo Bogza, Scoala Gimnaziala Nr. 170 - Bucuresti | 0212223072 | Str. Barbu Lautaru, Nr. 4, Sector 1, Bucuresti |
| 55. | Colegiul Tehnic Mecanic Grivita - Bucuresti | 0212240770 | Calea Grivitei, Nr. 363, Sector 1, Bucuresti |
| 56. | Ada School - Bucuresti | 0723595916; 0721424485 | Dr. Carol Davila, Nr. 101, Bucuresti |
| 57. | Maryland, Scoala Primara - Drumul Taberei, Bucuresti | 0722418104 (Cristina Ignat Varlam); 0722257343 (Claudiu Ignat Varlam) | Drumul Ghindarilor, Nr.150-154, Sector 5, Bucuresti |
| 58. | Ion Barbu, Liceu Teoretic - Bucuresti | 0214102332 | Str. Nabucului, Nr. 18, Sector 5, Bucuresti |
| 59. | Sfantul Nicolae, Scoala Gimnaziala Nr. 175 - Bucuresti | 0212241846 | Str. Lainici, Nr. 4-8, Sector 1, Bucuresti |
| 60. | Alexandru Costescu - Scoala Gimnaziala Nr. 182 - Bucuresti | 0216674540 | Str. Amintirii, Nr. 26, Sector 1, Bucuresti |
| 61. | Colegiul Tehnic Mircea cel Batran - Bucuresti | 0212242376 | Str. Feroviarilor, Nr. 37, Sector 1 |
| 62. | Petre Ispirescu - Scoala Gimnaziala Nr. 171 - Bucuresti | 0212241163 | Str. Vasile Gherghel, Nr. 2, Sector 1, Bucuresti |
| 63. | I.G. Duca, Scoala Gimnaziala 146 - Bucuresti | 0214100881 | Sos. Panduri, Nr. 42, Sector 5, Bucuresti |
| 64. | Stefan Odobleja, Liceu teoretic - Bucuresti | 0214112213 | Str. Dorneasca, Nr. 7A, Sector 5, Bucuresti |
| 65. | Scoala Gimnaziala nr. 143 - Bucuresti | 0214202440 | Str. Banu Maracine, Nr. 16, Sector 5 |
| 66. | Scoala Gimnaziala Nr. 150 - Bucuresti | 0214108408 | Bd. Eroii Sanitari, Nr. 29-31, Sector 5, Bucuresti |
| 67. | Timotei Cipariu, Liceul Greco-Catolic - Bucuresti | 0216678434 | Str. Bucegi, Nr. 97, Sector 1, Bucuresti |
| 68. | Scoala Gimnaziala Nr. 115 | 0213163793; 0786401588 | Calea 13 Septembrie, Nr. 177, Sector 5, Bucuresti |
| 69. | Scoala Gimnaziala nr 180 - Bucuresti | 0216671835 | Bucegi, nr. 97, sector 1 |
| 70. | Ion Neculce, Colegiul National Bucuresti | 0212224145; 0212224179 | Str. Ion Neculce, Nr. 2, Sector 1, Bucuresti |
| 71. | Uruguay, Scoala Gimnaziala - Bucuresti | 0216370361 | Str. Virgiliu, Nr. 40, Sector 1, Bucuresti |
| 72. | Smart Koala Kids Club | 0771638419; 0771638425 | Calea 13 Septembrie, Nr.126A, bl.P43, sc.1, parter, ap. 2, sector 5, Bucuresti |
| 73. | Phoenix, Liceu Teoretic - Bucuresti | 0214341364; 0770911516 | Virgiliu, Nr. 40, Sector 1, Bucuresti |
| 74. | Scoala Gimnaziala Nr. 183 - Bucuresti | 0216673280 | Str. Dunei, Nr. 1, Sector 1 |
| 75. | Iosif Sava, Scoala Gimnaziala de Arte - Bucuresti | 0212312470 | Str. Constantin Disescu, Nr. 37, Sector 1, Bucuresti |
| 76. | Dimitrie Gusti, Liceu Tehnologic - Bucuresti | 0214562050 | Str. Samuil Vulcan, Nr. 8, Sector 5, Bucuresti |
| 77. | Fridolin, scoala primara si gimnaziala germana - Bucuresti | 0723584872 (Adina Stoenescu); 0722502522 (Christian Comsa) | Fagaras, Nr. 9-13, Sector 1, Bucuresti |
| 78. | Nicolae Titulescu, Scoala Gimnaziala - Bucuresti | 0212236393 | Sos. Nicolae Titulescu, nr. 50-52, Sector 1, Bucuresti |
| 79. | Little Genius - Scoala primara Bucuresti | 0724245249 | Str. Carol Knappe, Nr. 95, sector 1 |
| vezi mai multe | |||
| 1. | Casa Roz - Restaurant, Bucuresti | 0721542909; 0720624500 | Str. Apusului, nr 44, sector 6 |
| 2. | Casa Roz, Restaurant - Bucuresti | 0721542909; 0720624500; 0723504103 | Apusului, Nr. 44, Sector 6, Bucuresti |
| 3. | La Cave - Restaurant cu specific francez, Bucuresti | 0746254444 | Str. Margelelor, Nr. 139-143, sector 6 |
| 4. | Cocosu Rosu - Restaurant cu specific romanesc Bucuresti | 0747059315 | Str. Margelelor, Nr. 61 ? 63, Sector 6 |
| 5. | Fortuna Pizza - Bucuresti | 0764725328; 0725416126 | Apusului, Nr. 82, Sector 6, Bucuresti |
| 6. | Weiss Beer Garden - Terasa, Bucuresti | 0733582852 | Bulevardul Uverturii, nr. 132, sector 6 |
| 7. | Timeout Cafe - Bucuresti | 0763700031 | Strada Reveriei, nr. 11, Sector 6 |
| 8. | Cofetaria Elan - Bucuresti | 0214343438 | Bulevardul Iuliu Maniu, Nr. 73, sector 6 |
| 9. | Primo - Restaurant fast food, Bucuresti | Bulevardul Iului Maniu, Nr. 184, sector 6 | |
| 10. | Sweet Chocolate - Cofetarie, Bucuresti | 0733944694 | Bd. Iuliu Maniu, Nr.65, sector 6 |
| 11. | Pizza KA - Bucuresti | 0219894 | B-dul Uverturii, Nr. 98, Sector 6 |
| 12. | Aniela - Cofetarie, Bucuresti | 0760237463 | Bd. Uverturi, Nr.83, sector 6 |
| 13. | Candy bar by Kitty, Cofetarie - Bucuresti | 0766628112 (Letan Elena) | Iuliu Maniu, Nr.61, Sector 6, Bucuresti |
| 14. | Pizza Volante - Bucuresti | 0738592129; 0765401872 | Strada Cernisoara, Nr. 151, sector 6 |
| 15. | Almondo Pizza - Pizzerie, Bucuresti | 0726000222/ 0767227722 | Str. Murguta, nr. 27, sector 6 |
| 16. | Kabo - Restaurant Bucuresti | 0769276582 | Strada Moinesti, Nr. 49, sector 6 |
| 17. | Turbotequila, Restaurant - Bucuresti | 0214344007; 0214301312 | Bd. Iuliu Maniu, Nr. 220C, Sector 6, Bucuresti |
| 18. | Mr Laziz Fast Food & Grill - Mancare libaneza | 0720451176 | Drumul Timonierului, nr. 3-5 sector 6 |
| 19. | AS Garden - Restaurant Bar & Grill, Bucuresti | 0736735244; 0731639017 | Strada Timonierului, Nr. 3-5, sector 6 |
| 20. | La Collina - Restaurant si pizzerie, Bucuresti | 0720265462; 0761806890; 0722229700 | Drumul Timonierului, nr. 26, sector 6 |
| 21. | Joy Pizza - Ilfov | 0733360020 | Str. 1 Decembrie, Nr 141 A, Chiajna, judetul Ilfov |
| 22. | Fast Food Selfie - Bucuresti | 0723640514; 0766356486 | Strada Moinesti, Nr. 75, sector 6 |
| 23. | Impinge Tava - Ilfov | 0722911963 | Strada 1 Decembrie 1918, Nr.165, Rosu, judetul Ilfov |
| 24. | Alexia Garden - Restaurant Bucuresti | 0374015050; | Bulevardul Timisoara, Nr 58G, sector 6 |
| 25. | Speed Pizza - Bucuresti | 0219001 | Iuliu Maniu, Nr.19, Sector 6, Bucuresti |
| 26. | Panoramic Beer & Grill - Ilfov | 0720327223 | Str. Apeductului, Nr. 14, sat Rosu, comuna Chiajna, judetul Ilfov |
| 27. | Vulturul, Restaurant - Bucuresti | 0722335116; 0213514149 | Intrarea Blejoi, Nr. 2, (B-dul Iuliu Maniu 408-410), Sector 6, Bucuresti |
| 28. | Vulturul, Restaurant - Bucuresti | 0722335116; 0213514149 | Intrarea Blejoi, (B-dul Iuliu Maniu 408-410), Nr. 2, Sector 6, Bucuresti |
| 29. | Casa Nasului - Restaurant Bucuresti | 0727825165 | Strada Cetatuia, Nr. 12, sector 6 |
| 30. | La Saveur - Brutarie artizanala, patiserie, cofetarie Bucuresti | 0770733292; 0722624525 | Drumul Taberei, Nr 68, sector 6 |
| 31. | La Micutu - Fast Food, Bucuresti | 0765099359 | Bd Timisoara, Nr 18, sector 6 |
| 32. | Capri Pizza, Pizzerie si catering - Bucuresti | 0729442530; 0214442101 | B-dul. Timisoara, Nr. 60C, Sector 6, Bucuresti |
| 33. | Militari Residence Ballroom - Bucuresti | 0723333508; 0760150392 | Rezervelor, Nr. 70, Sector 6, Chiajna, judetul Ilfov |
| 34. | Ev Don Fusion - Restaurant Ilfov | 0775500777 | Strada Rezervelor 63, Chiajna, Dudu, judetul Ilfov |
| 35. | Mai Mult Decat Un Dulce - Cofetarie, Bucuresti | 0785688229 | Str. Rezervelor, Nr.5nr.56 , bl.4, parter,sector 6, |
| 36. | Capri, Restaurant - Bucuresti | 0769812778; 022797639; 0730094662 | Iuliu Maniu, Nr.484, (inaintea benzinariei Petrom - Metro Militari), Bucuresti |
| 37. | Trattoria Roz Cafe - Restaurant Bucuresti | 0774481284; 0726616358 | Strada Rezervelor, Nr. 52 bis, sector 6 |
| 38. | Urban Vibe Roastery - Cafenea, Bucuresti | 0768082833 | Valea Oltului, Nr 131-137, sector 6 |
| 39. | Verbun Pizza & Shaorma - Restaurant fast-food, Bucuresti | 0785161693 | Valea Oltului, Nr. 131-137, sector 6 |
| 40. | Torturi de vis - Cofetarie Bucuresti | 0744364900 | Str. Rezervelor, Nr 44A, Chiajna, judetul Ilfov |
| 41. | Casa Antonie, Cofetarie - Bucuresti | 0212202530; 0740150736; 0212202510 | Mehadia, Nr. 39A, Sector 6, Bucuresti |
| 42. | PASSION CLUB | Tel. 021.444.36.67; 021.444.36.68; 0743.048.701; Fax 021.444.36.67 | Str. Valea Oltului, nr. 117A, sector 6, |
| 43. | Opa Opa Greek Fast Food - Bucuresti | 0746072527 | Bd. Preciziei, Nr. 24, Sector 6 |
| 44. | Amarillo, Restaurant - Bucuresti | 0722215615; 0722244599 | Drumul Taberei, Nr. 44A, Sector 6, Bucuresti |
| 45. | Passion Club, Restaurant - Bucuresti | 0214443668; 0745111107 | Valea Oltului, Nr. 117A,Sector 6, Bucuresti |
| 46. | Restaurant Passion Club | 0214443668; 0745111107 | Str. Valea Oltului, nr. 117A, sector 6, |
| 47. | Passion Club, Restaurant - Bucuresti | 0214443668; 0745111107 | Valea Oltului, Nr. 117A, Sector 6, Bucuresti |
| 48. | IDM Club Sportiv - Bucuresti | 0213161052; 0722454273 | Splaiul Independentei, Nr. 319 B, (Vizavi de campusul studentesc Regie) Sector 6, Bucuresti |
| 49. | Rabah - Fast food, Bucuresti | 0771225412 | Strada Tineretului, nr 29, bloc 6 sc A, comuna Chiajna |
| 50. | Petritis Gyros- Restaurant fast-food, Ilfov | 0754745168 | Tineretului, Nr. 63 Rosu, Militari Residence, Comuna Chiajna, judetul Ilfov |
| 51. | Liana - Cofetarie, Ilfov | 0770507598 | Strada Tineretului, Nr 63, Comuna Chiajna, judetul Ilfov |
| 52. | Pizza Real - Delivery Bucuresti | 0760170649; 0725470701 | Calea Crangasi, Nr. 90, Sector 6 |
| 53. | Basilico - Restaurant Bucuresti | 0770898782 | Valea Oltului, Nr. 61, Sector 6 |
| 54. | Dream Pizza - Restaurant Bucuresti | 0785070079 | Drumul Taberei, Nr. 28, sector 6, |
| 55. | 14iil Bistro Caffe - Bucuresti | 0767945297 | Str. Orhideelor, Nr. 36 Comuna Chiajna, judetul Ilfov |
| 56. | Trattoria Roma - Restaurant Bucuresti | 0765723733; 0799772233 | Str. Drumul Taberei, Nr. 26, Sector 6 |
| 57. | Mechano Pub - Bucuresti | 0722990992 | Splaiul Independentei, Nr. 290, sector 6 |
| 58. | Ai Sapori - Restaurant cu specific italian Bucuresti | 0372713635 | Bd Timisoara, Nr. 21, sector 6, Bucuresti |
| 59. | Pub 18 Restaurant - Bucuresti | 0722441586 | Splaiul Independentei, Nr. 290, bl. P18, parter, sector 6 , Bucuresti |
| 60. | Pub 18 Restaurant - Bucuresti | 0722441586 (Manager Pub Oana Valeanu) | Splaiul Independentei, Nr. 290, bl. P18, parter, Sector 6, Bucuresti |
| 61. | Nedelya - Cofetarie Bucuresti | 0771420388 | Strada Brasov, Nr. 25, sector 6, Centrul Comercial Drumul Taberelor |
| 62. | La Maria si Ion, Restaurant - Bucuresti | 0762295737; 0753473781 | Splaiul Independentei, Nr. 290, Complex Studentesc Regie, Sector 6, Bucuresti |
| 63. | La Nasu, Restaurant - Bucuresti | 0212214285; 0722257923; 0728984754 | Calea Crangasi, Nr. 29, Sector 6, Bucuresti |
| 64. | Kungfu Pizza - Bucuresti | 0774428631; 0216656866; 0314251995 | Ceahlau, Nr.17 B, Sector 6, Bucuresti |
| 65. | Trattoria 20 - Restaurant Bucuresti | 0757534928; 0751267451 | Splaiul Independentei, Nr. 290, Campus Regie, sector 6 |
| 66. | Shorley Restaurant - Bucuresti | 0765377308; 0724710385; 0213124312 | Econom Cezarescu, Nr. 50, Sector 6 , Bucuresti |
| 67. | Pui de Urs, Restaurant - Bucuresti | 0213166289; 0724622226; 0765166266 | Econom Cezarescu, Nr. 42 (Grozavesti), Sector 6 , Bucuresti |
| 68. | La Felinare - Restaurant cu specific international, Bucuresti | 0751028811 | Strada Brasov, Nr. 25L, sector 6 |
| 69. | Roxy Pub - Bucuresti | 0742033944; 0723327117; 0785224508 | Splaiul Independentei, Nr. 290, Complex Studentesc Regie, Bucuresti |
| 70. | Dum Dum Food - Restaurant fast food, Bucuresti | 0735 270 402 | Calea Giulesti, Nr. 123, sector 6 |
| 71. | Mamma Mia, Pizzerie - Bucuresti | 0784614600 | Calea Giulesti, Nr.230, Sector 6, Bucuresti |
| 72. | Story Pizza - Pizzerie, Bucuresti | 0721985293; 0212201004; 0748581523 | Calea Giulesti, nr 202, sector 6 |
| 73. | La Placinte - Restaurant cu specific romanesc, Bucuresti | 0756207005 | Bd. Vasile Milea, 4F (Afi Park 2) |
| 74. | Hanul Drumetului, Restaurant - Bucuresti | 0214133430; 0722555083 | Bd. 1 Mai(Compozitorilor), Nr. 28, Sector 6, Bucuresti |
| 75. | Crosto Pizza - Pizzerie, Bucuresti | 0786200100; 0723700300 | Strada Condorului, Nr 3, Sector 5 |
| 76. | Fresh Food - Restaurant fast-food, Bucuresti | 0761383536 | Bulevardul Ghencea, nr. 79 (in incinta Complex Tamilia), sector 6 |
| 77. | Yesterday, Hotel si Restaurant - Bucuresti | 0213408585; 0737001008 | Economu Cezarescu, Nr. 8, Sector 6, Bucuresti |
| 78. | Quantic Pub - Bucuresti | 0314321742 | Soseaua Grozavesti, Nr. 82, sector 6 |
| 79. | Potcoava 9 Mai, Restaurant - Bucuresti | 0212202208; 0721065347 | Str. 9 Mai , Nr. 51, Sector 6, Bucuresti |
| 80. | Bulevard - Restaurant, Bucuresti | 0728538273 | Bulevardul Ghencea, nr.122, Bucuresti, Sectorul 6 |
| 81. | 14th Lane - Restaurant cu mancaruri fine, organizare evenimente, Bucuresti | 0737776777 | Sos. Orhideelor, Nr. 15D, sector 6, Bucuresti |
| 82. | Galletto Ristorante, Restaurant italian, catering - Bucuresti | 0212112276; 0770407519 | Soseaua Orhideelor, Nr.1 (podul nou Basarab,langa cladirile de birouri The Bridge, Sector 6, Bucuresti |
| 83. | La Sotir Jr. Ballroom - Ilfov | 0722911963; 0736560179; 0722329354 | Str. Eroului, nr. 2A, Chiajna, judetul Ilfov |
| 84. | Cofetaria Ioana - Bucuresti | 0217265762 | Strada Vladeasa, Nr. 2, sector 6 |
| 85. | Golden Blitz, Restaurant - Bucuresti | 0214105100 | Razoare , Nr. 32, Sector 6 , Bucuresti |
| 86. | Golden Blitz, Restaurant - Bucuresti | 0214105100 | Razoare , Nr. 32, Sector 6 , Bucuresti |
| 87. | Lucky Point Pub | 0742181263 | Splaiul Independentei, 204,sect.6, Bucuresti |
| 88. | Pizzeria Alessandro - Bucuresti | 0721886488; 0721887488 | Drumul Sarii, Nr.150, sector 6 |
| 89. | Naan Project - Restaurant, Bucuresti | 0730707119 | Strada Progresului, Nr. 1-3 (Razoare), sector 5 |
| 90. | Hong Kong - Restaurant chinezesc, Ilfov | 0213107134; 0727834877 | Calea Grivitei, nr. 81 (langa Biserica Sf. Voievozi), sector 1, , judetul Ilfov |
| 91. | Fast Food Plevnei - Restaurant Fast Food Bucuresti | 0761046444 | Calea Plevnei, Nr. 230, sector 1 |
| 92. | Cuptorul Dulce - Cofetarie, Ilfov | 0752086166 | Prelungirea Ghencea, nr.262, Bragadiru, judetul Ilfov |
| 93. | Vecchia Napoli Pizzeria - Bucuresti | 0723970317; 0212246629; 0754043666 | Calea Grivitei, Nr. 371, Sector 1, Bucuresti |
| 94. | Agora Restaurant - Bucuresti | 0212242482; 0722304431 | Str. Tintasului , Nr. 27, Sector 1, Bucuresti |
| 95. | Bucharest West, Restaurant si Motel - Domnesti / Ilfov | 0213505621; 0743485055 | Soseaua de Centura , Nr. 2,, Domnesti, judetul Ilfov |
| 96. | Cesme - Restaurant cu specific turcesc, Bucuresti | 0721163176 | Str. Calea 13 Septembrie, Nr 272, sector 5 |
| 97. | Triana - Cofetarie, Bucuresti | 0740302404 | Soseaua Orhideelor, Nr. 46, sector 1 |
| 98. | Burgeria Cotroceni - Restaurant fast-food, Bucuresti | 0314214777 | Soseaua Cotroceni, Nr. 9, sector 6 |
| 99. | Andros - Cofetarie, Bucuresti | 0748888847 | Str. Antiaeriana, nr. 5, sector 5, |
| 100. | Elena - Restaurant cu specific romanesc, cu terasa, organizare evenimente, Bucuresti | 0747277232 | Calea 13 Septembrie, Nr. 289, Sector 5, Bucuresti |
| 101. | Excellence - Restaurant Bucuresti | 0723888822 | Strada Petre Ispirescu, Nr. 110-112, sector 5 |
| 102. | Graffiti Urban Food, Bucuresti | 0749433433; 0733695443; 0769180180 | Str.Carol Davila, Nr. 56A, Sector 5, Bucuresti |
| 103. | Derby Pub & Restaurant - Bucuresti | 0214108545 | Bd. Eroilor Sanitari , Nr. 49A,sector 5, Bucuresti |
| 104. | Casa Banil Restaurant - Bucuresti | 0214105716; 0723391161; 0724159949 | Petre Ispirescu , Nr. 95, Sector 5, Bucuresti |
| 105. | Colosal - Fast Food, Bucuresti | 0737698255 | Strada Mihail Sebastian, Nr. 133, sector 5 |
| 106. | Red Wok - Restaurant cu specific chinezesc, Bucuresti | 0786644125 | Prelungirea Ghencea, nr. 45, sector 6 |
| 107. | Kunnai - Restaurant cu specific thailandez | 0722687343; 0722687454 | Strada Copilului, Nr. 6-12, sector 1 |
| 108. | Fabio Pizza - Bucuresti | 0372188330 | Turda, Nr. 117, Sector 1, Bucuresti |
| 109. | Bike Boutique and More - Magazin, terasa, service, Bucuresti | 0752405152 | Strada Profesor Doctor Victor Babes, Nr. 2, sector 5 |
| 110. | Perfekto Pizza - Bucuresti | 0721090553 | Strada Navigatiei, Nr. 9, Sector 1 |
| 111. | Piticot, Cofetarie Bucuresti | 0214206670; 0726714865 Whatsapp | Petre Ispirescu, Nr. 77, Sector 5, Bucuresti |
| 112. | Mezze, Restaurant libanez - Bucuresti | 0213116633; 0720044469 | Mircea Vulcanescu, Nr.153 B,Sector 1 , Bucuresti |
| 113. | Kvala - Restaurant grecesc, Bucuresti | 0726731663 | str Louis Pasteur, nr 63, sector 5 |
| 114. | So! Coffee, Cafenea - Bucuresti | 0372285718; 0314078250 | Piata Garii de Nord, Nr.1-5 (In fata peroanelor 4-5), Sector 1, Bucuresti |
| 115. | Cofetaria Maia Artizan Bakery - Bucuresti | 0762298622 | Str. Margeanului, Nr. 115, sector 5 |
| 116. | Fendi Kebap - Restaurant fast-food, Bucuresti | 0314051091 | Str. Novaci, |
| 117. | Panorama Kebap - Restaurant fast food, Bucuresti | 0766244009 | Str Margeanului, Nr.115, sector 5 |
| 118. | Di Vino Pizza - Bucuresti | 0769316151; 0733832277 | Prelungirea Ghencea, nr. 83C, sector 6 |
| 119. | Ceainaria Infinitea | 0723175300 | Str. Dr. Grigore Romniceanu, Nr.7, ap.2, sector 5 |
| 120. | Casa Lazar - Restaurant Bucuresti | 0764024444; 0738794310; 0735778229 | Serg. Maj. Ion Nedeleanu, Nr. 8, sector 5 |
| 121. | Cinas - Restaurant Bucuresti | 0726606212 | Bucurestii Noi, Nr. 20-28, Sector 1 |
| 122. | La petite bouffe - Cafenea, Bucuresti | 0733669344 | Strada Doctor Louis Pasteur, nr 38, sector 5 |
| 123. | Terasa Oasis - Restaurant Bucuresti | 0733638577 | Mihail Sebastian, Nr.102. Sector 5, Bucuresti |
| 124. | Royal Kebap - Restaurant fast-food, Bucuresti | 0730242360 | Strada Margeanului, Nr. 105 C, sector 4 |
| 125. | Fresche Pizza - Bucuresti | 0799168000 | Soseaua Chitilei, Nr. 126, sector 1 |
| 126. | Victoria, Cofetarie Bucuresti | 0212242033 | Bd. Ion Mihalache, Nr. 233, Sector 1, Bucuresti |
| 127. | Jazz Book - Club de jazz si blues, Bucuresti | 0752206746 | Doctor Carol Davila, Nr. 1, Cotroceni, sector 5 |
| 128. | Murad - Cafe-Restaurant, Bucuresti | 0725777000 | Str. Panait Istrati, nr, 101, sector 1 |
| 129. | Delarte Pizza, Pasta & Grill - Bucuresti | 0733352783; 0755487273; 0217802500 | Corbita, Nr.3,Sector 5, Bucuresti |
| 130. | Bocca Lupo - Restaurant cu specific italian, Bucuresti | 0314050050 | Strada Dr. Lister, nr. 1, sector 5 |
| 131. | Casa Bia - Restaurant Bucuresti | 0761241623 | Str. Sebastian Mihail, Nr. 19, sector 5 |
| 132. | Grivita - Pub&Grill, Bucuresti | 0724748482 | Calea Grivita, Nr. 130 (Parter Eurohotels), |
| vezi mai multe | |||
| 1. | PLUS DISCOUNT | Tel. 021.402.28.67; Fax 021.402.28.66 | Bd. Iuliu Maniu nr. 8B, sector 6, |
| 2. | CENTRUL COMERCIAL SIR | Tel. 021.430.13.98; 021.430.01.27 | Sos. Virtutii, nr. 1A (pasajul Lujerului, col? cu bd. Uverturii), sector 6, Bucuresti |
| 3. | IOVIROM | Tel. 444.18.66; Fax 444.18.69 | Bd. Timisoara nr. 84, sector 6 |
| 4. | PLAZA ROMANIA | Tel. 021.407.84.64; 021.407.84.65; 021.319.50.51 | Bd. Timisoara , nr. 26, sector 6, |
| 5. | MILITARI SHOPPING | 021.380.87.82 | Bd. Iuliu Maniu nr. 546-560, sector 6, |
| 6. | VENGA | Tel. 021.425.05.70; Fax 021.425.05.25 | Drumul Taberei nr. 24, sector 6 |
| 7. | GRANT SHOPPING CENTER | Tel/Fax 021.220.42.65 | Sos.Virtutii, nr. 148, sector 6, Bucuresti |
| 8. | AFI Cotroceni - Mall, Bucuresti | 0314257510; 0314257511; Fax 0314257513 | Vasile Milea, Nr. 4, Sector 6 (intersectia Bd. Timisoara cu Str. Vasile Milea), Bucuresti |
| 9. | Home & Design Mall, Bucuresti - Mobilier, covoare, mochete, perdele | 0214130742; 0214132046; Fax.0214130741 | Bulevardul Ghencea, Nr. 126-132, Sector 6, Bucuresti |
| 10. | PROFI | Tel. 0726.100.452; Tel/Fax 021.444.32.44 | Bd. Ghencea nr. 38, bl. C63, sector 6, |
| 11. | SUPERMARKET PRIMiVARA | Tel. 031.402.58.20; Fax 021.410.96.96 | Calea 13 Septembrie nr. 221-225, sector 5 - Complex Prosper, |
| 12. | ETHOS SUPERMARKET | Tel. 0735.808.451 | Str. Margeanului nr. 48, sector 5, |
| 13. | NICK CENTER | Tel. 410.06.14; Fax 410.18.94 | Calea 13 Septembrie nr. 190, sector 5 |
| 14. | THE GRAND AVENUE AT BUCHAREST MARRIOTT GRAND HOTEL | Tel.021. 403.40.98 | Calea 13 Septembrie nr. 90, sector 5 , |
| vezi mai multe | |||


Vezi galeria