Parcul Carol | 3 camere | 125mp | Semidecomandat | B12302
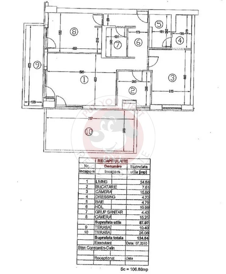
- Suprafata 88 mp
- An 2015
- Semidecomandat
- Etaj 4 din 6
Tineretului ...
16 min.
Calculeaza distanta
Descriere anunt
Pyf033B12302 Vanzare 3 camere
Pret: 380000 Euro
Zona: Parcul Carol, Bucuresti
Strada: Doctor Constantin Istrate
ID oferta: Pyf033B12302
Acasa incepe cu un sentiment.......Poate fi o lumina calda intr-o dupa-amiaza linistita, un balcon cu vedere sau o bucatarie unde iti savurezi cafeaua de dimineata.
Imagineaza-ti locuinta perfecta, care reflecta personalitatea ta si raspunde nevoilor tale zilnice.
Echipa PYF REAL ESTATE te ajuta sa gasesti acel loc special pe care il poti numi acasa. Portofoliul nostru cuprinde proprietati atent selectate, ideale pentru tine si familia ta.
Localizare:
Parcul Carol - (Academia tehniciana militara), una dintre cele mai cautate zone din Bucuresti, cu acces rapid la mijloace de transport in comun (metrou, autobuz, zona comerciala, banca, supermarket, trafic pietonal, benzinarie, piata, hotel, parc, restaurant/pub, scoala/gradinita), scoli, magazine, parcuri si centre comerciale.
Detalii proprietate:
Tip locuinta: Apartamente
Tip operatiune: vanzare
Numar camere: 3 camere (2 dormitoare)
Suprafata utila: 88 mp
Suprafata totala: 125 mp
Etaj: 4 / 6
Compartimentare: semidecomandat
Confort: 1
An constructie : 2015
An renovare : 2022
Tip imobil: bloc mixt
Incalzire : centrala imobil
Dotari: calorifere: da; ferestre: pvc; incalzire: centrala imobil; pereti: faianta, var/huma; podele: parchet, gresie; usa intrare: metal
Bai: 2
Balcoane: 0
Terase: 2 (37 mp)
Bucatarii: 1 (da, mobilata, utilata, deschisa )
Finisaje: calorifere: da; ferestre: pvc; incalzire: centrala imobil; pereti: faianta, var/huma; podele: parchet, gresie; usa intrare: metal
Mobilare : complet mobilat
Podele: parchet, gresie | Pereti: faianta, var/huma | Ferestre: pvc
Stare generala: Stare excelenta
Usa intrare: metal
Vedere: mixta
Destinatie: locuinta, birou
Acces rapid la mijloace de transport in comun (metrou: [Tineretului-450m], autobuze: [116-400m], tramvaie: [19-400m])
In apropiere: [Mega Image-50m, Carrefour-250, Colegiul National Gheorghe Sincai-350m, Farmacia Catena-400m, Parcul Tineretului-350m, Parcul Carol-300m]
Parcare: garaj subteran (2 locuri)
Apartamente pe palier: 4
Siguranta: interfon - interfon, lift - lift
Izolatii: exterior, interior
Agent responsabil: Mihai P.
Important de stiut:
Vizionarile se realizeaza in baza unui contract de prestari servicii, semnat intre client si agentie. Este necesara prezentarea unui act de identitate. Neprezentarea acestuia poate duce la anularea sau neprogramarea vizionarii.
Se percepe comision din partea cumparatorului conform politicii Pyf Real Estate
Din cauza numarului mare de oferte si a fluctuatiei pietei imobiliare informatiile din oferta pot suferi modificari atat in sens apreciativ, cat si in sens depreciativ, de asemenea, este posibil sa nu mai fie de actualitate la momentul prezentarii. Pentru clarificarea acestor aspecte va rugam solicitati actualizarea ofertei/ ofertelor dorite!
Alege PYF REAL ESTATE - partenerul tau de incredere in imobiliare.
Transforma visul tau in realitate - contacteaza-ne acum!
Acces mijloace transport
| Statii metrou | Timp | |
|---|---|---|
![]() |
Tineretului | 16 min. |
![]() |
Eroii Revoluției | 18 min. |
| Statii STB | Timp |
|---|---|
|
Cuțitul de Argint
1
116
,323
|
9 min. |
|
Adesgo
1
116
,323
|
9 min. |
|
Autogara Filaret
|
9 min. |
Obiective interes
| 1. | Academia Gifted International, Gradinita & After School - Bucuresti | 0724381661; 0722277090 | Str. Sold. Simion Stefan, nr. 39, sector 4, Bucuresti |
| 2. | Elite - Cresa, Gradinita Bucuresti | 0766687691 | Str. Lanariei, Nr. 136, Sector 4, Bucuresti |
| 3. | Paradisul Copiilor - Gradinita & After School Bucuresti | 0730007062 | Str. G-ral. Haralambie Nicolae, Nr. 38, Sector 4, Bucuresti |
| 4. | Melba - Centru Educational Bucuresti | 0722461015 | Str. Lanariei, Nr. 117 , Sector 4, Bucuresti |
| 5. | Big Smile - Gradinita, scoala primara, After School Bucuresti | 0722557333 | Str. Cutitul de Argint, nr. 74, sector 4, Bucuresti |
| 6. | Casuta cu ferestre - Gradinita Bucuresti | 0721660052 | Str. Gheorghe Lupu, nr. 19, sector 4 |
| 7. | Scufita Rosie - Gradinita sector 4 | 0766541207 | Calea Serban Voda, nr. 170 , sector 4 |
| 8. | Genius Academy - Cresa, Gradinita , Scoala Primara si After School Bucuresti | 0724111678; 0744638435 | Calea Serban Voda, nr. 145, sector 4 |
| 9. | Jolly Pepe - Club educational pentru copii si adulti, Before&After School sector 4 | 0748080088 | Str. Mitropolit Grigore, nr. 4A, parter, sector 4 |
| 10. | Maria Ward - Gradinita sector 4 | 0722789787 | Calea Serban Voda, nr. 223, sector 4 |
| 11. | Gradinita Nr. 168 sector 5 | 0213363515 | Sos. Viilor, nr. 99, sector 5 |
| 12. | Clubul Boreal, Gradinita - Bucuresti | 0721124249 | Str. Valerian Prescurea, Nr. 5, Sector 4, Bucuresti |
| 13. | Gradinita nr. 269 sector 5 | 0213354544 | Str. Constantin Miculescu, nr. 12, sector 5 |
| 14. | Copii de Poveste - Gradinita sector 4 | 0740051582 | Str. Poterasi, nr. 5, sector 4 |
| 15. | Copil Dorit - Gradinita Bucuresti | 0736820068; 0722166358 | Sos. Viilor, Nr. 33, Sector 5, Bucuresti |
| 16. | Lumea lui Momo - Gradinita Bucuresti | 0748055255 | Str. Ipotesti, Nr. 23, Sector 4 |
| 17. | Ana Lugojana - Gradinite, Scoala Primara, Gimnaziala si After School Bucuresti | 0724342409 | Str. Constantin Miculescu, nr. 10, sector 5, Bucuresti |
| 18. | Roxy Baby - Cresa Particulara Bucuresti | 0314254309; 0723274924 | Str. Slobozia, Nr. 29 , Sector 4, Bucuresti |
| 19. | Licurici - Gradinita sector 4 | 0314377556; 0767503191 | Str. Cuza Voda, nr. 141 A, Sector 4 |
| 20. | Gradinita nr. 30 sector 4 | 0213362078 | Bd. Dimitrie Cantemir, nr. 16A, Sector 4 |
| 21. | Centrul Social Multifunctional Cresa Scufita Rosie sector 4 | 0733200109; 0372874267; 0372715100, 0372715101 | Aleea Tohani, nr. 1, bl.30, sc. 1, parter, sector 4 |
| 22. | Buna Vestire - Gradinita, After School sector 4 | 0787435172 | Str. Episcopul Chesarie, nr. 9, Sector 4 |
| 23. | Children\'s Joy, Gradinita & After School - Bucuresti | 0731258277; 0754317732 | Str. Gramont, Nr. 3, Sector 4, Bucuresti |
| 24. | Centrul multifunctional Cresa Craiasa Zapezii sector 4 | 0371360117; 0371360127 | Str. Oitelor, nr. 50, sector 4 |
| 25. | Ray of Light Montessori - Gradinita, Bucuresti | Str. Gladiolelor, Nr. 15, sector 4 | |
| 26. | PRO Academy Afterschool | 0744501156 | Str. Sibiel, nr. 6, Sector 4 |
| 27. | Micii Poznasi - Cresa, Gradinita Bucuresti | 0725911233 | Calea Serban Voda, Nr. 22-24, Sector 4 |
| 28. | Pisicile Aristocrate - Gradinita sector 4 | 0213350635; 0213363680 | Bd. Regina Maria, nr. 28-30, Sector 4 |
| 29. | Prikindel - Cresa, Gradinita & After School - Bucuresti | 0314059269; 0722522198 | Str. Sf. Ilie, nr. 5, sector 4, |
| 30. | Centrul Educational Nordic sector 4 | 0786391446 | Splaiul Unirii, Nr. 176, Corp D3, Sector 4 |
| 31. | Electromagnetica - Gradinita sector 5 | 0218915699; 0214232110 | Calea Rahovei, nr. 266, sector 5 |
| 32. | Max und Moritz Kinder - Gradinita limba germana & After School Bucuresti | 0726374434 | Str. Plugarilor, Nr. 24, Sector 4, Bucuresti |
| 33. | Gradinita nr. 54 sector 5 | 0214231217 | Calea Ferentari, nr. 96, sector 5 |
| 34. | Dreamland - Gradinita Bucuresti | 0787521511 | Str. Plugarilor, nr. 20-22, Sector 4, Bucuresti |
| 35. | Puisor - Gradinita Nr. 268 Bucuresti | 0214104010 | Str. Ion Creanga, Nr. 8, Sector 5, Bucuresti |
| 36. | Palatul Copiilor - Gradinita, After School sector 3 | 0740673742; 0314251635 | Str. Morilor, Nr. 19, sector 3 |
| 37. | Evia Kids Afterschool Bucuresti | 0734464388 | Str. Bradetului, nr. 7, sector 4 |
| 38. | Gradinita nr. 205 sector 5 | 0214233610 | Calea Ferentari, nr. 2, sector 5 |
| 39. | Sfantul Nicolae, Gradinita & After School - Bucuresti | 0729611918 | Str. Sirenelor, Nr. 56-58, Sector 5, Bucuresti |
| 40. | Castelul Bucuriei - Gradinita Bucuresti | 0730515181 | Str. Vasile Voiculescu, nr. 30, sector 3 |
| 41. | Mell - Gradinita cu Program Normal sector 3 | 0744564426; 0722958683 | Str. Vlad Dracu, nr. 43, sector 3 |
| 42. | Zoom Kids Academy - Afterschool Sector 4 | 0756155660 | Str. Stejarisului, nr. 13, Sector 4 |
| 43. | Family Kids, Gradinita si After School - Bucuresti | 0722565657; 0723281551 | Str. Mugur Mugurel, Nr. 21, Sector 3, Bucuresti |
| 44. | Centrul Multifunctional Cresa Dumbrava Minunata sector 4 | 0733200115; 0372715100; 0372715101 | Str. Stoian Militaru, nr. 84, sector 4 |
| 45. | Ciupercuta - Gradinita sector 4 | 0213324431 | Str. Stoian Militaru, nr. 86-90, sector 4 |
| 46. | Martisor AfterSchool sector 4 | 0727017553 | Str. Cararuia, nr. 1, sector 4 |
| 47. | Kids Palace - Gradinita & After School Bucuresti | 0722612031 | Str. Obolului, Nr. 10, Sector 4, Bucuresti |
| 48. | Top Kids - Gradinita sector 5 | 0214237723; 0737215703 ; 0764392790 | Str. Sergent Gheorghe Donici, Nr. 26-28, Sector 5 |
| 49. | Teddy Club - Club educational , After school Bucuresti | 0732138368; 0723188995 | Str. Duminicii, nr. 16, sector 4 |
| 50. | Gradinita nr. 262 Alba ca Zapada si Piticii sector 4 | 0213324435 | Str. Crisul Alb, nr. 30, sector 4 |
| 51. | Gradinita cu Program Normal si Prelungit nr. 242 sector 5 | 0214502538 | Str. Magurei, nr. 8, sector 5 |
| 52. | WhizKidz Hub - Afterschool, Centru educational Bucuresti | 0742602260 | Str. Gradinarilor, nr. 14, Sector 3 |
| 53. | Lauder-Reut Kindergarten - Gradinita Bucuresti | 0318055772; 0723098800; 0735505395 | Str. Iuliu Barasch, Nr. 15, Sector 3, Bucuresti |
| 54. | Sarida Kids Club - Prescolari, After school, Scoala de vara, Cursuri, Bucuresti | 0726528844; 0760132301 | Str. Crisul Alb, Nr. 9-13, Sector 4, Bucuresti |
| 55. | Club Clever Kids - After School sector 4 | 0723791058 | Str. Preda Buzescu, nr. 12, Sector 4 |
| 56. | Elefantelul curios- Afterschool & more, sector 4 | 0767332115; 0727222015 | Bd. Constantin Brancoveanu, Nr. 7D, sector 4 |
| 57. | Rainbow Kids - Gradinita si scoala primara Bucuresti | 0737081690; 0773349170 | Str. Ion Dragalina, Nr. 8, Sector 5, Bucuresti |
| 58. | Martisor - Gradinita sector 4 | 0213325936 | Str. Daracului, Nr. 11, Sector 4 |
| 59. | Gradinita Nr.161 (Brandusa) sector 3 | 0314250834; 0314250835 | Str. Branduselor, Nr. 37/43, sector 3 |
| 60. | Gradinita Nr. 178 Flori de Tei sector 5 | 0214234065 | Str. Iancu Jianu, Nr. 26, Sector 5 |
| 61. | Copacelul Vietii - Gradinita Bucuresti | 0721464185 | Str. Radu Calomfirescu, nr. 9, sector 3 |
| 62. | Mihai Ionescu - Gradinita, Scoala, Liceu Bucuresti | 0213235495 | Str. Parfumului, Nr. 31, Sector 2, Bucuresti |
| 63. | Clubul Micul Print - afterschool Bucuresti | 0733750795 | Str. Dr. Nicolae Staicovici, Nr. 51, Sector 5, Bucuresti |
| 64. | Little Team - Gradinita / After School Bucuresti | 0799774767 | Calea 13 Septembrie, nr. 191, sector 5 |
| 65. | Step Up After School | 0723795703; 0723544019 | Str. Vultureni, nr. 85, Sector 4 |
| 66. | Gradinita nr. 34 sector 5 | 0214504937 | Str. Lacul Bucura, nr. 26, Sector 5 |
| 67. | Gradinita nr. 73 sector 5 | 0213154355 | Splaiul Independentei, nr. 68, sector 5 |
| 68. | Gradinita nr. 72 sector 5 | 0214233920 | Str. Sergent Scarlat, nr. 19, sector 5 |
| 69. | Dora - gradinita particulara, After School Bucuresti | 0740156885; 0744644705 | Str. Farului, nr. 3, sector 4, Bucuresti |
| 70. | Gargarita - Gradinita sector 4 | 0744393654 | Str. Dumbr?veni, nr. 35, Sector 4, judetul Brasov |
| 71. | Legolas - Centru Educational sector 3 | 0787322298; 0787460258; 0787298295 | Str. Nucului, nr. 55, sector 3 |
| 72. | Kids Power - Centru educational holistic pentru copii Bucuresti | 0741248260 | Str. Nucului, nr. 55, sector 3 |
| 73. | Taramul Cunoasterii - Cresa si Gradinita Bucuresti | 0724278826 | Str. Ioan G. Bibicescu, Nr. 11, Sector 1, Bucuresti |
| 74. | Asociatia Conil - Gradinita pentru copii cu nevoi speciale Bucuresti | 0784412222; 0217466704; 0735847526 | Str. Dr. Victor Poloni , nr 14, Sector 5, Bucuresti |
| 75. | Copiii Montessori - Gradinita sector 3 | 0721204642 | Str. Labirint, nr. 95, Sector 3 |
| 76. | My Universe - Afterschool si gradinita, Bucuresti | 0788416164 | Str. Costache Negri, Nr. 9-11, sector 5 |
| 77. | Ina School - Gradinita si scoala primara, Bucuresti | 0722500899 | Str. Lacul Gorgova, nr. 2, Sector 2 |
| 78. | Alexandra Kids, Gradinita, After School - Bucuresti | 0722151836; 0214206927 | Str. Petre Ispirescu, Nr. 69, Sector 5, Bucuresti |
| 79. | Casuta Fermecata - Gradinita sector 5 | 0214562082; 0214562083 | Str. Amurgului, nr. 2, sector 5 |
| 80. | Just4Kids - Scoala Gimnaziala cu nivel gimnazial, primar si prescolar Bucuresti | 0739674601 | Str. Vantului, Nr. 27, Sector 3, Bucuresti |
| 81. | Prichindel, Gradinita & After School - Bucuresti | 0216861856; 0745022748 | Str. Grigore Voda, Nr. 28, Sector 4, Bucuresti |
| 82. | Aron\'s Education Center - Gradinita si After School, Bucuresti | 0734709613 | Str. Luminoasa, Nr. 8, sector 4, Bucuresti |
| 83. | Adnan, Gradinita - Bucuresti | 0744606010; 0722205243 | Intr. Buturugeni, Nr. 7 Sector 5, Bucuresti |
| 84. | Central Art Studio - After School/Cursuri Pentru Copii/Scoala de Vara Bucuresti | 0745633737; 0765454244 | Str. Popa Soare, nr. 29, sector 2 |
| 85. | Teach Little People - Centru educational, Bucuresti | 0727401433 | Str. Alexander von Humboldt, nr. 2, sector 3 |
| 86. | Don Quijote - Afterschool Bucuresti | 0725737793 | Str. Ioan Slavici, nr. 4, sector 1 |
| 87. | Micul Lord Gradinita - Bucuresti | 0730093603; 0745101507 | Str. Lespezi, nr. 4 , sector 5, |
| 88. | Sf. Imparati Constantin si Elena, Gradinita Bucuresti | 0722237110; 0722293056; 0213261361 | Str. Labirint, Nr. 137 B , Sector 3, Bucuresti |
| 89. | Montessori Edu - Centru educational, Bucuresti | 0721833901 | Str. Mantuleasa, nr. 21, sector 2 |
| 90. | Iuladi Kids - Cresa, gradinita Bucuresti | 0769088777 | Str. Breaza, Nr. 78, Sector 3 |
| 91. | Gradinita nr. 244 sector 5 | 0723919980; 0214234008; 0769 444 163 | Str. Humulesti, nr. 31, sector 5 |
| 92. | Bufnita din Tei - Club de educatie nonformala si activitati recreative | 0751020362 | Str. Sg. Nitu Vasile, nr. 26, Sector 4 |
| 93. | Edu Friends - Before & After School Bucuresti | 0783080096 | Str. Berzei, Nr. 5, Sector 1 |
| 94. | Gradinita Floarea Soarelui sector 5 | 0214202148 | Str. M?rgeanului, nr. 81, sector 5 |
| 95. | Centrul social multifunctional cresa Degetica sector 4 | 0733200060 | Aleea Mirea Mioara Luiza, nr. 1A, sector 4 |
| 96. | Aurora - Gradinita & After School sector 3 | 0744317320; 0213224168 | Str. Moise Nicoar?, nr. 9-11, sector 3 |
| 97. | Academia Fantastica - Gradinita, Before & After School sector 3 | 0731027321; 0723337393; 0213065370 | Str. Moise Nicoara, Nr. 7, Sector 3 |
| 98. | Plusica - Gradinita & Afterschool sector 3 | 0768596856 | Str. Drumeagului, nr. 51, sector 3 |
| 99. | Capsunica - Gradinita sector 3 | 0765516162 | Str. Constantin Nottara, nr. 27, sector 3 |
| 100. | Arlechino & Friends - Gradinita si afterschool - Bucuresti | 0723264032; 0749028820; 0213260584 | Str. Cezar Boliac, Nr. 22-24, Sector 3, Bucuresti |
| 101. | Kinderium - Before & After School Bucuresti | 0726177868 | Drumul Sarii, nr. 4A, sector 6 |
| 102. | Little Princess 1 - Cresa, Gradinita Bucuresti | 0756070390; 0744321574; 0744703973 | Str. Popa Stoica Farcas, Nr. 64-66, Sector 3, Bucuresti |
| 103. | Gradinita MAPN Nr. 2 Bucuresti | 0213156889 | Str. Constantin Cristescu, nr. 5, sector 1 |
| 104. | Gradinita nr. 53 sector 5 | 0214232145 | Aleea Bacau, nr. 2A, sector 5 |
| 105. | Piticot - Gradinita sector 4 | 0214503827 | Str. Spinis, nr. 1, sector 4 |
| 106. | Centrul Social Multifunctional Cresa Micii Magicieni sector 4 | 0371360128 | Str. Izvorul Muresului, nr. 4 |
| 107. | Noel - Gradinita & After School Bucuresti | 0728459857; 0725839363 | Str. Trifoi, Nr. 10, Sector 3, Bucuresti |
| 108. | Iilo - Gradinita & After School Bucuresti | 0720702910 | Str. Iarba Campului, Nr. 4, Sector 4, Bucuresti |
| 109. | Kiga 99 Luftballons - Gradinita, After School in limba germana Bucuresti | 0722395197; 0745423467 | Str. Theodor Sperantia, nr. 81, sector 3 |
| 110. | Gradinita nr. 225 Veseliei sector 4 | 0214502917; 0214502915 | Str. Izvorul Muresului, nr. 6, sector 4 |
| 111. | Waldorf Christophori - Gradinita Bucuresti | 0770861602 | Str. Putul cu Plopi, Nr. 8, (langa Parcul Cismigiu) - sector 1, Bucuresti |
| 112. | Gradinita nr. 245 sector 5 | 0214237424 | Str. Tunsu Petre, nr. 9, sector 5 |
| 113. | Happy Planet Kids - Gradinita Bucuresti | 0214106984; 0722319863; 0740843914 | Str. Lt. Col. C-tin Marinescu, Nr. 17B, Sector 6, Bucuresti |
| 114. | Bambi Step by Step- Gradinita Bucuresti | 0213273256; 0317102928 | Str. Gh. Dem Teodorescu, Nr.16 bis, Sector 3, Bucuresti |
| 115. | Abcdino, Gradinita - Bucuresti | 0213231070; 0725929616; 0745397739 | Str. Chiparosului, Nr. 31, Sector 3, Bucuresti |
| 116. | Mica Printesa - Gradinita, after school Bucuresti | 0744321574; 0744703973 | Str. Vulcan Judetu, nr. 16, sector 3, |
| 117. | Little Princess 2 - After School / Before School Bucuresti | 0744703973; 0744321574; 0756070390 | Str. Vulcan Judetu, Nr. 16, Sector 3, Bucuresti |
| 118. | Gradinita Nr. 203 Bucuresti | 0213112352 | Str. C. A. Rosetti, nr. 32, Sector 1 |
| 119. | Gradinita Magica, Bucuresti | 0765221341; 0723892378 | Str. Stefan Mihaileanu, Nr. 33, Sector 2, Bucuresti |
| 120. | Gradinita nr. 271 sector 5 | 0214109024 | Bd. Eroii Sanitari, nr. 77, sector 5 |
| 121. | Acorns British Style Nursery, Gradinita & After School, Bucuresti | 0722476581; 0788418186 | Str. Popa Soare, Nr. 63, Sector 2, Bucuresti |
| 122. | Iepurasul Bocanila - Scoala si Gradinita sector 4 | 0722320773; 0722239508; 0214602246 | Str. Iarba Campului, nr. 91, sector 4, judetul Brasov |
| 123. | Gradinita nr. 185 sector 5 | 0214200667; 0214205180 | Str. Garoafei, nr. 12, sector 5 |
| 124. | Betty-Mar House - After / Before School, Bucuresti | 0732871827 | Str. Otescu Ion Nonna, nr. 23, sector 6 |
| 125. | Sincron - Gradinita, After School Sector 3 | 0722243877 | Calea Vitan, nr. 206, sector 3 |
| 126. | Miro Kids World - Cresa, gradinita Bucuresti | 0767331173; 0756199161 | Str. Miroslavei, nr. 9, Sector 5 |
| 127. | Olga Gudynn, Gradinita si Scoala Cotroceni - Bucuresti | 0734411332; 0214106995 | Str. Fagaras, Nr. 6, Sector 1, Bucuresti |
| 128. | Puiutul Pufos - Gradinita Bucuresti | 0740140968; 0213440010 | Str. Emanoil Marius Buteica, Nr. 30, Sector 3, Bucuresti |
| 129. | Cresa Ariel si Aurora sector 5 | 0314257817; 0736500528 | Str. Baciului, nr. 5A, sector 5 |
| 130. | Gradinita Nr. 35 sector 5 | 0214207995 | Str. Crizantemelor, nr. 2, sector 5 |
| 131. | WonderKids - Centru Educational Bucuresti | 0724258876 | Str. Crizantemelor, Nr. 7 sector 5 |
| 132. | Fridolin - Gradinita, Scoala Germana Bucuresti | 0723219616; 0723584872 | Str. Temisana, Nr. 1, Sector 1, Bucuresti |
| 133. | Paradisul Verde - Gradinita sector 5 | 0214232570 | Str. Pucheni, nr. 55, sector 5 |
| 134. | Bulgarasi de Aur - Before & After School Bucuresti | 0723398829 | Str. Cogalnic, nr. 30, sector 3 |
| 135. | Gradinita nr. 62 sector 4 | 0214500678; 0314254684 | Str. Almasul Mic, nr. 2, sector 4 |
| 136. | Marchengarten - Gradinita cu predare bilingva sector 6 | 0744378796 | Str. G-ral Ioan Culcer, nr. 49, sector 6 |
| 137. | Castelul Fermecat Olimpia - Gradinita, scoala primara, Afterschool, Bucuresti | 0731680372 | Drumul intre Vii, Nr. 24, Sector 3, Bucuresti |
| 138. | OLIMPIA KIDS - gradinita particulara, cresa si after school Bucuresti | 0731680372 | Drumul intre Vii, Nr. 24, Sector 3 |
| 139. | Maria International School - Gradinita, Scoala primara si afterschool Bucuresti | 0730432092 | Str. Piata Amzei, Nr. 6, Sector 1, Bucuresti |
| 140. | Kindi - Centru de educatie timpurie Montessori, Bucuresti | 0726876873 | Str. Delea Veche, Nr 35, sector 2 |
| 141. | Bob de Grau, Gradinita si Cresa - Bucuresti | 0720446942 | Str. Agricultori, Nr. 142, Sector 3, Bucuresti |
| 142. | Gradinita Nr. 239 sector 3 | 0213245490 | Str. Dristorului, nr. 102, sector 3 |
| 143. | ERA Kinderland - Gradinita, after school in limba germana sector 3 | 0728850073; 0213207697 | Str. Dristorului, nr. 67, sector 3 |
| 144. | Gradinita nr. 4 sector 4 | 0214500079 | Str. Cetatea Veche, nr. 1, sector 4 |
| 145. | Gradinita Happy Junior - Bucuresti | 0724229250; 0730309647 | Sos. Berceni, Nr. 8, Sector 4, Bucuresti |
| 146. | Gradinita Nr. 257 Alice sector 2 | 0212114524 | Str. Alexandru Donici, Nr. 23, sector 2 |
| 147. | Gradinita Insir\'te Margarite (nr. 243) sector 4 | 0214503452 | Str. Alma?u Mare, Nr. 1, sector 4 |
| 148. | Discover Me- Gradinita Bucuresti | 0747774809 | Str. Constantin Noica, Nr. 120, sector 6, Bucuresti |
| 149. | Floare Albastra - Gradinita Bucuresti | 0214610591; 0214500053 | Str. Lamotesti, nr. 10, sector 4, |
| 150. | Kinderträume - Gradinita Bucuresti | 0744507988 | Splaiul Independentei, Nr. 195, sector 6, Bucuresti |
| 151. | Bell - Gradinita, Afterschool Bucuresti | 0728694516 | Str. Mecet, Nr. 53, Sector 2 |
| 152. | Smart Steps - Gradinita , After School sector 3 | 0733965133 | Str. Dristorului, nr. 91-95, bl. E, Parter, sector 3 |
| 153. | Gradinita Nr. 255 sector 3 | 0213462996; 0213462994 | Bd. Energeticienilor, Nr. 3, sector 3 |
| 154. | Ioanid - Gradinita Bucuresti | 0758054441 | Str. Polona, Nr. 4, Sector 1, |
| 155. | Gradinita M.Ap.N. nr. 1 sector 6 | 0213196009; 0766298724 | Calea Plevnei, nr. 137B, sector 6 |
| 156. | Centrul Educational Fecioara Maria - Cresa, Gradinita Bucuresti | 0799741474; 0770574645 | Str. Eufrosina Popescu, Nr. 30, Sector 3, Bucuresti |
| 157. | Gradinita Nr. 133 sector 2 | 0212116749 | Str. Aurel Vlaicu, nr. 30 - 32, sector 2 |
| 158. | Cresa Sf. Stelian sector 5 | 0214205630; 0736500544 | Str. Leresti, nr. 22, sector 5 |
| 159. | Oxigen Sport - Befor School, After School Bucuresti | 0722529429 | Str. Duzilor, Nr. 23, sector 2, Bucuresti |
| 160. | Gradinita Dumbrava Minunata (nr 193) sector 4 | 0214608287 | Aleea Terasei, nr. 8, sector 4 |
| 161. | Little Oaks Academy - Gradinita sector 3 | 0766572126; 0766572127 | Sos. Mihai Bravu, Sos. Mihai Bravu nr. 286, sector 3 |
| 162. | Dani\'s Children, Cresa, Gradinita, After School - Bucuresti | 0721800099 | Str. Silvestru, Nr. 42, Sector 2, Bucuresti |
| 163. | Puzzle Edu Center - Centru educational sector 2 | 0724536293 | Str. Gheorghe Pop de Basesti, nr. 17, Sector 2 |
| 164. | Licurici - Gradinita Bucuresti | 0212104790 | Bd. Dacia, Nr. 134, Sector2, Bucuresti |
| 165. | Kinderakademie - Gradinita & After School Bucuresti | 0724661760; 0727427004 | Str. Sfintii Voievozi, Nr. 28, Sector 1, Bucuresti |
| 166. | International Kindergarten & Nursery - Gradinita Bucuresti | 0723248978; 0314327798 | Str. Claudiu, Nr. 26, Sector 2, Bucuresti |
| 167. | Gradinita Floare de colt (nr. 64) sector 3 | 0213464899 | Str. Schitului, nr. 1D, sector 3 |
| 168. | Once Upon a Time - Centrul educational adlerian Bucuresti | 0770590487 | Str. Ciobanasului, Nr. 22A, Sector 2 |
| 169. | Gradinita Montessori Livada cu copii sector 2 | 0757467127; 0721204642 | Str. Toamnei, nr. 76-78, sector 2 |
| 170. | Cresa Ciobanasului | 0213223085 | Str. Ciobanasului, nr. 23, sector 2, |
| 171. | Iris Smart - After, Before School Bucuresti | 0765263865 | Str. Pucheni, nr.123 A , Sector 5 |
| 172. | Castelul Fermecat - Gradinita, After School Bucuresti | 0745770001; 0752314458; 0765957032 | Drumul Murgului, Nr. 32, Sector 3, Bucuresti |
| 173. | Iepurasul cel Istet - Cresa, Gradinita, After School sector 2 | 0731488715; 0722121779 | Str. Mihai Eminescu, nr. 179, sector 2 |
| 174. | Gradinita nr. 24 sector 3 | 0213441760 | Str. Locotenent Pascu Nicolae, nr. 12, sector 3 |
| 175. | Little Star - Gradinita, After School sector 3 | 0745531279; 0724506631 | Str. Alexandru Magatti, nr. 13 A , sector 3 |
| 176. | Colt de Rai - Gradinita sector 6 | 0217965203; 0752645946 | Str. Garleni, Nr. 10, Sector 6 |
| 177. | Sonnenblume Kinderinstitut - Gradinita, Cresa Montessori Bucuresti | 0726471469 | Str. Calusei, nr. 36, sector 2 |
| 178. | Montessima Educational - Afterschool zona Iancului, Bucuresti | 0771421104 | Str. Constantin Zlatescu, nr. 12, sector 2 |
| 179. | Corina Club - After School Bucuresti | 0744353015; 0766332833 | Str. Garleni, Nr. 11A, Sector 6, Bucuresti |
| 180. | Don Castor, Gradinita & After School - Bucuresti | 0757073929; 0217945396 | Str. Vaselor, Nr. 17A, Sector 2, Bucuresti |
| 181. | Smart Kinder Villa - Before & After School Bucuresti | 0726285699; 0728472197 | Str. Nicolae Beldiceanu, nr. 2, sector 1 |
| 182. | Gradinita nr. 264 101 Dalmatieni sector 4 | 0214608206; 0732723053 | Str. Aliorului, nr. 5, sector 4 |
| 183. | Garmy Kids - Gradinita si After School Bucuresti | 0311060294; 0745342225; 0734784673 | Sos. Vitan Birzesti, Nr. 7D-7E, sector 4 |
| 184. | Universul Zambetelor - Gradinita si Cresa Bucuresti | 0765410512 | Str. Lunca Dunarii, nr. 7, sector 3 |
| 185. | Kids\' World Nursery School - Gradinita Bucuresti | 0771242641 | Bd. Basarabia, Nr. 2, Sector 3 |
| 186. | Gradinita Strop de Roua nr. 199 sector 4 | 0214610336 | Str. Emil Racovita, nr. 23, Sector 4 |
| 187. | Zum Zum - Gradinita Bucuresti | 0745685556; 0740704922 | Str. Vespasian, Nr. 37, Sector 1, Bucuresti |
| 188. | Hands-On - Centru educational Bucuresti | 0725977815 | Bd. Iuliu Maniu, nr. 7, Cotroceni Business Center, Corp U, parter, sector 6 |
| 189. | Cei Trei Muschetari - Before si After School, Bucuresti | 0724384924 | Str. Vaselor, Nr. 40, Sector 2, Bucuresti |
| 190. | Gradinita Nr. 111 sector 6 | 0214135161 | Str. Sibiu, Nr. 8, Sector 6 |
| 191. | Centrul Social Multifunctional Cresa Mica Sirena sector 4 | 0371360124; 0733200077 | Aleea Emil Racovita, nr. 2B, sector 4 |
| 192. | Gradinita nr. 3 - sector 3 | 0213464112 | Str. Plt. Nedelcu Ion, Nr. 31, sector 3 |
| 193. | Alfred Fronius - Gradinita si afterschool in limba germana Bucuresti | 0729699619; 0726715499 | Str. Tunari, Nr. 39, Sector 2, Bucuresti |
| 194. | Scoala Italiana Aldo Moro - Gradinita,scoala, liceu, Bucuresti | 0212104684 | Intr. Blaj, nr. 1, Sector 1, Bucuresti |
| 195. | Alfred Fronius - Gradinita si afterschool in limba germana Bucuresti | 0372978427; 0726715499 | Str. Tunari, Nr. 39 (zona Stefan Cel Mare), sector 2 |
| 196. | Orhideea Kids - Gradinita & After School Bucuresti | 0748595311 | Calea Plevnei, Nr. 145B, sector 1, Bucuresti |
| 197. | Gradinita Nr. 252 Bucuresti | 0212302296 | Calea Dorobantilor, nr. 60, sector 1 |
| 198. | Castelino Baby - Gradinita Bucuresti | 0731995600 | Str. Prof. Ion Ursu, nr. 21, sector 2, |
| 199. | Nicoland - Cresa, Gradinita Bucuresti | 0766237114 | Str. Raspantiilor, Nr. 7, Sector 2 |
| 200. | Gradinita nr. 41 sector 6 | 0214134988 | Str. Constantin Titel Petrescu, nr. 12, sector 6 |
| 201. | Cartea cu Povesti - Gradinita Bucuresti | 0766237114 | Str. Aurel Vlaicu, nr. 127A, sector 2, |
| 202. | Mami si Tati - Gradinita, Before & After School Bucuresti | 0721177543; 0762616442 | Str. Grigore Alexandrescu, Nr. 58, sector 1, Bucuresti |
| 203. | Pick Me Academy - Gradinita si scoala, Bucuresti | 0726000640 | Str. Slt. Pompiliu Manoliu, Nr. 7,Sector 2, Bucuresti |
| 204. | Piccolo Grande - After School, loc de joaca sector 3 | 0754200258 | Intr. Patinoarului, nr. 52, Sector 3 |
| 205. | A&M afterschool Bucuresti | 0723371319 | Bd. Camil Ressu, Nr. 33, bl. N4, sc. 1, ap. 4, int. 4, sector 3, |
| 206. | Tom Sawyer - Gradinita sector 2 | 0722529958 | Str. Bratului, nr. 14, sector 2 |
| 207. | Dumbo Kids Academy - Cresa, Gradinita, Before & After School sector 3 | 0722320023 | Intr. Patinoarului, nr. 42A, sector 3 |
| 208. | CoolTure MindS - After School Bucuresti | 0743359307 | Bd. Alexandru Ioan Cuza, nr. 37, Sector 1 |
| 209. | Gradinita nr. 138 sector 2 | 0212106377 | Str. Tunari, nr. 52, sector 2 |
| 210. | Clubul Copiilor Sector 2 - Bucuresti | 0212106432 | Intr. Cobilitei, Nr. 8, Sector 2, Bucuresti |
| 211. | Gradinita nr. 149 sector 4 | 0214610838 | Aleea Stupilor, nr. 5, sector 4 |
| 212. | Luminita - Gradinita sector 2 | 0212503180 | Sos. Iancului, nr. 4A, sector 2 |
| 213. | LTN Liceul Teoretic National - Gradinita, Gimnaziu, Liceu - Bucuresti | 0720000171; 0732151931 | Str. Dr. Iacob Felix, nr. 49, Sector 1, Bucuresti |
| 214. | Gradinita nr. 274 sector 6 | 0213163345 | Bd. Iuliu Maniu, nr. 11D, sector 6 |
| 215. | After School Casuta Piticilor - Drumul Taberei, Militari | 0720548870; 0723230720 | Str. Sg. Maj. Alexandru Postolache, nr. 22, sector 6 |
| 216. | Saga Kid - After School sector 3 | 0743266500; 0756169135 | Str. Campia Libertatii, nr. 44, sector 3, |
| 217. | KeiKo AfterSchool Bucuresti | 0748880866 | Str. Magura Vulturului, nr. 6, Sector 2 |
| 218. | Little Primary Education - Gradinita Bucuresti | 0733331333 | Intr. Docherilor, Nr. 3, Sector 2 |
| 219. | Gradinita nr. 206 - Gradinita cu program prelungit Bucuresti | 0212229287 | Str. Constantin Disescu, nr. 37, sector 1 |
| 220. | Smiley After School sector 2 | 0727401829 | Bd. Basarabia, nr. 62A, sector 2 |
| 221. | Cresa Pinochio (Cresa Drumul Taberei) sector 6 | 0376203313; 0376203312 | Aleea Compozitorilor, nr. 20, sector 6 |
| 222. | Centrul Educational Nectarel - Afterschool Bucuresti | 0740221854 | Str. Baba Novac, nr. 17, sector 3 |
| 223. | Paglia - After School sector 4 | 0745209769 | Intr. Gilaului, nr. 5, Sector 4 |
| 224. | Creative Minds Kindergarten - Gradinita Bucuresti | 0726152551 | Str. Alexandru Deparateanu, nr. 38, sector 1 |
| 225. | Gradinita Nr. 256 Bucuresti | 0212506222 | Str. Atanase Ionescu, Nr. 25, Sector 2 |
| 226. | Kids First - Gradinita Bucuresti | 0748880866; Varnavelena@gmail.com | Str. Sica Alexandrescu, nr. 20, Sector 2, |
| 227. | Arc-en-Ciel, Gradinita - Bucuresti | 0212524665; 0725519386; 0726126808 | Str. Ion Heliade Radulescu, Nr. 18, Sector 2, Bucuresti |
| 228. | Clopotel - Gradinita Bucuresti | 0212502197 | Str. Elev Dridu Georgescu, nr. 2, sector 2 |
| 229. | Letitia - After school sector 3 | 0733919066; 0722882558 | Str. Baba Novac, nr. 19A,Belvedere Residence, sector 3 |
| 230. | Land of Kids Afterschool sector 2 | 0766831831; 0726733314 | Str. Constantin Tanase, Nr. 22, Sector 2 |
| 231. | Gradinita Nr. 248 Bucuresti | 0212224120 | Str. Artur Vartejeanu, Nr. 15, Sector 1 |
| 232. | Aristokids, Gradinita & After School - Bucuresti | 0722648885 | Str. Lebedei, Nr. 25, Sector 1, Bucuresti |
| 233. | Dandi Kids, Gradinita & After School - Bucuresti | 0726758303 | Str. Rasovita, Nr. 18, Sector 3, Bucuresti |
| 234. | Gradinita nr. 57 Hillary Clinton sector 6 | 0214133928 | Aleea Pravat, nr. 16, sector 6 |
| 235. | Oskar - Before and After School Piata Victoriei | 0730948470 | Str. Monetariei, Nr. 14, Sector 1, Bucuresti |
| 236. | Super Start - Gradinita, After School sector 2 | 0720528738 | Bd. Ferdinand I, nr. 156, Sector 2 |
| 237. | City Kids - Gradinita si afterschool Bucuresti | 0756862825 | Str. Ruschita, Nr. 41, sector 2 |
| 238. | Gradinita nr. 272 sector 6 | 0311070199; 0214133878 | Bd. Timisoara, nr. 39, sector 6 |
| 239. | Funny Clown, Gradinita & After School - Bucuresti | 0740806356 | Str. Ruschita, Nr. 41, Sector 2, Bucuresti |
| 240. | Oskar - Before&After School Bucuresti | 0734040227; 0730948470 | Str. Monetariei, nr. 12, sector 1 |
| 241. | Rosa Zangara - Gradinita sector 6 | 0760505738 | Drumul Taberei, nr. 38A, sector 6 |
| 242. | Sapte Ani - Gradinita, After School Bucuresti | 0762259115; 0762259116 | Drumul Gilaului, nr. 7E, sector 4 |
| 243. | Maria Montessori Home - Gradinita si cresa, Ilfov | 0722599234 | Str. Vartejului, Nr. 7A, Voluntari, judetul Ilfov |
| 244. | Pitiricky - Clubul celor mici - Bucuresti | 0724648513 | Str. Ialomicioarei, Nr. 13, Sector 1, Bucuresti |
| 245. | Praslea cel Voinic - Gradinita & After School Bucuresti | 0722773103; 0733839824 | Str. Competitiei, Nr. 38, Sector 2, Bucuresti |
| 246. | Tic-Pitic, Gradinita & After School - Bucuresti | 0729119398; 0722769224; 0314377383 | Str. Cap. Costescu Petre, Nr. 26, Sector 4, Bucuresti |
| 247. | Monteclaris - Gradinita, before si afterschool Bucuresti | 0724671560; 0784606075 | Str. Maria Hagi Moscu, Nr. 29, Sector 1 |
| 248. | Lumea Cocoricilor - Centru educational Bucuresti | 0728855236 | Intrarea Balaci, nr. 9-11, sector 4 |
| 249. | Liebe Kinder - Gradinita, Bucuresti | 0785378672; 0726349658 | Str. Petre Costescu, Nr. 42, sector 4 |
| 250. | Gradinita din Povesti - Bucuresti | 0724987747 | Str. Costache Marinescu, Nr. 1A, Sector 1 |
| 251. | Gradinita nr. 71 sector 3 | 0213480894 | Aleea Fuiorului, nr. 9 , sector 3 |
| 252. | Happy Kids - Gradinita si after school Bucuresti | 0770708392 | Str. Scoala Floreasca, Nr. 3, Sector 1, Bucuresti |
| vezi mai multe | |||
| 1. | Societatea Civila Medicala Doctor Popescu Daniel si Asociatii | Tel/Fax 021.336.55.03 | Calea Serban Voda, nr. 211, sector 4 , |
| 2. | Marius Nasta, Institutul de Pneumoftiziologie Bucuresti | 0213356910; Fax 0213373801 | Sos.Viilor , nr. 90, sector 5 , |
| 3. | Marius Nasta, Institutul de Pneumoftiziologie + Ambulatoriu Bucuresti | 0213356910; 0213373801 | Sos.Viilor nr. 90, sector 5 , |
| 4. | Clinica Medicala On | .0213017676 | Bd. Dimitrie Cantemir nr. 1, bl. B2, sc. 3, et. 2, sector 4, |
| 5. | Podologica - Salon tratament pentru afectiunile picioarelor sector 4 | 0771458874 | Bd. Dimitrie Cantemir, nr. 15, bl.9, sc.6, sector 4, |
| 6. | Centrul Medical Proctoline-Bucuresti | 0213017686- programari | Bd. Dimitrie Cantemir , nr. 1, bl. B2, sc. 3, et. 2, sector 4, |
| 7. | Centrul Medical Psoremiss-Bucuresti | 0213017696 | Bd. Dimitrie Cantemir, nr. 1, bl. B2, sc. 3, et. 2, sector 4, |
| 8. | Clinica Life-Med-Bucuresti | 0319981 | Str. Plugarilor , nr. 18,sector 4, |
| 9. | Clinica Medicala Sfantul Spiridon Vechi-Bucuresti | 0213351378; 0213351379; 0787820066 | Piata Natiunilor Unite, nr 5-7, sector 4, Bucuresti |
| 10. | Centrul Medical Apolo- Bucuresti | Tel. 0214101770; 0214101615; 0744377034 | Str. Coriolan Caius Marcius, nr. 41 (lang? benzinaria MOL Tudor Vladimirescu), sector 5, |
| 11. | Omnia Medical Center - Clinica medicala, Bucuresti | 0213230034; 0728841841 | Bd. Octavian Goga, Nr. 14, Bl. M61, Parter, Sector 3, Bucuresti |
| 12. | Centrul de Diagnostic romano-german Medinst | 0319902 | Str.Sfanta Vineri, nr. 29, sector 3, |
| 13. | Institutul National de Recuperare, Medicina Fizica si Balneologie | Tel.0311302300 | Str. Sf. Dumitru, nr. 2 - ambulatoriu de recuperare clinica I si II, sector 3, |
| 14. | Euromedics Stem Life | 0800.800.855 (Apel gratuit); 021 311 55 92 | Str. Lipscani, Nr. 90A, et. 3, Sector 3 , |
| 15. | Policlinica Rahova-Bucuresti | 0214232080; 0214232081; 0214232082 | Str.Malcoci., nr. 4, sector 5 , Bucuresti |
| 16. | Spitalul Prof. Dr. Constantin Angelescu | 0213233040; 0213233041 | Aleea Cauzasi, nr. 49 - 51 sector 3, |
| 17. | SPITALUL PROF. DR. CONSTANTIN ANGELESCU | 0213233040; 0213233041 | Aleea Cauzasi, nr. 49-51, sector 3, |
| 18. | Policlinica Eforie-Bucuresti | Tel. 0213139922 | Str. Eforie, nr. 4, sector 5, |
| 19. | Spitalul Clinic \"Prof. Dr. Theodor Burghele\" + Ambulatoriu | Tel.0214106910; Fax.0214111055 | Sos. Panduri, nr. 20, sector 5, |
| 20. | RomGerMed - Clinica Medicala Bucuresti | Tel. 0213110075; 0725302475 | Calea Plevnei, nr. 137C, sector 6, |
| 21. | Policlinica Regina Maria Sun Plaza | 0219268 | Calea Vacaresti, nr.391, sector 4, mall Sun Plaza, etaj 2, intrarea prin mall, |
| 22. | Spitalul Clinic \"Prof. Dr. Theodor Burghele\" + Ambulatoriu | Tel. 0214106910; Fax 0214111055 | Sos. Panduri nr. 20, sector 5, |
| 23. | Spitalul Clinic Coltea | Tel. 0213874100; Fax 0213874101 | Bd. I.C. Bratianu, nr. 1, sector 3, |
| 24. | Institutul National pentru medicina complementara si alternativa | Tel.0783002934; 0214102419 | Sos. Panduri , nr. 22, sector 5, |
| 25. | Spitalul Clinic Coltea | Tel. 0213874100; Fax 0213874101 | Bd. I.C. Bratianu, nr. 1, sector 3, |
| 26. | Prof. Dr. Dimitrie Gerota, Spitalul de Urgenta MAI - Bucuresti | 0212523334 | Str. Vasile Vasilievici Stroescu, nr. 29-31, sector 2, |
| 27. | Centrul Medical Veridia-Bucuresti | 0213029434 | Str. Matei Basarab, nr. 45, sector 3, |
| 28. | Centrul Medical Panduri-Bucuresti | 0731806118; 0219901 | Str. Dr. Ioan Atanasiu, nr. 34, sector 5, |
| 29. | Policlinica pentru copii Regina Maria - Opera | 0219268 | Str. Costache Negri, nr. 1-5, sector 5, |
| 30. | Emergency Medical Care - Servicii medicale de urgenta la domiciliu Bucuresti & Ilfov | 0799058058; 0732528136; 0314250213 | Calea Vitan, Nr. 109B-109D, Sector 3, Bucuresti |
| 31. | Spitalul Clinic de Chirurgie Oro-Maxilo-Faciala -Bucuresti | Tel/Fax. 0213158855; 0213155217 | Calea Plevnei, nr. 17-21, sector 1 , |
| 32. | Spitalul Clinic de Chirurgie Oro-Maxilo-Faciala \"Prof. Dr. Dan Theodorescu\" | Tel/Fax. 0213158855; 0213155217 | Calea Plevnei, nr. 17-21, sector 1, |
| 33. | Vitan Policlinica, Grupare de cabinete medicale - Bucuresti | 0727451211; 0213234970; 0213221208 | Calea Dudesti, Nr. 104-124, sector 3, Bucuresti |
| 34. | Clinica Memento Med-Bucuresti | 0213260081 | Str. Brailita, nr. 1, sector 3, |
| 35. | Cabinet Medical Persepolis- Bucuresti | 0749065961; 0751011893 | Str. Vasile Toneanu , nr. 20, sector 3, |
| 36. | Spitalul Clinic de Urgenta pentru Copii - M.S. Curie (Budimex) + ambulatoriu | 0214603026; 0214601035 (Primiri Urgente); 0214604260 (Ambulatoriul) | Bd. Constantin Brancoveanu, Nr. 20, Sector 4, Bucuresti |
| 37. | Spitalul Clinic de Urgenta pentru Copii M.S. Curie + ambulatoriu | Tel. 0214604260; 0214603026 | Bd. Constantin Brancoveanu, nr. 20, sector 4, |
| 38. | Policlinica Alfa Medical | 0214604144; 0319495 | Izvorul Rece, Nr. 18A, Sector 4, Bucuresti |
| 39. | Cabinet Medical Alfa | Tel.0319495 | Sos. Oltenitei, nr. 220, bl. 8, sc. 2, ap. 58, sector 4, |
| 40. | POLICLINICA CU PLATA NR. 1 | Tel. 021.314.81.15; Fax 021.314.81.14 | Str. Bati?tei nr. 27, sector 2, |
| 41. | Centru Medical Mediclass - Cotroceni | 0214102727; 0214120128; 0214120129 | Str. Elefterie, nr. 47-49 (Complex Comercial Cotroceni), sector 5, |
| 42. | Standard Med-Bucuresti | 0722435435; 0314053950 | Bd. Carol, nr. 45, ap.5, parter, sector 2, |
| 43. | CENTRUL MEDICAL BATISTEI | 021.313.34.80; 021.313.14.55; 021.315.46.05 | Str. Tudor Arghezi nr. 28, sector 2 , |
| 44. | Scanmed - Clinica Medicala Bucuresti | 0219215; 0317100141; 0729202202 | Sos. Panduri, nr. 71, Parter, Sector 5 |
| 45. | Clinica Medicala Data Plus-Bucuresti | 0213131491 | Str.Cobalcescu Grigore, nr. 35,sector 1, |
| 46. | Clinica Lil Med-Bucuresti | 0214206055; Fax:0214212231 | Str. Suzana , nr. 7, corp 1,sector 5, |
| 47. | Gral Medical - Centrul Medical, Bucuresti | 0213230000; 0724242259 (programari radiologie); Fax 0213230002 | Str.Traian Popovici (fosta Unitatii), Nr. 79-91, Sector 3, Bucuresti |
| 48. | Ambulatoriul Spitalului Universitar de Urgenta | Tel. 0213180519/29; 0212026147 | Splaiul Independentei, nr. 169, sector 5 , |
| 49. | Centrul Medical Dr. Stoia Ion- Bucuresti | 0212116848 int.219; 0213175025 | Str. Thomas Masaryk , nr. 5, sector 2 , |
| 50. | Village Medical Clinic - Centru medical Bucuresti | 0212323580 | Str. Constantin Kiritescu, nr. 27, sector 2, |
| 51. | Cron Phoenix - Centru de Reabilitare Ortopedica si Neurologica pentru copii Bucuresti | 0721567186; 0790667941 | Piata Pache Protopopescu, nr. 9, sector 2 |
| 52. | Spitalul Universitar de Urgenta Bucuresti - SUUB | Tel. 0213180519; Fax 0213180554 | Splaiul Independentei, nr. 169, sector 5 , |
| 53. | Spitalul Universitar de Urgenta Bucuresti - SUUB | Tel. 0213180519; 0213180554 | Splaiul Independentei nr. 169, sector 5, |
| 54. | Imuno Medica - Centrul de preventie, diagnostic si tratament Sf. Ioan Botezatorul | 0314050350; 0771771333 | Str. Virgiliu nr. 81, sector 1 |
| 55. | Policlinica Regina Maria - Enescu | 0219268 | Str. George Enescu, nr.12, sector 1, |
| 56. | RomGerMed - Clinica Medicala Bucuresti | Tel. 0213110075; 0727999602 | Calea Plevnei, 137 C, sector 6, |
| 57. | Rytmomed - Clinica medicala Bucuresti | 0737181511 | Str. Popa Tatu, nr. 35, Sector 1 |
| 58. | Clinica de Excelenta in Patologia Somnului Somnolog-Bucuresti | 0213118822; 0784442277 | Str.Dr.Leonte Anastasievici, nr.11, sector 5, |
| 59. | PriMed - Clinica Medicala Bucuresti | 0219986; 0720034774 | Bd. Dinicu Golescu, nr.10, sector 1 |
| 60. | Centrul Medical Bio Terra Med- Bucuresti | 0726243473; 0724262110; 0774022961 | Calea Grivitei, nr. 3, Sector 1, |
| 61. | Professional Klinic, Bucuresti - Tratament si analize | 0314250805 ; 0742207755 | Str.Agricultori, Nr. 115, bloc 79, Parter, Sector 3, Bucuresti |
| 62. | Spitalul Clinic de Nefrologie - Dr. Carol Davila | Tel. 0213189184 (centrala) | Calea Grivitei, nr. 4, sector 1, |
| 63. | Policlinica Baba Novac | 0770218336; 0748175572 | Str. Baba Novac, nr. 2, sector 3 |
| 64. | Centrul medical Ghencea Medical Center- Bucuresti | 0219838; 0752493636 ; 0756045204 | Bd. Ghencea , Nr. 43 B, sector 6, Bucuresti |
| 65. | Policlinica Regina Maria - Cotroceni | 0219268 | Sos. Cotroceni, nr. 20, sector 6, |
| 66. | Spitalul Clinic de Ortopedie Traumatologie Foisor-Bucuresti | Tel.0212520057; Fax.0212521387; 0310056786(progamari consultatii) | Bd. Ferdinand, nr. 35-37, sector 2 , |
| 67. | Spitalul Clinic de Ortopedie Traumatologie \"Foisor\" + ambulatoriu | Tel. 0310056786; 0212520057; Fax 0212521387 | Bd. Ferdinand, nr. 35-37, sector 2, |
| 68. | Spitalul de Urgente Oftalmologice + Ambulatoriu | 0213192751; 0213192752 | P-ta Lahovari nr. 1, sector 1, |
| 69. | Spitalul de Urgente Oftalmologice + Ambulatoriu | 0213192751; 0213192753 | P-ta Lahovari, nr. 1, sector 1, |
| 70. | Centrul Medical Hiperdia | 0213021160; Tel/Fax: 0213340030 | Sos. Berceni, Nr. 10-12, sector 4 (incinta Spitalului de Urgenta Bagdasar Arseni), Bucuresti |
| 71. | Centrul Medical Rom Med 2000 | 0726366370; 0213270441; Tel/Fax 0213206087 | Intr. Baba Novac, nr. 4 A, Sector 3, |
| 72. | Institutul National de Diabet, Nutritie si Boli Metabolice \"Prof. Dr. N. Paulescu\" | Tel. 0212108499 (centrala); 0212106460 (secretariat); Fax 0212109092 | Str. Ion Movila, nr. 5-7, sector 2 , |
| 73. | Institutul National de Diabet, Nutritie si Boli Metabolice \"Prof. Dr. N. Paulescu\" | 0212106460 (secretariat); 0212109092 | Str. Ion Movila, nr.5-7, sector 2, |
| 74. | Spitalul Clinic Dr. I. Cantacuzino-Bucuresti | Tel.0212107100; Fax.0212106435 | Str. Ion Movila nr. 5-7, sector 2 , |
| 75. | Spitalul Clinic Dr. I. Cantacuzino | Tel. 0212107100; 0212108499 (diabetologie) | Str. Ioan Movila, nr. 5-7, sector 2, Bucuresti |
| 76. | Spitalul de Urgenta Prof. Doctor Dimitrie Gerota | 0212523334; Fax 0212522829 | Str. Vasile Vasilievici Stroescu, nr. 29-31, sector 2, |
| 77. | Optim Sano - Centrul Medical Dr. Ion Socoteanu-Bucuresti | 0728955844 | Str. Salcamilor, Nr. 6A, sector 2, |
| 78. | Spitalul Clinic de Boli Infectioase si Tropicale Dr. Victor Babes | 0213172727 / .28 / .29/ .30 (Centrala); 0213172721 | Sos. Mihai Bravu, nr. 281, sector 3, |
| 79. | Spitalul Universitar de Urgenta Militar Central Dr. Carol Davila | Tel. 0213193052/60; Fax.0213193030 | Str. Calea Plevnei, nr. 134, sector 1, Bucuresti |
| 80. | Dr. Victor Babes, Spitalul Clinic de Boli Infectioase si Tropicale Bucuresti | 0213172727 / .28 / .29/ .30 (Centrala); Fax 021 3172721 | Sos. Mihai Bravu, nr. 281, sector 3 , |
| 81. | Spitalul Clinic de Nefrologie - Dr. Carol Davila | Tel. 0213189184 (centrala); Fax 0213189184 | Calea Grivitei nr. 4, sector 1, |
| 82. | Dr. Carol Davila, Spitalul Universitar de Urgenta Militar Central Bucuresti + ambulatoriu | Tel. 0213193052/60; 0213193030 | Str. Calea Plevnei , nr. 134, sector 1, |
| 83. | Donna Medical Center-Bucuresti | 0219732 | Str. Traian , nr. 234, et.1, sector 2, |
| 84. | Centrul Medical Dr. Victor Babes-Bucuresti | 0213179503; Fax: 0213179502 | Sos. Mihai Bravu nr. 281, sector 3 , |
| 85. | Bioderm Medical Cente- Bucuresti | Tel. 0722338383 | Str. Mihai Eminescu, nr. 42, sector 1, |
| 86. | Spitalul Clinic CF Witting + ambulatoriu | Tel. 0213129530; 0213129531; 0213176280 | Calea Plevnei nr. 142-144, sector 6, |
| 87. | Spitalul de Psihiatrie Prof. Dr. Alexandru Obregia-Bucuresti | Tel. 0213320411; 0213321304; 0213347164 | Sos. Berceni, nr. 10-12, sector 4 , |
| 88. | Spitalul de Psihiatrie Prof. Dr. Alexandru Obregia | Tel. 0213320411; 0213321304; 0213347164 | Sos. Berceni, nr. 10-12, sector 4 , |
| 89. | Centrul Medical M Hospital-Bucuresti | 0219136; 0744812330; 0213162049 | Str.Witting, nr. 10-12, sector 1, Bucurestu |
| 90. | Centrul Medical M Hospital-Bucuresti | Tel.0219136 | Str. Witing, nr. 10-12, sector 1 , |
| 91. | Spitalul de Urgenta prof. dr. Bagdasar Arseni | Tel. 0213343025; Fax 0213347350; 0213343027 | Sos. Berceni nr. 10-12, sector 4, |
| 92. | Institutul National de Neurologie si Boli Neurovasculare Bucuresti | Tel. 0213343004 interior 1150, 1151 | Sos. Berceni nr. 10-12, sector 4, |
| 93. | Spitalul de Boli Cronice Sf. Luca | 0213343010; 0213343014 | Sose. Berceni, nr. 12, sector 4, |
| 94. | Spitalul Clinic de Urgenta prof. dr. Bagdasar Arseni | 0213343025; 0213343026; 0213343027 | Sos. Berceni, nr. 10-12, sector 4, Bucuresti |
| 95. | Clinica Medicala Estet Laser Medical Center | Tel/Fax 0212531797; 0721241772; 0733625687 | Str. Calusei nr. 11, sector 2, |
| 96. | Centrul medical PoeMedica Bucuresti | 0214139387; 0217461632; 0757109599 | Bd. 1 Mai, nr. 24, sector 6, |
| 97. | Ais companie medical farmaceutica | 0219909 | Sos. Alexandriei , nr. 144, sector 5, Bucuresti |
| 98. | Dr. V. Gomoiu, Spitalul de Copii - Ambulatoriul de specialitate Bucuresti | 0314136700; 0314136701; 0314136706 | Bd. Basarabia, nr. 21, sector 2, |
| 99. | Centrul Medical Sanador-Bucuresti | Tel. 0219699 | |
| 100. | Spitalul clinic de copii Dr. Victor Gomoiu | 0314136700; 0314136701 | Bd. Basarabia nr. 21, sector 2, |
| 101. | Centrul Medical Sana-Bucuresti | 0212128222 | Str. Dr. Sergiu Dumitru, nr. 3, sector 1, |
| 102. | Centrul Medical Endocenter-Bucuresti | Tel.0764671233; Fax 0213267660 | Str. Arh. G. Sterian, nr. 8, sector 2, |
| 103. | Spitalul Clinic de Urgenta pentru Copii \"Grigore Alexandrescu\" | 0213169366:Centrala telefonica; 0213110994:Unitatea Primiri Urgente | Bd.Iancu de Hunedoara, nr. 30-32, sector 1, Bucuresti |
| 104. | Clinica Medicala Blaj Stefan-Bucuresti | 0742010636 | Str.Ciprian Porumbescu, nr. 12, sector 1, |
| 105. | Spitalul Clinic de Urgenta pentru Copii \"Grigore Alexandrescu\" | Tel. 0213169366; 0213169366 int. 133/155; UPU.0213110994 | Bd. Iancu de Hunedoara, nr. 30-32, sector 1 , |
| 106. | Spitalul Clinic de Urgenta pentru Copii \"Grigore Alexandrescu\" | 0213169366:Centrala telefonica; 0213110994 :Unitatea Primiri Urgente | Bd. Iancu de Hunedoara, nr. 30-32, sector 1, Bucuresti |
| 107. | Spitalul Clinic de Urgenta \"Sf. Ioan\" Bucuresti | Tel. 0213345190; 0213345170; Fax 0213345970 | Sos. Vitan Barzesti, nr.13, sector 4, |
| 108. | Policlinica Iancului-Bucuresti | Tel.0314255277 (laborator); 0212508490 (O.R.L.); 0212503333 | Sos. Iancului , nr. 3, sector 2 , |
| 109. | Clinica Sanamed-Bucuresti | 0219442 | Calea Plevnei, Nr. 159,corpul B ,Sector 6, |
| 110. | Centrul Medical Romedical Int | Tel. 0212100381; 0723288108 | Str. Fainari nr. 35, sector 2, |
| 111. | Doris - centru de testare COVID 19 Bucuresti | 0732684319 | Bd. Iuliu Maniu, nr. 11, sector 6, |
| 112. | Prof. Dr. Mina Minovici, Institutul de Medicina Legala Bucuresti | 0314230700 ; 0213346260 | Sos. Vitan Barzesti, nr. 9, sector 4, |
| 113. | Spitalul Clinic de Urgenta Sfantul Ioan Bucuresti | Tel. 0213345190; 0213345170 | Sos. Vitan Barzesti, nr. 13, sector 4, Bucuresti |
| 114. | Spitalul de Urgenta Floreasca | Tel. 0215992300; 0215992308; Fax.0215992257 | Calea Floreasca nr. 8, sector 1, |
| 115. | Spitalul de Urgenta Floreasca + ambulatoriu-Bucuresti | Tel.021.5992300; Fax.021.5992257 | Calea Floreasca, nr. 8, sector 1, |
| 116. | Centrul Medical Ioana-Bucuresti | 0212233810; 0786486156 | Str. Alexandru Ioan Cuza, nr. 81,, et. 1,sector 1, Bucuresti |
| 117. | Ioana Medical Center | 0212233810; 0786486156 | Bd. Alexandru Ioan Cuza, nr 81, et 1, sector 1 |
| 118. | SPITALUL SF. STEFAN + ambulatoriu | 021.210.39.36 | Sos. Stefan cel Mare nr. 11, sector 2, |
| 119. | Euroclinic | 0219268; 0219208 | Calea Floreasca, 14 A, Sector 1, Bucuresti |
| 120. | SPITALUL SF. STEFAN + ambulatoriu | 0212103936 | Sos. Stefan cel Mare, nr. 11, sector 2, |
| 121. | Spitalul Clinic de Urgenta \"Sf. Ioan\" Bucuresti | Tel. 0213345190; 0213345170; Tel/Fax 0213345970 | Sos. Vitan-Barzesti nr. 13, sector 4, |
| 122. | Centrul Medical Focus | 0753035038 | Str. Dinicu Golescu, nr. 23-25 , sector 1, |
| 123. | Ambulatoriul Spitalului Euroclinic | 0219208; Call Center:0219268 | Calea Floreasca, nr. 14A, sector 1, Bucuresti |
| 124. | Spitalul Euroclinic + ambulatoriu | 0219208 | Calea Floreasca, nr. 14 A, sector 1, Bucuresti |
| 125. | Ambulatoriul Spitalului Clinic Colentina | 0213167320 ; 0213173245 / interior 5732; Fax: 0213161952 | Sos.Stefan cel Mare, nr. 19-21, sector 2, Bucuresti |
| 126. | Spitalul Clinic Colentina + Ambulatoriu | 0213167320; 0213173245 ; Fax: 0213161952 | Sos. Stefan cel Mare, nr. 19-21, sector 2 , |
| 127. | Clinica Medicover-Bucuresti | 0219896 | Str. Sergent Constantin Ghercu,, nr. 1A, sector 1, |
| 128. | Centrul Medical Hiperdia-Bucuresti | 0219338; Fax 0212507320 | Str.Ritmului, nr. 24, sector 2, Bucuresti |
| 129. | Centrul Medical Amicus Med | Tel. 0766424841; Tel/Fax 0212508585 | Sos. Iancului nr. 17, bl. 106C, sc. 1, ap. 4, sector 2, |
| 130. | Prof. Dr. Mina Minovici, Institutul de Medicina Legala Bucuresti | 0314230708; 0213321156 | Sos. Vitan Barzesti, nr. 9-11, sector 4, |
| 131. | Spitalul Clinic Colentina + Ambulatoriu | Tel. 0213167320; 0213173245; 0213165895 | Sos. Stefan cel Mare, nr. 19-21, sector 2, |
| 132. | LookClinic, Bucuresti - Centre de diagnosticare,preventie si implant de par | 0213203477 | Calea Dorobantilor, nr.188-190, sector 1, |
| 133. | Medisan Family Clinic - Clinica medicala Bucuresti | 0217955980 | Str. Dr. Calin Ottoi, nr. 20-22, sector 2 |
| 134. | Centrul de Transfuzie Sanguina Bucuresti | Tel. 0314053660; 0314053661; 0314053662 | Str. Constantin Caracas nr. 2-8, sector 1, |
| 135. | Centrul Medical de Diagnostic, Tratament Ambulator si Medicina Preventiva | 0212300402; 0212302980; 0212305923 | Str. Washington, nr. 8-10, sector 1, |
| 136. | Institutul National de Medicina Sportiva | 0213184704 ; 0213184705 ; 0213184706 | Bd. Basarabia, nr. 37-39, sector 2, Bucuresti |
| 137. | Clinica Nova ORL - Dr. Voda Ioana Alexandra-Bucuresti | 0213254422; 0799848484 | Str. Pictor Gh. Tattarascu , nr. 2, subsol Policlinica Globului, in spatele cinematografului Gloria, Baba Novac, sector 3, |
| 138. | Centrul Medical Prain | 0212113430; 0212108476; 0723237430 | Calea Dorobantilor, nr. 32A,7,ET 1, |
| 139. | Institutul National de Boli Infectioase Prof. Dr. Matei Bals | Tel.0212010980; 0213186091 | Str. Dr. Calistrat Grozovici, nr. 1, sector 2, |
| 140. | Prof. Dr. Panait Sirbu, Spitalul Clinic de Obstetrica-Ginecologie Bucuresti | 0213161281; 0213161283 | Calea Giulesti, nr. 5, sector 6 , |
| 141. | Centru Medical Stb-Bucuresti | 0213183430 (centrala); | Str. Dr. Grozovici, nr. 6, sector 2 , |
| 142. | Spitalul Clinic Sfanta Maria + ambulatoriu-Bucuresti | Tel. 0212223550; 0212223553 | Bd. Ion Mihalache nr. 37-39, sector 1, |
| 143. | Institutul National de Boli Infectioase Prof. Dr. Matei Bals | 0212010980 (centrala); 0213186090 | Str. Dr. Grozovici, Nr. 1, sector 2, |
| vezi mai multe | |||
| 1. | Gheorghe Sincai, Colegiul National - Bucuresti | 0213369004; 0213361455 | Calea Serban Voda, Nr. 167, Sector 4, Bucuresti |
| 2. | Grigore Chercez, Colegiul Tehnologic - Bucuresti | 0213365890 | Calea Serban Voda, Nr. 280, Sector 5, Bucuresti |
| 3. | Viilor, Colegiul Economic - Bucuresti | 0213160973; 0213160966 | Sos. Viilor, Nr. 38, Sector 5, Bucuresti |
| 4. | Floria Capsali, Liceul de Coregrafie - Bucuresti | 0213363792 | Str. Capitan Preotescu, Nr. 9, Sector 4, Bucuresti |
| 5. | Penticostal Emanuel, Liceul Teologic - Bucuresti | 0213311669 | Str. Cuza Voda, Nr. 116, Sector 4, Bucuresti |
| 6. | Scoala 114 Principesa Margareta - Bucuresti | 0735679210/ 0213351405 | Str. Pandele Rosca, Nr. 2-4, sector 5 |
| 7. | Scoala de Arta Bucuresti | 0213306700 | Str. Cuza Voda, nr. 100, |
| 8. | Scoala Gimnaziala Ienachita Vacarescu, Bucuresti | 0213355705 | Calea Serban Voda, Nr. 62-64, sector 4, Bucuresti |
| 9. | Colegiul National de Arte Dinu Lipatti - Bucuresti | 0213363588 | Str. Principatele Unite, Nr. 63, Sector 4, Bucuresti |
| 10. | Scoala Gimnaziala Nr. 97 - Bucuresti | 0213302545 | Str. Viorele, Nr. 7, Sector 4, Bucuresti |
| 11. | Colegiul Tehnic de Industrie Alimentara Dumitru Motoc - Bucuresti | 0215552876 | Str. Spatarul Preda, Nr. 16, sector 5 |
| 12. | AWEsome Primary School - Scoala clasele primare Bucuresti | 0750460737 | Str. Ienachita Vacarescu, nr. 22B, sector 4 |
| 13. | Scoala Gimnaziala Nr. 79 - Bucuresti | 0314257884 | Str. Cuza Voda, Nr. 51, Sector 4, Bucuresti |
| 14. | Colegiul Romano-Catolic Sfantul Iosif - Bucuresti | 0213326602 | Sos. Oltenitei, Nr. 3-7, Sector 4, Bucuresti |
| 15. | Ion Creanga Colegiu National - Bucuresti | 0213362695 | Str. Cuza Voda, Nr. 51, sector 4, Bucuresti |
| 16. | Seminarul Teologic Ortodox Bucuresti | 0213305754; 0731205629; 0213305754 | Str. Radu Voda, Nr. 24 A, Sector 4, Bucuresti |
| 17. | Scoala Gimnaziala Luceafarul - Bucuresti | 0214230480 | Str. Doina, Nr. 1, sector 5 |
| 18. | Mihai Eminescu, Colegiul National - Bucuresti | 0213304001 | Str. V.V. Stanciu, Nr. 6 , Sector 4, Bucuresti |
| 19. | Colegiul Tehnic Petru Rares - Bucuresti | 0213304001 | Str. V. V. Stanciu, nr. 6, sector 4 |
| 20. | Scoala Gimnaziala Nr. 81 - Bucuresti | 0213263220 | Str. Nerva Traian, Nr. 33, Sector 3, Bucuresti |
| 21. | Scoala Gimnaziala Nr. 128 - Bucuresti | 0214102219 | Str. Ion Creanga, Nr. 6, Sector 5, Bucuresti |
| 22. | Alexandra Kids, Gradinita, After School - Bucuresti | 0788461573; 0214206927 | Calea Rahovei, Nr. 266-268, Sector 5, Bucuresti |
| 23. | Kids Kingdom - Before & After School Bucuresti | 0799199627 | Intrarea Traian Demetrescu, Nr. 8, sector 3 |
| 24. | Scoala Gimnaziala Grigore Tocilescu - Bucuresti | 0214231140 | Str. Grigore Tocilescu, Nr. 20, sector 5 |
| 25. | Scoala Gimnaziala George Bacovia - Bucuresti | 0213323396 | Str. Stoian Militaru, nr. 72, Sector 4 |
| 26. | Scoala Gimnaziala Nr.188 - Bucuresti | 0214500161 | Str. Tufisului, Nr. 13, Sector 5, Bucuresti |
| 27. | Scoala Gimnaziala Nr. 280 - Bucuresti | 0214234068 | Str. Sergent Gheorghe Donici, Nr. 4A, Sector 5 |
| 28. | George Calinescu, Scoala Gimnaziala 148 - Bucuresti | 0214232889 | Str. Bachus, Nr. 42, Sector 5, Bucuresti |
| 29. | Scoala Gimnaziala Nr. 95 - Bucuresti | 0770503408; 0213235185 | Str. Foisorului, Nr. 111-113, Sector 3, Bucuresti |
| 30. | Laude-Reut, Complex Educational Bucuresti | 0314382046; 0318055772 | Str. Clucerul Udricani, Nr. 12, Sector 3, Bucuresti |
| 31. | Dimitrie Bolintineanu, Liceu Teoretic - Bucuresti | 0214234060 | Calea Rahovei, Nr. 315, Sector 5, Bucuresti |
| 32. | Dimitrie Gusti, Liceu Tehnologic - Bucuresti | 0214562050 | Str. Samuil Vulcan, Nr. 8, Sector 5, Bucuresti |
| 33. | Smart Koala Kids Club | 0771638419; 0771638425 | Calea 13 Septembrie, Nr.126A, bl.P43, sc.1, parter, ap. 2, sector 5, Bucuresti |
| 34. | Barbu Delavrancea, Scoala Gimnaziala Nr.73 - Bucuresti | 0213237390 | Str. Matei Basarab, Nr. 28-30, Sector 3, Bucuresti |
| 35. | Mihai Ionescu, Gradinita, Gimnaziu si Liceu - Bucuresti | 0213235495; 0314054929 | Cauzasi, Nr. 43, Sector 3 , Bucuresti |
| 36. | Mihai Ionescu, Scoala Primara, Gimnaziu, Liceu - Bucuresti | 0213235495 | Str. Cauzasi, Nr. 43, Sector 3, Bucuresti |
| 37. | Scoala Gimnaziala Nr. 120 Martisor - Bucuresti | 0213325811 | Str. Martisor, Nr. 39, sector 4 |
| 38. | Scoala Gimnaziala Nr. 115 | 0213163793; 0786401588 | Calea 13 Septembrie, Nr. 177, Sector 5, Bucuresti |
| 39. | Matei Basarab, Colegiul National - Bucuresti | 0213216640 | Str. Matei Basarab, Nr. 32, Sector 3, Bucuresti |
| 40. | Kretzulescu Nicolae, Scoala Superioara Comerciala - Bucuresti | 0213139082 | Bd. Hriso Botev, Nr. 17, Sector 3, Bucuresti |
| 41. | Scoala Gimnaziala SEB - Bucuresti | 0314249675; 074502274 | Str. Martisor, Nr. 22, sector 4 |
| 42. | Gheorghe Lazar, Colegiu National - Bucuresti | 0213134756 | Bd. Regina Elisabeta, Nr. 48, Sector 5, Bucuresti |
| 43. | Scoala Gimnaziala Nr. 2 Bucuresti | 0214501192 | Str. Lacul Bucura, Nr. 14, Sector 5, Bucuresti |
| 44. | About Scoala Metropolitana A.R.C | 0314254343; 0722522198 | Str. Esarfei, nr. 63-71, sector 3, |
| 45. | Scoala Gimnaziala Rut - Bucuresti | 0214510035; 0787358929 | Str. Lacul Bucura, Nr. 9-13, Sector 5 |
| 46. | Scoala Gimnaziala Ion I. C. Bratianu - Bucuresti | 0214233390 | Str. Amurgului, Nr. 35, Sector 5 |
| 47. | Magia Copilariei - After-school Bucuresti | 0761912892 | Strada Nucului, Nr. 55, Sector 3 |
| 48. | Montessano - Scoala primara si gradinita, Bucuresti | 0724924070; 0724919711 | Str. Labirint, nr. 97-99, sector 3 |
| 49. | Serban Voda, Scoala Gimnaziala - Bucuresti | 0214503450 | Str. Petre Tutea, Nr. 3, Sector 4, Bucuresti |
| 50. | FEG, Scoala Postliceala in domeniului medical - Bucuresti | 0213111054; 0314050362; 0788424314 | Walter Maracineanu, Nr. 1-3, Intrarea 2, Etaj. 2,, Bucuresti |
| 51. | I.G. Duca, Scoala Gimnaziala 146 - Bucuresti | 0214100881 | Sos. Panduri, Nr. 42, Sector 5, Bucuresti |
| 52. | Stefan Odobleja, Liceu teoretic - Bucuresti | 0214112213 | Str. Dorneasca, Nr. 7A, Sector 5, Bucuresti |
| 53. | Victoria, Liceu Teoretic - Bucuresti | 0314250543; 0759478014 | Str. Turturelelor, nr. 11A, sector 3, Bucuresti |
| 54. | Scoala Gimnaziala Nr. 136 - Bucuresti | 0214501892 | Prelungirea Ferentari, Nr. 74, Sector 5, Bucuresti |
| 55. | Mirunette Education, Consiliere si Programe Educationale - Bucuresti | 0212101602 | Valeriu Braniste, Nr. 37-39, Etaj 1, Ap. 3, Cam. 3, Sector 3, Bucuresti |
| 56. | Miguel de Cervantes, Liceul Bilingv - Bucuresti | 0213149311 | Calea Plevnei, Nr. 38-40, Sector 1, Bucuresti |
| 57. | George Toparceanu, Scoala Gimnaziala Nr. 110 - Bucuresti | 0214503823 | Str. Argeselu, Nr. 6, sector 4, Bucuresti |
| 58. | Colegiul Tehnic Energetic - Bucuresti | 0214500630; 0214502805 | Aleea Podul Giurgiului, nr. 5, sector 5 |
| 59. | Scoala Generala nr. 84 Nicolae Balcescu - Bucuresti | 0213216391 | Calea Vitan, Nr. 135, sector 3 |
| 60. | Scoala Gimnaziala Nr. 150 - Bucuresti | 0214108408 | Bd. Eroii Sanitari, Nr. 29-31, Sector 5, Bucuresti |
| 61. | Scoala Gimnaziala Nr. 190 - Bucuresti | 0213324689 | Str. Nitu Vasile, Nr. 16, Sector 4, Bucuresti |
| 62. | Spiru Haret, Colegiu National - Bucuresti | 0213136462 | Str. Italiana, Nr. 17, Sector 2, Bucuresti |
| 63. | Ion Barbu, Liceu Teoretic - Bucuresti | 0214102332 | Str. Nabucului, Nr. 18, Sector 5, Bucuresti |
| 64. | Scoala Gimnaziala Nr. 96 Bucuresti | 0214610108 | Str. Rezonantei, nr. 2, sector 4, |
| 65. | Scoala Gimnaziala Nr. 71 - Bucuresti | 0213141395; 0213141391 | Calea Mosilor, Nr. 148, Sector 2, Bucuresti |
| 66. | Hermes, Colegiul Economic - Bucuresti | 0213147645 | Calea Mosilor, Nr. 152, Sector 2, Bucuresti |
| 67. | Scoala Gimnaziala Nr. 308 - Bucuresti | 0214503162 | Str. Raul Soimului, Nr. 8, Sector 4, Bucuresti |
| 68. | Scoala Gimnaziala nr. 143 - Bucuresti | 0214202440 | Str. Banu Maracine, Nr. 16, Sector 5 |
| 69. | Vasile Alecsandri, Scoala Gimnaziala (fosta Nr. 118) - Bucuresti | 0213138287 | Str. Stirbei Voda, Nr. 32-34, Sector 1, Bucuresti |
| 70. | Tudor Arghezi, Scoala Gimnaziala Nr. 19 - Bucuresti | 0213169187 | Str. Tudor Arghezi, Nr. 46-50, Sector 2, Bucuresti |
| 71. | Scoala Gimnaziala Nr. 129 - Elena Farago | 0214503775 | Str. Izvorul Crisului, Nr. 6, Sector 4, Bucuresti |
| 72. | Scoala nr. 147 Petrache Poenaru - Bucuresti | 0214233987; 0214233991 | Str. Bacau, Nr. 1, sector 5 |
| 73. | Sf. Sava, Colegiul National - Bucuresti | 0213149294; 0213126821 | Str. G-ral Berthelot, Nr. 23, Sector 1, Bucuresti |
| 74. | Colegiul Tehnic Mihai Bravu - Bucuresti | 0213217699 | Sos. Mihai Bravu, Nr. 428, Sector 3 |
| 75. | Fridolin, scoala primara si gimnaziala germana - Bucuresti | 0723584872 (Adina Stoenescu); 0722502522 (Christian Comsa) | Fagaras, Nr. 9-13, Sector 1, Bucuresti |
| 76. | Scoala Gimnaziala Nr. 80 - Bucuresti | 0213214256 | Calea Dudesti, Nr. 191, Sector 3, Bucuresti |
| 77. | Scoala Gimnaziala Nr. 127 - Bucuresti | 0214231092 | Str. Muntii Carpati, nr. 68, sector 5 |
| 78. | Scoala Gimnaziala Nr. 124 - Bucuresti | 0214206365 | Str. Margeanului, Nr. 25A, Sector 5, Bucuresti |
| 79. | Santimbreanu Mircea, Scoala Gimnaziala Nr. 139 - Bucuresti | 0214206795 | Sos. Alexandriei, Nr. 21, Sector 5, Bucuresti |
| 80. | Scoala Gimnaziala Nr. 113 | 0213322347 | Str. Parincea, Nr. 4, Sector 4, Bucuresti |
| 81. | Colegiul National Octav Onicescu - Bucuresti | 0214603544 | Str. Trivale, Nr. 29, Sector 4 |
| 82. | Scoala Gimnaziala Nr. 103 - Bucuresti | 0214503728 | Str. Vigoniei, Nr. 3-5, Sector 5, Bucuresti |
| 83. | Scoala Gimnaziala nr. 5 - Bucuresti | 0213169918 | Calea Victoriei, Nr. 114, Sector 1, Bucuresti |
| 84. | Phoenix, Liceu Teoretic - Bucuresti | 0214341364; 0770911516 | Virgiliu, Nr. 40, Sector 1, Bucuresti |
| 85. | Scoala Gimnaziala Nr. 134 - Bucuresti | 0214503502 | Str. Baciului, Nr. 4A, sector 5 |
| 86. | Mihai Botez, Scoala Gimnaziala Nr. 87 - Bucuresti | 0213462361 | Str. Ramnicu Valcea, Nr. 32, Sector 3, Bucuresti |
| 87. | A.D. Xenopol, Colegiul Economic - Bucuresti | 0213205719 | Str. Traian, Nr. 165, Sector 2, Bucuresti |
| 88. | Uruguay, Scoala Gimnaziala - Bucuresti | 0216370361 | Str. Virgiliu, Nr. 40, Sector 1, Bucuresti |
| 89. | Scoala Gimnaziala Nr. 119 - Bucuresti | 0214504071 | Str. Almasu Mic, Nr. 4, Sector 4 |
| 90. | Anastasia Popescu, Liceu Pedagogic Ortodox - Bucuresti | 0212524665; 0725519386; 0722805777 | Popa Nan, 47 B, Sector 2, Bucuresti |
| 91. | George Cosbuc, Colegiul National Bilingv - Bucuresti | 0212528080 | Str. Olari, Nr. 29-31, Sector 2, Bucuresti |
| 92. | Ada School - Bucuresti | 0723595916; 0721424485 | Dr. Carol Davila, Nr. 101, Bucuresti |
| 93. | Colegiul National - Scoala Centrala - Bucuresti | 0212118484; 0787288528 | Str. Icoanei, Nr. 3-5, Sector 2, Bucuresti |
| 94. | Marin Sorescu, Scoala Gimnaziala Nr. 194 - Bucuresti | 0214610790 | Bd. Alexandru Obregia, Nr. 3A, Sector 4, Bucuresti |
| 95. | Scoala Gimnaziala Nr. 99 - Bucuresti | 0214501372 | Str. Huedin, Nr. 13, Sector 4, Bucuresti |
| 96. | Institutul de matematica Simion Stoilow | 0213196506; 0213117780; Fax: 0213196505 | Calea Grivitei, Nr. 21, Sector 1, Bucuresti |
| 97. | Scoala Gimnaziala Nr. 108 | 0214610039 | Str. Vatra Dornei, nr. 8, sector 4, Bucuresti |
| 98. | Scoala Gimnaziala Nr. 108 - Bucuresti | 0214610039 | Str. Vatra Dornei, Nr. 8, sector 4 |
| 99. | Scoala Gimnaziala Iancului Nr. 52 | 0212522260 | Bd. Pache Protopopescu, Nr. 50, Sector 2, Bucuresti |
| 100. | Sfantul Silvestru, Scoala Gimnaziala Nr. 23 - Bucuresti | 0212102045 | Str. Oltarului, Nr. 11, Sector 2, Bucuresti |
| 101. | Teodoreanu Ionel, Scoala Gimnaziala Nr. 36 - Bucuresti | 0214503990 | Str. Costila, Nr. 2, Sector 4, Bucuresti |
| 102. | Mihai Viteazu, Colegiul National - Bucuresti | 0212525700; 0212525871 | Bd. Pache Protopopescu, Nr. 62, Sector 2, Bucuresti |
| 103. | Scoala Gimnaziala Nr. 126 | 0214203645 | Str. Leresti, Nr. 12, Sector 5, Bucuresti |
| 104. | Monterra - Scoala primara Bucuresti | 0743119481 | Str. Vasile Lascar, nr. 87, sector 2 |
| 105. | Scoala Gimnaziala Nr. 131 - Bucuresti | 0214203905 | Str. Gutuilor, Nr. 1, Sector 5, Bucuresti |
| 106. | Sweet Babies - Cresa, gradinita, after school, Bucuresti | 0785810011 | Strada Teleajen, 26B, sector 2 |
| 107. | EFI Bucarest - Scoala Franceza Internationala din Bucuresti | 0749098867 | Bulevardul Dacia, Nr. 12, Sector 1 |
| 108. | Liceul Teoretic Hyperion - Bucuresti | 0311032803 | Sos. Mihai Bravu, nr. 288C, sector 2 |
| 109. | Cezar Bolliac, Scoala Gimnaziala Nr. 70 - Bucuresti | 0314040172 | Intr. Tiglina, Nr. 37, Sector 3, Bucuresti |
| 110. | Virgil Madgearu, Colegiul Economic - Bucuresti | 0212117256 | Bd. Dacia, Nr. 34, Sector 1, Bucuresti |
| 111. | Scoala Gimnaziala Nr. 165 - Bucuresti | 0766417223; 0216854580 | Aleea Slatioara, Nr. 8, Sector 4, Bucuresti |
| 112. | Scoala Gimaziala Nr. 133 - Bucuresti | 0213325837 | Str. Stanjeneilor, Nr. 3, sector 4, Bucuresti |
| 113. | Pick Me Academy - Scoala Primara Bucuresti | 0726000640; 0722391000 | Strada Agricultori, Nr. 79, Sector 2, Scoala Primara |
| 114. | Cantemir Voda, Colegiul National - Bucuresti | 0212106935 | Str. Viitorului, Nr. 60, Sector 2, Bucuresti |
| 115. | Scoala Gimnaziala Nr. 1 - Sfintii Voievozi | 0213127572; 0213164206; 0213179916 | Str. Atelierului, Nr. 25, Sector 1, Bucuresti |
| 116. | Scoala Ioanid, Gradinita, Gimnaziu, Liceu - Bucuresti | 0758054401 | Str. Nicolae Iorga, nr. 21, Sector 1, Bucuresti |
| 117. | Serban, Scoala de Meserii - Bucuresti | 0722302252; 0212520382 | Intrarea Baritonului, Nr. 9 (prin Str. Matei Voievod Nr. 81-83), Sector 2, Bucuresti |
| 118. | I.N.Socolescu, Colegiul Tehnic de Arhitectura si Lucrari Publice - Bucuresti | 0213108958 | Occidentului, Nr. 12, Sector 1, Bucuresti |
| 119. | Scoala Gimnaziala Nr. 189 - Bucuresti | 0214610040 | Aleea Ciceu, Nr. 12, Sector 4, Bucuresti |
| 120. | Liceul Teoretic National | 0720000171 | Str. Buzesti, Nr. 14-18; Sector 1, Bucuresti |
| 121. | Orizont, Scoala Gimnaziala Nr. 193 - Bucuresti | 0214132355 | Str. Mihaela Ruxandra Marcu, Nr. 3, Sector 6, Bucuresti |
| 122. | George Enescu, Colegiu National de Muzica - Bucuresti | 0760665312; 0213108871 | Str. General Gheorghe Manu, Nr. 30, Sector 1, Bucuresti |
| 123. | Carol Davila, Scoala Sanitara Postliceala - Bucuresti | 0216107068 | Str. Agricultori, nr. 35, 37-39 (cladirea Codecs), sector 2, |
| 124. | Scoala Gimnaziala Nr. 311- Bucuresti | 0214133440 | Str. Garleni, Nr. 10, Sector 6, Bucuresti |
| 125. | Elena Vacarescu, Scoala Gimnaziala - Bucuresti | 0213163630 | Str. Stanislav Cihoschi, nr. 15, sector 1, Bucuresti |
| 126. | International British School - Bucuresti | 0212531698; 0745340841 | Str. Agricultori, Nr. 21-25, Sector 2, Bucuresti |
| 127. | Scoala Gimnaziala Nr. 85 | 0212524520 | Str. Dr. Constantin Zlatescu, Nr. 7A, sector 2, Bucuresti |
| 128. | Colegiul Tehnic Petru Maior - Bucuresti | 0736627798 | Bd. Timisoara, Nr. 6, Sector 6 |
| 129. | Decebal, Liceul Bilingv - Bucuresti | 0213469233 | Bd. Energeticienilor, Nr. 9-11, Sector 3, Bucuresti |
| 130. | Goethe, Colegiul German - Bucuresti | 0212113425 | Str. Stanislav Cihoschi, Nr. 17, Sector 1, Bucuresti |
| 131. | Ady Endre, Liceu Teoretic - Bucuresti | 0212520192 | Bd. Ferdinand I, Nr. 89, Sector 2, Bucuresti |
| 132. | Scoala Gimnaziala Nr. 56 - Bucuresti | 0212524125; 0733087815 | Bd. Pache Protopopescu, Nr. 109A, Sector 2, Bucuresti |
| 133. | Emil Racovita, Colegiul National - Bucuresti | 0213217092; Fax 0213217092 | Sos. Mihai Bravu , nr. 169, sector 2, |
| 134. | Scoala Gimnaziala Nr. 54 - Bucuresti | 0213465143; 0310699824 | Str. Istriei, Nr. 19, Sector 3 |
| 135. | Scoala Gimnaziala Nr. 59 | 0314252104 | Str. Vladeasa, Nr. 9, Sector 6, Bucuresti |
| 136. | Emil Racovita, Scoala Gimnaziala Nr. 93 - Bucuresti | 0214610831 | Aleea Emil Racovita, Nr. 1, Sector 4, Bucuresti |
| 137. | Iulia Hasdeu, Colegiu National - Bucuresti | 0212524508 | Bd. Ferdinand, Nr. 91, Sector 2, Bucuresti |
| 138. | Aldo Moro, Scoala Italiana - Bucuresti | 0212104684 | Intr. Blaj, nr. 1, Sector 1, Bucuresti |
| 139. | Scoala Gimnaziala Nr. 86 - Bucuresti | 0314250608 | Intr. Reconstructiei, Nr. 6A, Sector 3, Bucuresti |
| 140. | Avram Iancu, Scoala Gimnaziala Nr. 98 - Bucuresti | 0214610840 | Str. Stupilor, Nr. 1, Sector 4, Bucuresti |
| 141. | Maica Domnului, Scoala Gimnaziala Nr. 50 - Bucuresti | 0212520310 | Str. Ion Maiorescu, Nr. 32, Sector 2, Bucuresti |
| 142. | Scoala Gimnaziala Nr. 24 - Bucuresti | 0212107185 | Str. Tunari, Nr. 52, Sector 2, Bucuresti |
| 143. | Liceul Economic nr. 1 - Bucuresti | 0371417419 | Sos. Vitan Barzesti, Nr. 11, Sector 4, Bucuresti |
| 144. | Scoala Gimnaziala Nr. 197 - Bucuresti | 0214134330; 0786332028 | Str. Obcina Mare, Nr. 2, Sector 6, Bucuresti |
| 145. | Scoala Gimnaziala Nr. 88 - Bucuresti | 0213480445 | Str. Odobesti, Nr. 3, Sector 3, |
| 146. | Traian Vuia, Liceu Tehnologic de Metrologie - Bucuresti | 0213345915; 0372942097 | Sos. Vitan Barzesti, Nr. 11, Sector 4, Bucuresti |
| 147. | Iosif Sava, Scoala Gimnaziala de Arte - Bucuresti | 0212312470 | Str. Constantin Disescu, Nr. 37, Sector 1, Bucuresti |
| 148. | Scoala Gimnaziala de Arte nr. 2 - Bucuresti | 0212525703 | Bd. Ferdinand I, Nr. 128, Sectorul 2 |
| 149. | UCECOM, Colegiul Spiru Haret - Bucuresti | 0213166195; 0213166196 | Str. Economu Cezarescu, Nr. 47-59, Sector 6, Bucuresti |
| 150. | Leonardo Da Vinci, Scoala Gimnaziala Nr.75 - Bucuresti | 0213248676 | Str. Pictor Gheorghe Petrascu, Nr. 55, Sector 3, Bucuresti |
| 151. | Nicolae Tonitza, Liceu de Arte Plastice - Bucuresti | 0212302793 | Bd. Iancu de Hunedoara, Nr. 27, Sector 1, Bucuresti |
| 152. | Scoala Gimnaziala Nr. 307 - Bucuresti | 0212100012 | Str. Luncsoara, Nr. 3, Sector 2, Bucuresti |
| 153. | Cuib - After school, Bucuresti | 0751088396 | Str. Fainari, Nr. 45A, sector 2 |
| 154. | International Premium School of Bucharest | 0745028876; 0213345324 | Soseaua Berceni, Nr. 24, Sector 4 |
| 155. | Grigore Moisil, Colegiu National - Bucuresti | 0214132696; 0768191964 | Bd. Timisoara, Nr. 33, Sector 6, Bucuresti |
| 156. | Mihail Sadoveanu, Liceu teoretic - Bucuresti | 0212527856 | Str. Popa Lazar, Nr. 8A, Sector 2, Bucuresti |
| 157. | Ion I.C. Bratianu, Liceu Tehnologic - Bucuresti | 0310699448 | Str. Popa Lazar, Nr. 8A, Sector 2, Bucuresti |
| 158. | Nicolae Titulescu, Scoala Gimnaziala - Bucuresti | 0212236393 | Sos. Nicolae Titulescu, nr. 50-52, Sector 1, Bucuresti |
| 159. | Adrian Paunescu, Scoala Gimnaziala - Bucuresti | 0214133020 | Aleea Valea Prahovei, Nr. 1, Sector 6, Bucuresti |
| 160. | Scoala Gimnaziala Nr. 125 - Bucuresti | 0217765685 | Sos. Bucuresti-Magurele, Nr. 45, sector 5 |
| 161. | Montessori - Scoala si gradinita, Bucuresti | 0754054402 | Str. Maior Ion Coravu, Nr. 53, Sector 2 |
| 162. | Scoala Gimnaziala Nr. 28 - Bucuresti | 0212105910 | Aleea Circului, Nr. 1, sector 2 |
| 163. | Eremia Grigorescu, Scoala Gimnaziala - Bucuresti | 0213349243 | Str. Capitan Eremia Popescu, Nr. 27, Sector 4, Bucuresti |
| 164. | Heliade Radulescu, Scoala Gimnaziala Nr. 11 - Bucuresti | 0213163633 | Sos. Kiseleff, nr. 5, sector 1, Bucuresti |
| 165. | Benjamin Franklin, Liceu teoretic - Bucuresti | 0213244890; 0213243010 | Str. Pictor Gh. Tattarescu, Nr. 1, sector 3, Bucuresti |
| 166. | Scoala Gimnaziala Nr. 164 Sfantul Calinic de la Cernica - Bucuresti | 0214131160 | Str. Pravat, Nr. 22, Sector 6, Bucuresti |
| 167. | Tudor Vladimirescu, Colegiu National - Bucuresti | 0214103831 | Bd. Iuliu Maniu, Nr. 15, Sector 6, Bucuresti |
| 168. | Colegiul Tehnic Gheorghe Asachi - Bucuresti | 0214130438; 0787858675; 0214134040 | Aleea Pravat, Nr. 24, sector 6 |
| 169. | Scoala Gimnaziala Nr. 49 - Bucuresti | 0212502444 | Str. Vatra Luminoasa, Nr. 99, Sector 2, Bucuresti |
| 170. | Sfantul Ioan, Scoala Postliceala Sanitara - Bucuresti | 0724355298; 0787889809 | Str. Ilioara, nr. 16, et. 2, sector 3, Bucuresti |
| 171. | Liceul Tehnologic Nikola Tesla - Bucuresti | 0212527886 | Sos. Pantelimon, Nr. 25, sector 2 |
| 172. | Ion Neculce, Colegiul National Bucuresti | 0212224145; 0212224179 | Str. Ion Neculce, Nr. 2, Sector 1, Bucuresti |
| 173. | Liceul cu Program Sportiv Mircea Eliade - Bucuresti | 0213141389 | Splaiul Independentei, Nr. 315-317, Sector 6 |
| vezi mai multe | |||
| 1. | Dines, Restaurant evenimente - Bucuresti | 0213362474; 0723634741; 0727968325 (Predescu Constantin) | Cutitul de Argint, Nr.12 (langa Arenele Romane) Sector 4, Bucuresti |
| 2. | Il Cantuccio, Restaurant - Bucuresti | 0722572957 (Sef unitate: Baieticu Ioana); 0735281669 (Sef unitate: Otvos Gabriela); 0724540839 Manager: Florea Valentin) | Fabrica de Chibrituri, Nr. 2, Rond Autogara Filaret, sector 4, Bucuresti |
| 3. | Il Cantuccio, Restaurant - Bucuresti | 0722572957 (Sef unitate: Baieticu Ioana); 0735281669 (Sef unitate: Otvos Gabriela); 0724540839 (Manager: Florea Valentin) | Fabrica de Chibrituri , Nr. 2, Rond Autogara Filaret, sector 4, Bucuresti |
| 4. | B3ton - RestoBar, Bucuresti | 0217963684 | Bulevardul Marasesti, Nr. 2B, sector 4 |
| 5. | Cald si Bun, Catering - Bucuresti | 0212339457; 0737526215 | Hatmanul Arbore, Nr. 11, Sector 1, Bucuresti |
| 6. | L\'Amande - Deserturi fara gluten, Bucuresti | 0744639549 | Str. Lanariei, Nr. 93-95, sector 4 |
| 7. | Grapes - Bar cu vinuri, Bucuresti | 0770463287 | Bdul. Marasesti, nr.2B, sector 4 |
| 8. | Patiseria Tineretului - Bucuresti | 0761116622 | Bd. Gheorghe Sincai, Nr 2A, sector 4 |
| 9. | Bouzouki - Restaurant specific grecesc, Bucuresti | 0787528003 | Bulevardul Sincai Gheorghe, Nr. 3, sector 4 |
| 10. | Fabrica, Club,Pub, Tersa - Bucuresti | 0753227422; 0753315563; 0749116508 | 11 iunie, Nr,50, Sector 5, Bucuresti |
| 11. | Club B52 - Bucuresti | 0753315563 | 11 Iunie, N. 50, Sector 5, Bucuresti |
| 12. | Pizza Bar - Pizzerie, Bucuresti | 0746013623 | Lanariei, nr. 5, sector 4 |
| 13. | Cofetaria Ina - Bucuresti | 0723300213 | Str. C-tin Radulescu Motru, Nr. 6, Sector 4 |
| 14. | Thalia - Restaurant cu bucatarie internationala | 0219993 | Strada Cuza Voda, Nr. 147, sector 4 |
| 15. | Turkish Clasis - Restaurant, Bucuresti | 0721503011 | Sos Viilor, nr.27, sector 5 |
| 16. | The Temple Social Pub - Bucuresti | 0723469118 | Bd. Marasesti, Nr. 71-73 sector 4 |
| 17. | Tabiet 41 - Restaurant, Bucuresti | 0314260278 | Strada Viorele, nr.59, sector 4 |
| 18. | De Cartier - Restaurant de tip familial, Bucuresti | 0213305556 | Str. Viorele, Nr. 57A, sector 4 |
| 19. | Human Coffee - Cafenea Bucuresti | 0734744429 | Str. Elena Cuza, Nr. 8, Sector 4 |
| 20. | Mahala - Restaurant Bucuresti | 0729003002 | Calea Rahovei, Nr. 147- 153, sector 5 |
| 21. | Flair Angel - Bar specializat in cocktailuri, Bucuresti | 0769771991 | Calea Rahovei, Nr. 147-153, sector 5 |
| 22. | Hanul Hangitei, Restaurant - Bucuresti | 0744827323; 0758043355 | Bd. Marasesti, Nr.70-72, Sector 4 , Bucuresti |
| 23. | Costelaria, Restaurant - Bucuresti | 0314055095 | Calea Rahovei, Nr. 147-150 , Sector 5, Bucuresti |
| 24. | Suzana Ribs & Wings - Restaurant cu specialitati texane, Bucuresti | 0785444466 | Calea Rahovei, Nr. 147-153, Sector 5, Palatul Bragadiru |
| 25. | Baroque Events & Garden - Restaurant Bucuresti | 0726350802 | Calea Rahovei, Nr. 145, Sector 5 |
| 26. | Ivan Pescar & Scrumbia Bar - Restaurant pescaresc, Bucuresti | 0729384828 | Str. Uranus, nr 150, cladirea The Ark, parter, sector 5 |
| 27. | Trei Camile - Restaurant Bucuresti | 0747641564 | Blv. Pieptanari, Nr. 43, sector 5 |
| 28. | Cofetaria Eduard - Bucuresti | 0760944165 | Bulevardul Pieptanari, Nr. 53, sector 4 |
| 29. | Contesa, Restaurant - Bucuresti | 0731831891; 0722244214; 0213317171 | Sibiel, Nr. 5, sector 4, Bucuresti |
| 30. | La Calinescu - Restaurant cu specific romanesc, Bucuresti | 0788472725; 0213310750 | Strada Piscului, Nr. 16, sector 4 |
| 31. | Sare si Piper - Restaurant cu specific italian, Bucuresti | 0744663451 | Str. Viorele, nr. 26, zona Timpuri Noi, sector 4, Bucuresti |
| 32. | Jaristea, Restaurant - Bucuresti | 0721961936 ; 0775609233 ; 0770948868 | George Georgescu, Nr. 50-52, Sector 4, Bucuresti |
| 33. | Madame B - Tea & Pancake House, Bucuresti | 0746030670 | Splaiul Unirii, nr.49,sector 3, |
| 34. | Castronul Gustos - Restaurant, Bucuresti | 0749011588 | Str. Nasaud, nr. 97, Sector 5 |
| 35. | Elzada - Restaurant Bucuresti | 0724519898; 0722214001; 0723019747 | Soseaua Oltenitei, Nr. 13-15, Sector 4 |
| 36. | Cucina di casa - Pizzerie, Bucuresti | 0735868318 | Calea Vacaresti, Nr. 230, sector 4 |
| 37. | Trofic - Restaurant pentru mic dejun si brunch | 0751276600 | Bd. Mircea Voda, nr. 52, sector 3 |
| 38. | Horoscop, Restaurant, Pizzerie - Bucuresti | 0767562215 | Bd.Dimitrie Cantemir, Nr 2, Sector 4, Bucuresti |
| 39. | Gran Gelato Italiano - Gelaterie Bucuresti | 0730057909 | Str. Radu Voda, Nr 28 A, Sector 4 |
| 40. | Casa Brancoveanu Restaurant - Bucuresti | 0724640000; 0314245890; 0762643010 | Caramidarii de Jos, Nr.14, Sector 5, Bucuresti |
| 41. | Quartier - Restaurant, Bucuresti | 0758222244 | Bd. Mircea Voda, Nr. 43, sector 3 |
| 42. | Volare - Pizzerie, Bucuresti | 0730622600 | Calea Vacaresti, Nr.203B, sector 4 |
| 43. | Sardin - Restaurant cu specific italian, Bucuresti | 0729520111 | Bulevardul Mircea Voda, Nr. 39H sector 3, Bucuresti |
| 44. | Tarab - Restaurant cu specific libanez, Bucuresti | 0774411111 | Strada Nerva Traian, Sector 3 |
| 45. | Haute Pepper - Restaurant cu specific international, Bucuresti | 0726284280 | Bd. Unirii, nr 2, sector 4 |
| 46. | Pe Baricade | Radu Voda, nr. 23A, sector 4 | |
| 47. | Botanic - Fine dining, Bucuresti | 0721261262 | Calea Piscului, sector 4 |
| 48. | Sfeir Lebanese Cuisine - Bar & Grill | 0722311805 | Mircea Voda, Nr. 36, sector 3 |
| 49. | Cofetaria Zora - Bucuresti | 0771119563 | Strada Uranus, Nr. 100, Sector 5 |
| 50. | Sugarography - Atelier de dulciuri Bucuresti | Bucuresti, | |
| 51. | Cofetaria Macarons - Bucuresti | 0771425575 | Bucuresti, |
| 52. | Nori Sushi - Restaurant cu specific japonez, Bucuresti | 0771179714 | Splaiul Unirii, nr 6, bl B3A, etaj 7-8 |
| 53. | Trattoria Adagio - Restaurant cu specific italian Bucuresti | 0311061067; 0751218482 | Bd. Mircea Voda, Nr. 34, sector 3 |
| 54. | Ergo - Restaurant vegan, Bucuresti | 0770747559 | Bd. Unirii, Nr 5, sector 4 |
| 55. | Vis a Vis - Restaurant Bucuresti | 0722102223 | Bd. I. C. Bratianu, |
| 56. | Amnezia Caffe - Bistrou romanesc Bucuresti | 0770917737; 0724140931 | Str. Sf. Apostoli, Nr. 21, sector 4, |
| 57. | Cofetaria Dinalex - Bucuresti | 0214237928; 0785137937 | Calea Ferentari, Nr. 162, sector 5 |
| 58. | The Clique Bistro - Restaurant cu specific international, Bucuresti | 0784901000 | Splaiul Unirii, sector 3 |
| 59. | Trattoria Angoli - Restaurant cu specific italian, Bucuresti | 0728264654 | Calea Piscului, Oraselul Copiilor, Sector 4 |
| 60. | Moon Brasserie - Restaurant Bucuresti | 0723093170 | Bulevardul Unirii, Nr. 33, sector 3 |
| 61. | The Dock - Lounge, Bucuresti | 0743680336 | Bulevardul Unirii, nr. 30, sector 3 |
| 62. | Ubuntu Coffee - Terasa, Bucuresti | 0758635771 | Splaiul Unirii, Nr. 195, sector 3 |
| 63. | Get Naked by Bordello - Restaurant pentru mic dejun si brunch, Bucuresti | 0748881086 | Bd. Unirii, intre Bd Dimitrie Cantemir si Bd Mircea Voda |
| 64. | Citylicious - Restaurant Bucuresti | 0771707709 | Bld Tudor Vladimirescu, Nr. 29, sector 5 |
| 65. | JO Lounge - Bar, Bucuresti | 0721811995 | Bd. Unirii, sector 3 |
| 66. | Fabrica de mancare - Restaurant cu supe si ciorbe, Bucuresti | 0744123123 | B-dul Unirii, nr. 31, sector 3 |
| 67. | Hanul Berarilor Interbelic, Restaurant - Bucuresti | 0213368009; 0729400800 | Poenaru Bordea , Nr. 2, Sector 5, Bucuresti |
| 68. | Restaurant Karta - Bucuresti | 0744391111 | Bd. Unirii, Nr. 22, sector 3 |
| 69. | #Aici - Bar, Bucuresti | 0799124330 | Bulevardul Unirii, Nr 35, Sector 3, Bucuresti |
| 70. | Efes - Restaurant cu specific turcesc, Bucuresti | 0737018590 | Bulevardul Nerva Traian, Nr. 17 - 19, sector 3 |
| 71. | Andy Park Ballroom - Salon de evenimente Bucuresti | 0724607607 | Soseaua Oltenitei, Nr. 13-15, Sector 4 |
| 72. | Vivono Pizza - Pizzerie, Bucuresti | 0784000212 | Strada Telita, Nr.54, Sector 5 |
| 73. | Mazzaj Cafe - Restaurant cu specific libanez, Bucuresti | 0757292398 | Splaiul Unirii, Nr. 162, sector 4 |
| 74. | McDonald\'s | 0372701091 | Piata Unirii 1, Unirea Shopping Center, Bucuresti |
| 75. | Prajiturel - Cofetarie Bucuresti | 0760858880 | Strada Stoian Militaru, Nr. 63, sector 4 |
| 76. | Old Mike Pub si Restaurant - Bucuresti | 0787366166 | Morilor, Nr. 46 Sector 3, Bucuresti |
| 77. | Big Ben - Pub cu specific britanic, Bucuresti | 0756110089 | Str. Franceza, nr. 52, sector 3 |
| 78. | Efendi Doner - Restaurant fast-food, Bucuresti | 0730578472 | Str. Selari, nr. 2, sector 3 |
| 79. | Sublimmme - Restaurant vegetarian/vegan, Bucuresti | 0771135605 | Splaiul Independentei, NR 2F, sector 3 |
| 80. | The Urbanist - Bar specializat in cocktailuri, Bucuresti | 0741392558 | Strada Caldarari, Nr. 3, sector 3 |
| 81. | Emozia coffee manifesto - Cafenea, Bucuresti | 0742023590;0726201527 | Strada Halelor, nr. 17, sector 3 |
| 82. | Encore Club - Bar specializat in bere | 0786247745 | Nicolae Tonitza, nr. 13, sector 3 |
| 83. | Velluto - Gelaterie, Bucuresti | 0728991969 | Splaiul Independentei, Nr 2J, sector 3 |
| 84. | Hanul lui Manuc, Restaurant si Cafenea - Bucuresti | 0213131411; 0769075844; 0730188653 | Franceza, Nr. 62-64, Sector 3 , Bucuresti |
| 85. | Kilkenny Irish Pub - Bucuresti | 0751041110 | Str Franceza, Nr. 46-48, sector 3 |
| 86. | Mica Elvetie Restaurant - Bucuresti | 0212245017 | Franceza, Nr. 60-62, Sector 3, Bucuresti |
| 87. | Mica Elvetie Restaurant | 0212245017 | Franceza, Nr. 60-62, Sector 3, Bucuresti |
| 88. | Hanul lui Manuc, Restaurant - Bucuresti | 0213131411; 0769075844; 0730188653 | Franceza, Nr. 62-64, Sector 3, Bucuresti |
| 89. | MagiCake - Atelier de dulciuri artizanale, Bucuresti | 0772072072 | Strada Alexandru Moruzzi, Nr. 4A, sector 3 |
| 90. | Yasmin Bakery - Cofetarie, Bucuresti | 0721076376; 0760272225 | Calea Rahovei, nr.322 sector 5 |
| 91. | Anika - Restaurant cu specific romanesc Bucuresti | 0726400148 | Str. Pictor Nicolae Tonitza, Nr.10, sector 3 |
| 92. | Calif - Restaurant fast-food, Bucuresti | 0756200325 | Selari, Nr. 19, sector 3, |
| 93. | Hanul lui Manuc, Restaurant - Bucuresti | 0730188653; 0213122811; 0769075844 | Franceza , Nr. 62-64, Sector 3 , Bucuresti |
| 94. | La Colt - Bar & Grill, Bucuresti | 0371179862 | Strada Telita, Nr 1, sector 5 |
| 95. | Delicii Libaneze - Gelaterie, cofetarie, ciocolaterie Bucuresti | 0725115811 | Str. Franceza, Nr. 13, sector 3 |
| 96. | Time to Lunch | 0763200900 | Strada Patriei, Nr 4, sector 3 |
| 97. | Shoteria - Shotbar, Bucuresti | 0721203039; 0372916947 | Strada Selari, Nr. 17, sector 3 |
| 98. | Il Peccato, Restaurant - Bucuresti | 0213116767; 0765301300 | Franceza, Nr. 30,Sector 3, Bucuresti |
| 99. | Nomad Skybar - Restaurant, bar, club, Bucuresti | 0735448080 | Strada Smardan, Nr 30, sector 3 |
| 100. | Oby - Fast Food, Bucuresti | 0768955169 | Calea Ferentari, nr. 177, sector 5 |
| 101. | Arcade Cafe - Bucuresti | 0722777674 | Smardan, Nr.30, (Centrul vechi), Sector 4, Bucuresti |
| 102. | Private Hell - Club, Bucuresti | 0757508336 | Str. Soarelui, nr. 5, Sector 3 |
| 103. | Burger si Scoici - Restaurant cu burgeri Bucuresti | 0753300333 | Strada Smardan, Nr. 41, Sector 3 |
| 104. | Freddo Pub - Club de noapte si de dans, Bucuresti | 0722373336 | Str Smardan, nr 24, sector 3, |
| 105. | Tarta Ta - Delicii traditionale, Bucuresti | 0771522117 | Bulevardul Mircea Voda, Nr. 52, sector 3 |
| 106. | Lacrimi si Sfinti, Restaurant - Bucuresti | 0725558286; 0372773999 | Sepcari, Nr.16 (Centrul Vechi) Sector 3, Bucuresti |
| 107. | Hop Garden - Restaurant cu preparate la gratar, Bucuresti | 0770448443 | Splaiul Unirii, Nr. 225, sector 3 |
| 108. | Bodega La Mahala - Restaurant Bucuresti | 0732166606 | Covaci, Nr. 8, Sector 3 |
| 109. | Curtea Berarilor, Restaurant terasa - Bucuresti | 0213137532 | Selari, Nr.9-11, sector 3, Bucuresti |
| 110. | Curtea Berarilor, Bar & Grill - Bucuresti | 0213137532; 0735861682 (Radu); 0735861681 (Sorina) | Selari, Nr. 9-11,Sector 3 (Zona Lipscani), Bucuresti |
| 111. | Industry Wine Bar- Bar cu vinuri, Bucuresti | 0722777222 | str. Sepcari, Nr. 19, sector 3 |
| 112. | Bazaar - Restaurant Bucuresti | 0721999999 | Strada Covaci, Nr. 10, sector 3 |
| 113. | Les Bourgeois - Bucuresti | 0720132994; 0213106052 | Smardan, Nr. 20, Sector 3, Bucuresti |
| 114. | Fire Club Pub - Bucuresti | 0732166604 | Covaci, Nr. 7, Sector 3, Bucuresti |
| 115. | 1974 Niste Domni si Fii - Bar Restaurant Bucuresti | 0721551099; 0723629306 | Covaci, Nr. 7, Sector 3, Bucuresti |
| 116. | Borsalino - Pizzerie Bucuresti | 0729954911; 0729954912 | Bulevardul Ion C. Bratianu, Nr. 44, Sector 3 |
| 117. | Distrikt 42 - Restaurant Bucuresti | 0213156699 | Str. Sfantul Dumitru, Nr. 3, sector 3 |
| 118. | Fresh Chicken - Restaurant cu preparate la gratar | 0724392216 | Str Mihail Sebastian, nr 48, sector 5 |
| 119. | Storage Room - Bar, Bucuresti | 0732363712 | Strada Smardan, Nr. 35, sector 3 |
| 120. | Boulevard Pub - Bucuresti | 0753966961 | Strada Covaci, Nr. 4, sector 3 |
| 121. | Aubergine Healthy Food - Restaurant cu mancare sanatoasa, Bucuresti | 0213137548 (Smardan); 0771358661 (Aviatorilor) | Strada Smardan, Nr 33, sector 3, Bucuresti |
| 122. | Bruno Wine Bar - Bar cu vinuri, Bucuresti | 0751220229 | Strada Covaci, Nr. 3, Centrul Vechi |
| 123. | Sinners - Pub, Bucuresti | 0737343210 | Covaci, nr.2 , Centrul Vechi, sector 3 |
| 124. | Taverna Covaci - Restaurant cu specific romanesc, Bucuresti | 0747226677 | Str. Covaci, Nr. 1, sector 3 |
| 125. | iDracula - Restaurant tematic, Bucuresti | 0753476142;0752559457 | Str. Selari, Nr. 10-12, Centrul Vechi, sector 3 |
| 126. | Photo Cake Cofetarie Bucuresti | 0729737619 ; 0723564103 | Obolului, Nr.9, Sector 4, Bucuresti |
| 127. | Barfly Bucuresti | 0727394131; 0721652899 | Olteni , Nr. 3, Sector 3, Bucuresti |
| 128. | Patrick Irish Pub & Restaurant - Bucuresti | 0213130336; 0314360112; 0755110008 | Smardan, Nr. 23-25, sector 3, Bucuresti |
| 129. | Mojo Music Club - Bucuresti | 0737220220 | Gabroveni, Nr.14, Sector 3, Bucuresti |
| 130. | La 100 de Beri - Bar specializat in bere, Bucuresti | 0733282598 | Str. Gabroveni, Nr.61, sector 3 |
| 131. | Casa Nica, Restaurant - Bucuresti | 0724373558; 0723641985 | Peroni, Nr. 28 (vis-a-vis de benzinaria Lukoil), sector 4, Bucuresti |
| 132. | Bere si Bere - Pub, bere craft si muzica rock | 0723280040 | Str. Gabroveni, Nr. 4, sector 3 |
| 133. | Zoomserie - Cofetarie Bucuresti | 0751222265 | Sf. Vineri, Nr. 23, sector 3, intersectia Coposu (Calarasilor), |
| 134. | Kiosque des Douceurs - Cofetarie Bucuresti | 0758090763 | Str. Selari, Nr. 3, Sector. 3, Centrul Vechi |
| 135. | Gyros Thessalonikis | 0770302148 | Strada Gabroveni, Nr. 2,sector 3 |
| 136. | La Machedoni - Restaurant cu specific traditional romanesc si american | 0721512236 | Anastasie Panu, nr. 10, sector 3 |
| 137. | UAU Il Gelato - Gelaterie Bucuresti | 0723135015 | Str. Gabroveni, Nr. 1-3, sector 3, |
| 138. | Bucatarasul cel Dibaci - Restaurant cu specific romanesc, Bucuresti | 0730340436;0760966360 | Strada Olteni, Nr 3, sector 3 |
| 139. | Old Habits - Club de noapte si de dans | 0728776699 | Strada Lipscani, Nr. 38, sector 3 |
| 140. | Pizzeria La Coco - Bucuresti | 0731744444 | Str. Gabroveni, Nr. 31, Sector 3 |
| 141. | Caru\' cu Bere, Restaurant - Bucuresti | 0213137560; 0726cubere; 0726282373 | Stavropoleos , Nr. 3-5, Sector 3, Bucuresti |
| 142. | Artist Cafe - Cafenea Bucuresti | 0756777577 | Str. Lipscani, Nr. 30-34, sector 3 |
| 143. | Naive - Restaurant cu bar, Bucuresti | 0725550333 | Bd. I.C. Bratianu, Nr. 36, sector 3 |
| 144. | Level Up - Restaurant raw vegan, Bucuresti | 0721085582 | Str Sf. Vineri, Nr 10, sector 3 |
| 145. | Xclusive Pub - Bar & Grill, Bucuresti | 0723166463 | Str. Lipscani, nr. 36, sector 3 |
| 146. | Comics Club - Stand Up, Bucuresti | 0741426426 | Str. Nerva Traian, Numarul 4. sector 3 |
| 147. | Extra Time - Pub Bucuresti | 0732166605 | Strada Lipscani, Nr. 82A, sector 3 |
| 148. | Maroon - Maroon Restaurant Cafe | 0742420000; 0764900000 | Bulevardul Unirii, Nr. 47 C, Sector 3 |
| 149. | Beraria Centrala - Restaurant Bucuresti | 0740959311 | Strada Nerva Traian, Nr. 2, Sector 3 |
| 150. | Berestroika - Beer Revolution - Bucuresti | 0722560300; 0721100000; 0733200000 | Aleea Cauzasi, Nr. 57, Sector 2, Bucuresti |
| 151. | Mao Pub - Bucuresti | 0771305995 | Str. Lipscani, Nr. 69, Sector 3 |
| 152. | Gilda Music Lounge - Restaurant club Bucuresti | 0786770941 | Strada Lipscani, Nr. 53, sector 3 |
| 153. | Times Cocktail Bar - Pub, Bucuresti | 0731032330 | Intrarea Nicolae Selari, nr.1,sector 3, |
| 154. | Tag Aperitivo Bar - Bucuresti | 0721888522 | Strada Lipscani, nr. 27, sector 3 |
| 155. | Saray - Restaurant cu specific turcesc, Bucuresti | 0733135834 | Lipscani, Nr. 21, sector 3 |
| 156. | Restaurant Interbelic - Bucuresti | 0733413133 | Str Petre Ispirescu, Nr. 6A, sector 5 |
| 157. | The Drunken Lords - Pub, Bucuresti | 0736238815 | Intr. Selari, Nr. 3-5, sector 3 |
| 158. | Latin Pizza - Pizzerie, Bucuresti | 0751896358 | Bulevardul Ion C. Bratianu, Nr. 34, sector 3 |
| 159. | Noeme - Restaurant Bucuresti | 0721490270 | Anton Pann, Nr. 29, sector 3 |
| 160. | Argentin - Restaurant Bucuresti | 0774462430; 0774462431 | Strada Blanari, Nr. 11-15, Sector 3 |
| 161. | Din Fu - Restaurant chinezesc Bucuresti | 0729313338; 0213260127 | Str. Alexandru Moruzzi, Nr. 76A, Sector 3 |
| 162. | Scovergaria Micai - Patiserie, cofetarie Bucuresti | 0314253670 | Calea Victoriei, Nr. 14 colt cu Lipscani 19, sector 3 |
| 163. | Pekin, Restaurant chinezesc - Bucuresti | 0213103160; 0723233169; 0769414020 | Calea Victoriei, Nr. 16-20, pasaj Villa Cross, Sector 3, Bucuresti |
| 164. | Parliament, Restaurant - Bucuresti | 0214119990; 0214119991; 0721332397 | Izvor , Nr. 106, Sector 5 , Bucuresti |
| 165. | Parliament, Restaurant - Bucuresti | 0214119990; 0214119991; 0721332397 | Str. Izvor, Nr. 106, Sector 5 , Bucuresti |
| 166. | Linea - Closer To The Moon, Bucuresti | 0757824298 | Calea Victoriei, nr. 17, sector 3 |
| 167. | Bemolle Cafe - Bucuresti | 0213118382; 0723188953 | Calea Victoriei , Nr.16-18-20 (Pasaj Villacrosse), Sector 3, Bucuresti |
| 168. | Thors Hammer - Bar Bucuresti | 0729176724 | Str Blanari, Nr. 12, sector 3 |
| 169. | Manasia Hub - Bar Bucuresti | 0736760063 | Str. Stelea Spatarul, Nr. 13, sector 3 |
| 170. | Casa Bia - Restaurant Bucuresti | 0761241623 | Str. Sebastian Mihail, Nr. 19, sector 5 |
| 171. | Origo Coffee Shop - Bucuresti | 0757086689 | Lipscani, Nr. 9,Sector 3, Bucuresti |
| 172. | WHYS - Bar, Bucuresti | 0785059173 | Pasajul Macca-Villacrosse, sector 3 |
| 173. | Hugo Bar - Cafenea cu narghilele, Bucuresti | 0732397953 | Calea Victoriei, 16-18-20, sector 3 |
| 174. | Vilacrosse, Restaurant Cafe Bistro - Bucuresti | 0728358304 | Str. Eugen Carada, nr. 7, sector 3, |
| 175. | Rai de Dulce - Laborator de cofetarie si patiserie Bucuresti | 0735632709; 0731885888 | Calea Rahovei, Nr. 374, sector 5 |
| 176. | Britannia - Restaurant, Bucuresti | 0725998899 | Strada Petre Ispirescu, Numarul 9 b, Sector 5 |
| 177. | Vilacrosse, Bistro, Restaurant - Bucuresti | 0728358304; 0744796894 | Eugeniu Carada, Nr. 7, Sector 3, Bucuresti |
| 178. | Energiea - Pub Bucuresti | 0736374432 | Str. Actor Ion Brezoianu, Nr. 4, Sector 5 |
| 179. | SanThe Fitoceainarie - Ceainarie, Bucuresti | 0730370290 | Lipscani, nr 104, sector 3, |
| 180. | Valea Regilor - Cafenea, Bucuresti | 0213112969 | Calea Victoriei, 16-20, Centrul Vechi, sector 3 |
| 181. | Q Marttinez - Restaurant cu specific european, Bucuresti | 0725682944 | Eugeniu Carada, Nr. 7, sector 3 |
| 182. | Paine si Vin - Bar cu vinuri, Bucuresti | 0755028448 | Str. Actor Ion Brezoianu, Nr. 4, sector 5 |
| 183. | Koffeev - Cafenea, Bucuresti | 0767195222 | Bulevardul Unirii, Nr. 57, sector 3 |
| 184. | Hygge - Restaurant Bucuresti | 0771114875 | Calea Victoriei, Nr. 21, sector 3 |
| 185. | Said - Fast Food, Bucuresti | 0772229461; 0773755896 | Calea Rahovei, Nr. 390, sector 5 |
| 186. | Noa Restoclub - Restaurant Bucuresti | 0799747557 | Calea Victoriei, Nr 26 Sector 3 |
| 187. | Influence - Restaurant, Bucuresti | 0745172403 | Soseaua Oltenitei, Nr. 39-41, sector 4 |
| 188. | Hanul Haiducilor, Restaurant - Bucuresti | 0213307207; 0771756566 | Pridvorului, Nr. 25 (In incinta Strandul Copiilor Vacaresti) , Sector 4, Bucuresti |
| 189. | Alouette - Restaurant cu specific international, Bucuresti | 0746339793 | Splaiul Unirii, Nr. 168, sector 4, |
| 190. | Barocco Bar - Bucuresti | 0755028028; 0740114132 | Domnita Anastasia, Nr.10 (In spatele McDonalds Regina Elsiabeta), Bucuresti |
| 191. | Leonidas Cofetarie - Bucuresti | 0740014695; 0213141377 | Doamnei, Nr. 27 , Sector 3, Bucuresti |
| 192. | Hanul Vacaresti - Restaurant fast-food, Bucuresti | 0786200300 | Strada Pridvorului, nr. 23, sector 4 |
| 193. | Miss Ale - Bar specializat in cocktailuri | 0745089700 | Constantin F Robescu, Nr 2, sector 3 |
| 194. | Lloyds Pub - Bucuresti | 0723133786 | Str. Coltei, Nr. 16, Sector 3 |
| 195. | Robescu 14 - Bar specializat in cocktailuri | 0773741922 | Strada Robescu F. Constantin, Nr. 14, sector 3 |
| 196. | Elisabeta, Restaurant - Bucuresti | 0727703703; 0724323132 | Bd. Regina Elisabeta, Nr. 45, Sector, Bucuresti |
| 197. | Jos Palaria Cafe - Bucuresti | 0314321029 | Toma Caragiu , Nr. 3, Sector 3 , Bucuresti |
| 198. | Aria Gourmet Burger - Fast food Bucuresti | 0773778860; 0773778860 | Strada Slanic, Nr. 2, Sector 3 |
| 199. | Saint Gelato - Gelaterie Bucuresti | 0745205405 | Bulevardul Regina Elisabeta, Nr. 26, Sector 3 |
| 200. | Pizza Hut - Bucuresti | 0740121903 | Bd. Regina Elisabeta, nr. 15-19, sector 3 , |
| 201. | Terasa Oasis - Restaurant Bucuresti | 0733638577 | Mihail Sebastian, Nr.102. Sector 5, Bucuresti |
| 202. | Chaya TeaHouse - Ceainarie Bucuresti | 0755331000 | Strada Radu Ceaus, Nr. 7, sector 3 |
| 203. | The Pub - Bucuresti | 0728843782 | Bulevardul Regina Elisabeta, Nr. 9, sector 3 |
| 204. | King Rolls - Fast Food Bucuresti | 0747887206 | Calea Vitan, Nr. 17A, sector 3 |
| 205. | Cercul Militar National, Restaurant - Bucuresti | 0213143735; 0213149551; Fax: 0372874921 | Constantin Mille, Nr.1-3, Sector 1, Bucuresti |
| 206. | Kicen - Ciorbe de casa, Bucuresti | 0751012221 | str. Dr. Staicovici, nr. 43, sector 5 |
| 207. | Resto Aperto, Restaurant - Bucuresti | 0738741118 | Calea Vitan, Nr.55-59 (Bucuresti Mall) Sector 3, Bucuresti |
| 208. | La Nenea Iancu - Restaurant cu specific romanesc, Bucuresti | 0745140786 | Str. Romulus, nr. 55, sector 3 |
| 209. | Capsa Cofetarie Bucuresti | 0213134038; 0213135999 | Calea Victoriei, Nr. 36, Sector 1, Bucuresti |
| 210. | Casa Capsa, Restaurant - Bucuresti | 0213134038; Fax: 0213135999 | Calea Victoriei, Nr. 36, Sector 1, Bucuresti |
| 211. | Cuibul Randunelelor - Restaurant Bucuresti | 0214244218 | Strada Focsani, Nr. 38, sector 5 |
| 212. | Capitol Hotel si Restaurant - Bucuresti | 0213158030; 0317107007 | Calea Victoriei , Nr. 29, Sector 1 , Bucuresti |
| 213. | Big Mic - Restaurant, terasa si pizzerie, Bucuresti | 0739244642 | Str. Gospodinelor, Nr. 31, sectorul 4 |
| 214. | Jack Pot - Bar specializat in cocktailuri, Bucuresti | 0372916947; 0770776777 | Zborului, nr. 2, sector 3 |
| 215. | Resto Aperto, Restaurant - Bucuresti | 0738741118 | Calea Vitan , Nr.55-59(Bucuresti Mall) Sector 3, Bucuresti |
| 216. | Ramada Majestic, Hotel si Restaurant - Bucuresti | 0213102715 | Calea Victoriei, Nr. 38-40, Sector 1 , Bucuresti |
| 217. | Krishna Caffe - Cafenea Bucuresti | 0729745988;0740133254 | Bd. Mihail Kogalniceanu, Nr. 17, sector 5, |
| 218. | Ceainaria Infinitea | 0723175300 | Str. Dr. Grigore Romniceanu, Nr.7, ap.2, sector 5 |
| 219. | Kuma Bar - Bucuresti | 0766440936 | Strada Coltei, Nr. 50, sector 3 |
| 220. | The Old Sibiu - Restaurant evenimente Bucuresti | 0723602560; 0723637769; 0721172390 | Str. Ion Otetelesanu,, Nr. 3A-3B, Sector 1 |
| 221. | Colosseum, Restaurant - Bucuresti | 0721243613; 0213131860; 0219689 | Calea Victoriei , Nr. 48-50 (Pasajul Victoria), sector 1, Bucuresti |
| 222. | Surubelnita - Club, Bucuresti | 0768743593 | Str. Calea Mosilor, nr. 100, sector 2 |
| 223. | Jazz Book - Club de jazz si blues, Bucuresti | 0752206746 | Doctor Carol Davila, Nr. 1, Cotroceni, sector 5 |
| 224. | Fendi Kebap - Restaurant fast-food, Bucuresti | 0314051091 | Str. Novaci, |
| 225. | Papila Kitchen - Restaurant, Bucuresti | 0753087799 | Strada Sfintilor, Nr 6, sector 2 |
| 226. | Casa Lazar - Restaurant Bucuresti | 0764024444; 0738794310; 0735778229 | Serg. Maj. Ion Nedeleanu, Nr. 8, sector 5 |
| 227. | Colosseum Pizza - Bucuresti | 0721243613; 0213131860; 0213121020 | Calea Victoriei, Nr. 48-50 (Pasajul Victoria), Sector 1, Bucuresti |
| 228. | Colosal - Fast Food, Bucuresti | 0737698255 | Strada Mihail Sebastian, Nr. 133, sector 5 |
| 229. | La Ciurucuri - Restaurant cu specific international, Bucuresti | 0752850850 | Piata Valter Maracineanu, Nr 1-3, sector 1 |
| 230. | Restaurant Grill Verdetei 5 - Restaurant cu preparate la gratar, Bucuresti | 0766411338 | Strada Verdetei, nr. 5, sector 3 |
| 231. | Ivy - Cafenea, Bucuresti | 0755210748 | Bulevardul Carol I, Nr. 23, sector 2 |
| 232. | Legere - Bar, Bucuresti | 0730534373 | Piata Rosetti, nr 5, sector 2 |
| 233. | Bellagio Villa Restaurant - Bucuresti | 0213440661; 0771120177 | Vrejului, Nr. 21, Sector 3, Bucuresti |
| 234. | Buoni e Bravi - Pizzerie, Bucuresti | 0735215224 | Piata C. A. Rosetti, nr. 3, sector 2 |
| 235. | OPUS TNB - Bar specializat in cocktailuri | 0771595407 | Bulevardul Nicolae Balcescu, Nr. 2, sector 1 |
| 236. | Boutique Du Pain - Restaurant cu specific francez, Bucuresti | 0728443300 | Academiei, Nr. 28-30, sector 1 |
| 237. | Simbio - Restaurant Bucuresti | 0756746246 | Str Negustori, nr. 26, sector 2 |
| 238. | Borgo Stagioni - Restaurant Bucuresti | 0732163287; 0722220223 | Calea Calarasi, Nr. 78, Sector 3 |
| 239. | Bocca Lupo - Restaurant cu specific italian, Bucuresti | 0314050050 | Strada Dr. Lister, nr. 1, sector 5 |
| 240. | Bike Boutique and More - Magazin, terasa, service, Bucuresti | 0752405152 | Strada Profesor Doctor Victor Babes, Nr. 2, sector 5 |
| 241. | La petite bouffe - Cafenea, Bucuresti | 0733669344 | Strada Doctor Louis Pasteur, nr 38, sector 5 |
| 242. | Frufru, Fresh, natural, yummy , Fast food - Bucuresti | 0212221111; 0765346715 | Batistei , Nr. 1-3, Sector 2, Bucuresti |
| 243. | Cofetaria Maia Artizan Bakery - Bucuresti | 0762298622 | Str. Margeanului, Nr. 115, sector 5 |
| 244. | Excalibur, Restaurant - Bucuresti | 0730190364; Tel Fax: 0213145670 | Academiei, Nr. 39-41, Sector 1 , Bucuresti |
| 245. | Angelo Grasso - Restaurant cu specific italian, Bucuresti | 0739955555 | Strada Tudor Arghezi, 12-16, sector 2 |
| 246. | Panorama Kebap - Restaurant fast food, Bucuresti | 0766244009 | Str Margeanului, Nr.115, sector 5 |
| 247. | Kvala - Restaurant grecesc, Bucuresti | 0726731663 | str Louis Pasteur, nr 63, sector 5 |
| 248. | Bistro Turturelelor - Restaurant, Bucuresti | 0726310583; 0758887454 | Strada Turturelelor, 11A, corpC, Parter, Sector 3 |
| 249. | Giorginio Cofetarie - Bucuresti | 0722434002 | Calea Dudesti, Nr. 129 (colt cu str. Scoala Ciocanul) Sector 3, Bucuresti |
| 250. | Piticot, Cofetarie Bucuresti | 0214206670; 0726714865 Whatsapp | Petre Ispirescu, Nr. 77, Sector 5, Bucuresti |
| 251. | Mr. Cigkofte - Restaurant fast-food, Bucuresti | 0720802181 | Nicolae Balcescu, Nr. 18, sector 1 |
| 252. | Monte Carlo Cismigiu, Restaurant - Bucuresti | 0213131344 | Parcul Cismigiu, Parcul Cismigiu, Sector 1 , Bucuresti |
| 253. | Il Grande - Pizzerie Bucuresti | 0763544930; 0731581447 | Str. Iacob Andrei, Nr. 26, sector 5 |
| 254. | Monte Carlo Cismigiu, Restaurant - Bucuresti | 0213131344 | Parc Cismigiu, Sector 1, Bucuresti |
| 255. | Casa Ede - Restaurant & Beauty - Barber Salon Bucuresti | 0772019516 | Strada Armeneasca, Nr. 8, sector 2 |
| 256. | Royal Kebap - Restaurant fast-food, Bucuresti | 0730242360 | Strada Margeanului, Nr. 105 C, sector 4 |
| 257. | Gradina Urbana - Restaurant cu specific american, Bucuresti | 0745250077 | Strada Batistei, Nr. 14, sector 2 |
| 258. | Arogant - Restaurant & Lounge, Bucuresti | 0732764268 | Piata Alba Iulia Piata Alba Iulia, nr 8, sector 3 |
| 259. | Kentucky Fried Chicken KFC, Fast Food - Bucuresti | 0757015948; 0212039030; 0213120023 | Soseaua Oltenitei, Nr.85, Sector 4, Bucuresti |
| 260. | Urban Bistro - Restaurant cu fripturi, Bucuresti | 0769918510 | Strada Piata Sfantu Stefan, Nr 6, sector 2 |
| 261. | Kane - Noua bucatarie romaneasca fina | 0314100016 | Str. Dianei, nr. 9 (Piata Rosetti), sector 2 |
| 262. | Calderon 18 - Restaurant cu terasa, Bucuresti | 0731886789 | Str. Jean Louis Calderon, Nr.18, sector 2, |
| 263. | Rawyal brunch & cakes - Bucuresti | 0730777221 | Calea Mosilor, Nr 105, Sector 2 |
| 264. | Gio Cafe - Bucuresti | 0730030757 | Bd. Burebista, Nr.2 , Sector 3, Bucuresti |
| 265. | Nikos Greek Taverna, Restaurant - Bucuresti | 0730001008 (Restaurant); 0215999099 (Livrari) | B-dul Burebista, Nr 2 (Piata Alba Iulia), Sector 3, Bucuresti |
| 266. | Bravu Burger & Crepes - Restaurant fast-food, Bucuresti | 0722118100 | Soseaua Mihai Bravu, Nr 452 - 460, sector 2 |
| 267. | FoodVibe - Serviciu de livrare mancare | 0371333222 | Strada Sperantei, nr. 7, sector 2 |
| 268. | Nice Touch - Restaurant cu meniu international, Bucuresti | 0771568361 | Strada Sperantei, nr.7, sector 2 |
| 269. | Gambino\'s Pizza - Bucuresti | 0731707070; 0725271471; 0310050209 | Vasile Lascar, Nr.24, Sector 2, Bucuresti |
| 270. | You & Me - Restaurant cu specific international, Bucuresti | 0733918474 | Bd. Constantin Brancoveanu, Nr. 110 D (langa Spitalul de copii Marie Curie), Bucuresti |
| 271. | Green Tea Ceainarie - Bucuresti | 0213209396; 0749090202 | Dr. Burghelea, Nr. 24, Sector 2, Bucuresti |
| 272. | Casa Banil Restaurant - Bucuresti | 0214105716; 0723391161; 0724159949 | Petre Ispirescu , Nr. 95, Sector 5, Bucuresti |
| 273. | Bistro Fum de Vorbe - Restaurant Bucuresti | 0748628830; 0723686292 | Vasile Lascar, Nr. 24, Sectorul 2 |
| 274. | Old School, Restaurant - Bucuresti | 0744105445; 0745110362 | Calea Plevnei, Nr. 61, Sector 6, Bucuresti |
| 275. | Excellence - Restaurant Bucuresti | 0723888822 | Strada Petre Ispirescu, Nr. 110-112, sector 5 |
| 276. | Politica si Delicateturi Bucuresti - Restaurant cu specific romanesc | 0785516681 | Str. Prof. Dr. Mihail Georgescu, Nr. 24, sector 2 |
| 277. | Elena - Restaurant cu specific romanesc, cu terasa, organizare evenimente, Bucuresti | 0747277232 | Calea 13 Septembrie, Nr. 289, Sector 5, Bucuresti |
| 278. | Trattoria Fresca - Restaurant cu specific italian, Bucuresti | 0731333410 | Str.Popa Nan, nr.140, Sector 2 |
| 279. | Bohemia Tea House, Ceainarie - Bucuresti | 0727333631 | Poiana Narciselor, Nr. 1 (vizavi de Conservator), Sector 1, Bucuresti |
| 280. | Wicked Bar - Bucuresti | 0722615188; 0723574895 | Strada Spatarului, Nr. 4, Sector 2, Bucuresti |
| 281. | El Bacha, Restaurant - Bucuresti | 0212691392; 0722833333 | P-ta Alba Iulia, nr.6 bl.15, sector 3, |
| 282. | DolciConi - Gelaterie Bucuresti | 0753762549 | Vasile Lascar, Nr 26-28, sector 2 |
| 283. | Willy\'s Coffee Art - Bucuresti | 0769911077 | Bulevardul Carol I, Nr 62, sector 2, |
| 284. | QP Pub - Bucuresti | 0736405451 | Str. General David Praporgescu, Nr. 13, sector 2 |
| 285. | Cofetaria Madlene - Bucuresti | 0753223222 | Str. Traian, Nr.103, sector 2 |
| 286. | EXPRESS Food & Drink - Restaurant fast-food, Bucuresti | 0732669922 | Bd. CAROL I, Nr. 62, Sector 2 |
| 287. | Beautyfood - Bistro, Bucuresti | 0759030609 | Jean Louis Calderon, Nr. 34, sector 2 |
| 288. | Imperial Turkish Cuisine & Steakhouse- Restaurant Bucuresti | 0720102222 | Strada Jean Louis Calderon, Nr. 33, Sector 2 |
| 289. | Delarte Pizza, Pasta & Grill - Bucuresti | 0733352783; 0755487273; 0217802500 | Corbita, Nr.3,Sector 5, Bucuresti |
| 290. | Derby Pub & Restaurant - Bucuresti | 0214108545 | Bd. Eroilor Sanitari , Nr. 49A,sector 5, Bucuresti |
| 291. | Tulin, Restaurant libanez - Bucuresti | 0213144001; 0762212675 | Pictor Constantin Stahi, Nr. 2, Sector 1, Bucuresti |
| 292. | Graffiti Urban Food, Bucuresti | 0749433433; 0733695443; 0769180180 | Str.Carol Davila, Nr. 56A, Sector 5, Bucuresti |
| 293. | Posh Birt Select - Pub, Bucuresti | 0724004376 | Strada Plantelor, Nr. 26, sector 2 |
| 294. | Le Boutique Food Concept Store - Bucuresti | 0722538274; 0314380044 | Str. Sfantul Stefan, Nr. 13, sector 2 |
| 295. | GinOteca - Bar, Bucuresti | 0751446446 | Strada Plantelor, Nr. 25, sector 2 |
| 296. | Rainbow - Bar & Grill, Bucuresti | 0743205054 | Cornul Caprei, nr.53, sector 3 |
| 297. | Cesme - Restaurant cu specific turcesc, Bucuresti | 0721163176 | Str. Calea 13 Septembrie, Nr 272, sector 5 |
| 298. | Mantuleasa 40 - Restaurant Bucuresti | 0754045450; 0751133141 | Str. Mantuleasa, Nr. 40, sector 2 |
| 299. | Osteria Zucca - Restaurant cu specific italian, Bucuresti | 0770287979; 0314206814 | Jean-Louis Calderon, Nr. 41, Sector 2, Bucuresti |
| 300. | Erra - Restaurant cu specific european modern, Bucuresti | 0734983984 | Str. Constantin Nottara, Nr 13, sector 3 |
| 301. | BEAT bar umanist - Bar, Bucuresti | 0720854187 | Vasile Lascar, Nr. 29, sector 2 |
| 302. | Andros - Cofetarie, Bucuresti | 0748888847 | Str. Antiaeriana, nr. 5, sector 5, |
| 303. | Gustul Pasiunii Cofetarie - Bucuresti | 0728941816 | Racari, Nr. 5, sector 3, Bucuresti |
| 304. | Sarazin - Carol Fast food Bucuresti | 0787625505 | Bulevardul Carol I, Nr. 66, Sector 2, |
| 305. | Galeto - Restaurant Bucuresti | 0765253555 | Strada Nitu Vasile, Nr 61, sector 4 |
| 306. | Athénée Palace Hilton,Cafenea,Baruri - Bucuresti | 0213033777; 0213152121; Fax: 0213152121 | Episcopiei, Nr. 1-3, Sector 1 , Bucuresti |
| 307. | Armand, Cofetarie - Bucuresti | 0310051187; 0741276263 | Armand Calinescu , Nr. 25, Sector 2, Bucuresti |
| 308. | Paninaro - Restaurant pentru mic dejun si brunch | 0771783619 | Strada Luterana, Nr 3, sector 1 |
| 309. | Nicola Cofetarie - Bucuresti | 0214603678 | Nitu Vasile , Nr. 50-54, in Complexul Pajistei (langa Taxe si Impozite) Sector 4 , Bucuresti |
| 310. | Casa Dragonului, Restaurant Bucuresti | 0213202666; 0761929019 | Calea Dudesti, nr. 198, sector 3, Bucuresti |
| 311. | Lotus Cafe - Cafenea restaurant Bucuresti | 0722808389 | Bd. Decebal, Nr 1, sector 3 |
| 312. | Turquoise - Restaurant cu specific oriental, Bucuresti | 0731826222 | Strada Theodor D. Sperantia, Nr. 96, sector 3 |
| 313. | Edo Sushi - Restaurant cu specific japonez, Bucuresti | 0735111095 | Stirbei Voda, Nr 84A, sector 1 |
| 314. | Bistro Cafe Carbon 14 - Bucuresti | 0790408777 | Str. Dimitrie Racovita, Nr. 18, Sector 2 |
| 315. | Creamier - Cafenea Bucuresti | 0741234567 | Strada Benjamin Franklin, Nr. 5, Sector 1 |
| 316. | French Bakery, Cofetarie - Bucuresti | 0213114518 | Benjamin Franklin, Nr. 9, Sector 1, Bucuresti |
| 317. | Padthai - Restaurant Bucuresti | 0726637747 | Bulevardul Decebal, Nr. 3, sector 3 |
| 318. | Zeppelin Pub - Bucuresti | 0722170024 | Strada Marin Serghiescu, Nr. 7, sector 2 |
| 319. | Tress Caffe&Lounge - Bucuresti | 0721988801 | Bulevardul Decebal, Nr 3, sector 3 |
| 320. | The Owl Cocktail House - Bar specializat in cocktailuri, Bucuresti | 0743260923 | str. Stirbei Voda, Nr. 104-106, sector 1 |
| 321. | Miss Ale - Espresso Bar, Bucuresti | 0371394059 | Calea Victoriei, Nr. 100, sector 1 |
| 322. | Newton Bar, Bucuresti | 0770718303; 0213150217 | Jean Louis Calderon, Nr. 56 (Universitate), Sector 2, Bucuresti |
| 323. | Ana Pan Cofetarie - Bucuresti | 0216373536; 0730262726; 0212332241 | Stirbei Voda, Nr. 166,Sector 1, Bucuresti |
| 324. | Chocolat Ateneu - Boutique restaurant cu livrare de prajituri in Bucuresti | 0743777807; 0744507506 | Strada Episcopiei, Nr. 6, Sector 1, Bucuresti |
| 325. | Fadel - Patiserie Bucuresti | 0786309530; 0722919132 | Strada Jean Louis Calderon, Nr. 56, Sector 2 |
| 326. | Bellini Garden - Restaurant cu specific italian, Bucuresti | 0722100111; 0314278776 | str. General Henri Mathias Berthelot, nr. 44, sector 1 |
| 327. | Oktoberfest Pub - Bucuresti | 0724333233 | Popa Nan, Nr. 95, Sector 3, Bucuresti |
| 328. | Coftale Coffee Shop - Cafenea, Bucuresti | 0746420874 | Strada Profesor Stefan Mihaileanu, Nr.42, sector 2 |
| 329. | Bellini Pizza - Bucuresti | 0314278776 | General Henri Matias Berthelot, Nr. 44,Sector 1, Bucuresti |
| 330. | CAJU by Joseph Hadad - Braserie, Bucuresti | 0751144545 | Nicolae Golescu, Nr. 16, sector 1 |
| 331. | Naan Project - Restaurant, Bucuresti | 0730707119 | Strada Progresului, Nr. 1-3 (Razoare), sector 5 |
| 332. | Ambasador, Bar si Restaurant - Bucuresti | 0213159080; Fax 0213123595 | Bd. G-ral Gh. Magheru, Nr. 8-10, Sector 1, Bucuresti |
| 333. | XO Lounge - Restaurant Bucuresti | 0725585388 | B-dul Decebal, Nr. 5, sector 3 |
| 334. | Terminus - Pub, Bucuresti | 0730222555 | Str. George Enescu, nr. 5, sector 1, |
| 335. | Primus Pub - Bucuresti | 0732222666 | George Enescu, Nr. 3, sector 1 |
| 336. | Casa Lica - Cofetarie Bucuresti | 0725761188 | Bulevardul Decebal, Nr. 5, Sector 3 |
| 337. | Savart - Arta savorilor Gourmet, Bucuresti | 0743575757 | Str. George Enescu, Nr. 2-4, sector 1 |
| 338. | Gradina Olari - Terasa, Bucuresti | 0770147410 | Strada Olari, nr.8, Sector 2 |
| 339. | Ciao Niki - Restaurant cu specific italian, Bucuresti | 0734356217;0756044805 | Strada Bocsa, Nr 4, sector 2 |
| 340. | Wine Ambassador - Bar de vinuri, Bucuresti | 0733182037 | Intrarea Biserica Alba, nr.1, sector 1 |
| 341. | Zen Garden - Restaurant cu specific chinezesc, Bucuresti | 0745102272 | Strada Silvestru, Nr. 3, sector 2 |
| 342. | Time Out Cafe - Bar & Cafenea Bucuresti | 0744644400 | Strada Olari, Nr. 7, sector 2 , |
| 343. | Pizzeria Alessandro - Bucuresti | 0721886488; 0721887488 | Drumul Sarii, Nr.150, sector 6 |
| 344. | Cafe Verona - Cafenea Bucuresti | 0732003060 | Str. Arthur Verona, Nr. 13, sector 1, |
| 345. | Salon Golescu - Bar specializat in cocktailuri, Bucuresti | 0314360338 | Strada Nicolae Golescu, Nr 17, sector 1 |
| 346. | Gusto e Passione - Gelateria Artigianale, Bucuresti | 0755555453 | Calea Victoriei, Nr. 87, sector 1 |
| 347. | El Pato - Restaurant Bucuresti | 0730344810; 0311072033 | Strada Dionisie Lupu, Nr. 48, sector 1 |
| 348. | Bragageria Bogdania - Bistro, Bucuresti | 0787877985 | Str. Olari, Nr. 20, Sector 2 |
| 349. | Nasu & Finu, Restaurant | 0739648277; 0727933656; 0768101345 | Cimpoierilor , Nr. 12, Sector 4, Bucuresti |
| 350. | La Cena - Restaurant cu specific italian, Bucuresti | 0212116717;0730210014 | Maria Rosetti, Nr. 1, sector 2 |
| 351. | La Grasi - Restaurant & Fast-food, Bucuresti | 0771620619 | Strada Huedin, Nr 21, Sector 4, Bucuresti |
| 352. | Nasu & Finu, Restaurant - Bucuresti | 0727933656 ; 0768101345; 0214602572 | Cimpoierilor, Nr. 12, Sector 4, Bucuresti |
| 353. | Restaurant Burebista Traditional - Bucuresti | 0755041484; 0212109704 | Calea Mosilor, Nr 195, sector 2 |
| 354. | M60 - Cafenea Bucuresti | 0314100010 | Strada Mendeleev, Nr 2, sector 1 |
| 355. | Gelato D\'Amore - Magazin de inghetata Bucuresti | 0771727627 | Strada Maria Rosetti, Nr. 13, Sector 2 |
| 356. | Lugo - Restaurant cu specific mediteranean, Bucuresti | 0785238910 | George Enescu, Nr. 23, sector 1 |
| 357. | Agio Bistrot - Bistro, Bucuresti | 0763528818 | Bd. Decebal, Nr. 9, sector 3 |
| 358. | Restaurant Home - Bucatarie internationala, Bucuresti | 0722509794; 0728708216; 0729811130 | Str. Alexandru Xenopol, Nr. 1 (zona Gradina Icoanei), Sector 1, Bucuresti |
| 359. | Fabrica de Prajituri - Cofetarie Bucuresti | 0758990995; 0215695958 | Soseaua Giurgiului, Nr. 127, sector 4 |
| 360. | Casa Tosca, Cofetarie - Bucuresti | 0213461297 | Bd. Camil Ressu, Nr. 1, Sector 3, Bucuresti |
| 361. | Velocita - Gelaterie, Bucuresti | 0739889189 | Calea Victoriei, Nr. 122, sector 1 |
| 362. | Trattoria Don Vito - Restaurant Bucuresti | 0733333021 | Str. Mendeleev, Nr. 1, Sector 1 |
| 363. | Journey Pub - Bucuresti | 0752285286 | Strada George Enescu, Nr. 25, sector 1 |
| 364. | Sweetology - Gelaterie, Bucuresti | 0734444889 | Calea Victoriei, Nr. 122, sector 1 |
| 365. | Fika18 - Croissanterie, Bucuresti | 0770663982 | Calea Victoriei, Nr. 101, sector 1 |
| 366. | Pizzicato, Pizzerie si catering - Bucuresti | 0212111213 | Strada Icoanei, Nr. 2, Sector 2, Bucuresti |
| 367. | Bistro raw vegan, Restaurant - Bucuresti | 0726605501 | Transilvaniei, Nr. 11, Sector 1, Bucuresti |
| 368. | Funky Lounge - Terasa, Bucuresti | 0755505505 | Bd. Decebal, nr 9, sector 3 |
| 369. | Bar A1 - Bucuresti | 0770901409 | Piata Amzei, Nr 1, sector 1 |
| 370. | Red Angus Steakhouse - Restaurant Bucuresti | 0756600000 | Piata Amzei, Nr. 10-22Sector 1, |
| 371. | La Copac - Carciuma de jupani, Bucuresti | 0722704445 | str. Pitar Mos, nr. 23, sector 1 |
| 372. | La Mama - Restaurant Bucuresti | 0721526262 | Strada Delea Veche, Nr. 51, sector 2 |
| 373. | Gallo Nero, Restaurant - Bucuresti | 0726544889; 0213268128 | Bd. Decebal, Nr. 12, Sector 3, Bucuresti |
| 374. | Golden Blitz, Restaurant - Bucuresti | 0214105100 | Razoare , Nr. 32, Sector 6 , Bucuresti |
| 375. | Casa Jienilor Agricultori, Restaurant - Bucuresti | 0735994994 | Agricultori, Nr.12, Sector 2, Bucuresti |
| 376. | Rich Vip Lounge - Restaurant Bucuresti | 0771790764 | Bd.Decebal, Nr 9, sector 3 |
| 377. | Golden Blitz, Restaurant - Bucuresti | 0214105100 | Razoare , Nr. 32, Sector 6 , Bucuresti |
| 378. | Burger Peter - Restaurant cu burgeri Bucuresti | 0799981031 | Strada Popa Nan, Nr. 48, sector 2 |
| 379. | Pizza Venetia, Pizzerie si catering - Bucuresti | 0720800100; 0213204424; Fax: 0720800100 | Dristorului, Nr.59, Sector 3, Bucuresti |
| 380. | Arome - Restaurant vegetarian/vegan, Bucuresti | 0749109639 | Luigi Cazzavillan, Nr. 25, sector 1 |
| 381. | Ambasador, Restaurant - Hotel Ambasador, Bucuresti | 0213159080 | Bd. G-ral Ghe. Magheru, Nr. 8-10, Sector 1, Bucuresti |
| 382. | Michelle - Cofetarie, Bucuresti | 0213340084; 0723384312 | Soseaua Berceni, Nr. 35, bl. 104, sector 4 |
| 383. | No10 - Restaurant cu specific italian | 0741210003 | Strada Austrului, Nr. 10, sector 2 |
| 384. | Nicoresti, Restaurant - Bucuresti | 0212112480; 0724290550 | Toamnei, Nr. 13 (colt cu Maria Rosetti nr. 40), Sector 2, Bucuresti |
| 385. | Chong Qing - Restaurant cu specific chinezesc, Bucuresti | 0212525095; 0731383952 | B-dul Pache Protopopescu, Nr.28, sector 2 |
| 386. | Camera din fata - Ceainaria Bucuresti | 0213111512 | Str. Mendeleev, Nr. 22, sector 1, langa Piata Amzei |
| 387. | Sweet Sophie - Cofetarie | 0748309063 | Strada Popa Nan, Nr. 22, sector 2 |
| 388. | Burgeria Cotroceni - Restaurant fast-food, Bucuresti | 0314214777 | Soseaua Cotroceni, Nr. 9, sector 6 |
| 389. | Rocca by The Jar - Gastropub Bucuresti | 0770857841 | Str. Pictor Theodor Aman, Nr. 36, sector 1 |
| 390. | Carina Sweets - Cofetarie Bucuresti | 0771261485 | Sos Oltenitei, Nr. 230, Sector 4 |
| 391. | Cofetariile Georgy\'s, Cofetarie,torturi - Bucuresti | 0733060230; 0730618742 | Ramnicu Valcea, Nr. 14, Sector 3, Bucuresti |
| 392. | Mateo Fast Food | 0728199827; 0752777333; 0314362033 | Strada Dristorului, Nr. 87, sector 3 |
| 393. | Qian Bao, Restaurant chinezesc - Bucuresti | 0722622865; 0314306616 | Intrarea Baba Novac, Nr. 2, Sector 3, Bucuresti |
| 394. | Coolinart - Gastropub Bucuresti | 0772017955 | Calea Victoriei, Nr. 142-148, sector 1 |
| 395. | Jerry\'s Pizza - Bucuresti | 0373303030 | Calea Vitan, Nr. 236, Sector 3, Bucuresti |
| 396. | Pizzeria Florina - Bucuresti | 0219285 | Strada Nicolae Pascu, nr.1A, sectorul 3 |
| 397. | Trattoria Della Nonna - Restaurant cu specific italian, Bucuresti | 0771697503 | Strada Popa Nan, Nr. 5, sector 2 |
| 398. | Lente - Restaurant pentru mic dejun si brunch, Bucuresti | 0314107585 | Dionisie Lupu, Nr 78, sector 1 |
| 399. | Taverna Baba Novac, Restaurant - Bucuresti | 0771544334; 0760010784 | Intrarea Baba Novac, Nr. 3, Sector 3, Bucuresti |
| 400. | Noua - Restaurant cu specific romanesc, Bucuresti | 0217943294 | Strada Popa Nan, Nr. 7, sector 2 |
| 401. | Point Hub - Hub Cultural, Bucuresti | 0748291815 | Str. General Eremia Grigorescu, nr. 10, sector 1, |
| 402. | Mezze, Restaurant libanez - Bucuresti | 0213116633; 0720044469 | Mircea Vulcanescu, Nr.153 B,Sector 1 , Bucuresti |
| 403. | Unico Vero - Restaurant cu specific italian, Bucuresti | 0212123338;0758110265 | Strada Viitorului, Nr. 8, sector 2 |
| 404. | Shift Pub - Bucuresti | 0212112272 | Str. General Eremia Grigorescu, Nr.17 |
| 405. | Barrio - Restaurant & bar, Bucuresti | 0733222777 | Biserica Amzei, Nr. 30, sector 1 |
| 406. | KFC Romana, Fast Food - Bucuresti | 0740121904 | Bd. G-ral Gh. Magheru , Nr. 28-30, Sector 1 , Bucuresti |
| 407. | Tonka Soul Café - Bucuresti | 0371445255 | Biserica Amzei , Nr. 19, Sector 1, Bucuresti |
| 408. | Casa Veche - Restaurant, Ramnicu Valcea | 0747875045 ; 0748702238; 0350418155 | Stirbei Voda, Nr.162, Ramnicu Valcea, judetul Vilcea |
| 409. | Snap - Restaurant, Bucuresti | 0738888885 | Bulevard Decebal, nr. 13, sector 3 |
| 410. | Duman - Restaurant cu specific oriental, Bucuresti | 0738170063 | Bulevardul Decebal, Nr. 13, sector 3 |
| 411. | Modelier - Bistro, cocktails Bucuresti | 0799630693 | Strada Duzilor, Nr. 12, sector 2 |
| 412. | Sale Dolce, Restaurant - Bucuresti | 0736858430; 0735123687 | Matei Voievod, Nr. 20, Sector 2, Bucuresti |
| 413. | J\'ai Bistrot - Gastropub, Bucuresti | 0790229922 | Calea Grivitei, nr. 55, sector 1 |
| 414. | Cofetaria Casandra - Bucuresti | 0757252466 | B-dul. Magheru, Nr. 32-36, Sector 1 |
| 415. | Luna Cafe & Bistro - Bucuresti | 0771609431; 0771211246 | Str. Viitorului, Nr. 32, sector 2, |
| 416. | Casa Oamenilor de Stiinta - Restaurant, Bucuresti | 0726664227; 0722926012; 0769293579 | P-ta Lahovari, nr. 9, Sector 1 |
| 417. | Il Destino, Restaurant italian - Bucuresti | 0212103039; 0758836278; 0744318094 (Pentru evenimente) | Silvestru, Nr. 67, Sector 2, Bucuresti |
| 418. | Provence, Restaurant - Bucuresti | 0724212282; 0722683629; 0799683683 | B-dul Alexandru Obregia, Nr 25A, sector 4 (Langa Mega Image), Bucuresti |
| 419. | Papaciu - Bistro, Bucuresti | 0724200070; 0724955952 | Strada Complexului, Nr 3A, sector 3 |
| 420. | Paque Bistro - Restaurant cu bar, Bucuresti | 0722330607 | Bulevardul Pache Protopopescu, nr.60, sector 2 |
| 421. | Black Habit - Cafenea | 0770357382 | Calea Grivitei, Nr. 77, sector 1 |
| 422. | La Giuggiola - Gelateria artizanala italiana Bucuresti | 0770107183 | Bulevardul Pache Protopopescu, Nr. 57, Sector 2 |
| 423. | One Minute Pizza | 0732841587 | Sos Alexandriei, Nr. 108, Bragadiru, judetul Ilfov |
| 424. | Cuptorul cu Lemne, Pizza - Bucuresti | 021.9363; 0212524493; (021) 9363 - tasta 0 | Bd. Pache Protopopescu, Nr. 63, Sector 2, Bucuresti |
| 425. | Karishma, Restaurant indian - Bucuresti | 0212525157; 0737519953 | Iancu Capitanu, Nr. 36, Sector 2, Bucuresti |
| 426. | Boema 33 - Restaurant, Bucuresti | 0722295463 | Bd. Dacia, nr. 33, sector 1 (Piata Romana) |
| 427. | Pizza Hut - Bucuresti | 0740121901 | Calea Dorobantilor , Nr. 5-7, Sector 1 , Bucuresti |
| 428. | Benihana - Restaurant cu specific japonez | 0751169889 | Calea Dorobantilor, Nr. 5-7 Hotel Howard Johnson, sector 1, |
| 429. | SupaDupa - Restaurant cu supe si ciorbe, Bucuresti | 0739344281 | Strada Popa Tatu, Nr. 94, sector 1 |
| 430. | Cuptorul cu Lemne - Restaurant pizzerie Bucuresti | 0219363 | Bd. Pache Protopopescu, Nr 65, sector 2 |
| 431. | Dolce Principessa Cofetarie - Bucuresti | 0212115155; 0735213101 | Calea Dorobanti, nr. 50A, sector 1, Bucuresti |
| 432. | La Matache Restaurant (comenzi online si livrari la domiciliu) | 0213107327; 0213107337; 0213118888 | P-ta. Dr. Haralambie Botescu, Nr. 2, Sector 1, Bucuresti |
| 433. | Mon Paris Restaurant & Lounge - Restaurant cu specific european, Bucuresti | 0799973783 | Bd Dacia, Nr. 62, sector 2 |
| 434. | La Taifas, Bistro - Bucuresti | 0723197156; 0212127788 | Mihail Moxa, Nr. 12, Sector 1 , Bucuresti |
| 435. | Club Art Papillon Restaurant - Bucuresti | 0212522520; 0732582278; 0722240930 | Matei Voievod , Nr. 66A Sector 2, Bucuresti |
| 436. | Chef Gabrielle - Restaurant, Bucuresti | 0766066406 | Strada Tomis, Nr. 5A, Sector 3 |
| 437. | Casual Pub - Restaurant Bucuresti | 0770841212 | Bd. Dacia, Nr. 104, Sector 2 |
| 438. | Pizza Apetito - Bucuresti | 0770225215 | Eufrosina Popescu, Nr. 57, sector 3, |
| 439. | Maison des Crepes - Clatitarie Bucuresti | 0770802524 | Strada Mihai Eminescu, Nr. 38, Sector 2 |
| 440. | Minimal Cofetarie - Bucuresti | 0212751765 | Straduintei , Nr. 1, Sector 4 , Bucuresti |
| 441. | Cofetaria Andreea | 0213228845; 0728877033 | Sos. Mihai Bravu , Nr. 286, sector 3, Bucuresti |
| 442. | Old Kitchen - Restaurant Bucuresti | 0732773537 | Str. Sfintii Voievozi, Nr. 13, Sector 1 |
| 443. | Alceva - Restaurant, Bucuresti | 0770844125 | Matei Voievod, Nr. 79, sector 2, |
| 444. | Ceai la Vlaicu - Ceainarie Bucuresti | 0727609699 | Str. Aurel Vlaicu, Nr. 47, sector 2 |
| 445. | Andreea, Cofetarie, torturi si patiserie - Bucuresti | 0728877033; 0213228845 | Bulevardul Mihai Bravu, Nr. 286, Sector 3, Bucuresti |
| 446. | Pizza PPH - Pizza si catering, Bucuresti | 0319441 | Str. Lirei, Nr. 13, sector 2 |
| 447. | Panik & Pub - Pub, Bucuresti | 0728264360 | Str. Mihai Eminescu, Nr. 33 |
| 448. | Banjo Jack - Restaurant cu burgeri, Bucuresti | 0770653341 | Strada Iancu Capitanu, Nr 26, sector 2 |
| 449. | La Placinte - Restaurant cu specific romanesc, Bucuresti | 0756207005 | Bd. Vasile Milea, 4F (Afi Park 2) |
| 450. | El Torito, Restaurant - Bucuresti | 0212526688; 0728176059 | Iancu Capitanu , Nr. 30, Sector 2, Bucuresti |
| 451. | Greekos Urban Food - Restaurant fast-food, Bucuresti | 0726646976 | Soseaua Mihai Bravu, Nr. 247, sector 3 |
| 452. | Laur Express Food - Restaurant fast-food, Bucuresti | 0732455089 | Bulevardul Ferdinand I, Nr. 60, sector 2 |
| 453. | Ciccio - Pizzerie Bucuresti | 0745515510 | Strada Henri Coanda, Nr. 28 sector 1 |
| 454. | S\'Agapo Gyros - Restaurant fast-food, Bucuresti | 0725532142; 0721533358 | StradaTeius, numarul 84, sector 5 |
| 455. | Blunch Bistro - Restaurant, Bucuresti | 0736898990 | Mihai Eminescu, Nr.181, sector 2 |
| 456. | Turquoise Bakery - Bucuresti | 0739037919 | Str. Matei Voievod, nr.101, Sector 2 |
| 457. | Animaletto Pizza Bar - Bucuresti | 0755019098 | Strada Visarion, Nr 10, sector 1 |
| 458. | La Patrascu - Restaurant Bucuresti | 0771635003; 0767561149; 0754422491 | Str. Prof. Stefan Nicolau, Nr. 2A, Sector 3 |
| 459. | The Mark - Restaurant pub Bucuresti | 0758505500 | Calea Grivitei, Nr. 84-98, sector 1 |
| 460. | Haveli, Restaurant - Bucuresti | 0212110390; 0721721640 | Episcopul Radu, Nr. 3, Sector 2, Bucuresti |
| 461. | Dada Restaurant - Bucuresti | 0729997405; 0724015800 | Str. Matei Voievod , nr. 94bis, sector 2, |
| 462. | La Taifas, Restaurant - Bucuresti | 0212127788; 0723197156 | Gheorghe Manu, Nr. 16, sector 1 , Bucuresti |
| 463. | Shiva Coffee&Tea - Cafenea Bucuresti | 0748874482 | Strada Mihai Eminescu, Nr. 73, sector 2 |
| 464. | VINO - Bar de vinuri, Bucuresti | 0799944999 | Strada Mihai Eminescu, Nr. 71 |
| 465. | Nabu - Bar Bucuresti | 0787407043 | Pache Protopopescu, Nr. 97, sector 2 |
| 466. | SwitchEat - Restaurant cu burgeri Bucuresti | 0726023881 | Strada Horei, Nr 34, sector 2 ( la doi pasi de Foisorul de Foc) |
| 467. | La Impinge Tava - Bucuresti | 0721150452 | Str. Mihai Eminescu, Nr. 73, Sector 2 |
| 468. | Prajituri de Casa - Cofetarie Bucuresti | 0751135153 | Calea Mosilor, Nr. 225, sector 2 |
| 469. | Benjamins Restaurant - Nunti, botezuri, evenimente, Bucuresti | 0724248428 | Sos.Vitan-Barzesti, Nr. 5, Sector 4, Bucuresti |
| 470. | Ceramic Cafe - Bucuresti | 0774007364 | I.C. Visarion, Nr 20, sector 1 |
| 471. | Fast Food Eminescu - Bucuresti | 0723161166 | Str. Mihai Eminescu, nr 137, sector 2 |
| 472. | Casa Luica - Restaurant Bucuresti | 0724108000; 0785101000 | Strada Luica, Nr. 76 colt cu Vasile Paius, Sector 4 |
| 473. | Bistro La Taifas, Restaurant - Bucuresti | 0212127788; 0723197156 | Gheorghe Manu, Nr. 16, Sector 1, Bucuresti |
| 474. | PengYou - Restaurant specific chinezesc Bucuresti | 0787748272 | Str. Occidenului, Nr. 11, Sector 1 |
| 475. | Belli Siciliani - Restaurant autentic sicilian, Bucuresti | 0799090601 | Str. Matasari, Nr. 47, sevtor 2, |
| 476. | Cristal - Cofetarie | 0760090324 | Str. Matei Voievod, nr. 108, sector 2 |
| 477. | Cofetaria Ioana - Bucuresti | 0217265762 | Strada Vladeasa, Nr. 2, sector 6 |
| 478. | Restaurant Ali Baba - Specific oriental, Bucuresti | 0213274810; 0722707208 | Sos. Mihai Bravu, Nr. 213, sector 2, Bucuresti |
| 479. | Santorini - Restaurant specific grecesc Bucuresti | 0748333334 | Bulevardul Mihai Bravu, Nr. 209, Sector 2 |
| 480. | Bistro HB - Restaurant Bucuresti | 0735011736; 0735011735; 0735011737 | Strada Matasari, Nr. 49 Sector2 |
| 481. | Acuarela Bufet - Bucuresti | 0745662889; 0741403238; 0721483051 | Polona, Nr. 40,Sector 1, Bucuresti |
| 482. | Nan Jing, Restaurant chinezesc - Bucuresti | 0213181285; 0726103407 | G-ral Gheorghe Manu, Nr. 2-4 (Hotel Minerva), Sector 1, Bucuresti |
| 483. | Fatafit - Restaurant cu specific libanez, Bucuresti | 0760445555 | Calea Mosilor, Nr. 225, Sector 2 |
| 484. | Planet Trattoria - Restaurant, Bucuresti | 0319462; 0767657065 | Soseaua Salaj, Nr. 363, Sector 5, Confort Urban Residence, Bucuresti |
| 485. | Quantic Pub - Bucuresti | 0314321742 | Soseaua Grozavesti, Nr. 82, sector 6 |
| 486. | Grivita - Pub&Grill, Bucuresti | 0724748482 | Calea Grivita, Nr. 130 (Parter Eurohotels), |
| 487. | Decadence - Bar & Restaurant | 0741828489 | Strada Constantin Daniel, nr. 11, sector 1 |
| 488. | Gili Pizza - Bucuresti | 0213242387 | Str. Baba Novac, Nr. 9-11, Sector 3 |
| 489. | Simple - Restaurant cu preparate la gratar, Bucuresti | 0799779988 | Strada Frumusani, Nr. 8A, Sector 4 |
| 490. | Stejarului 57 - Social Bar, Bucuresti | 0748701058 | Strada Fildesului, Nr. 2, sector 3 |
| 491. | Naser - Restaurant specific libanez Bucuresti | 0799980001; 0799980002; 0213135060 | Str. Fluierului, Nr. 18, sector 2 (colt cu Str. Matasari, in spatele PRO TV) |
| 492. | La Cantine de Nicolai, Restaurant - Bucuresti | 0725210608 | Povernei, Nr. 15-17, Sector 1, Bucresti |
| 493. | La Mosu - Restaurant Bucuresti | 0765523208; 0314382508 | Soseaua Oltenitei, Nr. 197, Sector 4 |
| 494. | Gradina Eden - Terasa Bucuresti | 0722185368 | Calea Dorobanti, Nr. 44-46 sector 1 |
| 495. | Strada Rustica - Pizzerie Bucuresti | 0213248303; 0768676765; 0728886914 | Str. Baba Novac, Nr 9, Complex Rucar, Sector 3 |
| 496. | Blue Margarita - Restaurant cu specific mexican Bucuresti | 0770944822 | Strada Povernei, Nr. 15-17, sector 1 |
| 497. | China Town Restaurant - Bucuresti | 0726130138; 0788671161; Tel/Fax:0212120239 | Viitorului, Nr. 98, Sector 2, Bucuresti |
| 498. | Suento - Restaurant cu specific european modern, Bucuresti | 0787605362 | Strada Toamnei, Nr. 101, sector 2 |
| 499. | Friddi - Gelaterie, Bucuresti | 0314313295 | Str. Vasile Alecsandri, Nr. 4, sector 1 |
| 500. | Ici et La - Restaurant cu specific francez Bucuresti | 0731453608 | Strada Domnita Ruxandra, Nr. 7, Sector 2 |
| 501. | So! Coffee, Cafenea - Bucuresti | 0372285718; 0314078250 | Piata Garii de Nord, Nr.1-5 (In fata peroanelor 4-5), Sector 1, Bucuresti |
| 502. | The Artist Restaurant - Bucuresti | 0728318871 | Calea Victoriei, Nr.147, sector 1 |
| 503. | BaKings - Cofetarie Bucuresti | 0744642929 | Strada Ilarie Chendi, Nr. 28, sector 2 |
| 504. | Trattoria Mezzaluna - Restaurant specific italian Bucuresti | 0729591469 | Calea Dorobanti, Nr. 63, sector 1 |
| 505. | Za Lokal - Restaurant pentru mic dejun si brunch, Bucuresti | 0770557931 | Calea Victoriei, Nr 214, sector 1 |
| 506. | La Birlic - Terasa, Bucuresti | 0722318168; 0752318168; 0212525151 | Bulevardul Pache Protopopescu, Nr. 125, sector 2 |
| 507. | Sweet Moments - Cofetarie artizanala Bucuresti | 0745199938 | Aleea Emil Racovita, Nr. 25, sector 4 |
| 508. | Torna Fratre Restaurant - Bucuresti | 0212103557; 0784111890 | Tunari, Nr. 34, Sector 2, Bucuresti |
| 509. | Dominum - Bar & Grill, Bucuresti | 0761551233 | Strada Neptun, Nr. 4, Sector 5 |
| 510. | Veranda Casa Frumoasa - Restaurant Bucuresti | 0733735932 | Str. Clopotarii Vechi, Nr. 5, sector 1 |
| 511. | Sara Green - Restaurant vegan, Bucuresti | 0774962246;0765191076 | Bulevardul Lascar Catargiu, Nr 43, Sector 1 |
| 512. | Ressu Restaurant & Lounge - Bucuresti | 0723774485; 0731607646; | B-dul Camil Ressu, Nr. 70 A, Sector 3, Bucuresti |
| 513. | Ai Sapori - Restaurant cu specific italian Bucuresti | 0372713635 | Bd Timisoara, Nr. 21, sector 6, Bucuresti |
| 514. | Nicolai To Go - Bistro Bucuresti | 0741600006 | Calea Dorobantilor, Nr. 67, sector 1 |
| 515. | Delice Grill - Restaurant fast-food Bucuresti | 0721112244 | Soseaua Mihai Bravu, Nr 139-145, sector 2 |
| 516. | Lucky Point Pub | 0742181263 | Splaiul Independentei, 204,sect.6, Bucuresti |
| 517. | Coclinta Brasserie- Restaurant cu specific romanesc, Bucuresti | 0770238774 | Calea Victoriei, Nr. 153, sector 1 |
| 518. | ChefBox - Restaurant, Bucuresti | 0728800528 | Buzesti, Nr. 57-59, sector 1 |
| 519. | Ciorbarie - Restaurant cu supe si ciorbe, Bucuresti | 0785610628 | Calea Dorobanti, Nr. 73, sector 1 |
| 520. | Alice, Cofetarie - Bucuresti | 0744486465 | Sos. Mihai Bravu, Nr. 123-135, Sector 2, (zona Piata Iancului - langa Sectia 8 de Politie), Bucuresti |
| 521. | KALI - Restaurant cu bufet, Bucuresti | 0725988889 | Strada Buzesti, Nr. 71, Sector 1 |
| 522. | Fayn Urban Eatery - Restaurant, Bucuresti | 0723257692 | Strada Buzesti, nr. 71, sector 1 |
| 523. | Hanul Drumetului, Restaurant - Bucuresti | 0214133430; 0722555083 | Bd. 1 Mai(Compozitorilor), Nr. 28, Sector 6, Bucuresti |
| 524. | City Grill Restaurant - Bucuresti | 0722446766; 0724599886 | Bulevardul Lascar Catargiu, Nr. 56, Sector 1, Bucuresti |
| 525. | Trafalgar Pub - Bucuresti | 0212113151; 0766625805 | David Emanuel , Nr. 4A, Sector 1, Bucuresti |
| 526. | NoName, Restaurant - Bucuresti | 0761280642 (Mioara); 0732381801 (Adrian) | Mariuca, Nr 1A,Sector 4, Bucuresti |
| 527. | Trattoria Buongiorno - Restaurant cu specific italian, Bucuresti | 0722446766 | Bdul. Lascar Catargiu, Nr. 56, sector 1 |
| 528. | Restaurant La Teu - Bucuresti | 0723642022 | Strada Titu Maiorescu, Nr.18, sector 2 |
| 529. | Vanilla, Cofetarie - Bucuresti | 0733058058 | Mihai Bravu, Nr. 47, Parter, Sector 2, Bucuresti |
| 530. | Cartofisserie - Restaurant cu bufet Bucuresti | 0726330960;0740215433 | Liviu Rebreanu, Nr. 4 (ParkLake Shopping Center Mall) |
| 531. | Intermacedonia, Restaurant - Bucuresti | 0212522010; 0212527331; 0212522190 | Sos. Mihai Bravu, Nr.95-100, Sector 2 (P-ta Iancului) , Bucuresti |
| 532. | NoName, Restaurant si Terasa - Bucuresti | 0761280642 | Mariuca, Nr 1A,Sector 4, Bucuresti |
| 533. | La Finca by Alioli - Restaurant Bucuresti | 0767150500 | Str. Caderea Bastiliei, Nr. 78, Sector 1, |
| 534. | Bulevard - Restaurant, Bucuresti | 0728538273 | Bulevardul Ghencea, nr.122, Bucuresti, Sectorul 6 |
| 535. | Trattoria Roma - Restaurant Bucuresti | 0765723733; 0799772233 | Str. Drumul Taberei, Nr. 26, Sector 6 |
| 536. | Gloria Jean\'s Coffees Romania | 0760107884 | Bd.Liviu Rebreanu, nr. 4, sector 3 - Mall Park Lake, Bucuresti |
| 537. | Dream Pizza - Restaurant Bucuresti | 0785070079 | Drumul Taberei, Nr. 28, sector 6, |
| 538. | Casa Pizza - Pizzerie, Bucuresti | 0746544815; 0720923622 | Str. Mariuca, nr. 23A, sector 4 |
| 539. | Yesterday, Hotel si Restaurant - Bucuresti | 0213408585; 0737001008 | Economu Cezarescu, Nr. 8, Sector 6, Bucuresti |
| 540. | Hashtag Pub - Bucuresti | 0771555444 | Soseaua Mihai Bravu, Nr 32, sector 2 |
| 541. | Casa Jienilor, Restaurant - Bucuresti | 0212121951; 0722916111 | Fainari, Nr. 5, Sector 2, Bucuresti |
| 542. | La Sediu - Restaurant Bucuresti | 0760729007 | Campia Libertatii, Nr. 54, sector 3 |
| 543. | Casa Jienilor, Restaurant - Bucuresti | 0212121951; 0722916111; Fax 0212121951 | Fainari, N. 5, Sector 2, Bucuresti |
| 544. | Casa Jienilor Fainari, Restaurant - Bucuresti | 0212121951; 0735994994 | Fainari, Nr. 5, Sector 2, Bucuresti |
| 545. | Domino\'s Pizza, Fast food - Bucuresti | 0736500200 | Bd. Iancu de Hunedoara, nr. 38, sector 1 , Bucuresti |
| 546. | Athos Pizza & Bistro - Livrare non stop, Bucuresti | 0213344287; 0728276192 | Sos Oltenitei, Nr. 250 Berceni Ira |
| 547. | Capital Plaza, Hotel si Restaurant - Bucuresti | 0372080080; Fax: 0372080081 | Bd. Iancu de Hunedoara, Nr. 54, Sector 1, Bucuresti |
| 548. | Restaurant Sole - Bucuresti | 0722587589 | Bd. Iancu de Hunedoara, Nr. 48, etaj 15, sector 1 |
| 549. | Domino\'s Pizza - Bucuresti | 0736500200 | Bd. Iancu de Hunedoara, Nr. 38, Sector 1 , Bucuresti |
| 550. | La Coana Mare - Cofetarie Bucuresti | 0771512035 | Strada Magura Vulturului, Nr. 2, sector 2 |
| 551. | Terasa Florilor - Restaurant cu terasa, Bucuresti | 0755097931 | Str. Ion Maiorescu, nr. 42, sector 2 |
| 552. | Capital Plaza, Hotel si Restaurant - Bucuresti | 0372080050; 0372080081 | Bd.Iancu de Hunedoara, Nr. 54, Sector 1, Bucuresti |
| 553. | Armonia Cofetarie - Bucuresti | 0213244020 ; 0722616180 | Campia Libertatii, Nr. 46 , bl. 52 , Parter , Sector 3, Bucuresti |
| 554. | Riviera Park, Restaurant - Bucuresti | 0732408408 | Bd. Basarabia , Nr. 23 (Parcul National), Sector 2, Bucuresti |
| 555. | Ciorbe si Placinte - Restaurant cu specific romanesc, Bucuresti | 0755993070 | B-dul Iancu de Hunedoara, Nr. 64, sector 1 |
| 556. | Angeline Cake Boutique - Cofetarie, Bucuresti | 0753652144 | Str. Doctor Iacob Felix, Nr. 59, Sector 1 |
| 557. | Templul Soarelui, Restaurant chinezesc - Bucuresti | 0212111693; 0723743878 | Vasile Lascar, Nr. 205, Sector 2, Bucuresti |
| 558. | Lolita - Boutique de dulciuri Bucuresti | 0757013453 | Strada Vasile Lascar, Nr. 212, sector 2 |
| 559. | Templul Soarelui, Restaurant chinezesc - Bucuresti | 0212111693; 0723743878 | Vasile Lascar, Nr. 205, Sector 2, Bucuresti |
| 560. | Coppa - Bar cu vinuri si cafea, Bucuresti | 0741594545; 0756080004 | Bd. Nicolae Titulescu, nr. 3, sector 1 |
| 561. | 7 Days - Restaurant cu terasa, organizari evenimente, Bucuresti | 0769042751; 0213241358 | Str. Campia Libertatii, Nr. 23, Sector 3, Bucuresti |
| 562. | Shorley Restaurant - Bucuresti | 0765377308; 0724710385; 0213124312 | Econom Cezarescu, Nr. 50, Sector 6 , Bucuresti |
| 563. | Casa Lefter - Restaurant Bucuresti | 0723568402; 0743127330 | Strada Lt. Ionescu Baican, Nr. 57, sector 2 |
| 564. | Fast Food Plevnei - Restaurant Fast Food Bucuresti | 0761046444 | Calea Plevnei, Nr. 230, sector 1 |
| 565. | Casa Jienilor, Restaurant - Bucuresti | 0735994994; 0722916111 | Str. Fainari, nr. 5, sector 2, |
| 566. | Pui de Urs, Restaurant - Bucuresti | 0213166289; 0724622226; 0765166266 | Econom Cezarescu, Nr. 42 (Grozavesti), Sector 6 , Bucuresti |
| 567. | La Tramvai - Terasa Bucuresti | 0729166021 | Parcul Alexandru Ioan Cuza (I.O.R). intersectie Campia Libertatii, sector 3 |
| 568. | Amareto, Cofetarie - Bucuresti | 0736659592; 0723830104; 0723830104 whatsapp | Sos. Stefan cel Mare , Nr. 36, Sector 2 (vis-a-vis de Circul Metropolitan Bucuresti), Bucuresti |
| 569. | Die Deutsche Kneipe - Restaurant cu specific german | 0722284560 | Str. Stockholm, nr. 9, sector 1, |
| 570. | Triana - Cofetarie, Bucuresti | 0740302404 | Soseaua Orhideelor, Nr. 46, sector 1 |
| 571. | The Soup Carousel - Restaurant cu supe si ciorbe, Bucuresti | 0725356907 | Sos. Nicolae Titulescu, Nr. 12, sector 1 |
| 572. | Hatz Burger Studio - Restaurant cu burgeri | 0770920018 | Soseaua Stefan cel Mare, Nr. 240, Bl. 59A, Sector 2 |
| 573. | Galletto Ristorante, Restaurant italian, catering - Bucuresti | 0212112276; 0770407519 | Soseaua Orhideelor, Nr.1 (podul nou Basarab,langa cladirile de birouri The Bridge, Sector 6, Bucuresti |
| 574. | Pasticceria Giuseppina Cofetarie - Bucuresti | 0730283947 | Soseaua Stefan cel Mare, Nr.46, Sector 2, Bucuresti |
| 575. | 14th Lane - Restaurant cu mancaruri fine, organizare evenimente, Bucuresti | 0737776777 | Sos. Orhideelor, Nr. 15D, sector 6, Bucuresti |
| 576. | Springtime, Restaurant - Bucuresti | 0742224736; 0742224743; 0742224739 | Piata Victoriei, Bl. A6 Sector 1, Bucuresti |
| 577. | 5ENSI by BeanZ Cafe - Bucuresti | 0733888555 | Bd. Aviatorilor, Nr. 8A, sector 1, Bucuresti |
| 578. | Dabeef - Restaurant Bucuresti | 0739835658 | Calea Floreasca, Nr. 111-113, Sector 1 |
| 579. | E3 by Entourage - Restaurant Bucuresti | 0734966889 | Calea Floreasca, Nr. 111-113, Sector 1 |
| 580. | Cofetaria Lush - Bucuresti | 0720976019?; 0721605303 | Soseaua Stefan cel Mare, Nr. 226, bloc.44, parter, sector 2 |
| 581. | Green Bistro - Terasa Bucuresti | 0728237731 | Parcul Gheorghe Patrascu, |
| 582. | Tip Top, Cofetarii - Bucuresti | 0212422414 | Soseaua Colentina, Nr. 2, Sector 2 (magazinul Bucur-Obor), Bucuresti |
| 583. | Japanos - Restaurant cu specific japonez, Bucuresti | 0771621192 | Calea Dorobantilor, nr. 116-122, spatiul comercial nr. 3, parter, sector 1 |
| 584. | Sweet by MarVio - Cofetarie Bucuresti | 0212105291 | Soseaua Stefan cel Mare, Nr 31, sector 2 |
| 585. | Pajo Garden - Restaurant Bucuresti | 0751227228 | Bulevardul Basarabiei, Nt. 37-39, sector 2 |
| 586. | Refill - Bistro cu specific international, Bucuresti | 0786372856 | Bulevardul Mihalache, Nr. 12, sector 1 |
| 587. | Arancini - Restaurant cu specific sicilian | 0756490490 | Str. Papadiei, Nr. 16-18, sector 3 |
| 588. | Terasa Sport House - Restaurant fast-food, Bucuresti | 0755080224 | Maior Ion Coravu, numarul 34, sector 2 |
| 589. | Pata Negra - Restaurant cu specific spaniol, Bucuresti | 0734349076 | Strada Washington, Nr 11, sector 1 |
| 590. | Fresh Food - Restaurant fast-food, Bucuresti | 0761383536 | Bulevardul Ghencea, nr. 79 (in incinta Complex Tamilia), sector 6 |
| 591. | Bomb Doner Kebap - Restaurant fast-food, Bucuresti | 0727771549 | Strada Lizeanu, Nr. 5, sector 2 |
| 592. | Roxy Pub - Bucuresti | 0742033944; 0723327117; 0785224508 | Splaiul Independentei, Nr. 290, Complex Studentesc Regie, Bucuresti |
| 593. | Trattoria Soleto - Restaurant cu specific italian | 0734382419 | Soseaua Colentina, nr. 1, sector 2 |
| 594. | Bacania Veche - Bistro si pravalie Bucuresti | 0752202103; 0212101222 | Barbu Vacarescu, Nr. 49, sector 2 |
| 595. | Claus, Cofetarie Bucuresti | 0212220218; 0721264900 | Bd. Banu Manta, Nr. 21A, Sector 1, Bucuresti |
| 596. | Monza, Trattorie si Restaurant - Bucuresti | 0722661166; 0769200002; 0724802802 | Baba Novac, Nr. 25, Sector 3, Bucuresti |
| 597. | La Felinare - Restaurant cu specific international, Bucuresti | 0751028811 | Strada Brasov, Nr. 25L, sector 6 |
| 598. | Dorobanti 140, Cofetarie - Bucuresti | 0723500025 | Calea Dorobantilor, Nr.140,Sector 1, Bucuresti |
| 599. | Marshal Garden, Restaurant - Bucuresti | 0213194444; 0213194445; 0758105310 | Calea Dorobantilor, Nr. 50 B, Sector 1, Bucuresti |
| 600. | Nedelya - Cofetarie Bucuresti | 0771420388 | Strada Brasov, Nr. 25, sector 6, Centrul Comercial Drumul Taberelor |
| 601. | The Canteen - Restaurant Bucuresti | 0735517630 | Str. Barbu Vacarescu, Nr. 44, Bl. 7 Sector 2 |
| 602. | Trattoria 20 - Restaurant Bucuresti | 0757534928; 0751267451 | Splaiul Independentei, Nr. 290, Campus Regie, sector 6 |
| 603. | Skybar - Bucuresti | 0724759227 | Calea Dorobanti, Nr. 155, Etaj 5, sector 1 |
| 604. | Capri Pizza, Pizzerie si catering - Bucuresti | 0729442530; 0214442101 | B-dul. Timisoara, Nr. 60C, Sector 6, Bucuresti |
| 605. | Ilioara - Restaurant si piscina Bucuresti | 0766379289; 0721244247 | Strada Ilioara, Nr. 16L, sector 3 |
| 606. | Pub 18 Restaurant - Bucuresti | 0722441586 (Manager Pub Oana Valeanu) | Splaiul Independentei, Nr. 290, bl. P18, parter, Sector 6, Bucuresti |
| 607. | Ganesha Caffe & Garden - Bucuresti | 0764263742 | Str. Barbu Vacarescu, nr. 71, sector 2, |
| 608. | Monza, Trattorie si Restaurant - Bucuresti | 0724802802; 0722661166; 0769200002 | Baba Novac, Nr. 25, Sector 3, Bucuresti |
| 609. | Bistro 37-39 - Restaurant Bucuresti | 0731355939 | Bulevardul Basarabia, Nr. 37-39 , Sector 3 |
| 610. | Sham Sweet, Cofetarie - Bucuresti | 0748242455 | Bd. Basarabia, Nr.98, Sector 3, Bucuresti |
| 611. | La Micutu - Fast Food, Bucuresti | 0765099359 | Bd Timisoara, Nr 18, sector 6 |
| vezi mai multe | |||
| 1. | INTERHOME | Tel. 021.456.31.85; Fax 021.456.31.80; 021.456.31.83 | Str. Nasaud, nr. 97, sector 5, |
| 2. | CITY MALL | Tel. 021.319.35.22; Fax 021.319.35.21 | Sos.Oltenitei nr. 2, sector 4 |
| 3. | LIBERTY CENTER | 0213699871; 0213699835 | Sos. Progresului, nr. 151-171, sector 5, Bucuresti |
| 4. | COCOR | Tel. 021.313.14.03; 021.313.92.39; 021.314.96.64; 021.314.96.65; Fax 021.313.98.48 | Bd. I.C. Bratianu nr. 29-33, sector 3, |
| 5. | FONZI SUPERMARKET | Tel. 0729.005.260; Tel/Fax 021.323.67.52 | Str. Nerva Traian, nr. 17-19, sector 3, |
| 6. | Cocor Luxury Store | 021.312.43.10; Fax: 021.313.98.48 | Bd. I.C. Bratianu, nr. 29-33, sector 3, |
| 7. | NICK CENTER | Tel. 410.06.14; Fax 410.18.94 | Calea 13 Septembrie nr. 190, sector 5 |
| 8. | THE GRAND AVENUE AT BUCHAREST MARRIOTT GRAND HOTEL | Tel.021. 403.40.98 | Calea 13 Septembrie nr. 90, sector 5 , |
| 9. | CARREFOUR | Tel. 0374.145.800; Fax 021.307.66.96 | Bd. Corneliu Coposu nr. 2, sector 3, |
| 10. | Ava Center | 0769240700; 0213201626; 0730096166 | Mihai Bravu, Nr. 540-564, Sector 3, Bucuresti |
| 11. | GMARKET | Bucuresti | |
| 12. | SUPERMARKET PRIMiVARA | Tel. 031.402.58.20; Fax 021.410.96.96 | Calea 13 Septembrie nr. 221-225, sector 5 - Complex Prosper, |
| 13. | BUCURESTI MALL | Tel. 021.327.67.00; 021.327.61.00; 021.327.61.02; Fax 021.320.92.09 | Calea Vitan nr. 55-59, sector 3, |
| 14. | SUPERMARKET MAICOM | Tel. 0722.322.573; Fax 321.78.36 | Str. Vitan nr. 104, sector 3 |
| 15. | SUN PLAZA MALL | 021.233.17.45; 0720.200.582 | Calea Vacaresti, nr. 391, Piata Sudului, sector 4, Bucuresti |
| 16. | ETHOS SUPERMARKET | Tel. 0735.808.451 | Str. Margeanului nr. 48, sector 5, |
| 17. | Complexul Comercial Rahova | Str. Glicinelor nr. 4-14, sector 5, | |
| 18. | CENTER HUEDIN | Tel. 021.405.58.00; 0720.237.237 | Str. Huedin nr. 19, sector 4 |
| 19. | CONCORD 2002 | Tel/Fax 323.90.87 | Bd. Decebal nr. 7, sector 3 |
| 20. | FOR YOU | Tel. 0745.094.433 | Bd. Decebal nr. 24, sector 3 |
| 21. | DANCA | Tel. 0722.546.268; Fax 212.74.84 | Intr. Panificatiei nr. 2 (P-ta Gorjului), sector 6 |
| 22. | AUCHAN | Tel. 0750.014.150 | Calea Vitan nr. 236, sector 3, |
| 23. | AFI Cotroceni - Mall, Bucuresti | 0314257510; 0314257511; Fax 0314257513 | Vasile Milea, Nr. 4, Sector 6 (intersectia Bd. Timisoara cu Str. Vasile Milea), Bucuresti |
| 24. | PROFI | Tel. 0726.100.452; Tel/Fax 021.444.32.44 | Bd. Ghencea nr. 38, bl. C63, sector 6, |
| 25. | DENISA MARKET | Tel. 021.211.71.70; 0722.691.595; 0749.263.036; Fax 021.211.71.70 | Str. Rasuri nr. 1, sector 2 |
| 26. | Vitantis Shopping Center Bucuresti - Magazine retail Praktiker, Diego si Casa Rusu | 0213104513; Fax: 0213150813 | Soseaua Vitan-Barzesti, nr. 7A, sector 4, Bucuresti |
| 27. | SONMEZ MARKT 4 | Tel. 211.65.39; Fax 210.13.25 | Bd. Iancu de Hunedoara nr. 64, sector 1 |
| 28. | Home & Design Mall, Bucuresti - Mobilier, covoare, mochete, perdele | 0214130742; 0214132046; Fax.0214130741 | Bulevardul Ghencea, Nr. 126-132, Sector 6, Bucuresti |
| 29. | GRAND ARENA MALL | Tel. 031 42.57.514; Fax 031.425.05.17 | Bd. Metalurgiei nr. 12-18, sector 4, |
| 30. | FONZI | Tel. 260.21.28; 0729.005.261; Fax 260.15.31 | Sos. Nicolae Titulescu nr. 121 (Fonzi Junior), sector 1 |
| 31. | VENGA | Tel. 021.425.05.70; Fax 021.425.05.25 | Drumul Taberei nr. 24, sector 6 |
| 32. | DEDEMAN | 0234.525.525 serviciu clienti | Str. Actiunii, nr. 2-4, sector 4, |
| 33. | BUCUR OBOR | 021.252.59.34; 021.252.59.35; 021.252.63.82 | Sos.Colentina, nr. 2, sector 2 , Bucuresti |
| vezi mai multe | |||


Vezi galeria
1
116
,323