La cheie | Planul 2 | Apartament 3 camere | 105mp | B12520
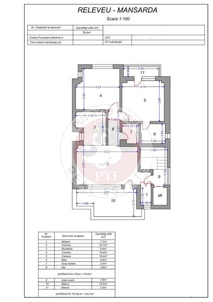
- Suprafata 79 mp
- An 2010
- Semidecomandat
- Etaj 3 din 3
Obor ...
6 min.
Calculeaza distanta
Descriere anunt
PYF018B12520 Vanzare 3 camere
Pret: 290.000 Euro
Zona: Mosilor, Bucuresti
ID oferta: PYF018B12520
Acasa incepe cu un sentiment.......Poate fi o lumina calda intr-o dupa-amiaza linistita, un balcon cu vedere sau o bucatarie unde iti savurezi cafeaua de dimineata.
Imagineaza-ti locuinta perfecta, care reflecta personalitatea ta si raspunde nevoilor tale zilnice.
Echipa PYF REAL ESTATE te ajuta sa gasesti acel loc special pe care il poti numi acasa. Portofoliul nostru cuprinde proprietati atent selectate, ideale pentru tine si familia ta.
Localizare:
Mosilor - (), una dintre cele mai cautate zone din Bucuresti, cu acces rapid la mijloace de transport in comun (metrou, autobuz, zona comerciala, banca, supermarket, cinema, fastfood, piata, hotel, central, parc, mall, restaurant/pub, centru universitar, scoala/gradinita), scoli, magazine, parcuri si centre comerciale.
Detalii proprietate:
Tip locuinta: Apartamente
Tip operatiune: vanzare
Numar camere: 3 camere (2 dormitoare)
Suprafata utila: 79 mp
Suprafata totala: 105 mp
Etaj: 3 / 3 ETAJUL 3 ESTE MANSARDA
Compartimentare: semidecomandat
Confort: 1
An constructie : 2010
An renovare : 2025
Tip imobil: bloc mixt
Incalzire : Incalzire prin pardoseala
Dotari: calorifere: da; ferestre: pvc; incalzire: incalzire prin pardoseala; pereti: faianta, lavabil, marmura; podele: parchet, gresie, marmura, granit; usa intrare: metal
Bai: 2
Balcoane: 1 (4 mp)
Terase: 1 (15mp)
Bucatarii: 1 (da, mobilata, utilata, inchisa )
Finisaje: calorifere: da; ferestre: pvc; incalzire: incalzire prin pardoseala; pereti: faianta, lavabil, marmura; podele: parchet, gresie, marmura, granit; usa intrare: metal
Mobilare : Complet modern
Podele: parchet, gresie, marmura, granit | Pereti: faianta, lavabil, marmura | Ferestre: pvc
Stare generala: Stare excelenta
Usa intrare: metal
Vedere: mixta
Destinatie: locuinta, birou, locuinta/birou
Acces rapid la mijloace de transport in comun:
-metrou: [(M1) Obor-500m, imobil-statie],
-autobuze: [66, 79, 86, 97, 135, N108-300m, 101, 143, 330, 335, N10-460m, 409, 409B, 411, 412, 413, 417, 4167, 168, 168B-530m, imobil-statie],
-tramvaie: [21,-300m, 1, 10 - 500m, imobil-statie]
In apropiere:
-Piata Obor, Auchan, CarrefourAnnabela, Kaufland, Mega Image, Berezka, SuperMercato, Al nur Asian Mini Market, Halal Macelarie Arabeasca, Al Taiba, Froo, August;
-Gradinita Iepurasul Cel Istet, Gradinita Magnolia nr. 133, Gradinita Livada cu Copii, Gradinita Don Castor, Kindi Montessori, Gradinita Nemo, Gradinita Little Learners, Gradinita Maica Domnului, Gradinita Scoli Iancului;
-Scoala Gimnaziala Sfantul Silivestru, Scoala Numarul 26, Scoala Gimnaziala Nr. 307, Scoala Gimnaziala Miaca Domnului, Ina School, Scoala Gimnaziala Nr. 71, Gimnaziul Monterra-scoala privata;
-Liceul Teoretic Dr. Mioara Mincu, Colegiul National Bilingv George Cosbuc, Liceul Teoretic Ady Endre, Colegiul National Iulia Hasdeu, Colegiul National Miahi Viteazu, Colegiul Economic AD Xenopol, Colegiul Tehnologic Ion IC Bratianu;
-Parcul Obor, Parcul Pasari, Veranda Mall, Complex Obor, Bucur Obor, Foisorul De Foc;
Parcare: posibilitate in strada (1 loc)
Apartamente pe palier: 1
Siguranta: interfon - video interfon, lift - lift
Izolatii: exterior, interior
Agent responsabil: Robert T.
Important de stiut:
Vizionarile se realizeaza in baza unui contract de prestari servicii, semnat intre client si ag
Acces mijloace transport
| Statii metrou | Timp | |
|---|---|---|
![]() |
Obor | 6 min. |
![]() |
Metrou Piața Iancului - Ascensor | 18 min. |
| Statii STB | Timp |
|---|---|
|
Făinari
|
1 min. |
|
Mihai Eminescu
|
5 min. |
|
Bucur Obor
1
10
143
,335330634N108
,46
,409
,411
,412
,413
,417
|
6 min. |
|
Obor
|
6 min. |
|
Calea Moșilor
79
86
,97
,135
|
7 min. |
|
Șoseaua Mihai Bravu 88
330
,335
,N108
|
8 min. |
|
Șoseaua Mihai Bravu 33
101
,330
,335
,N108
|
14 min. |
Obiective interes
| 1. | Don Castor, Gradinita & After School - Bucuresti | 0757073929; 0217945396 | Str. Vaselor, Nr. 17A, Sector 2, Bucuresti |
| 2. | Cei Trei Muschetari - Before si After School, Bucuresti | 0724384924 | Str. Vaselor, Nr. 40, Sector 2, Bucuresti |
| 3. | Clubul Copiilor Sector 2 - Bucuresti | 0212106432 | Intr. Cobilitei, Nr. 8, Sector 2, Bucuresti |
| 4. | Sonnenblume Kinderinstitut - Gradinita, Cresa Montessori Bucuresti | 0726471469 | Str. Calusei, nr. 36, sector 2 |
| 5. | Iepurasul cel Istet - Cresa, Gradinita, After School sector 2 | 0731488715; 0722121779 | Str. Mihai Eminescu, nr. 179, sector 2 |
| 6. | Licurici - Gradinita Bucuresti | 0212104790 | Bd. Dacia, Nr. 134, Sector2, Bucuresti |
| 7. | Puzzle Edu Center - Centru educational sector 2 | 0724536293 | Str. Gheorghe Pop de Basesti, nr. 17, Sector 2 |
| 8. | Dani\'s Children, Cresa, Gradinita, After School - Bucuresti | 0721800099 | Str. Silvestru, Nr. 42, Sector 2, Bucuresti |
| 9. | Arc-en-Ciel, Gradinita - Bucuresti | 0212524665; 0725519386; 0726126808 | Str. Ion Heliade Radulescu, Nr. 18, Sector 2, Bucuresti |
| 10. | Gradinita Montessori Livada cu copii sector 2 | 0757467127; 0721204642 | Str. Toamnei, nr. 76-78, sector 2 |
| 11. | Castelino Baby - Gradinita Bucuresti | 0731995600 | Str. Prof. Ion Ursu, nr. 21, sector 2, |
| 12. | Super Start - Gradinita, After School sector 2 | 0720528738 | Bd. Ferdinand I, nr. 156, Sector 2 |
| 13. | Gradinita cu program prelungit Nr. 135 | 0212421805 | Str. Masina de Paine, nr. 65, sector 2 |
| 14. | Tom Sawyer - Gradinita sector 2 | 0722529958 | Str. Bratului, nr. 14, sector 2 |
| 15. | Junior School - Gradinita Bucuresti | 0751223159 | Str. Calimachi, nr. 17, Sector 2, |
| 16. | Bell - Gradinita, Afterschool Bucuresti | 0728694516 | Str. Mecet, Nr. 53, Sector 2 |
| 17. | Little Primary Education - Gradinita Bucuresti | 0733331333 | Intr. Docherilor, Nr. 3, Sector 2 |
| 18. | Gradinita Nr. 257 Alice sector 2 | 0212114524 | Str. Alexandru Donici, Nr. 23, sector 2 |
| 19. | Apostol - After School sector 2 | 0740951411 | Str. Seneslav Voievod, Nr. 55, Sector 2 |
| 20. | Gradinita Magica, Bucuresti | 0765221341; 0723892378 | Str. Stefan Mihaileanu, Nr. 33, Sector 2, Bucuresti |
| 21. | Acorns British Style Nursery, Gradinita & After School, Bucuresti | 0722476581; 0788418186 | Str. Popa Soare, Nr. 63, Sector 2, Bucuresti |
| 22. | Springfield Education - Gradinita si After School Bucuresti | 0734710573; 0721707879 | Str. Soltuzului, Nr. 10, Sector 2, Bucuresti |
| 23. | Oxigen Sport - Befor School, After School Bucuresti | 0722529429 | Str. Duzilor, Nr. 23, sector 2, Bucuresti |
| 24. | Luminita - Gradinita sector 2 | 0212503180 | Sos. Iancului, nr. 4A, sector 2 |
| 25. | Gradinita Nr. 133 sector 2 | 0212116749 | Str. Aurel Vlaicu, nr. 30 - 32, sector 2 |
| 26. | Veverita Jucausa - Gradinita sector 2 | 0726224859 | Str. Litovoi Voievod, Nr. 38, Sector 2 |
| 27. | Montessima Educational - Afterschool zona Iancului, Bucuresti | 0771421104 | Str. Constantin Zlatescu, nr. 12, sector 2 |
| 28. | Nicoland - Cresa, Gradinita Bucuresti | 0766237114 | Str. Raspantiilor, Nr. 7, Sector 2 |
| 29. | Clopotel - Gradinita Bucuresti | 0212502197 | Str. Elev Dridu Georgescu, nr. 2, sector 2 |
| 30. | Alfred Fronius - Gradinita si afterschool in limba germana Bucuresti | 0729699619; 0726715499 | Str. Tunari, Nr. 39, Sector 2, Bucuresti |
| 31. | Alfred Fronius - Gradinita si afterschool in limba germana Bucuresti | 0372978427; 0726715499 | Str. Tunari, Nr. 39 (zona Stefan Cel Mare), sector 2 |
| 32. | Gradinita nr. 138 sector 2 | 0212106377 | Str. Tunari, nr. 52, sector 2 |
| 33. | Castelul Copiilor din Tei, Gradinita - Bucuresti | 0212109962; 0764738888; 0739770707 | Str. Sfanta Treime, Nr. 28, Sector 2, Bucuresti |
| 34. | Montessori Edu - Centru educational, Bucuresti | 0721833901 | Str. Mantuleasa, nr. 21, sector 2 |
| 35. | Zuppy - Gradinita, After School sector 2 | 0753915058 | Str. Otesani, nr. 69, Sector 2 |
| 36. | RosaMaria - Gradinita, cresa Bucuresti | 0746808080 | Str. Silvia, Nr. 18, Sector 2 |
| 37. | Casuta cu Pitici Mari si Mici - Gradinita, Afterschool Bucuresti | 0722626268 | Str. Silvia, nr. 11, Sector 2, Bucuresti |
| 38. | Ioanid - Gradinita Bucuresti | 0758054441 | Str. Polona, Nr. 4, Sector 1, |
| 39. | Central Art Studio - After School/Cursuri Pentru Copii/Scoala de Vara Bucuresti | 0745633737; 0765454244 | Str. Popa Soare, nr. 29, sector 2 |
| 40. | Domino - Gradinita Bucuresti | 0722492047 | Str. Constantin Georgian,, nr. 27, sector 2, Bucuresti |
| 41. | Gradinita nr. 233 sector 2 | 0216884518 | Str. Antonescu Petre, nr. 20, Sector 2 |
| 42. | Cartea cu Povesti - Gradinita Bucuresti | 0766237114 | Str. Aurel Vlaicu, nr. 127A, sector 2, |
| 43. | Kindi - Centru de educatie timpurie Montessori, Bucuresti | 0726876873 | Str. Delea Veche, Nr 35, sector 2 |
| 44. | Gradinita Nr. 7 Bucuresti | 0212421714 | Str. Maica Domnului, Nr. 61 - 63, Sector 2 |
| 45. | KeiKo AfterSchool Bucuresti | 0748880866 | Str. Magura Vulturului, nr. 6, Sector 2 |
| 46. | Once Upon a Time - Centrul educational adlerian Bucuresti | 0770590487 | Str. Ciobanasului, Nr. 22A, Sector 2 |
| 47. | Gradinita Nr. 256 Bucuresti | 0212506222 | Str. Atanase Ionescu, Nr. 25, Sector 2 |
| 48. | Cresa Ciobanasului | 0213223085 | Str. Ciobanasului, nr. 23, sector 2, |
| 49. | Gradinita nr. 276 Bucuresti | 0212423280 | Str. Corabia, nr. 57, sector 2 |
| 50. | Noel - Gradinita & After School Bucuresti | 0728459857; 0725839363 | Str. Trifoi, Nr. 10, Sector 3, Bucuresti |
| 51. | Gradinita Nr. 203 Bucuresti | 0213112352 | Str. C. A. Rosetti, nr. 32, Sector 1 |
| 52. | Praslea cel Voinic - Gradinita & After School Bucuresti | 0722773103; 0733839824 | Str. Competitiei, Nr. 38, Sector 2, Bucuresti |
| 53. | Rio - Gradinita & After School Bucuresti | 0740025434; 0748633314 | Str. Luigi Galvani, Nr. 13A, Sector 2, Bucuresti |
| 54. | Ina School - Gradinita si scoala primara, Bucuresti | 0722500899 | Str. Lacul Gorgova, nr. 2, Sector 2 |
| 55. | Pick Me Academy - Gradinita si scoala, Bucuresti | 0726000640 | Str. Slt. Pompiliu Manoliu, Nr. 7,Sector 2, Bucuresti |
| 56. | Sf. Imparati Constantin si Elena, Gradinita Bucuresti | 0722237110; 0722293056; 0213261361 | Str. Labirint, Nr. 137 B , Sector 3, Bucuresti |
| 57. | Copiii Montessori - Gradinita sector 3 | 0721204642 | Str. Labirint, nr. 95, Sector 3 |
| 58. | Cresa Teiul Doamnei Bucuresti | 0314104891 | Str. Teiul Doamnei, nr. 99, Sector 2 |
| 59. | Gradinita Nr. 252 Bucuresti | 0212302296 | Calea Dorobantilor, nr. 60, sector 1 |
| 60. | International Kindergarten & Nursery - Gradinita Bucuresti | 0723248978; 0314327798 | Str. Claudiu, Nr. 26, Sector 2, Bucuresti |
| 61. | Smart Kinder Villa - Before & After School Bucuresti | 0726285699; 0728472197 | Str. Nicolae Beldiceanu, nr. 2, sector 1 |
| 62. | Academia Fantastica - Gradinita, Before & After School sector 3 | 0731027321; 0723337393; 0213065370 | Str. Moise Nicoara, Nr. 7, Sector 3 |
| 63. | Bambi Step by Step- Gradinita Bucuresti | 0213273256; 0317102928 | Str. Gh. Dem Teodorescu, Nr.16 bis, Sector 3, Bucuresti |
| 64. | Aurora - Gradinita & After School sector 3 | 0744317320; 0213224168 | Str. Moise Nicoar?, nr. 9-11, sector 3 |
| 65. | BritAcademy, Gradinita in limba engleza - Bucuresti | 0740329105 | Str. Olimpiadei, Nr. 36, Sector 2, Bucuresti |
| 66. | Happy Kids Project - After school si before school, Bucuresti | 0745152802 | Sos. Iancului, Nr. 110, Sector 2, Bucuresti |
| 67. | Cresa Sinaia sector 2 | 0212403528 | Aleea Sinaia, nr. 4, sector 2 |
| 68. | Arlechino & Friends - Gradinita si afterschool - Bucuresti | 0723264032; 0749028820; 0213260584 | Str. Cezar Boliac, Nr. 22-24, Sector 3, Bucuresti |
| 69. | Copacelul Vietii - Gradinita Bucuresti | 0721464185 | Str. Radu Calomfirescu, nr. 9, sector 3 |
| 70. | Bob de Grau, Gradinita si Cresa - Bucuresti | 0720446942 | Str. Agricultori, Nr. 142, Sector 3, Bucuresti |
| 71. | Edu & Care - After School, cursuri pentru copii Bucuresti | 0721571086 | Str. Chopin, nr. 2 B, sector 2 |
| 72. | City Kids - Gradinita si afterschool Bucuresti | 0756862825 | Str. Ruschita, Nr. 41, sector 2 |
| 73. | Land of Kids Afterschool sector 2 | 0766831831; 0726733314 | Str. Constantin Tanase, Nr. 22, Sector 2 |
| 74. | Funny Clown, Gradinita & After School - Bucuresti | 0740806356 | Str. Ruschita, Nr. 41, Sector 2, Bucuresti |
| 75. | Kids First - Gradinita Bucuresti | 0748880866; Varnavelena@gmail.com | Str. Sica Alexandrescu, nr. 20, Sector 2, |
| 76. | Mihai Ionescu - Gradinita, Scoala, Liceu Bucuresti | 0213235495 | Str. Parfumului, Nr. 31, Sector 2, Bucuresti |
| 77. | Lauder-Reut Kindergarten - Gradinita Bucuresti | 0318055772; 0723098800; 0735505395 | Str. Iuliu Barasch, Nr. 15, Sector 3, Bucuresti |
| 78. | Lill put - Centru de educatie nonformala pentru prescolari, Bucuresti | 0722647423 | Str. Sarafinesti, Nr. 29, sector 2 |
| 79. | Kiga 99 Luftballons - Gradinita, After School in limba germana Bucuresti | 0722395197; 0745423467 | Str. Theodor Sperantia, nr. 81, sector 3 |
| 80. | Kids\' World Nursery School - Gradinita Bucuresti | 0771242641 | Bd. Basarabia, Nr. 2, Sector 3 |
| 81. | Maria International School - Gradinita, Scoala primara si afterschool Bucuresti | 0730432092 | Str. Piata Amzei, Nr. 6, Sector 1, Bucuresti |
| 82. | Luca - Gradinita si Cresa, After school, Scoala primara si gimnaziala, Liceu teoretic, Bucuresti | 0721335161; 0744894206 | Str. Sanmedru, Nr. 25, Sector 2, Bucuresti |
| 83. | Gradinita nr. 137 sector 2 | 0212407581; 0217960289 | Str. Plumbuita, nr. 5, sector 2 |
| 84. | Gradinita nr. 188 Castel sector 2 | 0212504180; 0213179946 | Bd. Pierre de Coubertin, nr. 1, sector 2 |
| 85. | Little Oaks Academy - Gradinita sector 3 | 0766572126; 0766572127 | Sos. Mihai Bravu, Sos. Mihai Bravu nr. 286, sector 3 |
| 86. | Scoala Italiana Aldo Moro - Gradinita,scoala, liceu, Bucuresti | 0212104684 | Intr. Blaj, nr. 1, Sector 1, Bucuresti |
| 87. | Mami si Tati - Gradinita, Before & After School Bucuresti | 0721177543; 0762616442 | Str. Grigore Alexandrescu, Nr. 58, sector 1, Bucuresti |
| 88. | Albinuta - Gradinita sector 2 | 0212303377 | Str. Dinu Lipatti, nr. 1, sector 2 |
| 89. | Amadeus - Afterschool Bucuresti | 0770896313; 0721841416 | Str. Amidonul, nr. 2, Sector 2 |
| 90. | Abcdino, Gradinita - Bucuresti | 0213231070; 0725929616; 0745397739 | Str. Chiparosului, Nr. 31, Sector 3, Bucuresti |
| 91. | Happy Kids - Gradinita si after school Bucuresti | 0770708392 | Str. Scoala Floreasca, Nr. 3, Sector 1, Bucuresti |
| 92. | Little Star - Gradinita, After School sector 3 | 0745531279; 0724506631 | Str. Alexandru Magatti, nr. 13 A , sector 3 |
| 93. | INNA Kids Academy - Before & Afterschool Bucuresti | 0723290372 | Str. Johann Sebastian Bach, nr. 10, Sector 2 |
| 94. | Smiley After School sector 2 | 0727401829 | Bd. Basarabia, nr. 62A, sector 2 |
| 95. | ERA Kinderland - Gradinita, after school in limba germana sector 3 | 0728850073; 0213207697 | Str. Dristorului, nr. 67, sector 3 |
| 96. | Dumbo Kids Academy - Cresa, Gradinita, Before & After School sector 3 | 0722320023 | Intr. Patinoarului, nr. 42A, sector 3 |
| 97. | Piccolo Grande - After School, loc de joaca sector 3 | 0754200258 | Intr. Patinoarului, nr. 52, Sector 3 |
| 98. | Bulgarasi de Aur - Before & After School Bucuresti | 0723398829 | Str. Cogalnic, nr. 30, sector 3 |
| 99. | Analesia - Gradinita & AfterSchool in limba germana Bucuresti | 0741332222; 0741332226 | Str. Paris, nr. 57, sector 1 |
| 100. | Maya si Prietenii - Cresa, Gradinita sector 2 | 0755359162 | Str. Herta, nr. 32A, Sector 2, |
| 101. | Waldorf Christophori - Gradinita Bucuresti | 0770861602 | Str. Putul cu Plopi, Nr. 8, (langa Parcul Cismigiu) - sector 1, Bucuresti |
| 102. | Madi AfterSchool sector 2 | 0757837644 | Str. Herta, nr. 32A, Sector 2 |
| 103. | Taramul Magic Voi Reusi - After School sector 2 | 0727540913 | Bd. Chisinau, nr. 6-8, sector 2 |
| 104. | Little Princess 1 - Cresa, Gradinita Bucuresti | 0756070390; 0744321574; 0744703973 | Str. Popa Stoica Farcas, Nr. 64-66, Sector 3, Bucuresti |
| 105. | Steaua Nordului - Before and Afterschool Bucuresti | 0745040940 | Str. Andrei Muresanu, nr. 27, sector 1 |
| 106. | Sofia - Gradinita Bucuresti | 0721006006; 0212311505 | Str. Sofia, Nr. 20, Sector 1 |
| 107. | Saga Kid - After School sector 3 | 0743266500; 0756169135 | Str. Campia Libertatii, nr. 44, sector 3, |
| 108. | Kinderakademie - Gradinita & After School Bucuresti | 0724661760; 0727427004 | Str. Sfintii Voievozi, Nr. 28, Sector 1, Bucuresti |
| 109. | Gradinita Nr. 251 Bucuresti | 0212301417 | Str. Venezuela, nr. 11, sector 1 |
| 110. | Fridolin - Gradinita, Scoala Germana Bucuresti | 0723219616; 0723584872 | Str. Temisana, Nr. 1, Sector 1, Bucuresti |
| 111. | Iulia Pantazi - Centrul psihologic pentru copii Bucuresti | 0745480458; 0317304741 | Str. Cernauti, Nr.1, Sector 2, Bucuresti |
| 112. | Olga Gudynn International School - Gradinita, scoala si liceu, Bucuresti | 0734411359; 0212311202 | Str. Ancuta Baneasa, Nr. 8, sector 1, Bucuresti |
| 113. | Smart Steps - Gradinita , After School sector 3 | 0733965133 | Str. Dristorului, nr. 91-95, bl. E, Parter, sector 3 |
| 114. | Micii Poznasi - Cresa, Gradinita Bucuresti | 0725911233 | Calea Serban Voda, Nr. 22-24, Sector 4 |
| 115. | Mica Printesa - Gradinita, after school Bucuresti | 0744321574; 0744703973 | Str. Vulcan Judetu, nr. 16, sector 3, |
| 116. | Little Princess 2 - After School / Before School Bucuresti | 0744703973; 0744321574; 0756070390 | Str. Vulcan Judetu, Nr. 16, Sector 3, Bucuresti |
| 117. | Prikindel - Cresa, Gradinita & After School - Bucuresti | 0314059269; 0722522198 | Str. Sf. Ilie, nr. 5, sector 4, |
| 118. | Mell - Gradinita cu Program Normal sector 3 | 0744564426; 0722958683 | Str. Vlad Dracu, nr. 43, sector 3 |
| 119. | Centrul Educational Fecioara Maria - Cresa, Gradinita Bucuresti | 0799741474; 0770574645 | Str. Eufrosina Popescu, Nr. 30, Sector 3, Bucuresti |
| 120. | Centrul multifunctional Cresa Craiasa Zapezii sector 4 | 0371360117; 0371360127 | Str. Oitelor, nr. 50, sector 4 |
| 121. | Fundatia School and Fun - Gradinita Sotron | 0216555398 ; 0721727323 | Str. Gherghitei, Nr.7, Sector 2 (Cartier Colentina), Bucuresti |
| 122. | Don Quijote - Afterschool Bucuresti | 0725737793 | Str. Ioan Slavici, nr. 4, sector 1 |
| 123. | Dandi Kids, Gradinita & After School - Bucuresti | 0726758303 | Str. Rasovita, Nr. 18, Sector 3, Bucuresti |
| 124. | Gradinita MAPN Nr. 2 Bucuresti | 0213156889 | Str. Constantin Cristescu, nr. 5, sector 1 |
| 125. | Pisicile Aristocrate - Gradinita sector 4 | 0213350635; 0213363680 | Bd. Regina Maria, nr. 28-30, Sector 4 |
| 126. | Centrul Educational Nectarel - Afterschool Bucuresti | 0740221854 | Str. Baba Novac, nr. 17, sector 3 |
| 127. | Teach Little People - Centru educational, Bucuresti | 0727401433 | Str. Alexander von Humboldt, nr. 2, sector 3 |
| 128. | Gradinita Nr. 239 sector 3 | 0213245490 | Str. Dristorului, nr. 102, sector 3 |
| 129. | Gradinita Nr. 280 sector 2 | 0212557980; 0212550205 | Str. Delfinului, nr. 4, sector 2 |
| 130. | Capsunica - Gradinita sector 3 | 0765516162 | Str. Constantin Nottara, nr. 27, sector 3 |
| 131. | Piticul Curajos - Gradinita, After School sector 3 | 0749607276; 0314373583; 0213240124 | Str. Copaceni, Nr. 64, sector 3 |
| 132. | Letitia - After school sector 3 | 0733919066; 0722882558 | Str. Baba Novac, nr. 19A,Belvedere Residence, sector 3 |
| 133. | Primii Pasi - Gradinita si Cresa Fundeni | 0212400469; 0722522898 | Str. Sucidava, nr. 27, Sector 2, Bucuresti |
| 134. | Gradinita nr. 73 sector 5 | 0213154355 | Splaiul Independentei, nr. 68, sector 5 |
| 135. | Taramul Cunoasterii - Cresa si Gradinita Bucuresti | 0724278826 | Str. Ioan G. Bibicescu, Nr. 11, Sector 1, Bucuresti |
| 136. | Oskar - Before and After School Piata Victoriei | 0730948470 | Str. Monetariei, Nr. 14, Sector 1, Bucuresti |
| 137. | Oskar - Before&After School Bucuresti | 0734040227; 0730948470 | Str. Monetariei, nr. 12, sector 1 |
| 138. | LTN Liceul Teoretic National - Gradinita, Gimnaziu, Liceu - Bucuresti | 0720000171; 0732151931 | Str. Dr. Iacob Felix, nr. 49, Sector 1, Bucuresti |
| 139. | Gradinita Nr.161 (Brandusa) sector 3 | 0314250834; 0314250835 | Str. Branduselor, Nr. 37/43, sector 3 |
| 140. | Edu Friends - Before & After School Bucuresti | 0783080096 | Str. Berzei, Nr. 5, Sector 1 |
| 141. | Gradinita nr. 30 sector 4 | 0213362078 | Bd. Dimitrie Cantemir, nr. 16A, Sector 4 |
| 142. | Iuladi Kids - Cresa, gradinita Bucuresti | 0769088777 | Str. Breaza, Nr. 78, Sector 3 |
| 143. | Family Kids, Gradinita si After School - Bucuresti | 0722565657; 0723281551 | Str. Mugur Mugurel, Nr. 21, Sector 3, Bucuresti |
| 144. | Copii de Poveste - Gradinita sector 4 | 0740051582 | Str. Poterasi, nr. 5, sector 4 |
| 145. | Cresa Potcoava (Titan II) sector 3 | 0213244810; 0213244880 | Str. Pictor Gheorghe Tattarescu, nr. 10, sector 3 |
| 146. | CoolTure MindS - After School Bucuresti | 0743359307 | Bd. Alexandru Ioan Cuza, nr. 37, Sector 1 |
| 147. | Aristokids, Gradinita & After School - Bucuresti | 0722648885 | Str. Lebedei, Nr. 25, Sector 1, Bucuresti |
| 148. | Gradinita nr. 69 sector 3 | 0213244141; 0213240000 | Bd. Pictor Nicolae Grigorescu, nr. 14, sector 3 |
| 149. | Ray of Light Montessori - Gradinita, Bucuresti | Str. Gladiolelor, Nr. 15, sector 4 | |
| 150. | Palatul Copiilor - Gradinita, After School sector 3 | 0740673742; 0314251635 | Str. Morilor, Nr. 19, sector 3 |
| 151. | Lumea lui Momo - Gradinita Bucuresti | 0748055255 | Str. Ipotesti, Nr. 23, Sector 4 |
| 152. | Puiutul Pufos - Gradinita Bucuresti | 0740140968; 0213440010 | Str. Emanoil Marius Buteica, Nr. 30, Sector 3, Bucuresti |
| 153. | Clubul Boreal, Gradinita - Bucuresti | 0721124249 | Str. Valerian Prescurea, Nr. 5, Sector 4, Bucuresti |
| 154. | Castelul Fermecat - Gradinita, After School Bucuresti | 0745770001; 0752314458; 0765957032 | Drumul Murgului, Nr. 32, Sector 3, Bucuresti |
| 155. | B-Happy Afterschool sector 3 | 0722396590 | Intr. Horbotei, nr. 12, bl. 4, parter, sector 3 |
| 156. | Olga Gudynn, Gradinita si Scoala Cotroceni - Bucuresti | 0734411332; 0214106995 | Str. Fagaras, Nr. 6, Sector 1, Bucuresti |
| 157. | Licurici - Gradinita sector 4 | 0314377556; 0767503191 | Str. Cuza Voda, nr. 141 A, Sector 4 |
| 158. | Monteclaris - Gradinita, before si afterschool Bucuresti | 0724671560; 0784606075 | Str. Maria Hagi Moscu, Nr. 29, Sector 1 |
| 159. | La Turn - Gradinita sector 2 | 0212751772; 0732122336 | Sos. Morarilor, Nr.1, Sector 2 |
| 160. | Gradinita Nr. 248 Bucuresti | 0212224120 | Str. Artur Vartejeanu, Nr. 15, Sector 1 |
| 161. | Legolas - Centru Educational sector 3 | 0787322298; 0787460258; 0787298295 | Str. Nucului, nr. 55, sector 3 |
| 162. | Kids Power - Centru educational holistic pentru copii Bucuresti | 0741248260 | Str. Nucului, nr. 55, sector 3 |
| 163. | WhizKidz Hub - Afterschool, Centru educational Bucuresti | 0742602260 | Str. Gradinarilor, nr. 14, Sector 3 |
| 164. | Buna Vestire - Gradinita, After School sector 4 | 0787435172 | Str. Episcopul Chesarie, nr. 9, Sector 4 |
| 165. | Rainbow Kids - Gradinita si scoala primara Bucuresti | 0737081690; 0773349170 | Str. Ion Dragalina, Nr. 8, Sector 5, Bucuresti |
| 166. | Centrul Educational Nordic sector 4 | 0786391446 | Splaiul Unirii, Nr. 176, Corp D3, Sector 4 |
| 167. | Gradinita nr. 206 - Gradinita cu program prelungit Bucuresti | 0212229287 | Str. Constantin Disescu, nr. 37, sector 1 |
| 168. | Castelul Bucuriei - Gradinita Bucuresti | 0730515181 | Str. Vasile Voiculescu, nr. 30, sector 3 |
| 169. | Zambete Colorate - Gradinita Ilfov | 0749262383 | Sos. Dobroesti, Nr. 30, judetul Ilfov |
| 170. | Children\'s Joy, Gradinita & After School - Bucuresti | 0731258277; 0754317732 | Str. Gramont, Nr. 3, Sector 4, Bucuresti |
| 171. | My Universe - Afterschool si gradinita, Bucuresti | 0788416164 | Str. Costache Negri, Nr. 9-11, sector 5 |
| 172. | Scufita Rosie - Gradinita sector 4 | 0766541207 | Calea Serban Voda, nr. 170 , sector 4 |
| 173. | Creative Minds Kindergarten - Gradinita Bucuresti | 0726152551 | Str. Alexandru Deparateanu, nr. 38, sector 1 |
| 174. | PRO Academy Afterschool | 0744501156 | Str. Sibiel, nr. 6, Sector 4 |
| 175. | Insula Copilariei - Gradinita, After School sector 2 | 0722642428 | Str. Ropotului, nr. 25, sector 2 |
| 176. | Genius Academy - Cresa, Gradinita , Scoala Primara si After School Bucuresti | 0724111678; 0744638435 | Calea Serban Voda, nr. 145, sector 4 |
| 177. | Go Kids Go - Before and After-School Bucuresti | 0723076434; 0766480774 | Str. Clucerului, nr. 21, sector 1 |
| 178. | Clubul Micul Print - afterschool Bucuresti | 0733750795 | Str. Dr. Nicolae Staicovici, Nr. 51, Sector 5, Bucuresti |
| 179. | Max und Moritz Kinder - Gradinita limba germana & After School Bucuresti | 0726374434 | Str. Plugarilor, Nr. 24, Sector 4, Bucuresti |
| 180. | Robotics School - After School, ateliere de robotica Bucuresti | 0721861565 | Aleea Barajul Cucuteni, nr. 2, Bl M4A, sector 3 |
| 181. | Melba - Centru Educational Bucuresti | 0722461015 | Str. Lanariei, Nr. 117 , Sector 4, Bucuresti |
| 182. | Dreamland - Gradinita Bucuresti | 0787521511 | Str. Plugarilor, nr. 20-22, Sector 4, Bucuresti |
| 183. | Just4Kids - Scoala Gimnaziala cu nivel gimnazial, primar si prescolar Bucuresti | 0739674601 | Str. Vantului, Nr. 27, Sector 3, Bucuresti |
| 184. | Centrul Social Multifunctional Cresa Scufita Rosie sector 4 | 0733200109; 0372874267; 0372715100, 0372715101 | Aleea Tohani, nr. 1, bl.30, sc. 1, parter, sector 4 |
| 185. | A&M afterschool Bucuresti | 0723371319 | Bd. Camil Ressu, Nr. 33, bl. N4, sc. 1, ap. 4, int. 4, sector 3, |
| 186. | Elite - Cresa, Gradinita Bucuresti | 0766687691 | Str. Lanariei, Nr. 136, Sector 4, Bucuresti |
| 187. | Roxy Baby - Cresa Particulara Bucuresti | 0314254309; 0723274924 | Str. Slobozia, Nr. 29 , Sector 4, Bucuresti |
| 188. | Gradinita Floare de colt (nr. 64) sector 3 | 0213464899 | Str. Schitului, nr. 1D, sector 3 |
| 189. | Gradinita M.Ap.N. nr. 1 sector 6 | 0213196009; 0766298724 | Calea Plevnei, nr. 137B, sector 6 |
| 190. | Discover Me- Gradinita Bucuresti | 0747774809 | Str. Constantin Noica, Nr. 120, sector 6, Bucuresti |
| 191. | Zum Zum - Gradinita Bucuresti | 0745685556; 0740704922 | Str. Vespasian, Nr. 37, Sector 1, Bucuresti |
| 192. | Ortense - Gradinita si After School, Ilfov | 0735642345 | Intrarea Ciresului, 16c, Dobroesti, judetul Ilfov |
| 193. | Gradinita nr. 3 - sector 3 | 0213464112 | Str. Plt. Nedelcu Ion, Nr. 31, sector 3 |
| 194. | Puisor - Gradinita Nr. 268 Bucuresti | 0214104010 | Str. Ion Creanga, Nr. 8, Sector 5, Bucuresti |
| 195. | The Little Artist - Gradinita Bucuresti | 0737365283; 0743814767; 0722680765 | Str. Ing. Zablovschi, Nr. 7, Sector 1, Bucuresti |
| 196. | Gradinita nr. 70 sector 3 | 0213400228 | Str. Lucretiu Patrascanu, nr. 12, sector 3 |
| 197. | Pitiricky - Clubul celor mici - Bucuresti | 0724648513 | Str. Ialomicioarei, Nr. 13, Sector 1, Bucuresti |
| 198. | Gradinita Quiz | 0751425562 | Str. Abrud, nr. 134-136, sector 1 |
| 199. | Gradinita Nr. 154 sector 3 | 0213400130 | Aleea Barajul Uzului, Nr. 9, sector 3 |
| 200. | Sincron - Gradinita, After School Sector 3 | 0722243877 | Calea Vitan, nr. 206, sector 3 |
| 201. | Paradisul Copiilor - Gradinita & After School Bucuresti | 0730007062 | Str. G-ral. Haralambie Nicolae, Nr. 38, Sector 4, Bucuresti |
| 202. | Plusica - Gradinita & Afterschool sector 3 | 0768596856 | Str. Drumeagului, nr. 51, sector 3 |
| 203. | Sfantul Nicolae, Gradinita & After School - Bucuresti | 0729611918 | Str. Sirenelor, Nr. 56-58, Sector 5, Bucuresti |
| 204. | Montessori Orizonturi Libere - Gradinita si scoala, Bucuresti | 0726766663; 0733914286; 0787829354 | Str. Unditei, nr. 11, Sector 1 |
| 205. | Academia Gifted International, Gradinita & After School - Bucuresti | 0724381661; 0722277090 | Str. Sold. Simion Stefan, nr. 39, sector 4, Bucuresti |
| 206. | Gradinita nr. 71 sector 3 | 0213480894 | Aleea Fuiorului, nr. 9 , sector 3 |
| 207. | Bergman Nature Kindergarten - Bucuresti | 0743918743 | Str. Elena Caragiani, Nr. 21C, sector 1 |
| 208. | Kinderträume - Gradinita Bucuresti | 0744507988 | Splaiul Independentei, Nr. 195, sector 6, Bucuresti |
| 209. | Asociatia Conil - Gradinita pentru copii cu nevoi speciale Bucuresti | 0784412222; 0217466704; 0735847526 | Str. Dr. Victor Poloni , nr 14, Sector 5, Bucuresti |
| 210. | Ana Lugojana - Gradinite, Scoala Primara, Gimnaziala si After School Bucuresti | 0724342409 | Str. Constantin Miculescu, nr. 10, sector 5, Bucuresti |
| 211. | Ghiocelul - Cresa sector 3 | 0729330319 | Bd. 1 Decembrie 1918, nr. 12-14, sector 3 |
| 212. | Gradinita nr. 277 Steluta sector 2 | 0212551195 | Sos. Vergului, nr. 14, Sector 2 |
| 213. | Gradinita nr. 269 sector 5 | 0213354544 | Str. Constantin Miculescu, nr. 12, sector 5 |
| 214. | Gradinita Nr. 189 Malaxa Bucuresti | 0212554870 | Sos. Vergului, Nr. 12, Sector 2, Bucuresti |
| 215. | Gradinita din Povesti - Bucuresti | 0724987747 | Str. Costache Marinescu, Nr. 1A, Sector 1 |
| 216. | Gradinita nr. 271 sector 5 | 0214109024 | Bd. Eroii Sanitari, nr. 77, sector 5 |
| 217. | Casuta cu ferestre - Gradinita Bucuresti | 0721660052 | Str. Gheorghe Lupu, nr. 19, sector 4 |
| 218. | Gradinita nr. 23 sector 2 | 0216275013; 0212550840 | Str. Soldat Gheorghe Raduta, nr. 1, sector 2 |
| 219. | Gradinita nr. 24 sector 3 | 0213441760 | Str. Locotenent Pascu Nicolae, nr. 12, sector 3 |
| 220. | Orhideea Kids - Gradinita & After School Bucuresti | 0748595311 | Calea Plevnei, Nr. 145B, sector 1, Bucuresti |
| 221. | Gradinita Nr. 191 sector 3 | 0213403046; 0213401059 | Str. Cozla, nr. 1, sector 3 |
| 222. | OLIMPIA KIDS - gradinita particulara, cresa si after school Bucuresti | 0731680372 | Drumul intre Vii, Nr. 24, Sector 3 |
| 223. | Castelul Fermecat Olimpia - Gradinita, scoala primara, Afterschool, Bucuresti | 0731680372 | Drumul intre Vii, Nr. 24, Sector 3, Bucuresti |
| 224. | Gradinita Nr. 255 sector 3 | 0213462996; 0213462994 | Bd. Energeticienilor, Nr. 3, sector 3 |
| 225. | Avenor - Gradinita Bucuresti | 0737043475 | Str. Alexandru Constantinescu, nr. 65, sector 1 |
| 226. | Teddybar - Gradinita, Bucuresti | 0212224455; 0723048602 | Str. Soimarestilor, nr. 29, sector 1, Bucuresti |
| 227. | Gradinita nr. 216 sector 3 | 0213400395 | Str. Barajul Rovinari, nr. 10, sector 3 |
| 228. | Cami - Gradinita particulara si afterschool Bucuresti | 0757402573 | Str. Carol Knappe, nr. 45,sector 1, Bucuresti |
| 229. | Copil Dorit - Gradinita Bucuresti | 0736820068; 0722166358 | Sos. Viilor, Nr. 33, Sector 5, Bucuresti |
| 230. | Gradinita nr. 1 Dobroesti | 0212556121; 0212553765 | Str. Nicolae Balcescu, nr. 16-18, Dobroesti, judetul Ilfov |
| 231. | Centrul Educational BUBU | 0735531156 | Sos. Pantelimon, Nr. 355, sector 2 |
| 232. | Cami Gradinita & After School - Bucuresti | 0757402573; 0749018642 | Str. Carol Knappe, Nr. 45, Sector 1, Bucuresti |
| 233. | BBIS Bucharest-Beirut International School | 0744309199; 0314381572 | Sos. Vergului, Nr. 14, Sector 2, Bucuresti |
| 234. | Ingenius Club - After School Bucuresti | 0729164275; 0733975456 | Str. Virgil Plesoianu, nr. 108, sector 1 |
| 235. | Hänsel und Gretel - Gradinita & After School Bucuresti | 0212247704; 0743332447 | Str. Mr. Av. Stefan Sanatescu, Nr. 19, sector 1, Bucuresti |
| 236. | Gradinita lui David - Bucuresti | 0751103010; 0769245552 | Intr. Catedrei, Nr. 10, sector 1, Bucuresti |
| 237. | Neverland Afterschool Bucuresti | 0742139992 | Str. Prisaca Dornei, nr. 16, sector 3 |
| 238. | Big Smile - Gradinita, scoala primara, After School Bucuresti | 0722557333 | Str. Cutitul de Argint, nr. 74, sector 4, Bucuresti |
| 239. | Gradinita nr. 97 Bucuresti | 0212241162 | Str. Islaz, nr. 13, Sector 1 |
| 240. | Gradinita Nr. 241 (Pestisorul De Aur) sector 3 | 0213482910 | Str. Rotunda, nr. 19, Sector 3 |
| 241. | Clubul Diandra - Gradinita si After School, Bucuresti | 0745075332 | Str. Prisaca Dornei, Nr. 2H, Sector 3, Bucuresti |
| 242. | Happy Angel Academy - Cresa, Gradinita, Afterschool | 0743344344; 0745515253 | Strada Smaranda Braescu, nr.36, sector 1 |
| 243. | Jolly Pepe - Club educational pentru copii si adulti, Before&After School sector 4 | 0748080088 | Str. Mitropolit Grigore, nr. 4A, parter, sector 4 |
| 244. | Sfera Kinderzentrum - Gradinita, Before & After School Bucuresti | 0728024897 | Calea Grivitei, nr. 194, sector 1 |
| 245. | Maria Ward - Gradinita sector 4 | 0722789787 | Calea Serban Voda, nr. 223, sector 4 |
| 246. | Montessori Kids at work - Gradinita Bucuresti | 0723357063 | Str. Smaranda Braescu, nr. 40A-42, sector 1 |
| 247. | Anna Afterschool sector 3 | 0733305865 | Aleea Calistrat Hogas, nr. 28 D-E, Sector 3 |
| 248. | Happy Tree - Gradinita & After School Bucuresti | 0761600082; 0763630634; 0213401308 | Aleea Calistrat Hogas, nr. 28A, sector 3, Bucuresti |
| 249. | Mary Poppins - Gradinita & After School Bucuresti | 0212333868; 0723597206; 0745285826 | Str. Aron Cotrus, Nr. 69 E, Sector 1, Bucuresti |
| 250. | Adnan, Gradinita - Bucuresti | 0744606010; 0722205243 | Intr. Buturugeni, Nr. 7 Sector 5, Bucuresti |
| 251. | Gradinita Nr. 168 sector 5 | 0213363515 | Sos. Viilor, nr. 99, sector 5 |
| vezi mai multe | |||
| 1. | Centrul Medical Romedical Int | Tel. 0212100381; 0723288108 | Str. Fainari nr. 35, sector 2, |
| 2. | Clinica Medicala Estet Laser Medical Center | Tel/Fax 0212531797; 0721241772; 0733625687 | Str. Calusei nr. 11, sector 2, |
| 3. | Donna Medical Center-Bucuresti | 0219732 | Str. Traian , nr. 234, et.1, sector 2, |
| 4. | Spitalul Clinic de Ortopedie Traumatologie Foisor-Bucuresti | Tel.0212520057; Fax.0212521387; 0310056786(progamari consultatii) | Bd. Ferdinand, nr. 35-37, sector 2 , |
| 5. | Spitalul Clinic de Ortopedie Traumatologie \"Foisor\" + ambulatoriu | Tel. 0310056786; 0212520057; Fax 0212521387 | Bd. Ferdinand, nr. 35-37, sector 2, |
| 6. | Spitalul de Urgenta Prof. Doctor Dimitrie Gerota | 0212523334; Fax 0212522829 | Str. Vasile Vasilievici Stroescu, nr. 29-31, sector 2, |
| 7. | POLICLINICA MASINA DE PAINE | Tel.021. 242.07.82 ; 021.242.00.96 (oftalmologie); 021.242.67.04 (neuropsihiatrie) | Str. Masina de Paine nr. 47, sector 2 , |
| 8. | Optim Sano - Centrul Medical Dr. Ion Socoteanu-Bucuresti | 0728955844 | Str. Salcamilor, Nr. 6A, sector 2, |
| 9. | Spitalul Clinic Colentina + Ambulatoriu | Tel. 0213167320; 0213173245; 0213165895 | Sos. Stefan cel Mare, nr. 19-21, sector 2, |
| 10. | Centrul Medical Hiperdia-Bucuresti | 0219338; Fax 0212507320 | Str.Ritmului, nr. 24, sector 2, Bucuresti |
| 11. | Ambulatoriul Spitalului Clinic Colentina | 0213167320 ; 0213173245 / interior 5732; Fax: 0213161952 | Sos.Stefan cel Mare, nr. 19-21, sector 2, Bucuresti |
| 12. | Spitalul Clinic Colentina + Ambulatoriu | 0213167320; 0213173245 ; Fax: 0213161952 | Sos. Stefan cel Mare, nr. 19-21, sector 2 , |
| 13. | Institutul National de Boli Infectioase Prof. Dr. Matei Bals | Tel.0212010980; 0213186091 | Str. Dr. Calistrat Grozovici, nr. 1, sector 2, |
| 14. | Institutul National de Diabet, Nutritie si Boli Metabolice \"Prof. Dr. N. Paulescu\" | Tel. 0212108499 (centrala); 0212106460 (secretariat); Fax 0212109092 | Str. Ion Movila, nr. 5-7, sector 2 , |
| 15. | Spitalul Clinic Dr. I. Cantacuzino-Bucuresti | Tel.0212107100; Fax.0212106435 | Str. Ion Movila nr. 5-7, sector 2 , |
| 16. | Spitalul Clinic Dr. I. Cantacuzino | Tel. 0212107100; 0212108499 (diabetologie) | Str. Ioan Movila, nr. 5-7, sector 2, Bucuresti |
| 17. | Institutul National de Diabet, Nutritie si Boli Metabolice \"Prof. Dr. N. Paulescu\" | 0212106460 (secretariat); 0212109092 | Str. Ion Movila, nr.5-7, sector 2, |
| 18. | Cron Phoenix - Centru de Reabilitare Ortopedica si Neurologica pentru copii Bucuresti | 0721567186; 0790667941 | Piata Pache Protopopescu, nr. 9, sector 2 |
| 19. | Centru Medical Stb-Bucuresti | 0213183430 (centrala); | Str. Dr. Grozovici, nr. 6, sector 2 , |
| 20. | Institutul National de Boli Infectioase Prof. Dr. Matei Bals | 0212010980 (centrala); 0213186090 | Str. Dr. Grozovici, Nr. 1, sector 2, |
| 21. | Village Medical Clinic - Centru medical Bucuresti | 0212323580 | Str. Constantin Kiritescu, nr. 27, sector 2, |
| 22. | Policlinica Iancului-Bucuresti | Tel.0314255277 (laborator); 0212508490 (O.R.L.); 0212503333 | Sos. Iancului , nr. 3, sector 2 , |
| 23. | Centrul Medical Focus | Tel. 0317111515; 0733072910 | Bd. Ferdinand nr. 141, sector 2, |
| 24. | Standard Med-Bucuresti | 0722435435; 0314053950 | Bd. Carol, nr. 45, ap.5, parter, sector 2, |
| 25. | Centrul Medical Amicus Med | Tel. 0766424841; Tel/Fax 0212508585 | Sos. Iancului nr. 17, bl. 106C, sc. 1, ap. 4, sector 2, |
| 26. | Centrul Medical Dr. Stoia Ion- Bucuresti | 0212116848 int.219; 0213175025 | Str. Thomas Masaryk , nr. 5, sector 2 , |
| 27. | SPITALUL SF. STEFAN + ambulatoriu | 021.210.39.36 | Sos. Stefan cel Mare nr. 11, sector 2, |
| 28. | SPITALUL SF. STEFAN + ambulatoriu | 0212103936 | Sos. Stefan cel Mare, nr. 11, sector 2, |
| 29. | POLICLINICA CU PLATA NR. 1 | Tel. 021.314.81.15; Fax 021.314.81.14 | Str. Bati?tei nr. 27, sector 2, |
| 30. | Bioderm Medical Cente- Bucuresti | Tel. 0722338383 | Str. Mihai Eminescu, nr. 42, sector 1, |
| 31. | Alfred Rusescu, Institutul pentru ocrotirea mamei si copilului (I.O.M.C.) Bucuresti | Tel.0219365 | Bd. Lacul Tei, nr. 120, sector 2 , |
| 32. | CENTRUL MEDICAL BATISTEI | 021.313.34.80; 021.313.14.55; 021.315.46.05 | Str. Tudor Arghezi nr. 28, sector 2 , |
| 33. | Spitalul de Urgente Oftalmologice + Ambulatoriu | 0213192751; 0213192752 | P-ta Lahovari nr. 1, sector 1, |
| 34. | Spitalul de Urgente Oftalmologice + Ambulatoriu | 0213192751; 0213192753 | P-ta Lahovari, nr. 1, sector 1, |
| 35. | Institutul national pentru sanatatea mamei si copilului Alfred Rusescu | Tel.0219365 | Bd. Lacul Tei, nr. 120, sector 2, |
| 36. | Spitalul de Urgenta Floreasca | Tel. 0215992300; 0215992308; Fax.0215992257 | Calea Floreasca nr. 8, sector 1, |
| 37. | Spitalul de Urgenta Floreasca + ambulatoriu-Bucuresti | Tel.021.5992300; Fax.021.5992257 | Calea Floreasca, nr. 8, sector 1, |
| 38. | Prof. Dr. Dimitrie Gerota, Spitalul de Urgenta MAI - Bucuresti | 0212523334 | Str. Vasile Vasilievici Stroescu, nr. 29-31, sector 2, |
| 39. | Ambulatoriul Spitalului Euroclinic | 0219208; Call Center:0219268 | Calea Floreasca, nr. 14A, sector 1, Bucuresti |
| 40. | Spitalul Euroclinic + ambulatoriu | 0219208 | Calea Floreasca, nr. 14 A, sector 1, Bucuresti |
| 41. | Euroclinic | 0219268; 0219208 | Calea Floreasca, 14 A, Sector 1, Bucuresti |
| 42. | Centrul Medical Veridia-Bucuresti | 0213029434 | Str. Matei Basarab, nr. 45, sector 3, |
| 43. | Centrul Medical Endocenter-Bucuresti | Tel.0764671233; Fax 0213267660 | Str. Arh. G. Sterian, nr. 8, sector 2, |
| 44. | Professional Klinic, Bucuresti - Tratament si analize | 0314250805 ; 0742207755 | Str.Agricultori, Nr. 115, bloc 79, Parter, Sector 3, Bucuresti |
| 45. | Medisan Family Clinic - Clinica medicala Bucuresti | 0217955980 | Str. Dr. Calin Ottoi, nr. 20-22, sector 2 |
| 46. | Spitalul Clinic Coltea | Tel. 0213874100; Fax 0213874101 | Bd. I.C. Bratianu, nr. 1, sector 3, |
| 47. | Spitalul Clinic Coltea | Tel. 0213874100; Fax 0213874101 | Bd. I.C. Bratianu, nr. 1, sector 3, |
| 48. | Policlinica Regina Maria - Enescu | 0219268 | Str. George Enescu, nr.12, sector 1, |
| 49. | Cord Blood Center-Bucuresti | 0739853208 | Str. Ramuri Tei, nr. 20, sector 2, |
| 50. | Spitalul clinic de copii Dr. Victor Gomoiu | 0314136700; 0314136701 | Bd. Basarabia nr. 21, sector 2, |
| 51. | Spitalul Prof. Dr. Constantin Angelescu | 0213233040; 0213233041 | Aleea Cauzasi, nr. 49 - 51 sector 3, |
| 52. | SPITALUL PROF. DR. CONSTANTIN ANGELESCU | 0213233040; 0213233041 | Aleea Cauzasi, nr. 49-51, sector 3, |
| 53. | Dr. V. Gomoiu, Spitalul de Copii - Ambulatoriul de specialitate Bucuresti | 0314136700; 0314136701; 0314136706 | Bd. Basarabia, nr. 21, sector 2, |
| 54. | Centrul de Diagnostic romano-german Medinst | 0319902 | Str.Sfanta Vineri, nr. 29, sector 3, |
| 55. | Clinica Medicala Blaj Stefan-Bucuresti | 0742010636 | Str.Ciprian Porumbescu, nr. 12, sector 1, |
| 56. | Centrul Medical Prain | 0212113430; 0212108476; 0723237430 | Calea Dorobantilor, nr. 32A,7,ET 1, |
| 57. | Euromedics Stem Life | 0800.800.855 (Apel gratuit); 021 311 55 92 | Str. Lipscani, Nr. 90A, et. 3, Sector 3 , |
| 58. | Clinica Medicala Elite-Bucuresti | Tel. 0720260024; 0212339776 | Str. Tudor Stefan, nr. 42-44, sector 1, |
| 59. | Spitalul Clinic de Urgenta pentru Copii \"Grigore Alexandrescu\" | Tel. 0213169366; 0213169366 int. 133/155; UPU.0213110994 | Bd. Iancu de Hunedoara, nr. 30-32, sector 1 , |
| 60. | LookClinic, Bucuresti - Centre de diagnosticare,preventie si implant de par | 0213203477 | Calea Dorobantilor, nr.188-190, sector 1, |
| 61. | Spitalul Clinic de Urgenta pentru Copii \"Grigore Alexandrescu\" | 0213169366:Centrala telefonica; 0213110994 :Unitatea Primiri Urgente | Bd. Iancu de Hunedoara, nr. 30-32, sector 1, Bucuresti |
| 62. | Spitalul Clinic de Urgenta pentru Copii \"Grigore Alexandrescu\" | 0213169366:Centrala telefonica; 0213110994:Unitatea Primiri Urgente | Bd.Iancu de Hunedoara, nr. 30-32, sector 1, Bucuresti |
| 63. | Policlinica Eforie-Bucuresti | Tel. 0213139922 | Str. Eforie, nr. 4, sector 5, |
| 64. | Centrul Medical Bio Terra Med- Bucuresti | 0726243473; 0724262110; 0774022961 | Calea Grivitei, nr. 3, Sector 1, |
| 65. | Spitalul Clinic de Boli Infectioase si Tropicale Dr. Victor Babes | 0213172727 / .28 / .29/ .30 (Centrala); 0213172721 | Sos. Mihai Bravu, nr. 281, sector 3, |
| 66. | Clinica Medicala Alco San | 021.211.41.12; 0755.050.055; Fax 021.211.41.13 | Str. Barbu Vacarescu, nr. 67, sector 2, |
| 67. | Centrul Medical Dr. Victor Babes-Bucuresti | 0213179503; Fax: 0213179502 | Sos. Mihai Bravu nr. 281, sector 3 , |
| 68. | Dr. Victor Babes, Spitalul Clinic de Boli Infectioase si Tropicale Bucuresti | 0213172727 / .28 / .29/ .30 (Centrala); Fax 021 3172721 | Sos. Mihai Bravu, nr. 281, sector 3 , |
| 69. | Institutul National de Recuperare, Medicina Fizica si Balneologie | Tel.0311302300 | Str. Sf. Dumitru, nr. 2 - ambulatoriu de recuperare clinica I si II, sector 3, |
| 70. | Centrul Medical Cutera Medical Center-Bucuresti | Tel. 0746141620 | Str. Giacomo Puccini , nr. 8 A, sector 1, |
| 71. | Spitalul Clinic de Nefrologie - Dr. Carol Davila | Tel. 0213189184 (centrala) | Calea Grivitei, nr. 4, sector 1, |
| 72. | Institutul National de Medicina Sportiva | 0213184704 ; 0213184705 ; 0213184706 | Bd. Basarabia, nr. 37-39, sector 2, Bucuresti |
| 73. | Centrul Medical de Diagnostic, Tratament Ambulator si Medicina Preventiva | 0212300402; 0212302980; 0212305923 | Str. Washington, nr. 8-10, sector 1, |
| 74. | Cabinet Medical dr. Jovin | Tel. 0746418043; Tel/Fax 0212312116 | Str. Wolfgang Amadeus Mozart nr. 31, sector 2, |
| 75. | Omnia Medical Center - Clinica medicala, Bucuresti | 0213230034; 0728841841 | Bd. Octavian Goga, Nr. 14, Bl. M61, Parter, Sector 3, Bucuresti |
| 76. | Clinica Psiho-Armonie-Bucuresti | 0730028680; 0311063523 | Str. N. Constantinescu, nr. 11, bl.11, sc.1, parter, ap.2, interfon 02,sector 1, |
| 77. | Clinica Regina Maria - Perla-Bucuresti | 0219268 | Calea Dorobanti, nr. 126-130, sector 1, |
| 78. | Spitalul Euroclinic | Tel. 0219268; 0219208 | Calea Floreasca nr. 14 A, sector 1, |
| 79. | Centrul Medical Proctoline-Bucuresti | 0213017686- programari | Bd. Dimitrie Cantemir , nr. 1, bl. B2, sc. 3, et. 2, sector 4, |
| 80. | Centrul Medical Psoremiss-Bucuresti | 0213017696 | Bd. Dimitrie Cantemir, nr. 1, bl. B2, sc. 3, et. 2, sector 4, |
| 81. | Gral Medical - Centrul Medical, Bucuresti | 0213230000; 0724242259 (programari radiologie); Fax 0213230002 | Str.Traian Popovici (fosta Unitatii), Nr. 79-91, Sector 3, Bucuresti |
| 82. | Policlinica Baba Novac | 0770218336; 0748175572 | Str. Baba Novac, nr. 2, sector 3 |
| 83. | Cabinet Medical Persepolis- Bucuresti | 0749065961; 0751011893 | Str. Vasile Toneanu , nr. 20, sector 3, |
| 84. | Vitan Policlinica, Grupare de cabinete medicale - Bucuresti | 0727451211; 0213234970; 0213221208 | Calea Dudesti, Nr. 104-124, sector 3, Bucuresti |
| 85. | Clinica Medicala Sfantul Spiridon Vechi-Bucuresti | 0213351378; 0213351379; 0787820066 | Piata Natiunilor Unite, nr 5-7, sector 4, Bucuresti |
| 86. | Centrul Medical Rom Med 2000 | 0726366370; 0213270441; Tel/Fax 0213206087 | Intr. Baba Novac, nr. 4 A, Sector 3, |
| 87. | Hipocrat 2000-clinica medicala-Bucuresti | 0219605 | Bd. Chisinau, nr. 16, sector 2, |
| 88. | RomGerMed - Clinica Medicala Bucuresti | Tel. 0213110075; 0725302475 | Calea Plevnei, nr. 137C, sector 6, |
| 89. | Rytmomed - Clinica medicala Bucuresti | 0737181511 | Str. Popa Tatu, nr. 35, Sector 1 |
| 90. | Institutul National de Endocrinologie C. I. Parhon | Tel. 0213172041; 0213172042; Fax 0213170607 | Bd. Aviatorilor nr. 34-36, sector 1 , |
| 91. | Spitalul Clinic Judetean de Urgenta Ilfov | Tel.0213243312; 0213241161; Fax 0213243296 | Bd. Basarabia nr. 49-51, sector 2, |
| 92. | Spitalul Clinic Judetean de Urgenta Ilfov + ambulatoriu-Bucuresti | Tel.021.3243312; 0213241161; Fax .0213243296 | Bd. Basarabia nr. 49-51, sector 2 , |
| 93. | Clinica Nova ORL - Dr. Voda Ioana Alexandra-Bucuresti | 0213254422; 0799848484 | Str. Pictor Gh. Tattarascu , nr. 2, subsol Policlinica Globului, in spatele cinematografului Gloria, Baba Novac, sector 3, |
| 94. | Emergency Medical Care - Servicii medicale de urgenta la domiciliu Bucuresti & Ilfov | 0799058058; 0732528136; 0314250213 | Calea Vitan, Nr. 109B-109D, Sector 3, Bucuresti |
| 95. | Clinica Medicala Data Plus-Bucuresti | 0213131491 | Str.Cobalcescu Grigore, nr. 35,sector 1, |
| 96. | Spitalul Clinic de Chirurgie Oro-Maxilo-Faciala -Bucuresti | Tel/Fax. 0213158855; 0213155217 | Calea Plevnei, nr. 17-21, sector 1 , |
| 97. | Spitalul Clinic de Chirurgie Oro-Maxilo-Faciala \"Prof. Dr. Dan Theodorescu\" | Tel/Fax. 0213158855; 0213155217 | Calea Plevnei, nr. 17-21, sector 1, |
| 98. | Clinica Memento Med-Bucuresti | 0213260081 | Str. Brailita, nr. 1, sector 3, |
| 99. | Institutul National de Endocrinologie C. I. Parhon | Tel. 0213172041; 0213172042; Fax 0213170607 | Bd. Aviatorilor, nr. 34-36, sector 1 , |
| 100. | Centrul Medical Sanador-Bucuresti | Tel. 0219699 | |
| 101. | Centrul Medical Sana-Bucuresti | 0212128222 | Str. Dr. Sergiu Dumitru, nr. 3, sector 1, |
| 102. | Institutul Clinic Fundeni | Tel. 0212750500; Fax.0212750700 | Sos.Fundeni, nr. 258, sector 2, Bucuresti |
| 103. | Clinica Medicala On | .0213017676 | Bd. Dimitrie Cantemir nr. 1, bl. B2, sc. 3, et. 2, sector 4, |
| 104. | Podologica - Salon tratament pentru afectiunile picioarelor sector 4 | 0771458874 | Bd. Dimitrie Cantemir, nr. 15, bl.9, sc.6, sector 4, |
| 105. | Medicine Park International by Tuncay Öztürk - Centru de kinetoterapie si recuperare | 0727464464 | Str. Grigore Mora, nr. 19, Sector 1 |
| 106. | Institutul Clinic Fundeni | 0212750500; Fax.0213180444; 0212750700 | Sos.Fundeni, nr. 258, sector 2, |
| 107. | PriMed - Clinica Medicala Bucuresti | 0219986; 0720034774 | Bd. Dinicu Golescu, nr.10, sector 1 |
| 108. | Dr. V. Gomoiu, Centrul Medical Bucuresti | 0314136700; 0314136701 | Bd. Basarabia nr. 21, sector 2, |
| 109. | Centrul de Transfuzie Sanguina Bucuresti | Tel. 0314053660; 0314053661; 0314053662 | Str. Constantin Caracas nr. 2-8, sector 1, |
| 110. | Spitalul Clinic Sfanta Maria + ambulatoriu-Bucuresti | Tel. 0212223550; 0212223553 | Bd. Ion Mihalache nr. 37-39, sector 1, |
| 111. | Spitalul Clinic Sfanta Maria + ambulatoriu | Tel. 0212223553; 0212223550 | Bd. Ion Mihalache, nr. 37-39, sector 1, |
| 112. | Prof.Dr. Agrippa Ionescu, Spitalul Clinic de Urgenta Bucuresti | 0377720000; Fax 0377726169 | Str. Arh. Ion Mincu , nr. 7, sector 1, |
| 113. | Clinica Medicala Provita Diagnostic si Tratament-Bucuresti | Tel. 0219432 | Str.Alexandrina, nr. 20 , sector 1, |
| 114. | Imuno Medica - Centrul de preventie, diagnostic si tratament Sf. Ioan Botezatorul | 0314050350; 0771771333 | Str. Virgiliu nr. 81, sector 1 |
| 115. | Centrul Medical Ioana-Bucuresti | 0212233810; 0786486156 | Str. Alexandru Ioan Cuza, nr. 81,, et. 1,sector 1, Bucuresti |
| 116. | Ioana Medical Center | 0212233810; 0786486156 | Bd. Alexandru Ioan Cuza, nr 81, et 1, sector 1 |
| 117. | Clinica Regina Maria - Pipera-Bucuresti | 0219268 | Bd. Dimitrie Pompeiu, nr. 9-9A, cladirea 1, parter, sector 2, |
| 118. | Policlinica pentru copii Regina Maria - Opera | 0219268 | Str. Costache Negri, nr. 1-5, sector 5, |
| 119. | RomGerMed - Clinica Medicala Bucuresti | Tel. 0213110075; 0727999602 | Calea Plevnei, 137 C, sector 6, |
| 120. | Centrul Medical M Hospital-Bucuresti | 0219136; 0744812330; 0213162049 | Str.Witting, nr. 10-12, sector 1, Bucurestu |
| 121. | Clinica Life-Med-Bucuresti | 0319981 | Str. Plugarilor , nr. 18,sector 4, |
| 122. | Centrul Medical M Hospital-Bucuresti | Tel.0219136 | Str. Witing, nr. 10-12, sector 1 , |
| 123. | Spitalul Clinic de Nefrologie - Dr. Carol Davila | Tel. 0213189184 (centrala); Fax 0213189184 | Calea Grivitei nr. 4, sector 1, |
| 124. | Dr. Carol Davila, Spitalul Universitar de Urgenta Militar Central Bucuresti + ambulatoriu | Tel. 0213193052/60; 0213193030 | Str. Calea Plevnei , nr. 134, sector 1, |
| 125. | Clinica Medicala Medlife-Bucuresti | 0219646; 0742299843 | Str.Liviu Rebreanu, nr. 8,sector 3, |
| 126. | Ambulatoriul Spitalului Universitar de Urgenta | Tel. 0213180519/29; 0212026147 | Splaiul Independentei, nr. 169, sector 5 , |
| 127. | Spitalul Universitar de Urgenta Militar Central Dr. Carol Davila | Tel. 0213193052/60; Fax.0213193030 | Str. Calea Plevnei, nr. 134, sector 1, Bucuresti |
| 128. | Spitalul Clinic CF Witting + ambulatoriu | Tel. 0213129530; 0213129531; 0213176280 | Calea Plevnei nr. 142-144, sector 6, |
| 129. | Ambulatoriul spitalului Sf. Pantelimon | 0212554090; Fax 0212554025 | Sos. Pantelimon nr. 340-342, sector 2, |
| 130. | Spitalul de Urgenta Sf. Pantelimon + ambulatoriu | 0212554090; Fax .0212554099 | Sos. Pantelimon nr. 340-342, sector 2, |
| 131. | Spitalul de Urgenta Sf. Pantelimon + ambulatoriu | 0212554090; 0212554025 | Sos. Pantelimon nr. 340-342, sector 2, |
| 132. | Spitalul Universitar de Urgenta Bucuresti - SUUB | Tel. 0213180519; Fax 0213180554 | Splaiul Independentei, nr. 169, sector 5 , |
| 133. | Spitalul Universitar de Urgenta Bucuresti - SUUB | Tel. 0213180519; 0213180554 | Splaiul Independentei nr. 169, sector 5, |
| 134. | Centrul Medical Focus | 0753035038 | Str. Dinicu Golescu, nr. 23-25 , sector 1, |
| 135. | Centru Medical Mediclass - Cotroceni | 0214102727; 0214120128; 0214120129 | Str. Elefterie, nr. 47-49 (Complex Comercial Cotroceni), sector 5, |
| 136. | Spitalul Universitar de Urgenta Elias | 0213161600; Fax 0213161602 | Bd.Marasti, nr. 17, sector 1, |
| 137. | Miko Med | 021.233.44.66; 0722.525.472 | Str. Nicolae Caramfil, nr.51,sector 1, |
| 138. | Policlinica Titan | 0213400335; Fax 0213400745 | Bd. Nicolae Grigorescu, nr. 41, sector 3, |
| 139. | Spitalul Clinic Nicolae Malaxa + Ambulatoriu | 0212555405; Fax: 0212555275 | Sos. Vergului, Nr. 12, Sector 2 , Bucuresti |
| 140. | Spitalul Universitar de Urgenta Elias | 0213161600; Fax 0213161602; 0213112444 | Bd. Marasti nr. 17, sector 1, |
| 141. | Clinica Sanamed-Bucuresti | 0219442 | Calea Plevnei, Nr. 159,corpul B ,Sector 6, |
| 142. | L.E.M. Medical Center - servicii medicale Bucuresti | 0219051; 072184622 | Sos. Andronache, nr. 236, Sector 2 |
| 143. | Clinica Regina Maria - Aviatiei-Bucuresti | 0219268 | Sos.Pipera, nr. 43,Floreasca Park, sector 1, |
| 144. | Clinica de Excelenta in Patologia Somnului Somnolog-Bucuresti | 0213118822; 0784442277 | Str.Dr.Leonte Anastasievici, nr.11, sector 5, |
| 145. | Spitalul Clinic \"Prof. Dr. Theodor Burghele\" + Ambulatoriu | Tel. 0214106910; Fax 0214111055 | Sos. Panduri nr. 20, sector 5, |
| 146. | Societatea Civila Medicala Doctor Popescu Daniel si Asociatii | Tel/Fax 021.336.55.03 | Calea Serban Voda, nr. 211, sector 4 , |
| 147. | Spitalul Clinic Nicolae Malaxa + Ambulatoriu | Tel. 0212555405; Fax 0212555275 | Sos. Vergului, nr. 12, sector 2, |
| 148. | Spitalul Clinic \"Prof. Dr. Theodor Burghele\" + Ambulatoriu | Tel.0214106910; Fax.0214111055 | Sos. Panduri, nr. 20, sector 5, |
| 149. | Centrul Medical Ponderas-Bucuresti | 0219886 | Str. Nicolae Caramfil, nr. 85A, sector 1, |
| 150. | Institutul National pentru medicina complementara si alternativa | Tel.0783002934; 0214102419 | Sos. Panduri , nr. 22, sector 5, |
| 151. | Centrul Medical Apolo- Bucuresti | Tel. 0214101770; 0214101615; 0744377034 | Str. Coriolan Caius Marcius, nr. 41 (lang? benzinaria MOL Tudor Vladimirescu), sector 5, |
| 152. | Centrul Medical Panduri-Bucuresti | 0731806118; 0219901 | Str. Dr. Ioan Atanasiu, nr. 34, sector 5, |
| 153. | Policlinica Regina Maria - Cotroceni | 0219268 | Sos. Cotroceni, nr. 20, sector 6, |
| 154. | Prof. Dr. Panait Sirbu, Spitalul Clinic de Obstetrica-Ginecologie Bucuresti | 0213161281; 0213161283 | Calea Giulesti, nr. 5, sector 6 , |
| 155. | Pandora Medical Center - Bucuresti | 0213413098; 0732263626 | Aleea Calistrat Hogas, Nr. 45B, sector 3 |
| 156. | Prof. Dr. Panait Sirbu, Spitalul Clinic de Obstetrica-Ginecologie Bucuresti | 0213161281; 0213161283; 0213161287 | Calea Giulesti, nr. 5, sector 6, bucuresti |
| 157. | Scanmed - Clinica Medicala Bucuresti | 0219215; 0317100141; 0729202202 | Sos. Panduri, nr. 71, Parter, Sector 5 |
| vezi mai multe | |||
| 1. | Maica Domnului, Scoala Gimnaziala Nr. 50 - Bucuresti | 0212520310 | Str. Ion Maiorescu, Nr. 32, Sector 2, Bucuresti |
| 2. | Scoala Gimnaziala Nr. 307 - Bucuresti | 0212100012 | Str. Luncsoara, Nr. 3, Sector 2, Bucuresti |
| 3. | Cuib - After school, Bucuresti | 0751088396 | Str. Fainari, Nr. 45A, sector 2 |
| 4. | Ady Endre, Liceu Teoretic - Bucuresti | 0212520192 | Bd. Ferdinand I, Nr. 89, Sector 2, Bucuresti |
| 5. | Iulia Hasdeu, Colegiu National - Bucuresti | 0212524508 | Bd. Ferdinand, Nr. 91, Sector 2, Bucuresti |
| 6. | Sfantul Silvestru, Scoala Gimnaziala Nr. 23 - Bucuresti | 0212102045 | Str. Oltarului, Nr. 11, Sector 2, Bucuresti |
| 7. | Cantemir Voda, Colegiul National - Bucuresti | 0212106935 | Str. Viitorului, Nr. 60, Sector 2, Bucuresti |
| 8. | Ion I.C. Bratianu, Liceu Tehnologic - Bucuresti | 0310699448 | Str. Popa Lazar, Nr. 8A, Sector 2, Bucuresti |
| 9. | Mihail Sadoveanu, Liceu teoretic - Bucuresti | 0212527856 | Str. Popa Lazar, Nr. 8A, Sector 2, Bucuresti |
| 10. | Scoala Gimnaziala de Arte nr. 2 - Bucuresti | 0212525703 | Bd. Ferdinand I, Nr. 128, Sectorul 2 |
| 11. | Scoala Gimnaziala Nr. 56 - Bucuresti | 0212524125; 0733087815 | Bd. Pache Protopopescu, Nr. 109A, Sector 2, Bucuresti |
| 12. | George Cosbuc, Colegiul National Bilingv - Bucuresti | 0212528080 | Str. Olari, Nr. 29-31, Sector 2, Bucuresti |
| 13. | Scoala Gimnaziala Iancului Nr. 52 | 0212522260 | Bd. Pache Protopopescu, Nr. 50, Sector 2, Bucuresti |
| 14. | Mihai Viteazu, Colegiul National - Bucuresti | 0212525700; 0212525871 | Bd. Pache Protopopescu, Nr. 62, Sector 2, Bucuresti |
| 15. | Monterra - Scoala primara Bucuresti | 0743119481 | Str. Vasile Lascar, nr. 87, sector 2 |
| 16. | A.D. Xenopol, Colegiul Economic - Bucuresti | 0213205719 | Str. Traian, Nr. 165, Sector 2, Bucuresti |
| 17. | Liceul Tehnologic Nikola Tesla - Bucuresti | 0212527886 | Sos. Pantelimon, Nr. 25, sector 2 |
| 18. | International British School - Bucuresti | 0212531698; 0745340841 | Str. Agricultori, Nr. 21-25, Sector 2, Bucuresti |
| 19. | Scoala Gimnaziala Nr. 27 Principesa Ileana - Bucuresti | 0212421645 | Str. Masina de Paine, nr. 65, sector 2 |
| 20. | Scoala Gimnaziala Nr. 85 | 0212524520 | Str. Dr. Constantin Zlatescu, Nr. 7A, sector 2, Bucuresti |
| 21. | Carol Davila, Scoala Sanitara Postliceala - Bucuresti | 0216107068 | Str. Agricultori, nr. 35, 37-39 (cladirea Codecs), sector 2, |
| 22. | Sweet Babies - Cresa, gradinita, after school, Bucuresti | 0785810011 | Strada Teleajen, 26B, sector 2 |
| 23. | Serban, Scoala de Meserii - Bucuresti | 0722302252; 0212520382 | Intrarea Baritonului, Nr. 9 (prin Str. Matei Voievod Nr. 81-83), Sector 2, Bucuresti |
| 24. | Anastasia Popescu, Liceu Pedagogic Ortodox - Bucuresti | 0212524665; 0725519386; 0722805777 | Popa Nan, 47 B, Sector 2, Bucuresti |
| 25. | Scoala Gimnaziala Nr. 28 - Bucuresti | 0212105910 | Aleea Circului, Nr. 1, sector 2 |
| 26. | Hermes, Colegiul Economic - Bucuresti | 0213147645 | Calea Mosilor, Nr. 152, Sector 2, Bucuresti |
| 27. | Scoala Gimnaziala Nr. 24 - Bucuresti | 0212107185 | Str. Tunari, Nr. 52, Sector 2, Bucuresti |
| 28. | Scoala Gimnaziala Nr. 71 - Bucuresti | 0213141395; 0213141391 | Calea Mosilor, Nr. 148, Sector 2, Bucuresti |
| 29. | Colegiul National - Scoala Centrala - Bucuresti | 0212118484; 0787288528 | Str. Icoanei, Nr. 3-5, Sector 2, Bucuresti |
| 30. | Scoala Gimnaziala Nr. 25 - Bucuresti | 0212422695 | Str. Silvia, Nr. 54 Sector 2 |
| 31. | Pick Me Academy - Scoala Primara Bucuresti | 0726000640; 0722391000 | Strada Agricultori, Nr. 79, Sector 2, Scoala Primara |
| 32. | Spiru Haret, Colegiu National - Bucuresti | 0213136462 | Str. Italiana, Nr. 17, Sector 2, Bucuresti |
| 33. | Scoala Gimnaziala Nr. 64 Ferdinand I - Bucuresti | 0213351410 | Bd. Garii Obor, Nr. 16, Sector 2 |
| 34. | Scoala Gimnaziala de Arte nr. 4 - Bucuresti | 0212421450 | Str. Maica Domnului, Nr. 61-63, Sector 2 |
| 35. | Scoala Gimnaziala Nr. 31 - Bucuresti | 0212421712; 0736613908 | Bd. Lacul Tei, Nr. 116, sector 2 |
| 36. | Emil Racovita, Colegiul National - Bucuresti | 0213217092; Fax 0213217092 | Sos. Mihai Bravu , nr. 169, sector 2, |
| 37. | Happy Drive Lucky - Scoala de soferi, Bucuresti | 0755766849 | Strada Inginerilor Tei, Nr.9, sector 2 |
| 38. | Tudor Arghezi, Scoala Gimnaziala Nr. 19 - Bucuresti | 0213169187 | Str. Tudor Arghezi, Nr. 46-50, Sector 2, Bucuresti |
| 39. | Virgil Madgearu, Colegiul Economic - Bucuresti | 0212117256 | Bd. Dacia, Nr. 34, Sector 1, Bucuresti |
| 40. | Traian, Liceu Teoretic - Bucuresti | 0212106598; 0212105920 | Str. Luigi Galvani, Nr. 20, sector 2, Bucuresti |
| 41. | Scoala Gimnaziala Nr. 46 - Bucuresti | 0212502527 | Str. Stanescu Gheorghe, Nr. 2-18, sector 2 |
| 42. | Montessano - Scoala primara si gradinita, Bucuresti | 0724924070; 0724919711 | Str. Labirint, nr. 97-99, sector 3 |
| 43. | Kretzulescu Nicolae, Scoala Superioara Comerciala - Bucuresti | 0213139082 | Bd. Hriso Botev, Nr. 17, Sector 3, Bucuresti |
| 44. | Mirunette Education, Consiliere si Programe Educationale - Bucuresti | 0212101602 | Valeriu Braniste, Nr. 37-39, Etaj 1, Ap. 3, Cam. 3, Sector 3, Bucuresti |
| 45. | Grigore Ghica Voievod, Scoala Gimnaziala Nr. 30 - Bucuresti | 0212421160 | Str. Laptari Tei, Nr. 23, Sector 2, Bucuresti |
| 46. | Scoala Gimnaziala Nr. 49 - Bucuresti | 0212502444 | Str. Vatra Luminoasa, Nr. 99, Sector 2, Bucuresti |
| 47. | Scoala Gimnaziala Luca Bucuresti | 0721335161; 0744894206 | Str. Sfantul Petru Tei, Nr. 67 A- 71, Sector 2, Bucuresti |
| 48. | Goethe, Colegiul German - Bucuresti | 0212113425 | Str. Stanislav Cihoschi, Nr. 17, Sector 1, Bucuresti |
| 49. | Scoala Gimnaziala Nr. 145 - Bucuresti | 0212407036 | Str. Heliade Intre Vii, Nr. 36, sector 2 |
| 50. | Matei Basarab, Colegiul National - Bucuresti | 0213216640 | Str. Matei Basarab, Nr. 32, Sector 3, Bucuresti |
| 51. | Elena Vacarescu, Scoala Gimnaziala - Bucuresti | 0213163630 | Str. Stanislav Cihoschi, nr. 15, sector 1, Bucuresti |
| 52. | Barbu Delavrancea, Scoala Gimnaziala Nr.73 - Bucuresti | 0213237390 | Str. Matei Basarab, Nr. 28-30, Sector 3, Bucuresti |
| 53. | Mihai Ionescu, Scoala Primara, Gimnaziu, Liceu - Bucuresti | 0213235495 | Str. Cauzasi, Nr. 43, Sector 3, Bucuresti |
| 54. | Mihai Ionescu, Gradinita, Gimnaziu si Liceu - Bucuresti | 0213235495; 0314054929 | Cauzasi, Nr. 43, Sector 3 , Bucuresti |
| 55. | Laude-Reut, Complex Educational Bucuresti | 0314382046; 0318055772 | Str. Clucerul Udricani, Nr. 12, Sector 3, Bucuresti |
| 56. | Victoria, Liceu Teoretic - Bucuresti | 0314250543; 0759478014 | Str. Turturelelor, nr. 11A, sector 3, Bucuresti |
| 57. | Montessori - Scoala si gradinita, Bucuresti | 0754054402 | Str. Maior Ion Coravu, Nr. 53, Sector 2 |
| 58. | Scoala Gimnaziala nr. 5 - Bucuresti | 0213169918 | Calea Victoriei, Nr. 114, Sector 1, Bucuresti |
| 59. | Liceul tehnologic special Regina Elisabeta - Bucuresti | 0212506220 | Str. Vatra Luminoasa, Nr. 108, sector 2 |
| 60. | Scoala Ioanid, Gradinita, Gimnaziu, Liceu - Bucuresti | 0758054401 | Str. Nicolae Iorga, nr. 21, Sector 1, Bucuresti |
| 61. | EFI Bucarest - Scoala Franceza Internationala din Bucuresti | 0749098867 | Bulevardul Dacia, Nr. 12, Sector 1 |
| 62. | Aldo Moro, Scoala Italiana - Bucuresti | 0212104684 | Intr. Blaj, nr. 1, Sector 1, Bucuresti |
| 63. | Cezar Bolliac, Scoala Gimnaziala Nr. 70 - Bucuresti | 0314040172 | Intr. Tiglina, Nr. 37, Sector 3, Bucuresti |
| 64. | Liceul Teoretic Alexandru Vlahuta Bucuresti | 0212305292 | Str. Scoala Floreasca, nr. 5, sector 1 |
| 65. | Maria Rosetti, Scoala Gimnaziala - Bucuresti | 0212305276 | Str. Garibaldi, nr. 3, Sector 2, Bucuresti |
| 66. | Liceul Teoretic Hyperion - Bucuresti | 0311032803 | Sos. Mihai Bravu, nr. 288C, sector 2 |
| 67. | FEG, Scoala Postliceala in domeniului medical - Bucuresti | 0213111054; 0314050362; 0788424314 | Walter Maracineanu, Nr. 1-3, Intrarea 2, Etaj. 2,, Bucuresti |
| 68. | I.L. Caragiale, Colegiul National - Bucuresti | 0212301021 | Calea Dorobantilor, nr. 163, sector 1, Bucurersti |
| 69. | Nicolae Tonitza, Liceu de Arte Plastice - Bucuresti | 0212302793 | Bd. Iancu de Hunedoara, Nr. 27, Sector 1, Bucuresti |
| 70. | Sf. Sava, Colegiul National - Bucuresti | 0213149294; 0213126821 | Str. G-ral Berthelot, Nr. 23, Sector 1, Bucuresti |
| 71. | Titu Maiorescu, Scoala Gimnaziala Nr.45 - Bucuresti | 0212301673 | Calea Dorobantilor, Nr. 163, Sector 1, Bucuresti |
| 72. | Vasile Alecsandri, Scoala Gimnaziala (fosta Nr. 118) - Bucuresti | 0213138287 | Str. Stirbei Voda, Nr. 32-34, Sector 1, Bucuresti |
| 73. | Liceul Teoretic Sfintii Trei Ierarhi - Bucuresti | 0763688448 | Str. Oltetului, nr. 15, sector 2 |
| 74. | Liceul Tehnologic Sfantul Pantelimon - Bucuresti | 0212559943 | Str. Hambarului, Nr. 12A, sector 2 |
| 75. | C.A. Rosetti, Liceu teoretic - Bucuresti | 0212304873 | Str. Giuseppe Garibaldi, Nr. 11, Sector 2, Bucuresti |
| 76. | Leonardo Da Vinci, Scoala Gimnaziala Nr.75 - Bucuresti | 0213248676 | Str. Pictor Gheorghe Petrascu, Nr. 55, Sector 3, Bucuresti |
| 77. | Scoala Gimnaziala Nr. 51 - Bucuresti | 0212554060 | Str. Herta, Nr. 1, Sector 2, Bucuresti |
| 78. | Institutul de matematica Simion Stoilow | 0213196506; 0213117780; Fax: 0213196505 | Calea Grivitei, Nr. 21, Sector 1, Bucuresti |
| 79. | Scoala Gimnaziala Nr. 4 - Bucuresti | 0212556425 | Str. Herta, Nr. 14 A, Sector 2, Bucuresti |
| 80. | Scoala Gimnaziala Nr. 39 - Bucuresti | 0783292969; 0212403025; 0212400034 | Sos. Colentina, Nr. 91, Sector 2, Bucuresti |
| 81. | Spectrum Colentina, Scoala Primara - Bucuresti | 0314338500; 0733314741 | Sos. Colentina, Nr. 64B, Sector 2, Bucuresti |
| 82. | George Enescu, Colegiu National de Muzica - Bucuresti | 0760665312; 0213108871 | Str. General Gheorghe Manu, Nr. 30, Sector 1, Bucuresti |
| 83. | Gheorghe Lazar, Colegiu National - Bucuresti | 0213134756 | Bd. Regina Elisabeta, Nr. 48, Sector 5, Bucuresti |
| 84. | Ion Creanga Colegiu National - Bucuresti | 0213362695 | Str. Cuza Voda, Nr. 51, sector 4, Bucuresti |
| 85. | Seminarul Teologic Ortodox Bucuresti | 0213305754; 0731205629; 0213305754 | Str. Radu Voda, Nr. 24 A, Sector 4, Bucuresti |
| 86. | Scoala Gimnaziala Nr. 79 - Bucuresti | 0314257884 | Str. Cuza Voda, Nr. 51, Sector 4, Bucuresti |
| 87. | Waldorf, Liceul Teoretic - Bucuresti | 0212553051 | Str. Sold. Marin Savu, Nr. 29, Sector 2, Bucuresti |
| 88. | Dimitrie Leonida, Colegiul Tehnic - Bucuresti | 0213243294; 0213243295; 0213243293; 0213246902 | Bd. Basarabia, Nr. 47, Sector 2, Bucuresti |
| 89. | Kids Kingdom - Before & After School Bucuresti | 0799199627 | Intrarea Traian Demetrescu, Nr. 8, sector 3 |
| 90. | Ghelmez Petre, Scoala gimnaziala Nr. 58 - Bucuresti | 0213245135 | Str. Pescarusului, Nr. 124, Sector 2, Bucuresti |
| 91. | Scoala Gimnaziala Nr. 80 - Bucuresti | 0213214256 | Calea Dudesti, Nr. 191, Sector 3, Bucuresti |
| 92. | Benjamin Franklin, Liceu teoretic - Bucuresti | 0213244890; 0213243010 | Str. Pictor Gh. Tattarescu, Nr. 1, sector 3, Bucuresti |
| 93. | Scoala Gimnaziala Nr. 81 - Bucuresti | 0213263220 | Str. Nerva Traian, Nr. 33, Sector 3, Bucuresti |
| 94. | I.N.Socolescu, Colegiul Tehnic de Arhitectura si Lucrari Publice - Bucuresti | 0213108958 | Occidentului, Nr. 12, Sector 1, Bucuresti |
| 95. | Jean Monnet, Liceu teoretic - Bucuresti | 0212305078 | Str. Jean Monnet, Nr. 2, Sector 1, Bucuresti |
| 96. | AWEsome Primary School - Scoala clasele primare Bucuresti | 0750460737 | Str. Ienachita Vacarescu, nr. 22B, sector 4 |
| 97. | Liceul Teoretic National | 0720000171 | Str. Buzesti, Nr. 14-18; Sector 1, Bucuresti |
| 98. | Heliade Radulescu, Scoala Gimnaziala Nr. 11 - Bucuresti | 0213163633 | Sos. Kiseleff, nr. 5, sector 1, Bucuresti |
| 99. | Colegiul Tehnic Mihai Bravu - Bucuresti | 0213217699 | Sos. Mihai Bravu, Nr. 428, Sector 3 |
| 100. | Miguel de Cervantes, Liceul Bilingv - Bucuresti | 0213149311 | Calea Plevnei, Nr. 38-40, Sector 1, Bucuresti |
| 101. | Scoala Gimnaziala Ienachita Vacarescu, Bucuresti | 0213355705 | Calea Serban Voda, Nr. 62-64, sector 4, Bucuresti |
| 102. | Kidos - Before & after school, Bucuresti | 0770775730 | Bulevardul Nicolae Grigorescu, nr. 2 D, sector 3 |
| 103. | Scoala Gimnaziala Nr. 62 - Bucuresti | 0212553635 | Str. Potarnichii, Nr. 3, Sector 2, Bucuresti |
| 104. | Scoala Gimnaziala Nr. 86 - Bucuresti | 0314250608 | Intr. Reconstructiei, Nr. 6A, Sector 3, Bucuresti |
| 105. | Victor Babes, Colegiul National - Bucuresti | 0212407870 | Sos. Fundeni, Nr. 254, Sector 2, Bucuresti |
| 106. | Colegiul National de Arte Dinu Lipatti - Bucuresti | 0213363588 | Str. Principatele Unite, Nr. 63, Sector 4, Bucuresti |
| 107. | Scoala de Arta Bucuresti | 0213306700 | Str. Cuza Voda, nr. 100, |
| 108. | Anghel Saligny, Colegiu Tehnic - Bucuresti | 0213402654 | Bd. Nicolae Grigorescu, Nr. 12, Sector 3, Bucuresti |
| 109. | Scoala Postliceala Sanitara Fundeni - Bucuresti | 0212405135 | Sos. Fundeni, Nr. 254, Sector 2, Bucuresti |
| 110. | Scoala Gimnaziala Nr. 95 - Bucuresti | 0770503408; 0213235185 | Str. Foisorului, Nr. 111-113, Sector 3, Bucuresti |
| 111. | Scoala Gimnaziala Nr. 1 - Sfintii Voievozi | 0213127572; 0213164206; 0213179916 | Str. Atelierului, Nr. 25, Sector 1, Bucuresti |
| 112. | Floria Capsali, Liceul de Coregrafie - Bucuresti | 0213363792 | Str. Capitan Preotescu, Nr. 9, Sector 4, Bucuresti |
| 113. | Alexandru Ioan Cuza, Scoala Gimnaziala Nr. 199 - Bucuresti | 0213243970 | Bd. Nicolae Grigorescu, Nr. 14, Sector 3, Bucuresti |
| 114. | Penticostal Emanuel, Liceul Teologic - Bucuresti | 0213311669 | Str. Cuza Voda, Nr. 116, Sector 4, Bucuresti |
| 115. | Scoala Gimnaziala nr. 32 - Bucuresti | 0216556240 | Str. Sportului, Nr. 21, sector 2 |
| 116. | Scoala Generala nr. 84 Nicolae Balcescu - Bucuresti | 0213216391 | Calea Vitan, Nr. 135, sector 3 |
| 117. | Tudor Vianu, Colegiul National de Informatica - Bucuresti | 0212226670 | Str. Arh. Ion Mincu, Nr. 10, sector 1, Bucuresti |
| 118. | Neagoe Basarab Voievod, Scoala Gimnaziala (fosta Nr.16) - Bucuresti | 0213403313; 0374464076 | Intr. Constantin Brancusi, nr. 7, sector 3, Bucuresti |
| 119. | Fridolin, scoala primara si gimnaziala germana - Bucuresti | 0723584872 (Adina Stoenescu); 0722502522 (Christian Comsa) | Fagaras, Nr. 9-13, Sector 1, Bucuresti |
| 120. | Magia Copilariei - After-school Bucuresti | 0761912892 | Strada Nucului, Nr. 55, Sector 3 |
| 121. | Iosif Sava, Scoala Gimnaziala de Arte - Bucuresti | 0212312470 | Str. Constantin Disescu, Nr. 37, Sector 1, Bucuresti |
| 122. | Phoenix, Liceu Teoretic - Bucuresti | 0214341364; 0770911516 | Virgiliu, Nr. 40, Sector 1, Bucuresti |
| 123. | Nicolae Titulescu, Scoala Gimnaziala - Bucuresti | 0212236393 | Sos. Nicolae Titulescu, nr. 50-52, Sector 1, Bucuresti |
| 124. | Uruguay, Scoala Gimnaziala - Bucuresti | 0216370361 | Str. Virgiliu, Nr. 40, Sector 1, Bucuresti |
| 125. | Liceul Tehnologic Constantin Brancusi - Bucuresti | 0212321275; 0787298171 | Bd. Dimitrie Pompei, Nr. 1, Sector 2 |
| 126. | Colegiul Tehnic Petru Rares - Bucuresti | 0213304001 | Str. V. V. Stanciu, nr. 6, sector 4 |
| 127. | Mihai Eminescu, Colegiul National - Bucuresti | 0213304001 | Str. V.V. Stanciu, Nr. 6 , Sector 4, Bucuresti |
| 128. | Scoala Gimnaziala Nr. 97 - Bucuresti | 0213302545 | Str. Viorele, Nr. 7, Sector 4, Bucuresti |
| 129. | Scoala Gimnaziala Nr. 77 - Bucuresti | 0212553945 | Sos. Pantelimon, Nr. 289, sector 2 |
| 130. | Edmond Nicolau, Colegiul Tehnic - Bucuresti | 0212331541; 0212331910 | Bd. Dimitrie Pompeiu, Nr. 3, Sector 2, Bucuresti |
| 131. | Liceul Teoretic Bilingv Ita Wegman - Bucuresti | 0769060529; 0212103391 | Bd. Dimitrie Pompeiu, Nr. 3, CORP B, sector 2 |
| 132. | Pia Bratianu - Scoala Gimnaziala Nr. 17 | 0212226590 | Str. Petofi Sandor, Nr. 14-16, Sector 1, Bucuresti |
| 133. | Scoala Gimnaziala Nr. 88 - Bucuresti | 0213480445 | Str. Odobesti, Nr. 3, Sector 3, |
| 134. | Gheorghe Sincai, Colegiul National - Bucuresti | 0213369004; 0213361455 | Calea Serban Voda, Nr. 167, Sector 4, Bucuresti |
| 135. | Ion Neculce, Colegiul National Bucuresti | 0212224145; 0212224179 | Str. Ion Neculce, Nr. 2, Sector 1, Bucuresti |
| 136. | Scoala Gimnaziala Nr. 40 - Bucuresti | 0212406545 | Str. Peris, Nr. 27, Sector 2, Bucuresti |
| 137. | Liceul Teoretic Nichita Stanescu - Bucuresti | 0213400440 | Str. Lucretiu Patrascanu, Nr. 12, Sector 3, Bucuresti |
| 138. | Scoala Gimnaziala Nr. 150 - Bucuresti | 0214108408 | Bd. Eroii Sanitari, Nr. 29-31, Sector 5, Bucuresti |
| 139. | Scoala Gimnaziala Nr. 128 - Bucuresti | 0214102219 | Str. Ion Creanga, Nr. 6, Sector 5, Bucuresti |
| 140. | Mihai Botez, Scoala Gimnaziala Nr. 87 - Bucuresti | 0213462361 | Str. Ramnicu Valcea, Nr. 32, Sector 3, Bucuresti |
| 141. | Hamburg, Scoala Gimnaziala Nr.195 - Bucuresti | 0318058603 | Str. Lunca Bradului, Nr. 2, sector 3, Bucuresti |
| 142. | Scoala Gimnaziala Nr. 54 - Bucuresti | 0213465143; 0310699824 | Str. Istriei, Nr. 19, Sector 3 |
| 143. | About Scoala Metropolitana A.R.C | 0314254343; 0722522198 | Str. Esarfei, nr. 63-71, sector 3, |
| 144. | Scoala Gimnaziala Herastrau, Bucuresti | 0212326613 | Str. Borsa, Nr. 27, Sector 1 |
| 145. | Alexandru Ioan Cuza, Liceu Teoretic - Bucuresti | 0213404811 | Aleea Barajul Dunarii, Nr. 5, sector 3, Bucuresti |
| 146. | Allyna - After School, Bucuresti | 0724017926 | Str. Cornisei, Nr.23, sector 2 |
| 147. | Dante Alighieri, Liceu teoretic - Bucuresti | 0213481950; 0213481545 | Aleea Fuiorului, Nr. 9, Sector 3, Bucuresti |
| 148. | Liviu Rebreanu, Scoala Gimnaziala - Bucuresti | 0213401845 | Aleea Barajul Rovinari, Nr. 1, Sector 3, Bucuresti |
| 149. | Ada School - Bucuresti | 0723595916; 0721424485 | Dr. Carol Davila, Nr. 101, Bucuresti |
| 150. | Scoala Gimnaziala Nr. 66 - Bucuresti | 0212554580 | Str. Logofatul Dan, Nr. 1, Sector 2, Bucuresti |
| 151. | Little Genius - Scoala primara Bucuresti | 0724245249 | Str. Carol Knappe, Nr. 95, sector 1 |
| 152. | Nicolae Iorga, Liceu teoretic - Bucuresti | 0212242026 | Bd. Ion Mihalache, Nr. 126, Sector 1, Bucuresti |
| 153. | Lucian Blaga, Liceu teoretic - Bucuresti | 0212551265; 0786108825 | Sos. Pantelimon, Nr. 355, Sector 2, Bucuresti |
| 154. | BBIS Bucharest - Beirut International School | 0744309199 | Sos. Vergului, Nr. 14, Sector 2, Bucuresti |
| 155. | Federico Garcia Lorca, Scoala Gimnaziala Nr.196 | 0213403710 | Str. Cozla, nr. 2, sector 3, Bucuresti |
| 156. | Nicolae Labis, Scoala Gimnaziala Nr. 89 - Bucuresti | 0213486271 | Str. Firidei, Nr. 2, Sector 3, Bucuresti |
| 157. | Geo Bogza, Scoala Gimnaziala Nr. 170 - Bucuresti | 0212223072 | Str. Barbu Lautaru, Nr. 4, Sector 1, Bucuresti |
| 158. | Viilor, Colegiul Economic - Bucuresti | 0213160973; 0213160966 | Sos. Viilor, Nr. 38, Sector 5, Bucuresti |
| 159. | Decebal, Liceul Bilingv - Bucuresti | 0213469233 | Bd. Energeticienilor, Nr. 9-11, Sector 3, Bucuresti |
| 160. | Petre Ispirescu - Scoala Gimnaziala Nr. 171 - Bucuresti | 0212241163 | Str. Vasile Gherghel, Nr. 2, Sector 1, Bucuresti |
| 161. | Scoala Gimnaziala Nr. 41 - Bucuresti | 0212402845 | Str. Arbore Zamfir, nr. 5A, Sector 2, Bucuresti |
| 162. | Smart Koala Kids Club | 0771638419; 0771638425 | Calea 13 Septembrie, Nr.126A, bl.P43, sc.1, parter, ap. 2, sector 5, Bucuresti |
| 163. | I.G. Duca, Scoala Gimnaziala 146 - Bucuresti | 0214100881 | Sos. Panduri, Nr. 42, Sector 5, Bucuresti |
| 164. | Scoala Gimnaziala Nr. 200 - Bucuresti | 0213453119 | Str. Postavarul, Nr. 13, Sector 3, Bucuresti |
| vezi mai multe | |||
| 1. | Casa Jienilor, Restaurant - Bucuresti | 0212121951; 0722916111 | Fainari, Nr. 5, Sector 2, Bucuresti |
| 2. | Casa Jienilor, Restaurant - Bucuresti | 0212121951; 0722916111; Fax 0212121951 | Fainari, N. 5, Sector 2, Bucuresti |
| 3. | Casa Jienilor Fainari, Restaurant - Bucuresti | 0212121951; 0735994994 | Fainari, Nr. 5, Sector 2, Bucuresti |
| 4. | Terasa Florilor - Restaurant cu terasa, Bucuresti | 0755097931 | Str. Ion Maiorescu, nr. 42, sector 2 |
| 5. | Restaurant La Teu - Bucuresti | 0723642022 | Strada Titu Maiorescu, Nr.18, sector 2 |
| 6. | Hashtag Pub - Bucuresti | 0771555444 | Soseaua Mihai Bravu, Nr 32, sector 2 |
| 7. | Fatafit - Restaurant cu specific libanez, Bucuresti | 0760445555 | Calea Mosilor, Nr. 225, Sector 2 |
| 8. | Hatz Burger Studio - Restaurant cu burgeri | 0770920018 | Soseaua Stefan cel Mare, Nr. 240, Bl. 59A, Sector 2 |
| 9. | Prajituri de Casa - Cofetarie Bucuresti | 0751135153 | Calea Mosilor, Nr. 225, sector 2 |
| 10. | Casa Jienilor, Restaurant - Bucuresti | 0735994994; 0722916111 | Str. Fainari, nr. 5, sector 2, |
| 11. | Tip Top, Cofetarii - Bucuresti | 0212422414 | Soseaua Colentina, Nr. 2, Sector 2 (magazinul Bucur-Obor), Bucuresti |
| 12. | Haveli, Restaurant - Bucuresti | 0212110390; 0721721640 | Episcopul Radu, Nr. 3, Sector 2, Bucuresti |
| 13. | Blunch Bistro - Restaurant, Bucuresti | 0736898990 | Mihai Eminescu, Nr.181, sector 2 |
| 14. | El Torito, Restaurant - Bucuresti | 0212526688; 0728176059 | Iancu Capitanu , Nr. 30, Sector 2, Bucuresti |
| 15. | Banjo Jack - Restaurant cu burgeri, Bucuresti | 0770653341 | Strada Iancu Capitanu, Nr 26, sector 2 |
| 16. | Trattoria Soleto - Restaurant cu specific italian | 0734382419 | Soseaua Colentina, nr. 1, sector 2 |
| 17. | SwitchEat - Restaurant cu burgeri Bucuresti | 0726023881 | Strada Horei, Nr 34, sector 2 ( la doi pasi de Foisorul de Foc) |
| 18. | Cofetaria Lush - Bucuresti | 0720976019?; 0721605303 | Soseaua Stefan cel Mare, Nr. 226, bloc.44, parter, sector 2 |
| 19. | Suento - Restaurant cu specific european modern, Bucuresti | 0787605362 | Strada Toamnei, Nr. 101, sector 2 |
| 20. | Vanilla, Cofetarie - Bucuresti | 0733058058 | Mihai Bravu, Nr. 47, Parter, Sector 2, Bucuresti |
| 21. | Laur Express Food - Restaurant fast-food, Bucuresti | 0732455089 | Bulevardul Ferdinand I, Nr. 60, sector 2 |
| 22. | Karishma, Restaurant indian - Bucuresti | 0212525157; 0737519953 | Iancu Capitanu, Nr. 36, Sector 2, Bucuresti |
| 23. | China Town Restaurant - Bucuresti | 0726130138; 0788671161; Tel/Fax:0212120239 | Viitorului, Nr. 98, Sector 2, Bucuresti |
| 24. | Sweet by MarVio - Cofetarie Bucuresti | 0212105291 | Soseaua Stefan cel Mare, Nr 31, sector 2 |
| 25. | Bomb Doner Kebap - Restaurant fast-food, Bucuresti | 0727771549 | Strada Lizeanu, Nr. 5, sector 2 |
| 26. | Fast Food Eminescu - Bucuresti | 0723161166 | Str. Mihai Eminescu, nr 137, sector 2 |
| 27. | Il Destino, Restaurant italian - Bucuresti | 0212103039; 0758836278; 0744318094 (Pentru evenimente) | Silvestru, Nr. 67, Sector 2, Bucuresti |
| 28. | Naser - Restaurant specific libanez Bucuresti | 0799980001; 0799980002; 0213135060 | Str. Fluierului, Nr. 18, sector 2 (colt cu Str. Matasari, in spatele PRO TV) |
| 29. | Pizza PPH - Pizza si catering, Bucuresti | 0319441 | Str. Lirei, Nr. 13, sector 2 |
| 30. | Casa Veche - Restaurant, Ramnicu Valcea | 0747875045 ; 0748702238; 0350418155 | Stirbei Voda, Nr.162, Ramnicu Valcea, judetul Vilcea |
| 31. | Bistro HB - Restaurant Bucuresti | 0735011736; 0735011735; 0735011737 | Strada Matasari, Nr. 49 Sector2 |
| 32. | La Giuggiola - Gelateria artizanala italiana Bucuresti | 0770107183 | Bulevardul Pache Protopopescu, Nr. 57, Sector 2 |
| 33. | Belli Siciliani - Restaurant autentic sicilian, Bucuresti | 0799090601 | Str. Matasari, Nr. 47, sevtor 2, |
| 34. | Cuptorul cu Lemne - Restaurant pizzerie Bucuresti | 0219363 | Bd. Pache Protopopescu, Nr 65, sector 2 |
| 35. | Cuptorul cu Lemne, Pizza - Bucuresti | 021.9363; 0212524493; (021) 9363 - tasta 0 | Bd. Pache Protopopescu, Nr. 63, Sector 2, Bucuresti |
| 36. | Paque Bistro - Restaurant cu bar, Bucuresti | 0722330607 | Bulevardul Pache Protopopescu, nr.60, sector 2 |
| 37. | Nabu - Bar Bucuresti | 0787407043 | Pache Protopopescu, Nr. 97, sector 2 |
| 38. | Casual Pub - Restaurant Bucuresti | 0770841212 | Bd. Dacia, Nr. 104, Sector 2 |
| 39. | Luna Cafe & Bistro - Bucuresti | 0771609431; 0771211246 | Str. Viitorului, Nr. 32, sector 2, |
| 40. | Chong Qing - Restaurant cu specific chinezesc, Bucuresti | 0212525095; 0731383952 | B-dul Pache Protopopescu, Nr.28, sector 2 |
| 41. | Noua - Restaurant cu specific romanesc, Bucuresti | 0217943294 | Strada Popa Nan, Nr. 7, sector 2 |
| 42. | Nicoresti, Restaurant - Bucuresti | 0212112480; 0724290550 | Toamnei, Nr. 13 (colt cu Maria Rosetti nr. 40), Sector 2, Bucuresti |
| 43. | Trattoria Della Nonna - Restaurant cu specific italian, Bucuresti | 0771697503 | Strada Popa Nan, Nr. 5, sector 2 |
| 44. | Pasticceria Giuseppina Cofetarie - Bucuresti | 0730283947 | Soseaua Stefan cel Mare, Nr.46, Sector 2, Bucuresti |
| 45. | Restaurant Burebista Traditional - Bucuresti | 0755041484; 0212109704 | Calea Mosilor, Nr 195, sector 2 |
| 46. | Bragageria Bogdania - Bistro, Bucuresti | 0787877985 | Str. Olari, Nr. 20, Sector 2 |
| 47. | La Birlic - Terasa, Bucuresti | 0722318168; 0752318168; 0212525151 | Bulevardul Pache Protopopescu, Nr. 125, sector 2 |
| 48. | Sale Dolce, Restaurant - Bucuresti | 0736858430; 0735123687 | Matei Voievod, Nr. 20, Sector 2, Bucuresti |
| 49. | Lolita - Boutique de dulciuri Bucuresti | 0757013453 | Strada Vasile Lascar, Nr. 212, sector 2 |
| 50. | Ici et La - Restaurant cu specific francez Bucuresti | 0731453608 | Strada Domnita Ruxandra, Nr. 7, Sector 2 |
| 51. | No10 - Restaurant cu specific italian | 0741210003 | Strada Austrului, Nr. 10, sector 2 |
| 52. | Time Out Cafe - Bar & Cafenea Bucuresti | 0744644400 | Strada Olari, Nr. 7, sector 2 , |
| 53. | Templul Soarelui, Restaurant chinezesc - Bucuresti | 0212111693; 0723743878 | Vasile Lascar, Nr. 205, Sector 2, Bucuresti |
| 54. | Templul Soarelui, Restaurant chinezesc - Bucuresti | 0212111693; 0723743878 | Vasile Lascar, Nr. 205, Sector 2, Bucuresti |
| 55. | DA Giulio - Pizzerie, Bucuresti | 0212420385 | Colentina, Nr. 23 A, sector 2 |
| 56. | Sweet Sophie - Cofetarie | 0748309063 | Strada Popa Nan, Nr. 22, sector 2 |
| 57. | Intermacedonia, Restaurant - Bucuresti | 0212522010; 0212527331; 0212522190 | Sos. Mihai Bravu, Nr.95-100, Sector 2 (P-ta Iancului) , Bucuresti |
| 58. | Gradina Olari - Terasa, Bucuresti | 0770147410 | Strada Olari, nr.8, Sector 2 |
| 59. | Naser 2 - Restaurant traditional libanez Bucuresti | 0799997111 | Str. Maica Domnului, Nr. 5B, Sector 2 |
| 60. | Zen Garden - Restaurant cu specific chinezesc, Bucuresti | 0745102272 | Strada Silvestru, Nr. 3, sector 2 |
| 61. | Tropicana, Restaurant - Bucuresti | 0724614723 (Niculae Adrian); 0724571502 (Niculae Valentina) | Grigore Ionescu, Nr 94, Sector 2, Bucuresti |
| 62. | Unico Vero - Restaurant cu specific italian, Bucuresti | 0212123338;0758110265 | Strada Viitorului, Nr. 8, sector 2 |
| 63. | BaKings - Cofetarie Bucuresti | 0744642929 | Strada Ilarie Chendi, Nr. 28, sector 2 |
| 64. | La Baraca - Bar & Grill Bucuresti | 0758986045 | Str. Pargarilor, Nr. 17bis, sector 2 |
| 65. | Bistro Cafe Carbon 14 - Bucuresti | 0790408777 | Str. Dimitrie Racovita, Nr. 18, Sector 2 |
| 66. | Coftale Coffee Shop - Cafenea, Bucuresti | 0746420874 | Strada Profesor Stefan Mihaileanu, Nr.42, sector 2 |
| 67. | Burger Peter - Restaurant cu burgeri Bucuresti | 0799981031 | Strada Popa Nan, Nr. 48, sector 2 |
| 68. | Ciao Niki - Restaurant cu specific italian, Bucuresti | 0734356217;0756044805 | Strada Bocsa, Nr 4, sector 2 |
| 69. | Amareto, Cofetarie - Bucuresti | 0736659592; 0723830104; 0723830104 whatsapp | Sos. Stefan cel Mare , Nr. 36, Sector 2 (vis-a-vis de Circul Metropolitan Bucuresti), Bucuresti |
| 70. | Sarazin - Carol Fast food Bucuresti | 0787625505 | Bulevardul Carol I, Nr. 66, Sector 2, |
| 71. | Club Art Papillon Restaurant - Bucuresti | 0212522520; 0732582278; 0722240930 | Matei Voievod , Nr. 66A Sector 2, Bucuresti |
| 72. | Alceva - Restaurant, Bucuresti | 0770844125 | Matei Voievod, Nr. 79, sector 2, |
| 73. | Mantuleasa 40 - Restaurant Bucuresti | 0754045450; 0751133141 | Str. Mantuleasa, Nr. 40, sector 2 |
| 74. | Zeppelin Pub - Bucuresti | 0722170024 | Strada Marin Serghiescu, Nr. 7, sector 2 |
| 75. | GinOteca - Bar, Bucuresti | 0751446446 | Strada Plantelor, Nr. 25, sector 2 |
| 76. | Posh Birt Select - Pub, Bucuresti | 0724004376 | Strada Plantelor, Nr. 26, sector 2 |
| 77. | Le Boutique Food Concept Store - Bucuresti | 0722538274; 0314380044 | Str. Sfantul Stefan, Nr. 13, sector 2 |
| 78. | Modelier - Bistro, cocktails Bucuresti | 0799630693 | Strada Duzilor, Nr. 12, sector 2 |
| 79. | EXPRESS Food & Drink - Restaurant fast-food, Bucuresti | 0732669922 | Bd. CAROL I, Nr. 62, Sector 2 |
| 80. | Willy\'s Coffee Art - Bucuresti | 0769911077 | Bulevardul Carol I, Nr 62, sector 2, |
| 81. | Shiva Coffee&Tea - Cafenea Bucuresti | 0748874482 | Strada Mihai Eminescu, Nr. 73, sector 2 |
| 82. | VINO - Bar de vinuri, Bucuresti | 0799944999 | Strada Mihai Eminescu, Nr. 71 |
| 83. | Turquoise Bakery - Bucuresti | 0739037919 | Str. Matei Voievod, nr.101, Sector 2 |
| 84. | Torna Fratre Restaurant - Bucuresti | 0212103557; 0784111890 | Tunari, Nr. 34, Sector 2, Bucuresti |
| 85. | La Impinge Tava - Bucuresti | 0721150452 | Str. Mihai Eminescu, Nr. 73, Sector 2 |
| 86. | Ceai la Vlaicu - Ceainarie Bucuresti | 0727609699 | Str. Aurel Vlaicu, Nr. 47, sector 2 |
| 87. | Gelato Mio - Magazin de inghetata Bucuresti | 0765799379; 0720044495; 0744555599 | Str. Polona, Nr. 76, sector 1 |
| 88. | Mon Paris Restaurant & Lounge - Restaurant cu specific european, Bucuresti | 0799973783 | Bd Dacia, Nr. 62, sector 2 |
| 89. | Wicked Bar - Bucuresti | 0722615188; 0723574895 | Strada Spatarului, Nr. 4, Sector 2, Bucuresti |
| 90. | Dada Restaurant - Bucuresti | 0729997405; 0724015800 | Str. Matei Voievod , nr. 94bis, sector 2, |
| 91. | Alice, Cofetarie - Bucuresti | 0744486465 | Sos. Mihai Bravu, Nr. 123-135, Sector 2, (zona Piata Iancului - langa Sectia 8 de Politie), Bucuresti |
| 92. | Gelato D\'Amore - Magazin de inghetata Bucuresti | 0771727627 | Strada Maria Rosetti, Nr. 13, Sector 2 |
| 93. | Armand, Cofetarie - Bucuresti | 0310051187; 0741276263 | Armand Calinescu , Nr. 25, Sector 2, Bucuresti |
| 94. | Cristal - Cofetarie | 0760090324 | Str. Matei Voievod, nr. 108, sector 2 |
| 95. | BEAT bar umanist - Bar, Bucuresti | 0720854187 | Vasile Lascar, Nr. 29, sector 2 |
| 96. | La Cena - Restaurant cu specific italian, Bucuresti | 0212116717;0730210014 | Maria Rosetti, Nr. 1, sector 2 |
| 97. | Delice Grill - Restaurant fast-food Bucuresti | 0721112244 | Soseaua Mihai Bravu, Nr 139-145, sector 2 |
| 98. | Pizzicato, Pizzerie si catering - Bucuresti | 0212111213 | Strada Icoanei, Nr. 2, Sector 2, Bucuresti |
| 99. | Green Tea Ceainarie - Bucuresti | 0213209396; 0749090202 | Dr. Burghelea, Nr. 24, Sector 2, Bucuresti |
| 100. | Rawyal brunch & cakes - Bucuresti | 0730777221 | Calea Mosilor, Nr 105, Sector 2 |
| 101. | Cofetaria Madlene - Bucuresti | 0753223222 | Str. Traian, Nr.103, sector 2 |
| 102. | Joy House - Restaurant Bucuresti | 0730443232 | Str. Teiul Doamnei, Nr. 9A, Sector 2 |
| 103. | DolciConi - Gelaterie Bucuresti | 0753762549 | Vasile Lascar, Nr 26-28, sector 2 |
| 104. | Politica si Delicateturi Bucuresti - Restaurant cu specific romanesc | 0785516681 | Str. Prof. Dr. Mihail Georgescu, Nr. 24, sector 2 |
| 105. | Urban Bistro - Restaurant cu fripturi, Bucuresti | 0769918510 | Strada Piata Sfantu Stefan, Nr 6, sector 2 |
| 106. | Refugiu - Restaurant Bucuresti | 0763478438;0727626981 | Strada Otesani, Nr 73 , Sector 2 |
| 107. | Bistro Fum de Vorbe - Restaurant Bucuresti | 0748628830; 0723686292 | Vasile Lascar, Nr. 24, Sectorul 2 |
| 108. | Nice Touch - Restaurant cu meniu international, Bucuresti | 0771568361 | Strada Sperantei, nr.7, sector 2 |
| 109. | FoodVibe - Serviciu de livrare mancare | 0371333222 | Strada Sperantei, nr. 7, sector 2 |
| 110. | Gambino\'s Pizza - Bucuresti | 0731707070; 0725271471; 0310050209 | Vasile Lascar, Nr.24, Sector 2, Bucuresti |
| 111. | Restaurant Ceaun | 0756090680 | Strada Maica Domnului, Nr. 54-56, sector 2 |
| 112. | Casa Ede - Restaurant & Beauty - Barber Salon Bucuresti | 0772019516 | Strada Armeneasca, Nr. 8, sector 2 |
| 113. | Fadel - Patiserie Bucuresti | 0786309530; 0722919132 | Strada Jean Louis Calderon, Nr. 56, Sector 2 |
| 114. | La Gafe - Restaurant traditional Bucuresti | 0721389446 | Str Dorin Pavel, Nr 1, sector 2 |
| 115. | Newton Bar, Bucuresti | 0770718303; 0213150217 | Jean Louis Calderon, Nr. 56 (Universitate), Sector 2, Bucuresti |
| 116. | Acuarela Bufet - Bucuresti | 0745662889; 0741403238; 0721483051 | Polona, Nr. 40,Sector 1, Bucuresti |
| 117. | Simbio - Restaurant Bucuresti | 0756746246 | Str Negustori, nr. 26, sector 2 |
| 118. | Oktoberfest Pub - Bucuresti | 0724333233 | Popa Nan, Nr. 95, Sector 3, Bucuresti |
| 119. | Borgo Stagioni - Restaurant Bucuresti | 0732163287; 0722220223 | Calea Calarasi, Nr. 78, Sector 3 |
| 120. | Sabatini Pizza - Bucuresti | 0770227880; 0766606637; 0731876441 | Teiul Doamnei, Nr. 15, Sector 2, Bucuresti |
| 121. | Sabatini Pizza - Bucuresti | 0212428725; 0731876441; 0766606637 | Teiul Doamnei , Nr 15, Sector 2, Bucuresti |
| 122. | Point Hub - Hub Cultural, Bucuresti | 0748291815 | Str. General Eremia Grigorescu, nr. 10, sector 1, |
| 123. | Osteria Zucca - Restaurant cu specific italian, Bucuresti | 0770287979; 0314206814 | Jean-Louis Calderon, Nr. 41, Sector 2, Bucuresti |
| 124. | AVA Bistro - Restaurant si catering, Bucuresti | 0770888222 | Strada Dorin Pavel, Nr. 15, sector 2 |
| 125. | Beautyfood - Bistro, Bucuresti | 0759030609 | Jean Louis Calderon, Nr. 34, sector 2 |
| 126. | Imperial Turkish Cuisine & Steakhouse- Restaurant Bucuresti | 0720102222 | Strada Jean Louis Calderon, Nr. 33, Sector 2 |
| 127. | Circus Pub - Restaurant cu burgeri, Bucuresti | 0725180680 | Bulevardul Lacul Tei, Nr 65, sector 2 |
| 128. | La Coana Mare - Cofetarie Bucuresti | 0771512035 | Strada Magura Vulturului, Nr. 2, sector 2 |
| 129. | Kane - Noua bucatarie romaneasca fina | 0314100016 | Str. Dianei, nr. 9 (Piata Rosetti), sector 2 |
| 130. | Calderon 18 - Restaurant cu terasa, Bucuresti | 0731886789 | Str. Jean Louis Calderon, Nr.18, sector 2, |
| 131. | Restaurant Home - Bucatarie internationala, Bucuresti | 0722509794; 0728708216; 0729811130 | Str. Alexandru Xenopol, Nr. 1 (zona Gradina Icoanei), Sector 1, Bucuresti |
| 132. | Shift Pub - Bucuresti | 0212112272 | Str. General Eremia Grigorescu, Nr.17 |
| 133. | Panik & Pub - Pub, Bucuresti | 0728264360 | Str. Mihai Eminescu, Nr. 33 |
| 134. | Casa Lefter - Restaurant Bucuresti | 0723568402; 0743127330 | Strada Lt. Ionescu Baican, Nr. 57, sector 2 |
| 135. | QP Pub - Bucuresti | 0736405451 | Str. General David Praporgescu, Nr. 13, sector 2 |
| 136. | The Canteen - Restaurant Bucuresti | 0735517630 | Str. Barbu Vacarescu, Nr. 44, Bl. 7 Sector 2 |
| 137. | El Pato - Restaurant Bucuresti | 0730344810; 0311072033 | Strada Dionisie Lupu, Nr. 48, sector 1 |
| 138. | Bacania Veche - Bistro si pravalie Bucuresti | 0752202103; 0212101222 | Barbu Vacarescu, Nr. 49, sector 2 |
| 139. | Buoni e Bravi - Pizzerie, Bucuresti | 0735215224 | Piata C. A. Rosetti, nr. 3, sector 2 |
| 140. | Lente - Restaurant pentru mic dejun si brunch, Bucuresti | 0314107585 | Dionisie Lupu, Nr 78, sector 1 |
| 141. | La Mama - Restaurant Bucuresti | 0721526262 | Strada Delea Veche, Nr. 51, sector 2 |
| 142. | Legere - Bar, Bucuresti | 0730534373 | Piata Rosetti, nr 5, sector 2 |
| 143. | Maison des Crepes - Clatitarie Bucuresti | 0770802524 | Strada Mihai Eminescu, Nr. 38, Sector 2 |
| 144. | Brigitte - Cofetarie Bucuresti | 0727891345; 0745779722 | str. Cristea Mateescu, Nr.77, Sector 2 |
| 145. | Della Casa Pizza - Bucuresti | 0721312666; 0746577383; 0768720228 | Sos. Gherase, Nr. 96, (Zona Doamna Ghica) Sector 2, Bucuresti |
| 146. | Ganesha Caffe & Garden - Bucuresti | 0764263742 | Str. Barbu Vacarescu, nr. 71, sector 2, |
| 147. | Terasa Marius - Bar & Grill, Bucuresti | 0745777799 | Sos. Pantelimon, Nr. 115-117, sector 2 |
| 148. | Ivy - Cafenea, Bucuresti | 0755210748 | Bulevardul Carol I, Nr. 23, sector 2 |
| 149. | Surubelnita - Club, Bucuresti | 0768743593 | Str. Calea Mosilor, nr. 100, sector 2 |
| 150. | La Copac - Carciuma de jupani, Bucuresti | 0722704445 | str. Pitar Mos, nr. 23, sector 1 |
| 151. | Papila Kitchen - Restaurant, Bucuresti | 0753087799 | Strada Sfintilor, Nr 6, sector 2 |
| 152. | The President, Restaurant - Bucuresti | 0720047541; 0760087384; 0766747379 | Bd. Lacul Tei, nr. 145 (in Parcul Tei - pe malul lacului), Sector 2, Bucuresti |
| 153. | Jack Pot - Bar specializat in cocktailuri, Bucuresti | 0372916947; 0770776777 | Zborului, nr. 2, sector 3 |
| 154. | Gradina Urbana - Restaurant cu specific american, Bucuresti | 0745250077 | Strada Batistei, Nr. 14, sector 2 |
| 155. | Angelo Grasso - Restaurant cu specific italian, Bucuresti | 0739955555 | Strada Tudor Arghezi, 12-16, sector 2 |
| 156. | Dolce Principessa Cofetarie - Bucuresti | 0212115155; 0735213101 | Calea Dorobanti, nr. 50A, sector 1, Bucuresti |
| 157. | Benihana - Restaurant cu specific japonez | 0751169889 | Calea Dorobantilor, Nr. 5-7 Hotel Howard Johnson, sector 1, |
| 158. | OPUS TNB - Bar specializat in cocktailuri | 0771595407 | Bulevardul Nicolae Balcescu, Nr. 2, sector 1 |
| 159. | Gradina Eden - Terasa Bucuresti | 0722185368 | Calea Dorobanti, Nr. 44-46 sector 1 |
| 160. | Kuma Bar - Bucuresti | 0766440936 | Strada Coltei, Nr. 50, sector 3 |
| 161. | Casa Oamenilor de Stiinta - Restaurant, Bucuresti | 0726664227; 0722926012; 0769293579 | P-ta Lahovari, nr. 9, Sector 1 |
| 162. | Krisperie - Restaurant fast-food, Bucuresti | 0762888844 | Strada Doamna Ghica, Nr. 235, sector 2 |
| 163. | La Nenea Iancu - Restaurant cu specific romanesc, Bucuresti | 0745140786 | Str. Romulus, nr. 55, sector 3 |
| 164. | Trafalgar Pub - Bucuresti | 0212113151; 0766625805 | David Emanuel , Nr. 4A, Sector 1, Bucuresti |
| 165. | Pizza Hut - Bucuresti | 0740121901 | Calea Dorobantilor , Nr. 5-7, Sector 1 , Bucuresti |
| 166. | Robescu 14 - Bar specializat in cocktailuri | 0773741922 | Strada Robescu F. Constantin, Nr. 14, sector 3 |
| 167. | Ambasador, Bar si Restaurant - Bucuresti | 0213159080; Fax 0213123595 | Bd. G-ral Gh. Magheru, Nr. 8-10, Sector 1, Bucuresti |
| 168. | Frufru, Fresh, natural, yummy , Fast food - Bucuresti | 0212221111; 0765346715 | Batistei , Nr. 1-3, Sector 2, Bucuresti |
| 169. | Nicolai To Go - Bistro Bucuresti | 0741600006 | Calea Dorobantilor, Nr. 67, sector 1 |
| 170. | Trattoria Mezzaluna - Restaurant specific italian Bucuresti | 0729591469 | Calea Dorobanti, Nr. 63, sector 1 |
| 171. | Ciorbarie - Restaurant cu supe si ciorbe, Bucuresti | 0785610628 | Calea Dorobanti, Nr. 73, sector 1 |
| 172. | Cofetaria Casandra - Bucuresti | 0757252466 | B-dul. Magheru, Nr. 32-36, Sector 1 |
| 173. | Mr. Cigkofte - Restaurant fast-food, Bucuresti | 0720802181 | Nicolae Balcescu, Nr. 18, sector 1 |
| 174. | Miss Ale - Bar specializat in cocktailuri | 0745089700 | Constantin F Robescu, Nr 2, sector 3 |
| 175. | Ambasador, Restaurant - Hotel Ambasador, Bucuresti | 0213159080 | Bd. G-ral Ghe. Magheru, Nr. 8-10, Sector 1, Bucuresti |
| 176. | Dabeef - Restaurant Bucuresti | 0739835658 | Calea Floreasca, Nr. 111-113, Sector 1 |
| 177. | E3 by Entourage - Restaurant Bucuresti | 0734966889 | Calea Floreasca, Nr. 111-113, Sector 1 |
| 178. | Pasterra - Restaurant cu mancare specifica din Abruzzo, Bucuresti | 0751222668 | strada Comandor Eugen Botez, Nr. 27, sector 2 |
| 179. | Trattoria Fresca - Restaurant cu specific italian, Bucuresti | 0731333410 | Str.Popa Nan, nr.140, Sector 2 |
| 180. | Donerboom - Fast food Bucuresti | 0749043440 | Str.Barbu Vacarescu, Nr. 102, Sector 2, |
| 181. | Santorini - Restaurant specific grecesc Bucuresti | 0748333334 | Bulevardul Mihai Bravu, Nr. 209, Sector 2 |
| 182. | Chaya TeaHouse - Ceainarie Bucuresti | 0755331000 | Strada Radu Ceaus, Nr. 7, sector 3 |
| 183. | Cafe Verona - Cafenea Bucuresti | 0732003060 | Str. Arthur Verona, Nr. 13, sector 1, |
| 184. | French Bakery, Cofetarie - Bucuresti | 0213114518 | Benjamin Franklin, Nr. 9, Sector 1, Bucuresti |
| 185. | Restaurant Ali Baba - Specific oriental, Bucuresti | 0213274810; 0722707208 | Sos. Mihai Bravu, Nr. 213, sector 2, Bucuresti |
| 186. | KFC Romana, Fast Food - Bucuresti | 0740121904 | Bd. G-ral Gh. Magheru , Nr. 28-30, Sector 1 , Bucuresti |
| 187. | Aria Gourmet Burger - Fast food Bucuresti | 0773778860; 0773778860 | Strada Slanic, Nr. 2, Sector 3 |
| 188. | Ciorbe si Placinte - Restaurant cu specific romanesc, Bucuresti | 0755993070 | B-dul Iancu de Hunedoara, Nr. 64, sector 1 |
| 189. | Creamier - Cafenea Bucuresti | 0741234567 | Strada Benjamin Franklin, Nr. 5, Sector 1 |
| 190. | CAJU by Joseph Hadad - Braserie, Bucuresti | 0751144545 | Nicolae Golescu, Nr. 16, sector 1 |
| 191. | Journey Pub - Bucuresti | 0752285286 | Strada George Enescu, Nr. 25, sector 1 |
| 192. | Lloyds Pub - Bucuresti | 0723133786 | Str. Coltei, Nr. 16, Sector 3 |
| 193. | Salon Golescu - Bar specializat in cocktailuri, Bucuresti | 0314360338 | Strada Nicolae Golescu, Nr 17, sector 1 |
| 194. | Lugo - Restaurant cu specific mediteranean, Bucuresti | 0785238910 | George Enescu, Nr. 23, sector 1 |
| 195. | Camera din fata - Ceainaria Bucuresti | 0213111512 | Str. Mendeleev, Nr. 22, sector 1, langa Piata Amzei |
| 196. | Casa Jienilor Agricultori, Restaurant - Bucuresti | 0735994994 | Agricultori, Nr.12, Sector 2, Bucuresti |
| 197. | M60 - Cafenea Bucuresti | 0314100010 | Strada Mendeleev, Nr 2, sector 1 |
| 198. | Chocolat Ateneu - Boutique restaurant cu livrare de prajituri in Bucuresti | 0743777807; 0744507506 | Strada Episcopiei, Nr. 6, Sector 1, Bucuresti |
| 199. | Manasia Hub - Bar Bucuresti | 0736760063 | Str. Stelea Spatarul, Nr. 13, sector 3 |
| 200. | Trattoria Don Vito - Restaurant Bucuresti | 0733333021 | Str. Mendeleev, Nr. 1, Sector 1 |
| 201. | SanThe Fitoceainarie - Ceainarie, Bucuresti | 0730370290 | Lipscani, nr 104, sector 3, |
| 202. | Duman - Restaurant cu specific oriental, Bucuresti | 0738170063 | Bulevardul Decebal, Nr. 13, sector 3 |
| 203. | Events by Tonyo - Restaurant Bucuresti | 0723170007 | Aleea Hobita, Nr 1 Sector 2 |
| 204. | Capital Plaza, Hotel si Restaurant - Bucuresti | 0372080050; 0372080081 | Bd.Iancu de Hunedoara, Nr. 54, Sector 1, Bucuresti |
| 205. | Barrio - Restaurant & bar, Bucuresti | 0733222777 | Biserica Amzei, Nr. 30, sector 1 |
| 206. | Snap - Restaurant, Bucuresti | 0738888885 | Bulevard Decebal, nr. 13, sector 3 |
| 207. | Moritz Eis - Gelaterie Bucuresti | 0722363122 | Strada Frederic Chopin, Nr. 10-12, Sector 2 |
| 208. | Leonidas Cofetarie - Bucuresti | 0740014695; 0213141377 | Doamnei, Nr. 27 , Sector 3, Bucuresti |
| 209. | Capital Plaza, Hotel si Restaurant - Bucuresti | 0372080080; Fax: 0372080081 | Bd. Iancu de Hunedoara, Nr. 54, Sector 1, Bucuresti |
| 210. | Boema 33 - Restaurant, Bucuresti | 0722295463 | Bd. Dacia, nr. 33, sector 1 (Piata Romana) |
| 211. | Tonka Soul Café - Bucuresti | 0371445255 | Biserica Amzei , Nr. 19, Sector 1, Bucuresti |
| 212. | Animaletto Pizza Bar - Bucuresti | 0755019098 | Strada Visarion, Nr 10, sector 1 |
| 213. | Die Deutsche Kneipe - Restaurant cu specific german | 0722284560 | Str. Stockholm, nr. 9, sector 1, |
| 214. | Boutique Du Pain - Restaurant cu specific francez, Bucuresti | 0728443300 | Academiei, Nr. 28-30, sector 1 |
| 215. | Rich Vip Lounge - Restaurant Bucuresti | 0771790764 | Bd.Decebal, Nr 9, sector 3 |
| 216. | Restaurant Grill Verdetei 5 - Restaurant cu preparate la gratar, Bucuresti | 0766411338 | Strada Verdetei, nr. 5, sector 3 |
| 217. | Funky Lounge - Terasa, Bucuresti | 0755505505 | Bd. Decebal, nr 9, sector 3 |
| 218. | Jos Palaria Cafe - Bucuresti | 0314321029 | Toma Caragiu , Nr. 3, Sector 3 , Bucuresti |
| 219. | Cannoleria - Cafenea Bucuresti | 0753325071 | Str.Cornescu, Nr. 4, sector 1, |
| 220. | Ceramic Cafe - Bucuresti | 0774007364 | I.C. Visarion, Nr 20, sector 1 |
| 221. | Excalibur, Restaurant - Bucuresti | 0730190364; Tel Fax: 0213145670 | Academiei, Nr. 39-41, Sector 1 , Bucuresti |
| 222. | Agio Bistrot - Bistro, Bucuresti | 0763528818 | Bd. Decebal, Nr. 9, sector 3 |
| 223. | Bistro Turturelelor - Restaurant, Bucuresti | 0726310583; 0758887454 | Strada Turturelelor, 11A, corpC, Parter, Sector 3 |
| 224. | Decadence - Bar & Restaurant | 0741828489 | Strada Constantin Daniel, nr. 11, sector 1 |
| 225. | Red Angus Steakhouse - Restaurant Bucuresti | 0756600000 | Piata Amzei, Nr. 10-22Sector 1, |
| 226. | Japanos - Restaurant cu specific japonez, Bucuresti | 0771621192 | Calea Dorobantilor, nr. 116-122, spatiul comercial nr. 3, parter, sector 1 |
| 227. | Wine Ambassador - Bar de vinuri, Bucuresti | 0733182037 | Intrarea Biserica Alba, nr.1, sector 1 |
| 228. | Colosseum Pizza - Bucuresti | 0721243613; 0213131860; 0213121020 | Calea Victoriei, Nr. 48-50 (Pasajul Victoria), Sector 1, Bucuresti |
| 229. | Geste - Cofetarie Bucuresti | 0730743783 | Strada Dobrota, Nr. 16, Sector 2 |
| 230. | Casa Lica - Cofetarie Bucuresti | 0725761188 | Bulevardul Decebal, Nr. 5, Sector 3 |
| 231. | Turquoise - Restaurant cu specific oriental, Bucuresti | 0731826222 | Strada Theodor D. Sperantia, Nr. 96, sector 3 |
| 232. | La Finca by Alioli - Restaurant Bucuresti | 0767150500 | Str. Caderea Bastiliei, Nr. 78, Sector 1, |
| 233. | Level Up - Restaurant raw vegan, Bucuresti | 0721085582 | Str Sf. Vineri, Nr 10, sector 3 |
| 234. | Savart - Arta savorilor Gourmet, Bucuresti | 0743575757 | Str. George Enescu, Nr. 2-4, sector 1 |
| 235. | Bucatarasul cel Dibaci - Restaurant cu specific romanesc, Bucuresti | 0730340436;0760966360 | Strada Olteni, Nr 3, sector 3 |
| 236. | Zoomserie - Cofetarie Bucuresti | 0751222265 | Sf. Vineri, Nr. 23, sector 3, intersectia Coposu (Calarasilor), |
| 237. | Gallo Nero, Restaurant - Bucuresti | 0726544889; 0213268128 | Bd. Decebal, Nr. 12, Sector 3, Bucuresti |
| 238. | Zatara - Restaurant cu influente mediteraneene, Bucuresti | 0771670756 | Vatra Luminoasa, Nr. 108, sector 2 |
| 239. | Athénée Palace Hilton,Cafenea,Baruri - Bucuresti | 0213033777; 0213152121; Fax: 0213152121 | Episcopiei, Nr. 1-3, Sector 1 , Bucuresti |
| 240. | Barfly Bucuresti | 0727394131; 0721652899 | Olteni , Nr. 3, Sector 3, Bucuresti |
| 241. | The Pub - Bucuresti | 0728843782 | Bulevardul Regina Elisabeta, Nr. 9, sector 3 |
| 242. | Noeme - Restaurant Bucuresti | 0721490270 | Anton Pann, Nr. 29, sector 3 |
| 243. | Restaurant Sole - Bucuresti | 0722587589 | Bd. Iancu de Hunedoara, Nr. 48, etaj 15, sector 1 |
| 244. | Padthai - Restaurant Bucuresti | 0726637747 | Bulevardul Decebal, Nr. 3, sector 3 |
| 245. | XO Lounge - Restaurant Bucuresti | 0725585388 | B-dul Decebal, Nr. 5, sector 3 |
| 246. | Miss Ale - Espresso Bar, Bucuresti | 0371394059 | Calea Victoriei, Nr. 100, sector 1 |
| 247. | Tress Caffe&Lounge - Bucuresti | 0721988801 | Bulevardul Decebal, Nr 3, sector 3 |
| 248. | Thors Hammer - Bar Bucuresti | 0729176724 | Str Blanari, Nr. 12, sector 3 |
| 249. | Terminus - Pub, Bucuresti | 0730222555 | Str. George Enescu, nr. 5, sector 1, |
| 250. | Latin Pizza - Pizzerie, Bucuresti | 0751896358 | Bulevardul Ion C. Bratianu, Nr. 34, sector 3 |
| 251. | Game On - Restaurant Bucuresti | 0745055137 | Calea Floreasca, Nr. 91-111, sector 1 |
| 252. | Sara, Restaurant si Bacanie - Bucuresti | 0749770770 | Calea Floreasca, Nr. 111-113, Sector 2, Bucuresti |
| 253. | Lotus Cafe - Cafenea restaurant Bucuresti | 0722808389 | Bd. Decebal, Nr 1, sector 3 |
| 254. | Friddi - Gelaterie, Bucuresti | 0314313295 | Str. Vasile Alecsandri, Nr. 4, sector 1 |
| 255. | VacaMuuu - Restaurant cu specific american, Bucuresti | 0731351135 | Calea Floreasca, Nr.111, sector 1 |
| 256. | Primus Pub - Bucuresti | 0732222666 | George Enescu, Nr. 3, sector 1 |
| 257. | Colosseum, Restaurant - Bucuresti | 0721243613; 0213131860; 0219689 | Calea Victoriei , Nr. 48-50 (Pasajul Victoria), sector 1, Bucuresti |
| 258. | Terasa Sport House - Restaurant fast-food, Bucuresti | 0755080224 | Maior Ion Coravu, numarul 34, sector 2 |
| 259. | Berestroika - Beer Revolution - Bucuresti | 0722560300; 0721100000; 0733200000 | Aleea Cauzasi, Nr. 57, Sector 2, Bucuresti |
| 260. | VacaMuuu - Restaurant si bacanie Bucuresti | 0731351135 | Calea Floreasca, Nr. 111, sector 1 |
| 261. | Argentin - Restaurant Bucuresti | 0774462430; 0774462431 | Strada Blanari, Nr. 11-15, Sector 3 |
| 262. | Rekolta - Restaurant, Bucuresti | 0721334564 | Calea Floreasca, Nr. 102, sector 1 |
| 263. | Riviera Park, Restaurant - Bucuresti | 0732408408 | Bd. Basarabia , Nr. 23 (Parcul National), Sector 2, Bucuresti |
| 264. | M&I Clasic Cuisine - Fast-food si catering Bucuresti | 0732948408 | Strada Baicului, Nr 104 Sector 2 |
| 265. | Naive - Restaurant cu bar, Bucuresti | 0725550333 | Bd. I.C. Bratianu, Nr. 36, sector 3 |
| 266. | Mao Pub - Bucuresti | 0771305995 | Str. Lipscani, Nr. 69, Sector 3 |
| 267. | Koffeev - Cafenea, Bucuresti | 0767195222 | Bulevardul Unirii, Nr. 57, sector 3 |
| 268. | Andreea, Cofetarie, torturi si patiserie - Bucuresti | 0728877033; 0213228845 | Bulevardul Mihai Bravu, Nr. 286, Sector 3, Bucuresti |
| 269. | Ramada Majestic, Hotel si Restaurant - Bucuresti | 0213102715 | Calea Victoriei, Nr. 38-40, Sector 1 , Bucuresti |
| 270. | Extra Time - Pub Bucuresti | 0732166605 | Strada Lipscani, Nr. 82A, sector 3 |
| 271. | Capsa Cofetarie Bucuresti | 0213134038; 0213135999 | Calea Victoriei, Nr. 36, Sector 1, Bucuresti |
| 272. | Cofetaria Andreea | 0213228845; 0728877033 | Sos. Mihai Bravu , Nr. 286, sector 3, Bucuresti |
| 273. | BistroMar - Restaurant pescaresc, Bucuresti | 0740085088 | Strada Banul Antonache, Nr. 55-27, sector 1 |
| 274. | Sweetology - Gelaterie, Bucuresti | 0734444889 | Calea Victoriei, Nr. 122, sector 1 |
| 275. | Casa Capsa, Restaurant - Bucuresti | 0213134038; Fax: 0213135999 | Calea Victoriei, Nr. 36, Sector 1, Bucuresti |
| 276. | Maroon - Maroon Restaurant Cafe | 0742420000; 0764900000 | Bulevardul Unirii, Nr. 47 C, Sector 3 |
| 277. | Refresh - Restaurant Bucuresti | 0771189347 | Strada Johann Sebastian Bach, Nr. 3, sector 2 |
| 278. | La 100 de Beri - Bar specializat in bere, Bucuresti | 0733282598 | Str. Gabroveni, Nr.61, sector 3 |
| 279. | Dorobanti 140, Cofetarie - Bucuresti | 0723500025 | Calea Dorobantilor, Nr.140,Sector 1, Bucuresti |
| 280. | Capitol Hotel si Restaurant - Bucuresti | 0213158030; 0317107007 | Calea Victoriei , Nr. 29, Sector 1 , Bucuresti |
| 281. | Marshal Garden, Restaurant - Bucuresti | 0213194444; 0213194445; 0758105310 | Calea Dorobantilor, Nr. 50 B, Sector 1, Bucuresti |
| 282. | Mozzafiato - Restaurant Bucuresti | 0741190190 | Calea Floreasca, Nr. 133-137, Sector 1 |
| 283. | Pot Stories - Restaurant, Bucuresti | 0753348248 | Calea Floreasca, nr. 111-113, sector 1 |
| 284. | Bar A1 - Bucuresti | 0770901409 | Piata Amzei, Nr 1, sector 1 |
| 285. | The Drunken Lords - Pub, Bucuresti | 0736238815 | Intr. Selari, Nr. 3-5, sector 3 |
| 286. | Velocita - Gelaterie, Bucuresti | 0739889189 | Calea Victoriei, Nr. 122, sector 1 |
| 287. | Gusto e Passione - Gelateria Artigianale, Bucuresti | 0755555453 | Calea Victoriei, Nr. 87, sector 1 |
| 288. | Times Cocktail Bar - Pub, Bucuresti | 0731032330 | Intrarea Nicolae Selari, nr.1,sector 3, |
| 289. | Tarta Ta - Delicii traditionale, Bucuresti | 0771522117 | Bulevardul Mircea Voda, Nr. 52, sector 3 |
| 290. | Greekos Urban Food - Restaurant fast-food, Bucuresti | 0726646976 | Soseaua Mihai Bravu, Nr. 247, sector 3 |
| 291. | Pizzeria La Coco - Bucuresti | 0731744444 | Str. Gabroveni, Nr. 31, Sector 3 |
| 292. | Yoshi Sushi & Teppanyaky - Restaurant japonez Bucuresti | 0314290280; 0749979521 | Str. Banu Antonache, Nr. 40-44, sector 1 |
| 293. | Gilda Music Lounge - Restaurant club Bucuresti | 0786770941 | Strada Lipscani, Nr. 53, sector 3 |
| 294. | Mojo Music Club - Bucuresti | 0737220220 | Gabroveni, Nr.14, Sector 3, Bucuresti |
| 295. | La Cantine de Nicolai, Restaurant - Bucuresti | 0725210608 | Povernei, Nr. 15-17, Sector 1, Bucresti |
| 296. | Fika18 - Croissanterie, Bucuresti | 0770663982 | Calea Victoriei, Nr. 101, sector 1 |
| 297. | Borsalino - Pizzerie Bucuresti | 0729954911; 0729954912 | Bulevardul Ion C. Bratianu, Nr. 44, Sector 3 |
| 298. | Ciccio - Pizzerie Bucuresti | 0745515510 | Strada Henri Coanda, Nr. 28 sector 1 |
| 299. | Blue Margarita - Restaurant cu specific mexican Bucuresti | 0770944822 | Strada Povernei, Nr. 15-17, sector 1 |
| 300. | Bere si Bere - Pub, bere craft si muzica rock | 0723280040 | Str. Gabroveni, Nr. 4, sector 3 |
| 301. | Neopolis Family Pizza - Bucuresti | 0734895330; 0770995973 | Gheorghe Titeica, Nr. 101, Sector 2 |
| 302. | Aphrodisia - Ceainarie Bucuresti | 0788129291 | Intrarea Tudor Stefan, nr. 39, sector 1 |
| 303. | Coolinart - Gastropub Bucuresti | 0772017955 | Calea Victoriei, Nr. 142-148, sector 1 |
| 304. | Old Habits - Club de noapte si de dans | 0728776699 | Strada Lipscani, Nr. 38, sector 3 |
| 305. | Time to Lunch | 0763200900 | Strada Patriei, Nr 4, sector 3 |
| 306. | Gabbiano - Restaurant cu specific italian Bucuresti | 0757115272 | Str. Banul Antonache, Nr. 40-44, sector 1 |
| 307. | Tasting Room by Ethic Wine - Restaurant Bucuresti | 0754993953 | Putul lui Zamfir, Nr. 64, sector 1 |
| 308. | Xclusive Pub - Bar & Grill, Bucuresti | 0723166463 | Str. Lipscani, nr. 36, sector 3 |
| 309. | Vilacrosse, Bistro, Restaurant - Bucuresti | 0728358304; 0744796894 | Eugeniu Carada, Nr. 7, Sector 3, Bucuresti |
| 310. | Skybar - Bucuresti | 0724759227 | Calea Dorobanti, Nr. 155, Etaj 5, sector 1 |
| 311. | Industry Wine Bar- Bar cu vinuri, Bucuresti | 0722777222 | str. Sepcari, Nr. 19, sector 3 |
| 312. | Tag Aperitivo Bar - Bucuresti | 0721888522 | Strada Lipscani, nr. 27, sector 3 |
| 313. | UAU Il Gelato - Gelaterie Bucuresti | 0723135015 | Str. Gabroveni, Nr. 1-3, sector 3, |
| 314. | Cercul Militar National, Restaurant - Bucuresti | 0213143735; 0213149551; Fax: 0372874921 | Constantin Mille, Nr.1-3, Sector 1, Bucuresti |
| 315. | Vilacrosse, Restaurant Cafe Bistro - Bucuresti | 0728358304 | Str. Eugen Carada, nr. 7, sector 3, |
| 316. | Lacrimi si Sfinti, Restaurant - Bucuresti | 0725558286; 0372773999 | Sepcari, Nr.16 (Centrul Vechi) Sector 3, Bucuresti |
| 317. | Q Marttinez - Restaurant cu specific european, Bucuresti | 0725682944 | Eugeniu Carada, Nr. 7, sector 3 |
| 318. | Artist Cafe - Cafenea Bucuresti | 0756777577 | Str. Lipscani, Nr. 30-34, sector 3 |
| 319. | Kiosque des Douceurs - Cofetarie Bucuresti | 0758090763 | Str. Selari, Nr. 3, Sector. 3, Centrul Vechi |
| 320. | Gyros Thessalonikis | 0770302148 | Strada Gabroveni, Nr. 2,sector 3 |
| 321. | Domino\'s Pizza - Bucuresti | 0736500200 | Bd. Iancu de Hunedoara, Nr. 38, Sector 1 , Bucuresti |
| 322. | Noa Restoclub - Restaurant Bucuresti | 0799747557 | Calea Victoriei, Nr 26 Sector 3 |
| 323. | 1974 Niste Domni si Fii - Bar Restaurant Bucuresti | 0721551099; 0723629306 | Covaci, Nr. 7, Sector 3, Bucuresti |
| 324. | WHYS - Bar, Bucuresti | 0785059173 | Pasajul Macca-Villacrosse, sector 3 |
| 325. | Valea Regilor - Cafenea, Bucuresti | 0213112969 | Calea Victoriei, 16-20, Centrul Vechi, sector 3 |
| 326. | The Old Sibiu - Restaurant evenimente Bucuresti | 0723602560; 0723637769; 0721172390 | Str. Ion Otetelesanu,, Nr. 3A-3B, Sector 1 |
| 327. | Fire Club Pub - Bucuresti | 0732166604 | Covaci, Nr. 7, Sector 3, Bucuresti |
| 328. | Bruno Wine Bar - Bar cu vinuri, Bucuresti | 0751220229 | Strada Covaci, Nr. 3, Centrul Vechi |
| 329. | Delicii Gelato - Gelaterie artizanala Bucuresti | 0721632019 | Str. Constantin Aricescu, Nr. 65, sector 1 |
| 330. | Domino\'s Pizza, Fast food - Bucuresti | 0736500200 | Bd. Iancu de Hunedoara, nr. 38, sector 1 , Bucuresti |
| 331. | Bazaar - Restaurant Bucuresti | 0721999999 | Strada Covaci, Nr. 10, sector 3 |
| 332. | Taverna Covaci - Restaurant cu specific romanesc, Bucuresti | 0747226677 | Str. Covaci, Nr. 1, sector 3 |
| 333. | Bemolle Cafe - Bucuresti | 0213118382; 0723188953 | Calea Victoriei , Nr.16-18-20 (Pasaj Villacrosse), Sector 3, Bucuresti |
| 334. | Boulevard Pub - Bucuresti | 0753966961 | Strada Covaci, Nr. 4, sector 3 |
| 335. | Bodega La Mahala - Restaurant Bucuresti | 0732166606 | Covaci, Nr. 8, Sector 3 |
| 336. | Hygge - Restaurant Bucuresti | 0771114875 | Calea Victoriei, Nr. 21, sector 3 |
| 337. | Sinners - Pub, Bucuresti | 0737343210 | Covaci, nr.2 , Centrul Vechi, sector 3 |
| 338. | Hugo Bar - Cafenea cu narghilele, Bucuresti | 0732397953 | Calea Victoriei, 16-18-20, sector 3 |
| 339. | Pizza Venetia, Pizzerie si catering - Bucuresti | 0720800100; 0213204424; Fax: 0720800100 | Dristorului, Nr.59, Sector 3, Bucuresti |
| 340. | Pekin, Restaurant chinezesc - Bucuresti | 0213103160; 0723233169; 0769414020 | Calea Victoriei, Nr. 16-20, pasaj Villa Cross, Sector 3, Bucuresti |
| 341. | iDracula - Restaurant tematic, Bucuresti | 0753476142;0752559457 | Str. Selari, Nr. 10-12, Centrul Vechi, sector 3 |
| 342. | Paninaro - Restaurant pentru mic dejun si brunch | 0771783619 | Strada Luterana, Nr 3, sector 1 |
| 343. | Saint Gelato - Gelaterie Bucuresti | 0745205405 | Bulevardul Regina Elisabeta, Nr. 26, Sector 3 |
| 344. | Pandoras Food - Restaurant fast-food Bucuresti | 0760102012 | Strada Gheorghe Titeica, Nr. 138, Sector 2 |
| 345. | Mon Cheri, Restaurant - Bucuresti | 0748750029; 0771693817; 0212310908 | Tudor Stefan, Nr. 16 (langa P-ta Dorobanti), sector 1, Bucuresti |
| 346. | Private Hell - Club, Bucuresti | 0757508336 | Str. Soarelui, nr. 5, Sector 3 |
| 347. | Nan Jing, Restaurant chinezesc - Bucuresti | 0213181285; 0726103407 | G-ral Gheorghe Manu, Nr. 2-4 (Hotel Minerva), Sector 1, Bucuresti |
| 348. | Caro, Restaurant - Bucuresti | 0212086128; 0212086100; 0212086196 | Barbu Vacarescu, Nr. 164A, Sector 2, Bucuresti |
| 349. | Grano - Restaurant cu specific italian, Bucuresti | 0212312386 | Strada Putul lui Zamfir, Nr. 40, sector 1 |
| 350. | Patrick Irish Pub & Restaurant - Bucuresti | 0213130336; 0314360112; 0755110008 | Smardan, Nr. 23-25, sector 3, Bucuresti |
| 351. | Curtea Berarilor, Bar & Grill - Bucuresti | 0213137532; 0735861682 (Radu); 0735861681 (Sorina) | Selari, Nr. 9-11,Sector 3 (Zona Lipscani), Bucuresti |
| 352. | Emozia coffee manifesto - Cafenea, Bucuresti | 0742023590;0726201527 | Strada Halelor, nr. 17, sector 3 |
| 353. | Maccheroni - Restaurant Bucuresti | 0722259360 | Str. George Calinescu, Nr. 51, Sector 1, |
| 354. | Hanul lui Manuc, Restaurant - Bucuresti | 0730188653; 0213122811; 0769075844 | Franceza , Nr. 62-64, Sector 3 , Bucuresti |
| 355. | Saray - Restaurant cu specific turcesc, Bucuresti | 0733135834 | Lipscani, Nr. 21, sector 3 |
| 356. | Curtea Berarilor, Restaurant terasa - Bucuresti | 0213137532 | Selari, Nr.9-11, sector 3, Bucuresti |
| 357. | Hanul lui Manuc, Restaurant si Cafenea - Bucuresti | 0213131411; 0769075844; 0730188653 | Franceza, Nr. 62-64, Sector 3 , Bucuresti |
| 358. | Mica Elvetie Restaurant - Bucuresti | 0212245017 | Franceza, Nr. 60-62, Sector 3, Bucuresti |
| 359. | Arogant - Restaurant & Lounge, Bucuresti | 0732764268 | Piata Alba Iulia Piata Alba Iulia, nr 8, sector 3 |
| 360. | Storage Room - Bar, Bucuresti | 0732363712 | Strada Smardan, Nr. 35, sector 3 |
| 361. | Rainbow - Bar & Grill, Bucuresti | 0743205054 | Cornul Caprei, nr.53, sector 3 |
| 362. | Scovergaria Micai - Patiserie, cofetarie Bucuresti | 0314253670 | Calea Victoriei, Nr. 14 colt cu Lipscani 19, sector 3 |
| 363. | Aubergine Healthy Food - Restaurant cu mancare sanatoasa, Bucuresti | 0213137548 (Smardan); 0771358661 (Aviatorilor) | Strada Smardan, Nr 33, sector 3, Bucuresti |
| 364. | La Patrascu - Restaurant Bucuresti | 0771635003; 0767561149; 0754422491 | Str. Prof. Stefan Nicolau, Nr. 2A, Sector 3 |
| 365. | Hanul lui Manuc, Restaurant - Bucuresti | 0213131411; 0769075844; 0730188653 | Franceza, Nr. 62-64, Sector 3, Bucuresti |
| 366. | Les Bourgeois - Bucuresti | 0720132994; 0213106052 | Smardan, Nr. 20, Sector 3, Bucuresti |
| 367. | Kanpai Bistro, Restaurant japonez si catering - Bucuresti | 0755526724; 0371184961 | George Calinescu, Nr.49, Sector 1, Bucuresti |
| 368. | Comics Club - Stand Up, Bucuresti | 0741426426 | Str. Nerva Traian, Numarul 4. sector 3 |
| 369. | The Urbanist - Bar specializat in cocktailuri, Bucuresti | 0741392558 | Strada Caldarari, Nr. 3, sector 3 |
| 370. | McDonald\'s | 0372701091 | Piata Unirii 1, Unirea Shopping Center, Bucuresti |
| 371. | Burger si Scoici - Restaurant cu burgeri Bucuresti | 0753300333 | Strada Smardan, Nr. 41, Sector 3 |
| 372. | El Bacha, Restaurant - Bucuresti | 0212691392; 0722833333 | P-ta Alba Iulia, nr.6 bl.15, sector 3, |
| 373. | Linea - Closer To The Moon, Bucuresti | 0757824298 | Calea Victoriei, nr. 17, sector 3 |
| 374. | Mica Elvetie Restaurant | 0212245017 | Franceza, Nr. 60-62, Sector 3, Bucuresti |
| 375. | Arcade Cafe - Bucuresti | 0722777674 | Smardan, Nr.30, (Centrul vechi), Sector 4, Bucuresti |
| 376. | Shoteria - Shotbar, Bucuresti | 0721203039; 0372916947 | Strada Selari, Nr. 17, sector 3 |
| 377. | Freddo Pub - Club de noapte si de dans, Bucuresti | 0722373336 | Str Smardan, nr 24, sector 3, |
| 378. | Veranda Casa Frumoasa - Restaurant Bucuresti | 0733735932 | Str. Clopotarii Vechi, Nr. 5, sector 1 |
| 379. | Calif - Restaurant fast-food, Bucuresti | 0756200325 | Selari, Nr. 19, sector 3, |
| 380. | Caru\' cu Bere, Restaurant - Bucuresti | 0213137560; 0726cubere; 0726282373 | Stavropoleos , Nr. 3-5, Sector 3, Bucuresti |
| 381. | Distrikt 42 - Restaurant Bucuresti | 0213156699 | Str. Sfantul Dumitru, Nr. 3, sector 3 |
| 382. | Beraria Centrala - Restaurant Bucuresti | 0740959311 | Strada Nerva Traian, Nr. 2, Sector 3 |
| 383. | #Aici - Bar, Bucuresti | 0799124330 | Bulevardul Unirii, Nr 35, Sector 3, Bucuresti |
| 384. | Nomad Skybar - Restaurant, bar, club, Bucuresti | 0735448080 | Strada Smardan, Nr 30, sector 3 |
| 385. | La Ciurucuri - Restaurant cu specific international, Bucuresti | 0752850850 | Piata Valter Maracineanu, Nr 1-3, sector 1 |
| 386. | JO Lounge - Bar, Bucuresti | 0721811995 | Bd. Unirii, sector 3 |
| 387. | Fabrica de mancare - Restaurant cu supe si ciorbe, Bucuresti | 0744123123 | B-dul Unirii, nr. 31, sector 3 |
| 388. | Delicii Libaneze - Gelaterie, cofetarie, ciocolaterie Bucuresti | 0725115811 | Str. Franceza, Nr. 13, sector 3 |
| 389. | Nikos Greek Taverna, Restaurant - Bucuresti | 0730001008 (Restaurant); 0215999099 (Livrari) | B-dul Burebista, Nr 2 (Piata Alba Iulia), Sector 3, Bucuresti |
| 390. | Get Naked by Bordello - Restaurant pentru mic dejun si brunch, Bucuresti | 0748881086 | Bd. Unirii, intre Bd Dimitrie Cantemir si Bd Mircea Voda |
| 391. | Pajo Garden - Restaurant Bucuresti | 0751227228 | Bulevardul Basarabiei, Nt. 37-39, sector 2 |
| 392. | Restaurant Karta - Bucuresti | 0744391111 | Bd. Unirii, Nr. 22, sector 3 |
| 393. | Kilkenny Irish Pub - Bucuresti | 0751041110 | Str Franceza, Nr. 46-48, sector 3 |
| 394. | Pizza Hut - Bucuresti | 0740121903 | Bd. Regina Elisabeta, nr. 15-19, sector 3 , |
| 395. | Tuk Tuk - Restaurant cu specific thailandez, Bucuresti | 0311099670;0741422489 | Putul lui Zamfir, nr. 15, sector 1 |
| 396. | Bohemia Tea House, Ceainarie - Bucuresti | 0727333631 | Poiana Narciselor, Nr. 1 (vizavi de Conservator), Sector 1, Bucuresti |
| 397. | Gio Cafe - Bucuresti | 0730030757 | Bd. Burebista, Nr.2 , Sector 3, Bucuresti |
| 398. | Big Ben - Pub cu specific britanic, Bucuresti | 0756110089 | Str. Franceza, nr. 52, sector 3 |
| 399. | Bistro La Taifas, Restaurant - Bucuresti | 0212127788; 0723197156 | Gheorghe Manu, Nr. 16, Sector 1, Bucuresti |
| 400. | 7 Days - Restaurant cu terasa, organizari evenimente, Bucuresti | 0769042751; 0213241358 | Str. Campia Libertatii, Nr. 23, Sector 3, Bucuresti |
| 401. | The Dock - Lounge, Bucuresti | 0743680336 | Bulevardul Unirii, nr. 30, sector 3 |
| 402. | Efendi Doner - Restaurant fast-food, Bucuresti | 0730578472 | Str. Selari, nr. 2, sector 3 |
| 403. | Il Peccato, Restaurant - Bucuresti | 0213116767; 0765301300 | Franceza, Nr. 30,Sector 3, Bucuresti |
| 404. | Pata Negra - Restaurant cu specific spaniol, Bucuresti | 0734349076 | Strada Washington, Nr 11, sector 1 |
| 405. | Moon Brasserie - Restaurant Bucuresti | 0723093170 | Bulevardul Unirii, Nr. 33, sector 3 |
| 406. | Origo Coffee Shop - Bucuresti | 0757086689 | Lipscani, Nr. 9,Sector 3, Bucuresti |
| 407. | Zexe Restaurant romanesc - Bucuresti | 0722210844 | Oltetului, Nr. 30, Sector 2, Bucuresti |
| 408. | Elisabeta, Restaurant - Bucuresti | 0727703703; 0724323132 | Bd. Regina Elisabeta, Nr. 45, Sector, Bucuresti |
| 409. | Barocco Bar - Bucuresti | 0755028028; 0740114132 | Domnita Anastasia, Nr.10 (In spatele McDonalds Regina Elsiabeta), Bucuresti |
| 410. | Sara Green - Restaurant vegan, Bucuresti | 0774962246;0765191076 | Bulevardul Lascar Catargiu, Nr 43, Sector 1 |
| 411. | The Clique Bistro - Restaurant cu specific international, Bucuresti | 0784901000 | Splaiul Unirii, sector 3 |
| 412. | Zen Sushi - Restaurant japonez, Bucuresti | 0722161718 | Str. George Calinescu, nr. 15, Sector 1 |
| 413. | Energiea - Pub Bucuresti | 0736374432 | Str. Actor Ion Brezoianu, Nr. 4, Sector 5 |
| 414. | Paine si Vin - Bar cu vinuri, Bucuresti | 0755028448 | Str. Actor Ion Brezoianu, Nr. 4, sector 5 |
| 415. | Sublimmme - Restaurant vegetarian/vegan, Bucuresti | 0771135605 | Splaiul Independentei, NR 2F, sector 3 |
| 416. | Vis a Vis - Restaurant Bucuresti | 0722102223 | Bd. I. C. Bratianu, |
| 417. | White Horse Pub & Restaurant - Bucuresti | 0212312795; Fax.0212302151 | George Calinescu , Nr. 4A, Sector 1 , Bucuresti |
| 418. | White Horse Pub & Restaurant - Bucuresti | 0212312795 | George Calinescu , Nr. 4A, Sector 1, Bucuresti |
| 419. | King Rolls - Fast Food Bucuresti | 0747887206 | Calea Vitan, Nr. 17A, sector 3 |
| 420. | Nori Sushi - Restaurant cu specific japonez, Bucuresti | 0771179714 | Splaiul Unirii, nr 6, bl B3A, etaj 7-8 |
| 421. | Velluto - Gelaterie, Bucuresti | 0728991969 | Splaiul Independentei, Nr 2J, sector 3 |
| 422. | Biscotto - Cofetarie Bucuresti | 0212314099 | Strada Nicolae Constantinescu, Nr. 8, Sector 1 |
| 423. | La Taifas, Restaurant - Bucuresti | 0212127788; 0723197156 | Gheorghe Manu, Nr. 16, sector 1 , Bucuresti |
| 424. | Giorginio Cofetarie - Bucuresti | 0722434002 | Calea Dudesti, Nr. 129 (colt cu str. Scoala Ciocanul) Sector 3, Bucuresti |
| 425. | Ana Cofetarie Bucuresti | 0212300436; 0735554986 | Lt. Av. Radu Beller, Nr. 6 Sector 1, Bucuresti |
| 426. | Anika - Restaurant cu specific romanesc Bucuresti | 0726400148 | Str. Pictor Nicolae Tonitza, Nr.10, sector 3 |
| 427. | Encore Club - Bar specializat in bere | 0786247745 | Nicolae Tonitza, nr. 13, sector 3 |
| 428. | City Grill Restaurant - Bucuresti | 0722446766; 0724599886 | Bulevardul Lascar Catargiu, Nr. 56, Sector 1, Bucuresti |
| 429. | Trattoria Buongiorno - Restaurant cu specific italian, Bucuresti | 0722446766 | Bdul. Lascar Catargiu, Nr. 56, sector 1 |
| 430. | La Taifas, Bistro - Bucuresti | 0723197156; 0212127788 | Mihail Moxa, Nr. 12, Sector 1 , Bucuresti |
| 431. | Bistro 37-39 - Restaurant Bucuresti | 0731355939 | Bulevardul Basarabia, Nr. 37-39 , Sector 3 |
| 432. | Rocca by The Jar - Gastropub Bucuresti | 0770857841 | Str. Pictor Theodor Aman, Nr. 36, sector 1 |
| 433. | Sugarography - Atelier de dulciuri Bucuresti | Bucuresti, | |
| 434. | Cofetaria Macarons - Bucuresti | 0771425575 | Bucuresti, |
| 435. | Pe Baricade | Radu Voda, nr. 23A, sector 4 | |
| 436. | Za Lokal - Restaurant pentru mic dejun si brunch, Bucuresti | 0770557931 | Calea Victoriei, Nr 214, sector 1 |
| 437. | The Artist Restaurant - Bucuresti | 0728318871 | Calea Victoriei, Nr.147, sector 1 |
| 438. | Nuba Cafe - Restaurant pentru mic dejun si brunch, Bucuresti | 0736300000 | Street Locotenent Aviator Radu Beller, Nr. 13, sector 1 |
| 439. | Fratelli Social Club - Bucuresti | 0722115115; 0730878300 | Goldeni, Nr. 1-3, Sector 2, Bucuresti |
| 440. | Trattoria Adagio - Restaurant cu specific italian Bucuresti | 0311061067; 0751218482 | Bd. Mircea Voda, Nr. 34, sector 3 |
| 441. | Monte Carlo Cismigiu, Restaurant - Bucuresti | 0213131344 | Parc Cismigiu, Sector 1, Bucuresti |
| 442. | Monte Carlo Cismigiu, Restaurant - Bucuresti | 0213131344 | Parcul Cismigiu, Parcul Cismigiu, Sector 1 , Bucuresti |
| 443. | Horoscop, Restaurant, Pizzerie - Bucuresti | 0767562215 | Bd.Dimitrie Cantemir, Nr 2, Sector 4, Bucuresti |
| 444. | Dancing Lobster - Restaurant cu specific portughez, Bucuresti | 0770690886 | Str. Glodeni, Nr . 3 Cladirea C22, Sector 2, Bucuresti |
| 445. | Bone - Restaurant Bucuresti | 0733198200 | Calea Floreasca, Nr. 198, sector 1 |
| 446. | Stejarului 57 - Social Bar, Bucuresti | 0748701058 | Strada Fildesului, Nr. 2, sector 3 |
| 447. | Trenta Pizza - Bucuresti | 0219645 | Bd.Chisinau, Nr.5 , sector 2 , Bucuresti |
| 448. | Divan, Restaurant - Bucuresti | 0316404450 | Barbu Vacarescu, Nr.241A, Sector 1, Bucuresti |
| 449. | Coclinta Brasserie- Restaurant cu specific romanesc, Bucuresti | 0770238774 | Calea Victoriei, Nr. 153, sector 1 |
| 450. | B4 Market - Restaurant pentru mic dejun si brunch Bucuresti | 0724588591 | Strada Locotenent Aviator Radu Beller, Nr. 54, sector 1 |
| 451. | Gran Gelato Italiano - Gelaterie Bucuresti | 0730057909 | Str. Radu Voda, Nr 28 A, Sector 4 |
| 452. | Bellini Garden - Restaurant cu specific italian, Bucuresti | 0722100111; 0314278776 | str. General Henri Mathias Berthelot, nr. 44, sector 1 |
| 453. | Velveto Ballrooms - Centru pentru evenimente Bucuresti | 0752182255; 0734810385; 0764118347 | Str. Oltetului, Nr. 30, sector 2 |
| 454. | Sfeir Lebanese Cuisine - Bar & Grill | 0722311805 | Mircea Voda, Nr. 36, sector 3 |
| 455. | Din Fu - Restaurant chinezesc Bucuresti | 0729313338; 0213260127 | Str. Alexandru Moruzzi, Nr. 76A, Sector 3 |
| 456. | MagiCake - Atelier de dulciuri artizanale, Bucuresti | 0772072072 | Strada Alexandru Moruzzi, Nr. 4A, sector 3 |
| 457. | Buenasado SteakHouse - Restaurant Bucuresti | 0747865210 | Strada Glodeni, Nr. 3, sector 2 |
| 458. | Green Bistro - Terasa Bucuresti | 0728237731 | Parcul Gheorghe Patrascu, |
| 459. | Damascus Palace - Restaurant Bucuresti | 0746696666; 0756616666 | Bld. Basarabia, Nr. 98, sector 2, |
| 460. | Arome - Restaurant vegetarian/vegan, Bucuresti | 0749109639 | Luigi Cazzavillan, Nr. 25, sector 1 |
| 461. | Sham Sweet, Cofetarie - Bucuresti | 0748242455 | Bd. Basarabia, Nr.98, Sector 3, Bucuresti |
| 462. | Bellini Pizza - Bucuresti | 0314278776 | General Henri Matias Berthelot, Nr. 44,Sector 1, Bucuresti |
| 463. | Armonia Cofetarie - Bucuresti | 0213244020 ; 0722616180 | Campia Libertatii, Nr. 46 , bl. 52 , Parter , Sector 3, Bucuresti |
| 464. | Taverna Baba Novac, Restaurant - Bucuresti | 0771544334; 0760010784 | Intrarea Baba Novac, Nr. 3, Sector 3, Bucuresti |
| 465. | La Sediu - Restaurant Bucuresti | 0760729007 | Campia Libertatii, Nr. 54, sector 3 |
| 466. | Edo Sushi - Restaurant cu specific japonez, Bucuresti | 0735111095 | Stirbei Voda, Nr 84A, sector 1 |
| 467. | 5ENSI by BeanZ Cafe - Bucuresti | 0733888555 | Bd. Aviatorilor, Nr. 8A, sector 1, Bucuresti |
| 468. | J\'ai Bistrot - Gastropub, Bucuresti | 0790229922 | Calea Grivitei, nr. 55, sector 1 |
| 469. | Mateo Fast Food | 0728199827; 0752777333; 0314362033 | Strada Dristorului, Nr. 87, sector 3 |
| 470. | Margineni, Restaurant - Bucuresti | 0733986867; 0212405631; 0720679350 | Sos. Fundeni , Nr. 185, Sector 2, Bucuresti |
| 471. | Qian Bao, Restaurant chinezesc - Bucuresti | 0722622865; 0314306616 | Intrarea Baba Novac, Nr. 2, Sector 3, Bucuresti |
| 472. | Gili Pizza - Bucuresti | 0213242387 | Str. Baba Novac, Nr. 9-11, Sector 3 |
| 473. | La Machedoni - Restaurant cu specific traditional romanesc si american | 0721512236 | Anastasie Panu, nr. 10, sector 3 |
| 474. | Amnezia Caffe - Bistrou romanesc Bucuresti | 0770917737; 0724140931 | Str. Sf. Apostoli, Nr. 21, sector 4, |
| 475. | Springtime, Restaurant - Bucuresti | 0742224736; 0742224743; 0742224739 | Piata Victoriei, Bl. A6 Sector 1, Bucuresti |
| 476. | Strada Rustica - Pizzerie Bucuresti | 0213248303; 0768676765; 0728886914 | Str. Baba Novac, Nr 9, Complex Rucar, Sector 3 |
| 477. | Tulin, Restaurant libanez - Bucuresti | 0213144001; 0762212675 | Pictor Constantin Stahi, Nr. 2, Sector 1, Bucuresti |
| 478. | Nido Kitchen & Wine - Restaurant cu specific international, Bucuresti | 0374004488 | Aleea Alexandru, Nr. 35 |
| 479. | Hanul Berarilor Interbelic, Restaurant - Bucuresti | 0213368009; 0729400800 | Poenaru Bordea , Nr. 2, Sector 5, Bucuresti |
| 480. | Bistro raw vegan, Restaurant - Bucuresti | 0726605501 | Transilvaniei, Nr. 11, Sector 1, Bucuresti |
| 481. | Friends Pub - Bucuresti | 0728197287 | Bucovina , Nr. 6, Sector 3, Bucuresti |
| 482. | Efes - Restaurant cu specific turcesc, Bucuresti | 0737018590 | Bulevardul Nerva Traian, Nr. 17 - 19, sector 3 |
| 483. | Resto Aperto, Restaurant - Bucuresti | 0738741118 | Calea Vitan, Nr.55-59 (Bucuresti Mall) Sector 3, Bucuresti |
| 484. | Resto Aperto, Restaurant - Bucuresti | 0738741118 | Calea Vitan , Nr.55-59(Bucuresti Mall) Sector 3, Bucuresti |
| 485. | Pizza Apetito - Bucuresti | 0770225215 | Eufrosina Popescu, Nr. 57, sector 3, |
| 486. | Sabatini Pizza, Restaurant - Bucuresti | 0314266069; 0737148520; 0784699751 | B-dul Basarabia, Nr. 108, Bucuresti |
| 487. | Old Kitchen - Restaurant Bucuresti | 0732773537 | Str. Sfintii Voievozi, Nr. 13, Sector 1 |
| 488. | Black Habit - Cafenea | 0770357382 | Calea Grivitei, Nr. 77, sector 1 |
| 489. | Trattoria la Nave - Restaurant Bucuresti | 0743454626 | Sos. Pantelimon, Nr. 264, Sector 2 |
| 490. | Kral CigKofte - Restaurant vegan, Bucuresti | 0725025700 | Soseaua Andronache, Nr. 5, sector 2 |
| 491. | The Owl Cocktail House - Bar specializat in cocktailuri, Bucuresti | 0743260923 | str. Stirbei Voda, Nr. 104-106, sector 1 |
| 492. | Mercato Kultur - Restaurant cu specific international, Bucuresti | 0759134767 | Gheorghe Demetriade, nr. 6-10, Aviatorilor, sector 1 |
| 493. | Sardin - Restaurant cu specific italian, Bucuresti | 0729520111 | Bulevardul Mircea Voda, Nr. 39H sector 3, Bucuresti |
| 494. | Ergo - Restaurant vegan, Bucuresti | 0770747559 | Bd. Unirii, Nr 5, sector 4 |
| 495. | Hanul Hangitei, Restaurant - Bucuresti | 0744827323; 0758043355 | Bd. Marasesti, Nr.70-72, Sector 4 , Bucuresti |
| 496. | Casa Dragonului, Restaurant Bucuresti | 0213202666; 0761929019 | Calea Dudesti, nr. 198, sector 3, Bucuresti |
| 497. | PengYou - Restaurant specific chinezesc Bucuresti | 0787748272 | Str. Occidenului, Nr. 11, Sector 1 |
| 498. | KALI - Restaurant cu bufet, Bucuresti | 0725988889 | Strada Buzesti, Nr. 71, Sector 1 |
| 499. | Fayn Urban Eatery - Restaurant, Bucuresti | 0723257692 | Strada Buzesti, nr. 71, sector 1 |
| 500. | Victorita Pescarita - Restaurant pescaresc, Bucuresti | 0764400437 | Sos Andronache, Nr 17, sector 2 |
| 501. | Erra - Restaurant cu specific european modern, Bucuresti | 0734983984 | Str. Constantin Nottara, Nr 13, sector 3 |
| 502. | ChefBox - Restaurant, Bucuresti | 0728800528 | Buzesti, Nr. 57-59, sector 1 |
| 503. | Babylon Fast Food - Bucuresti | 0799666267 | Soseaua Pantelimon, nr. 255, sector 2 |
| 504. | Casa Tosca, Cofetarie - Bucuresti | 0213461297 | Bd. Camil Ressu, Nr. 1, Sector 3, Bucuresti |
| 505. | Quartier - Restaurant, Bucuresti | 0758222244 | Bd. Mircea Voda, Nr. 43, sector 3 |
| 506. | Krishna Caffe - Cafenea Bucuresti | 0729745988;0740133254 | Bd. Mihail Kogalniceanu, Nr. 17, sector 5, |
| 507. | La Dolceria, Cofetarie - Bucuresti | 0724315256 | Basarabia, Nr.55, M22, Sector 3, Bucuresti |
| 508. | Haute Pepper - Restaurant cu specific international, Bucuresti | 0726284280 | Bd. Unirii, nr 2, sector 4 |
| 509. | Edessa - Restaurant cu specific turcesc | 0735636363;0723656325 | Soseaua Colentina, Nr. 281A, sector 2 |
| 510. | SupaDupa - Restaurant cu supe si ciorbe, Bucuresti | 0739344281 | Strada Popa Tatu, Nr. 94, sector 1 |
| 511. | Madame B - Tea & Pancake House, Bucuresti | 0746030670 | Splaiul Unirii, nr.49,sector 3, |
| 512. | Coppa - Bar cu vinuri si cafea, Bucuresti | 0741594545; 0756080004 | Bd. Nicolae Titulescu, nr. 3, sector 1 |
| 513. | Jaristea, Restaurant - Bucuresti | 0721961936 ; 0775609233 ; 0770948868 | George Georgescu, Nr. 50-52, Sector 4, Bucuresti |
| 514. | Arancini - Restaurant cu specific sicilian | 0756490490 | Str. Papadiei, Nr. 16-18, sector 3 |
| 515. | Papaciu - Bistro, Bucuresti | 0724200070; 0724955952 | Strada Complexului, Nr 3A, sector 3 |
| 516. | Monza, Trattorie si Restaurant - Bucuresti | 0722661166; 0769200002; 0724802802 | Baba Novac, Nr. 25, Sector 3, Bucuresti |
| 517. | Tarab - Restaurant cu specific libanez, Bucuresti | 0774411111 | Strada Nerva Traian, Sector 3 |
| 518. | Trofic - Restaurant pentru mic dejun si brunch | 0751276600 | Bd. Mircea Voda, nr. 52, sector 3 |
| 519. | Refill - Bistro cu specific international, Bucuresti | 0786372856 | Bulevardul Mihalache, Nr. 12, sector 1 |
| 520. | Human Coffee - Cafenea Bucuresti | 0734744429 | Str. Elena Cuza, Nr. 8, Sector 4 |
| 521. | La Matache Restaurant (comenzi online si livrari la domiciliu) | 0213107327; 0213107337; 0213118888 | P-ta. Dr. Haralambie Botescu, Nr. 2, Sector 1, Bucuresti |
| 522. | Angeline Cake Boutique - Cofetarie, Bucuresti | 0753652144 | Str. Doctor Iacob Felix, Nr. 59, Sector 1 |
| 523. | The Mark - Restaurant pub Bucuresti | 0758505500 | Calea Grivitei, Nr. 84-98, sector 1 |
| 524. | The Temple Social Pub - Bucuresti | 0723469118 | Bd. Marasesti, Nr. 71-73 sector 4 |
| 525. | Aleppo Sweet - Cofetarie specializata in briose, Bucuresti | 0731800000; 0767609329 | Soseaua Andronache, nr. 53, sector 2 |
| 526. | Trattoria Verdi, Restaurant italian - Bucuresti | 0212225098 ; 0731333411 | Bd. Aviatorilor, Nr. 19, Sector 1, Bucuresti |
| 527. | Casa Diham - Restaurant Bucuresti | 0213406006; 0727171220 | Bd. Nicolae Grigorescu, Nr. 1 A, Sector 3 |
| 528. | Monza, Trattorie si Restaurant - Bucuresti | 0724802802; 0722661166; 0769200002 | Baba Novac, Nr. 25, Sector 3, Bucuresti |
| 529. | Mio Cuisine - Restaurant & Home Delivery, Bucuresti | 0743287437 | Pictor Barbu Iscovescu, Nr. 19 ,Sector 1, Bucuresti |
| 530. | Old Mike Pub si Restaurant - Bucuresti | 0787366166 | Morilor, Nr. 46 Sector 3, Bucuresti |
| 531. | Casa Doina, Restaurant - Bucuresti | 0212226717; 0745009009 | Soseaua. Kiseleff , Nr. 4, Sector 1, Bucuresti |
| 532. | Hambar Brasserie - Bucuresti | 0212226422;0787896547 | Aviatorilor, nr. 31, sector 1 |
| 533. | Casa Doina, Restaurant - Bucuresti | 0745009009; 0212226717; 0212223179 | Soseaua Pavel D. Kiseleff, Nr. 4, Sector 1, Bucuresti |
| 534. | Club Floreasca, Restaurant - Bucuresti | 0213198177; 0755085967; Fax 0212307979 | Mircea Eliade, Nr. 1, Sector 1, Bucuresti |
| 535. | Club Floreasca Restaurant - Bucuresti | 0213198177; 0755085967; Fax 0212307979 | Mircea Eliade, Nr. 1, Sector 1, Bucuresti |
| 536. | Gedi, Restaurant - Bucuresti | 0371119901; 0734207029 | Bd. Basarabia, Nr. 176 B, Sector 2, Bucuresti |
| 537. | The Soup Carousel - Restaurant cu supe si ciorbe, Bucuresti | 0725356907 | Sos. Nicolae Titulescu, Nr. 12, sector 1 |
| 538. | Claus, Cofetarie Bucuresti | 0212220218; 0721264900 | Bd. Banu Manta, Nr. 21A, Sector 1, Bucuresti |
| 539. | Ivan\'s bar & grill - Restaurant traditional, Bucuresti | 0723893545;0737276284 | Bulevardul Basarabia, Nr. 170 - 174, sector 2 |
| 540. | La Tramvai - Terasa Bucuresti | 0729166021 | Parcul Alexandru Ioan Cuza (I.O.R). intersectie Campia Libertatii, sector 3 |
| 541. | Casa Morarilor - Restaurant, Bucuresti | 0765064409 | Soseaua Morarilor, Nr. 2 |
| 542. | Godai - Restaurant cu specific asiatic fusion, Bucuresti | 0786030888; 0785300555 | Str.Fabrica de Glucoza, nr. 7, sector 2 |
| 543. | Casa Victor, hotel si Restaurant - Bucuresti | 0212225723; 0733953910 | Emanoil Porumbaru, Nr. 44, Sector 1 , Bucuresti |
| 544. | Fior di Latte - Restaurant cu specific italian, Bucuresti | 0784420555 | Bulevardul Primaverii, Nr. 19-21 |
| 545. | Zexe Braserie - Bucuresti | 0786778777 | B-dul Aviatorilor, Nr. 65, Sector 1 |
| 546. | Osho - Restaurant cu fripturi, Bucuresti | 0758758750 | Bulevardul Primaverii, Nr. 19-21, sector 1 |
| 547. | Grivita - Pub&Grill, Bucuresti | 0724748482 | Calea Grivita, Nr. 130 (Parter Eurohotels), |
| 548. | Pain Plaisir - Patiserie Bucuresti | 0745645555 | Strada Barbu Delavrancea, Nr. 1, sector 1 Pain Plaisir Kiseleff |
| 549. | Bolta Rece Restaurant - Bucuresti | 0212227258; 0722527077 | Popa Savu, Nr. 53-55, Sector 1, Bucuresti |
| 550. | Bolta Rece, Restaurant, Terasa - Bucuresti | 0212227258; 0722527077 | Popa Savu, Nr..53- 55, Sector 1, Bucuresti |
| 551. | Ana Pan Cofetarie - Bucuresti | 0216373536; 0730262726; 0212332241 | Stirbei Voda, Nr. 166,Sector 1, Bucuresti |
| 552. | Poesia - Restaurant cu specific mediteranean, Bucuresti | 0744502000 | Bulevardul Aviatorilor, Nr. 76, sector 1 |
| 553. | Cartofisserie - Restaurant cu bufet Bucuresti | 0726330960;0740215433 | Liviu Rebreanu, Nr. 4 (ParkLake Shopping Center Mall) |
| 554. | Le Bab - Restaurant cu specific oriental, Bucuresti | 0743179555 | Charles de Gaulle, Nr. 3, sector 3-1, |
| 555. | Bravu Burger & Crepes - Restaurant fast-food, Bucuresti | 0722118100 | Soseaua Mihai Bravu, Nr 452 - 460, sector 2 |
| 556. | Old School, Restaurant - Bucuresti | 0744105445; 0745110362 | Calea Plevnei, Nr. 61, Sector 6, Bucuresti |
| 557. | Thalia - Restaurant cu bucatarie internationala | 0219993 | Strada Cuza Voda, Nr. 147, sector 4 |
| 558. | Gloria Jean\'s Coffees Romania | 0760107884 | Bd.Liviu Rebreanu, nr. 4, sector 3 - Mall Park Lake, Bucuresti |
| 559. | Cofetariile Georgy\'s, Cofetarie,torturi - Bucuresti | 0733060230; 0730618742 | Ramnicu Valcea, Nr. 14, Sector 3, Bucuresti |
| 560. | Sare si Piper - Restaurant cu specific italian, Bucuresti | 0744663451 | Str. Viorele, nr. 26, zona Timpuri Noi, sector 4, Bucuresti |
| 561. | Si-Lounge - Restaurant, Bucuresti | 0799919911 | Str. George Constantinescu, Nr 2-4, sector 2 |
| 562. | La Samuelle - Restaurant cu specific international, Bucuresti | 0730173180 | Piata Charles de Gaulle, Nr. 3-5, Sector 1 |
| 563. | Ribs Bar&Grill - Restaurant american, Bucuresti | 0720788818 | Str. Constantin Brancusi, Nr. 13, Complex Potcoava, sector 3 |
| 564. | Club B52 - Bucuresti | 0753315563 | 11 Iunie, N. 50, Sector 5, Bucuresti |
| 565. | Gustul Pasiunii Cofetarie - Bucuresti | 0728941816 | Racari, Nr. 5, sector 3, Bucuresti |
| 566. | Seneca Anticafe - Cafenea, Bucuresti | 0720331100 | Strada Arhitect Ion Mincu, nr. 1, sector 1 |
| 567. | Tosca Food - Pizzerie Bucuresti | 0756435785;0757170957 | Strada Intrarea Muncii, Nr. 23, sector 3 |
| 568. | Mesogios, Restaurant - Bucuresti | 0722200232 | Helesteului, Nr. 30, Sector 1, Bucuresti |
| 569. | Fabrica, Club,Pub, Tersa - Bucuresti | 0753227422; 0753315563; 0749116508 | 11 iunie, Nr,50, Sector 5, Bucuresti |
| 570. | Nor Sky Casual Restaurant - Bucuresti | 0310056056 | Barbu Vacarescu, Nr. 201, Sector 2, Bucuresti |
| 571. | Pizza Bar - Pizzerie, Bucuresti | 0746013623 | Lanariei, nr. 5, sector 4 |
| 572. | Ubuntu Coffee - Terasa, Bucuresti | 0758635771 | Splaiul Unirii, Nr. 195, sector 3 |
| 573. | Grapes - Bar cu vinuri, Bucuresti | 0770463287 | Bdul. Marasesti, nr.2B, sector 4 |
| 574. | Bouzouki - Restaurant specific grecesc, Bucuresti | 0787528003 | Bulevardul Sincai Gheorghe, Nr. 3, sector 4 |
| 575. | De Cartier - Restaurant de tip familial, Bucuresti | 0213305556 | Str. Viorele, Nr. 57A, sector 4 |
| 576. | Tabiet 41 - Restaurant, Bucuresti | 0314260278 | Strada Viorele, nr.59, sector 4 |
| 577. | Chef Gabrielle - Restaurant, Bucuresti | 0766066406 | Strada Tomis, Nr. 5A, Sector 3 |
| 578. | Cofetaria Ina - Bucuresti | 0723300213 | Str. C-tin Radulescu Motru, Nr. 6, Sector 4 |
| 579. | Don Daniel Pizza | 0737444999; 0766771117; Tel/Fax: 0212225034 | Bd. Ion Mihalache, Nr. 60, Sector 1, Bucuresti |
| 580. | Contesa, Restaurant - Bucuresti | 0731831891; 0722244214; 0213317171 | Sibiel, Nr. 5, sector 4, Bucuresti |
| 581. | Bocca Lupo - Restaurant cu specific italian, Bucuresti | 0314050050 | Strada Dr. Lister, nr. 1, sector 5 |
| 582. | B3ton - RestoBar, Bucuresti | 0217963684 | Bulevardul Marasesti, Nr. 2B, sector 4 |
| 583. | So! Coffee, Cafenea - Bucuresti | 0372285718; 0314078250 | Piata Garii de Nord, Nr.1-5 (In fata peroanelor 4-5), Sector 1, Bucuresti |
| 584. | L\'Amande - Deserturi fara gluten, Bucuresti | 0744639549 | Str. Lanariei, Nr. 93-95, sector 4 |
| 585. | Piccolo Mondo, Restaurant - Bucuresti | 0722205020; 0212225755 | Clucerului, Nr. 9, Sector 1 , Bucuresti |
| 586. | Cald si Bun, Catering - Bucuresti | 0212339457; 0737526215 | Hatmanul Arbore, Nr. 11, Sector 1, Bucuresti |
| 587. | La Cristi - Fast Food si catering, Bucuresti | 0729266850 | Strada Frosa Sarandy, Nr. 17, Sector 1 |
| 588. | Kicen - Ciorbe de casa, Bucuresti | 0751012221 | str. Dr. Staicovici, nr. 43, sector 5 |
| 589. | Piccolo Mondo, Restaurant - Bucuresti | 0722205020; 0212225755 | Clucerului , Nr. 9, Sector 1 , Bucuresti |
| 590. | The Place Pub - Pub, Bucuresti | 0743951281 | Mr. Alexandru Campeanu, nr.36, sector 1 |
| 591. | Bellagio Villa Restaurant - Bucuresti | 0213440661; 0771120177 | Vrejului, Nr. 21, Sector 3, Bucuresti |
| 592. | Parliament, Restaurant - Bucuresti | 0214119990; 0214119991; 0721332397 | Izvor , Nr. 106, Sector 5 , Bucuresti |
| 593. | Patiseria Tineretului - Bucuresti | 0761116622 | Bd. Gheorghe Sincai, Nr 2A, sector 4 |
| 594. | Parliament, Restaurant - Bucuresti | 0214119990; 0214119991; 0721332397 | Str. Izvor, Nr. 106, Sector 5 , Bucuresti |
| 595. | Mezze, Restaurant libanez - Bucuresti | 0213116633; 0720044469 | Mircea Vulcanescu, Nr.153 B,Sector 1 , Bucuresti |
| 596. | Rowa Garden - Locatie pentru spectacole si evenimente | 0766666600 | Parc Herastrau, |
| 597. | Mahala - Restaurant Bucuresti | 0729003002 | Calea Rahovei, Nr. 147- 153, sector 5 |
| 598. | Costelaria, Restaurant - Bucuresti | 0314055095 | Calea Rahovei, Nr. 147-150 , Sector 5, Bucuresti |
| 599. | Vivo Fusion Food Bar - Restaurant cu specific american, Bucuresti | 0787709154 | Strada Calea Floreasca, numarul 246, cladirea Globalworth Tower, parter, sector 1 |
| 600. | Dulce a la Radu - Cofetarie | 0726465690 | Bucuresti, |
| 601. | Ublo Bistro - Bucuresti | 0743447476 | Clucerului, Nr. 54, sector 1 |
| 602. | Cofetaria Zora - Bucuresti | 0771119563 | Strada Uranus, Nr. 100, Sector 5 |
| 603. | Mazzaj Cafe - Restaurant cu specific libanez, Bucuresti | 0757292398 | Splaiul Unirii, Nr. 162, sector 4 |
| 604. | Baroque Events & Garden - Restaurant Bucuresti | 0726350802 | Calea Rahovei, Nr. 145, Sector 5 |
| 605. | KLANdestin - Restaurant Bucuresti | 0731954592 | Str. Liviu Rebreanu, Nr. 6A, Sector 3 |
| 606. | Flair Angel - Bar specializat in cocktailuri, Bucuresti | 0769771991 | Calea Rahovei, Nr. 147-153, sector 5 |
| 607. | TrickSHOT Food Market - Restaurant Bucuresti | 0755056556;0755056558 | Bd. Dimitrie Pompeiu, 9-9A, Iride Business Park, cladirea 20, sector 2 |
| 608. | Zaitoone - Restaurant cu specific libanez, Bucuresti | 0737299900;0376203741;0376203742 | Strada Nicolae Caramfil, Nr.2, sector 1 |
| 609. | Hangar by Ground Zero - Pub, Bucuresti | 0742642749 | Soseaua Pipera, Nr 44 |
| 610. | Gastronomika - Restaurant cu specific international, Bucuresti | 0737940512 | Str. Ion Neculce, Nr. 63, Sector 1 |
| 611. | Cucina di casa - Pizzerie, Bucuresti | 0735868318 | Calea Vacaresti, Nr. 230, sector 4 |
| 612. | Volare - Pizzerie, Bucuresti | 0730622600 | Calea Vacaresti, Nr.203B, sector 4 |
| 613. | Dodo Pizza - Bucuresti | 0760263636 | Sos. Pipera, Nr. 44, Sector 1 |
| 614. | TAP Pizza - Pizzerie, Ilfov | 0771382184 | Strada Doinei, 48, Sat Fundeni, Comuna Dobroesti, judetul Ilfov |
| 615. | Suzana Ribs & Wings - Restaurant cu specialitati texane, Bucuresti | 0785444466 | Calea Rahovei, Nr. 147-153, Sector 5, Palatul Bragadiru |
| 616. | Restaurant Paunita - Bucuresti | 0724145707 | Bulevardul Nicolae Grigorescu, Nr. 31A, sector 3 |
| 617. | Jadoo Restaurant - Bucuresti | 0724365583; 0212220502 | Nicolae Racota, Nr. 3, Sector 1, Bucuresti |
| 618. | Jadoo Restaurant - Bucuresti | 0212220502; 0724365583 | Nicolae Racota, Nr. 3, Sector 1, Bucuresti |
| 619. | Ressu Restaurant & Lounge - Bucuresti | 0723774485; 0731607646; | B-dul Camil Ressu, Nr. 70 A, Sector 3, Bucuresti |
| 620. | Beirut Restaurant - Bucuresti | 0722302320; Tel/Fax: 0212220169 | Nicolae Racota, Nr. 3A, Sector 1, Bucuresti |
| 621. | Hop Garden - Restaurant cu preparate la gratar, Bucuresti | 0770448443 | Splaiul Unirii, Nr. 225, sector 3 |
| 622. | Taverna Racilor - Restaurant pescaresc Bucuresti | 0729825528 | Parc Herastrau, Nr. 2, sector 1, |
| 623. | Il Cantuccio, Restaurant - Bucuresti | 0722572957 (Sef unitate: Baieticu Ioana); 0735281669 (Sef unitate: Otvos Gabriela); 0724540839 (Manager: Florea Valentin) | Fabrica de Chibrituri , Nr. 2, Rond Autogara Filaret, sector 4, Bucuresti |
| 624. | Il Cantuccio, Restaurant - Bucuresti | 0722572957 (Sef unitate: Baieticu Ioana); 0735281669 (Sef unitate: Otvos Gabriela); 0724540839 Manager: Florea Valentin) | Fabrica de Chibrituri, Nr. 2, Rond Autogara Filaret, sector 4, Bucuresti |
| 625. | Pescarus, Restaurant - Bucuresti | 0731330034; 0731491849 | Aleea Pescarus, Parcul Herastrau), Sector 1 , Bucuresti |
| 626. | Pescarus, Restaurant - Bucuresti | 0731330034; 0731491849 | Aleea Pescarus (Parcul Herastrau), Sector 1 , Bucuresti |
| 627. | La Calinescu - Restaurant cu specific romanesc, Bucuresti | 0788472725; 0213310750 | Strada Piscului, Nr. 16, sector 4 |
| 628. | Irina Casa cu Prajituri, Cofetarie - Bucuresti | 0731323192 | Liviu Rebreanu, Nr.12, bl. K2, Cartier Titan Sector 3, Bucuresti |
| 629. | BigBoy - Pizzerie Bucuresti | 0725570450; 0760925495 | Soseaua Vergului, Nr. 8, Sector 3 |
| 630. | Jazz Book - Club de jazz si blues, Bucuresti | 0752206746 | Doctor Carol Davila, Nr. 1, Cotroceni, sector 5 |
| 631. | Casa Brancoveanu Restaurant - Bucuresti | 0724640000; 0314245890; 0762643010 | Caramidarii de Jos, Nr.14, Sector 5, Bucuresti |
| 632. | La petite bouffe - Cafenea, Bucuresti | 0733669344 | Strada Doctor Louis Pasteur, nr 38, sector 5 |
| 633. | Bread & Spices - Restaurant pentru mic dejun si brunch | 0770695416; 0314147777 | Soseaua Pipera, Nr. 4, sector 1 |
| 634. | O sole Mio - Pizzerie Bucuresti | 0212403089 | Sos. Colentina, Nr. 414, Sector 2 |
| 635. | Pasta Del Popolo - Restaurant cu specific italian, Bucuresti | 0752010583 | Zagazului, 21-25, sector 1 |
| 636. | Hard Rock Cafe Bucharest | 0212066261; 0754400900 | Sos. Kiseleff, Nr. 32C, Sector 1, Bucuresti |
| 637. | Maria & Constance Cofetarie - Bucuresti | 0212330360 ; 0787512520 | Soseaua Pipera, Nr. 5, bl. 1E, Parter, Sector 1, Bucuresti |
| 638. | Aristocrat Events Hall - Organizare evenimente - Bucuresti | 0733880757; 0733880756 | Soseaua Pipera, Nr. 48, Sector 2, Bucuresti |
| 639. | Restaurant La Senna - Bucuresti | 0212333738; 0756199774 | Bulevardul Nicolae Caramfil, Nr 33, sector 1 |
| 640. | Kvala - Restaurant grecesc, Bucuresti | 0726731663 | str Louis Pasteur, nr 63, sector 5 |
| 641. | Allegro Restaurant - Bucuresti | 0751055536; 0744649177 | Bd. Nicolae Grigorescu, Nr. 20A, Sector 3, Bucuresti |
| 642. | Vio Cofetarie - Bucuresti | 0213412082 | Bd. Nicolae Grigorescu, Nr. 20, Sector 3, Bucuresti |
| 643. | Triana - Cofetarie, Bucuresti | 0740302404 | Soseaua Orhideelor, Nr. 46, sector 1 |
| 644. | Shaormeria Titan - Fast food Bucuresti | 0771332861; 0755864686 | Bd. Nicolae Grigorescu, Nr. 20, Sector 3 |
| 645. | Burgeria Cotroceni - Restaurant fast-food, Bucuresti | 0314214777 | Soseaua Cotroceni, Nr. 9, sector 6 |
| 646. | Ivan Pescar & Scrumbia Bar - Restaurant pescaresc, Bucuresti | 0729384828 | Str. Uranus, nr 150, cladirea The Ark, parter, sector 5 |
| 647. | Alouette - Restaurant cu specific international, Bucuresti | 0746339793 | Splaiul Unirii, Nr. 168, sector 4, |
| 648. | Pizzeria Florina - Bucuresti | 0219285 | Strada Nicolae Pascu, nr.1A, sectorul 3 |
| 649. | Casa Dante - Restaurant cu specific italian, Bucuresti | 0314358069 | Strada Rotunda, nr 4C, sector 3 |
| 650. | Derby Pub & Restaurant - Bucuresti | 0214108545 | Bd. Eroilor Sanitari , Nr. 49A,sector 5, Bucuresti |
| 651. | Isoletta, Restaurant - Bucuresti | 0212322188; 0212323223 | Sos. Nordului, Nr. 7-9, Sector 1, Bucuresti |
| 652. | Bike Boutique and More - Magazin, terasa, service, Bucuresti | 0752405152 | Strada Profesor Doctor Victor Babes, Nr. 2, sector 5 |
| 653. | Graffiti Urban Food, Bucuresti | 0749433433; 0733695443; 0769180180 | Str.Carol Davila, Nr. 56A, Sector 5, Bucuresti |
| 654. | Dines, Restaurant evenimente - Bucuresti | 0213362474; 0723634741; 0727968325 (Predescu Constantin) | Cutitul de Argint, Nr.12 (langa Arenele Romane) Sector 4, Bucuresti |
| 655. | Fast Food Plevnei - Restaurant Fast Food Bucuresti | 0761046444 | Calea Plevnei, Nr. 230, sector 1 |
| 656. | Restaurantul LaLicurici - Organizare evenimente Bucuresti | 0736386488 | Soseaua Colentina, Nr. 430, sector 2 |
| 657. | Fabio Pizza - Bucuresti | 0372188330 | Turda, Nr. 117, Sector 1, Bucuresti |
| 658. | Ceainaria Infinitea | 0723175300 | Str. Dr. Grigore Romniceanu, Nr.7, ap.2, sector 5 |
| 659. | Jerry\'s Pizza - Bucuresti | 0373303030 | Calea Vitan, Nr. 236, Sector 3, Bucuresti |
| 660. | Stadio Restaurant - Bucuresti | 0733444800 | Soseaua Nordului , Nr.7-9, Parcul Herastrau, Sector 1, Bucuresti |
| 661. | Stadio Park, Restaurant - Bucuresti | 0733444800 | Soseaua Nordului, Nr.7-9, Parcul Herastrau, Sector 1, Bucuresti |
| 662. | Paradis, Cofetarie - Bucuresti | 0724398400 | Sos Pantelimon, Nr.354,Bloc 2, Sector 2, Bucuresti |
| 663. | Complex Herastrau, Restaurant - Bucuresti | 0212322128 (Restaurant); 0786778800 (Evenimente); 0729080686 (Hotel) | Soseaua Nordului , Nr. 7-9, Sector 1, Bucuresti |
| 664. | Turkish Clasis - Restaurant, Bucuresti | 0721503011 | Sos Viilor, nr.27, sector 5 |
| 665. | Vibes Cafe - Restaurant terasa Bucuresti | 0788221270 | Liviu Rebreanu, Nr. 29, Sector 3 |
| 666. | Lucky Point Pub | 0742181263 | Splaiul Independentei, 204,sect.6, Bucuresti |
| 667. | Alba, Restaurant - Bucuresti | 0213404491; 0722820287 | Liviu Rebreanu , Nr. 29 A, Sector. 3, Bucuresti |
| 668. | Myti Pizza - Pizzerie, Bucuresti | 0734378358; 0744478578 | Bulevardul 1 Decembrie, Nr 7 D, sector 3 |
| 669. | Camizo, Restaurant - Bucuresti | 0733018778 | Prisaca Dornei, Nr.10A, Sector 3, Bucuresti |
| 670. | Seoul - Restaurant cu specific coreean Bucuresti | 0216672119; 0725498366 | Str. Lt. Av. Mircea Zorileanu, Nr. 89, sector 1 |
| 671. | Citylicious - Restaurant Bucuresti | 0771707709 | Bld Tudor Vladimirescu, Nr. 29, sector 5 |
| 672. | Mandaloun - Restaurant specific libanez, Bucuresti | 0314336557; 0747020469 | Strada Nicolae G. Caramfil, Nr. 89, Sector 1 |
| 673. | Cherhanaua Ancora - Restaurant pescaresc, Bucuresti | 0721335555 | Soseaua Nordului, Nr. 7-9, sector 1 |
| 674. | The Gate, Restaurant si Cafenea Bucuresti | 0728434283; 0314259425 | Aleea Primo Nebiolo , Nr. 1, (vis-a-vis Agronomie), sector 1, Bucuresti |
| 675. | Casa Mara, Restaurant evenimente - Bucuresti | 0722675766; 0768793155 | Primo Nebiolo , Nr.1, Sector 1, Bucuresti |
| 676. | Murad - Cafe-Restaurant, Bucuresti | 0725777000 | Str. Panait Istrati, nr, 101, sector 1 |
| 677. | Il Capo, Restaurant italian - Bucuresti | 0314121121 | Virgil Madgearu, Nr.11, Sector 1, Bucuresti |
| 678. | Herastrau, Restaurant - Bucuresti | 0786042404; 0212322182 | Soseau Nordului, Nr. 7-9, Sector 1, Bucuresti |
| 679. | Coin Vert - Restaurant cu specific libanez, Bucuresti | 0721331465; 0744518200 | Str. Sandu Aldeea, nr. 75, sector 1 |
| 680. | Passione - Restaurant Ilfov | 0799584104 | Sos. Bucuresti Nord, Voluntari |
| 681. | BOA, Beat of Angels Club - Bucuresti | 0736300700 | Soseaua Pavel D. Kiseleff , N.32, Sector 1, Bucuresti |
| 682. | Galletto Ristorante, Restaurant italian, catering - Bucuresti | 0212112276; 0770407519 | Soseaua Orhideelor, Nr.1 (podul nou Basarab,langa cladirile de birouri The Bridge, Sector 6, Bucuresti |
| 683. | Nadasan - Restaurant de sushi, Bucuresti | 0745042042 | Strada Virgil Madgearu, Nr. 27, sector 1 |
| 684. | 14th Lane - Restaurant cu mancaruri fine, organizare evenimente, Bucuresti | 0737776777 | Sos. Orhideelor, Nr. 15D, sector 6, Bucuresti |
| 685. | Beraria H, Restaurant - Bucuresti | 0743345345; 0725345345 | Soseaua Pavel D. Kiseleff, Nr.32, (Parc Herastrau, fostul Pavilion H), Sector 1, Bucuresti |
| 686. | Botanic - Fine dining, Bucuresti | 0721261262 | Calea Piscului, sector 4 |
| 687. | Meadows - Restaurant & Events Bucuresti | 0732302303 | Kiseleff, Nr. 32, sector 1, in parcul Herastrau |
| vezi mai multe | |||
| 1. | BUCUR OBOR | 021.252.59.34; 021.252.59.35; 021.252.63.82 | Sos.Colentina, nr. 2, sector 2 , Bucuresti |
| 2. | DENISA MARKET | Tel. 021.211.71.70; 0722.691.595; 0749.263.036; Fax 021.211.71.70 | Str. Rasuri nr. 1, sector 2 |
| 3. | CARREFOUR | Tel. 0374.145.800; Fax 021.307.66.96 | Bd. Corneliu Coposu nr. 2, sector 3, |
| 4. | CONCORD 2002 | Tel/Fax 323.90.87 | Bd. Decebal nr. 7, sector 3 |
| 5. | FOR YOU | Tel. 0745.094.433 | Bd. Decebal nr. 24, sector 3 |
| 6. | MEGA MALL | Str. Pierre de Coubertin, nr. 3-5, langa Arena Nationala, | |
| 7. | Wini Imobili | Tel.021.307.60.50; 0742.144.034, 0755.068.669; Fax.021.307.60.51 | Pierre de Coubertin, nr. 3-5, sector 2, Bucuresti |
| 8. | Cocor Luxury Store | 021.312.43.10; Fax: 021.313.98.48 | Bd. I.C. Bratianu, nr. 29-33, sector 3, |
| 9. | SONMEZ MARKT 4 | Tel. 211.65.39; Fax 210.13.25 | Bd. Iancu de Hunedoara nr. 64, sector 1 |
| 10. | COCOR | Tel. 021.313.14.03; 021.313.92.39; 021.314.96.64; 021.314.96.65; Fax 021.313.98.48 | Bd. I.C. Bratianu nr. 29-33, sector 3, |
| 11. | GALERIA MARIO PLAZA | Tel/Fax. 021.230.47.71 | Calea Dorobantilor, nr. 172, sector 1, Bucuresti |
| 12. | SUPERMARKET LA NEA NICU | Tel. 230.64.80 | Str. Putul lui Zamfir nr. 59, sector 1 |
| 13. | PRESTIGE SHOPPING CENTER | Tel. 230.16.12; 230.17.13; Fax 230.67.53 | Calea Floreasca nr. 111-113, sector 1 |
| 14. | GEMINI | Tel/Fax 230.25.49 | Calea Floreasca nr. 111-113 (Complex Prestige), sector 1 |
| 15. | FONZI SUPERMARKET | Tel. 0729.005.260; Tel/Fax 021.323.67.52 | Str. Nerva Traian, nr. 17-19, sector 3, |
| 16. | KAUFLAND | Tel. 0372.091.001 | Sos. Colentina nr. 6, sector 2, |
| 17. | GMARKET | Bucuresti | |
| 18. | Penny Market XXL | 0800.110.111 | Sos.Fundeni, nr. 38-40, sector 2, Bucuresti |
| 19. | BUCURESTI MALL | Tel. 021.327.67.00; 021.327.61.00; 021.327.61.02; Fax 021.320.92.09 | Calea Vitan nr. 55-59, sector 3, |
| 20. | SUPERMARKET MAICOM | Tel. 0722.322.573; Fax 321.78.36 | Str. Vitan nr. 104, sector 3 |
| 21. | Mobexpert, Bucuresti - Mobilier si decoratiuni exterioare | 0316305333 (Comenzi online); 0212421040 | Sos. Fabrica de Glucoza, Nr. 21, Sector 2, Bucuresti |
| 22. | FONZI | Tel. 260.21.28; 0729.005.261; Fax 260.15.31 | Sos. Nicolae Titulescu nr. 121 (Fonzi Junior), sector 1 |
| 23. | TITAN | Tel. 0732.995.515 | Str. Liviu Rebreanu nr. 6A, sector 3, |
| 24. | Ava Center | 0769240700; 0213201626; 0730096166 | Mihai Bravu, Nr. 540-564, Sector 3, Bucuresti |
| 25. | AUCHAN | Tel. 021.408.01.07; 021.408.01.08 | Bd. 1 Decembrie 1918 nr. 33A, sector 3, |
| 26. | Penny Market | 0800.110.111 | Bd.1 Decembrie 1918, nr. 33, sector 3, |
| 27. | AUCHAN | Tel. 0750.014.150 | Calea Vitan nr. 236, sector 3, |
| 28. | CORA | Tel. 021.205.35.00 | Sos. Vergului, nr. 20, sector 2, |
| 29. | NICK CENTER | Tel. 410.06.14; Fax 410.18.94 | Calea 13 Septembrie nr. 190, sector 5 |
| 30. | THE GRAND AVENUE AT BUCHAREST MARRIOTT GRAND HOTEL | Tel.021. 403.40.98 | Calea 13 Septembrie nr. 90, sector 5 , |
| 31. | LIBERTY CENTER | 0213699871; 0213699835 | Sos. Progresului, nr. 151-171, sector 5, Bucuresti |
| vezi mai multe | |||


Vezi galeria
10
143
,335330634N108
,46
,409
,411
,412
,413
,417