Ion Mihalache, Ciuperca, Expozitiei, spatiu birouri
- Suprafata utila 242 mp
- Birouri
1 Mai ...
9 min.
Calculeaza distanta
Descriere anunt
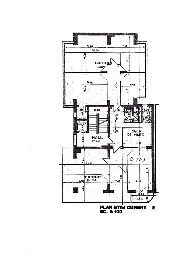
Top Home Advisors va propune spre inchiriere un spatiu de birouri situat la etajul 2 in imobilul S+P+4E, situat in Szona Ion Mihalache- Ciuperca- Expozitiei
Pot fi inchiriati intre 114-242mp, compartimentati cu 8 birouri, kitchineta, 2 bai si sala de luat masa, precum si 30mp de garaj care poate fi folosit si ca loc de depozitare. Poate fi inchiriat tot etajul in folosinta exclusiva sau la 2 chiriasi, respectiv 114mp si 128mp util brut, zonele de kitchineta, bai si luat masa fiind folosinta comuna.
Cladirea se afla intr-un cartier linistit, cu acces facil la mijloacele de transport in comun, dar si la DN1 Bucuresti-Ploiesti si la Aeroportul Otopeni. Imobilul dispune de finisaje cu materiale moderne (placare cu granit, suprafete vitrate), centrala termica proprie, aparate de aer conditionat, sistem de control acces, precum si cu circuite de senzori de fum si gaz in spatiile tehnice si garaje.
Chiria propusa pentru acest spatiu este de 10-12 Euro/mp pe luna, in functie de suprafata inchiriata (fara TVA, imobilul fiind proprietate persoana fizica) pentru spatiul de birouri si 200 Euro/luna pentru garaj.
Administrarea imobilului este asigurata de catre o societate specializata cu care se va incheia contract separat. Curentul electric si gazele se achita separat, in functie de consum si cota parte indiviza.
Avans: 2 chirii (chirie prima luna + o luna garantie).
Pentru mai multe detalii si pentru a stabili o vizionare va asteptam sa ne contactati telefonic.
Vizionarea se face doar in baza semnarii unui acord de vizionare conform codului civil, art 2.096-2.102. Va multumim pentru intelegere.
Caracteristici, dotari
Acces mijloace transport
| Statii metrou | Timp | |
|---|---|---|
![]() |
1 Mai | 9 min. |
![]() |
Grivița | 14 min. |
| Statii STB | Timp |
|---|---|
|
Aviator Popișteanu
|
4 min. |
|
R.A.R
65
86
,97
,105
|
6 min. |
|
Lainici
65
86
,97
,105
|
7 min. |
|
Clăbucet
65
86
,97
,105
,300
,422
,780
|
7 min. |
|
Bd. Expoziției
105
|
8 min. |
|
Bd. Ion Mihalache
|
8 min. |
|
Feroviarilor
65
86
,97105
|
8 min. |
|
Sandu Aldea
|
9 min. |
|
1 Mai
|
9 min. |
|
Grivița
|
10 min. |


Vezi galeria
65
86
,97
,105
