Anuntul accesat este inactiv. Iti sugeram anunturi cu caracteristici asemanatoare.
Anunturi active sugerate
190.000 €
Suprafata 3.000 mp
Intravilan
Deschidere 50 ml
Ilfov, azi; 11:24
205.000 €
Suprafata 690 mp
Intravilan
Deschidere 20 ml
Constanta, 14 Decembrie '25
180.000 €
Suprafata 213 mp
Intravilan
Deschidere 7 ml
Bucuresti, 23 Decembrie '25
Anunt inactiv
Obor-Mosilor, Str Episcop Radu, nr 51, Bucuresti
195.000 €
Obor-Mosilor, Str Episcop Radu, nr 51, Bucuresti,
195.000 €
Caracteristici
Suprafata 400 mp
Intravilan
Deschidere 8 ml
Detalii suplimentare: Acces drum asfaltat Alimentare apa Autorizatie constructie Cadastru Canalizare Certificat urbanism constructie teren Curent electric Cut Gaze Ingradit Intabulare Liber Parcelabil Stradal M 8 min.
Detalii suplimentare: Acces drum asfaltat Alimentare apa Autorizatie constructie Cadastru Canalizare Certificat urbanism constructie teren Curent electric Cut Gaze Ingradit Intabulare Liber Parcelabil Stradal M 8 min.
Descriere
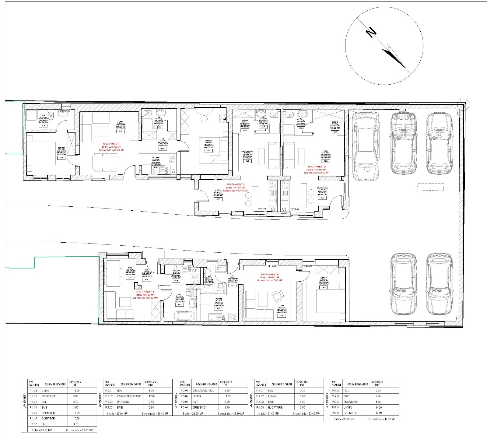
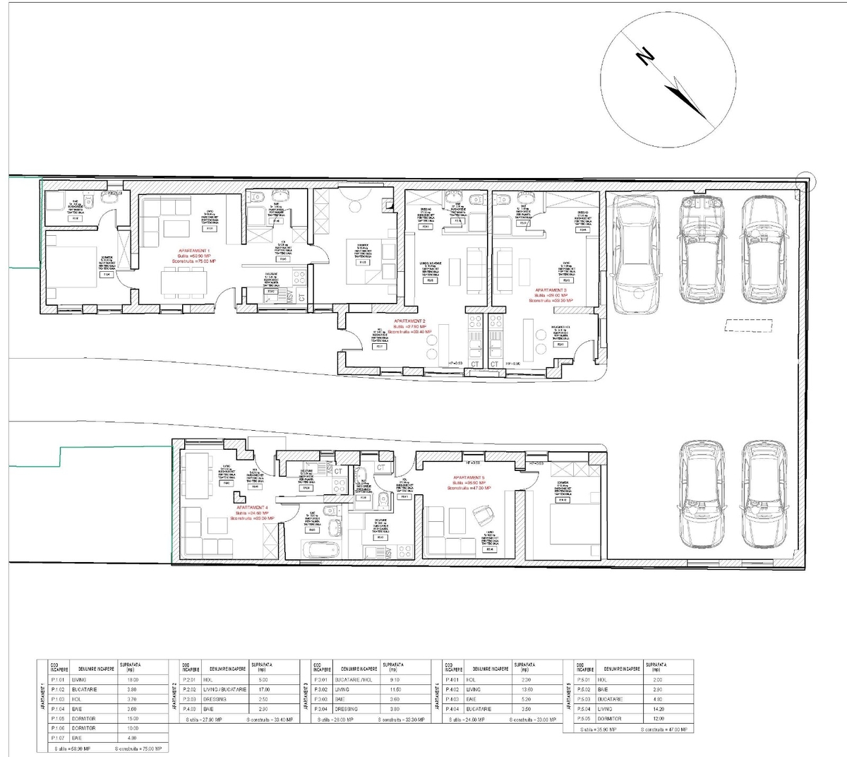
Vand autorizatie de constructie pentru consolidare si reamenajare a 5 imobile
Vand autorizatie de constructie pentru consolidare si reamenajare a 5 imobile existente, cu locuri de parcare incluse pentru fiecare imobil, in suprafata totala de circa 400mp, cu drept de servitute stradal de 76mp, situat in Bucuresti, zona Obor-Mosilor, Strada Episcop Radu, nr. 51, sector 2.
Posed CU pentru consolidare si reamenajare, urmand ca in scurt timp sa elibereze Primaria sector 2 si autorizatia de constructie, in urma tuturor actelor depuse si avizelor solicitate si aprobate!
Pretul de vanzare este de 195.000 euro, fara TVA.
Propietar-contact:
0723.132.112
Vand autorizatie de constructie pentru consolidare si reamenajare a 5 imobile existente, cu locuri de parcare incluse pentru fiecare imobil, in suprafata totala de circa 400mp, cu drept de servitute stradal de 76mp, situat in Bucuresti, zona Obor-Mosilor, Strada Episcop Radu, nr. 51, sector 2.
Posed CU pentru consolidare si reamenajare, urmand ca in scurt timp sa elibereze Primaria sector 2 si autorizatia de constructie, in urma tuturor actelor depuse si avizelor solicitate si aprobate!
Pretul de vanzare este de 195.000 euro, fara TVA.
Propietar-contact:
0723.132.112
230 vizualizari
Bucuresti, Sector 2
Actualizat
Actualizat
Statii metrou
| Obor | 8 min | |
| Metrou Piața Iancului - Ascensor | 19 min | |
| Ștefan cel Mare | 22 min |
Statii STB
| 66 | Făinari | 3 min |
| 66 | Mihai Eminescu | 5 min |
| Toamnei | 7 min | |
| 79 , 86 133 , 135 | Calea Moșilor | 7 min |
| Obor | 7 min | |
| 1 , 335330634N108 , 46 | Bucur Obor | 8 min |
| Șoseaua Ștefan cel Mare | 9 min |
Anunt inactiv
