Snagov lac
999.000 €
Snagov lac
999.000 €
Caracteristici
Suprafata utila 243 mp
Teren 1.520 mp
An 1991
6 camere
La cheie
Optiuni interior: 2+ gr. sanitare Aer conditionat Alimentare apa Beci/pivnita Camera serviciu Centrala termica Gaze Living Terasa
Optiuni exterior: Curte amenajata Curte pavata Garaj Gradina Piscina
Optiuni interior: 2+ gr. sanitare Aer conditionat Alimentare apa Beci/pivnita Camera serviciu Centrala termica Gaze Living Terasa
Optiuni exterior: Curte amenajata Curte pavata Garaj Gradina Piscina
Descriere
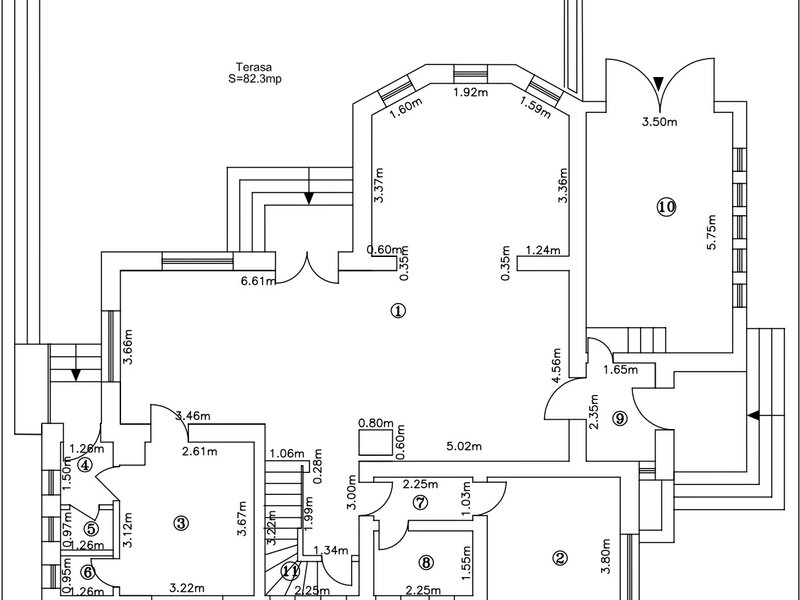
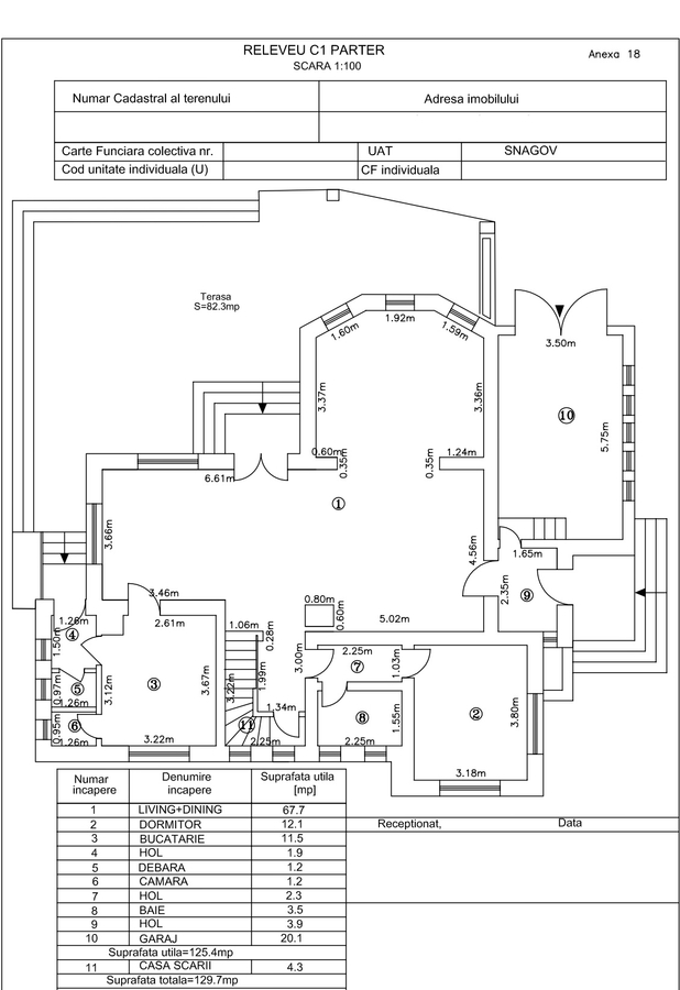
Vanzare vila individuala, cu piscina exterioara ( 96 mp ), deosebita, situata in Snagov, amplasata intr-un cadru de poveste pe malul lacului Snagov, cu ponton propriu.
Vila are un regim de inaltime S+P+1E, a fost construita in anul 1991, pe un teren de 1520 mp, cu o suprafata utila de 243 mp ( 281 mp utili totali ), amprenta la sol- 170 mp, ideala pentru o familie ce isi doreste un camin primitor, aer curat si o priveliste de poveste.
Vila este strcturata astfel:
Subsol: camera tehnica, sauna, hol
Parter: living+ dining de 68 mp, 1 dormitor, bucatarie, debarale, 3 holuri, 1 baie, garaj 20 mp,
Etaj: 3 domitoare, 2 bai, debara, 1 balcon, 1 terasa.
Beneficiaza de o gradina amenajata si de o piscina exterioara, avand priveslistea minunata catre lacul Snagov.
Pret de vanzare- 999.000 Euro
Vila are un regim de inaltime S+P+1E, a fost construita in anul 1991, pe un teren de 1520 mp, cu o suprafata utila de 243 mp ( 281 mp utili totali ), amprenta la sol- 170 mp, ideala pentru o familie ce isi doreste un camin primitor, aer curat si o priveliste de poveste.
Vila este strcturata astfel:
Subsol: camera tehnica, sauna, hol
Parter: living+ dining de 68 mp, 1 dormitor, bucatarie, debarale, 3 holuri, 1 baie, garaj 20 mp,
Etaj: 3 domitoare, 2 bai, debara, 1 balcon, 1 terasa.
Beneficiaza de o gradina amenajata si de o piscina exterioara, avand priveslistea minunata catre lacul Snagov.
Pret de vanzare- 999.000 Euro
4.129 vizualizari
Ilfov, Snagov, Publicat 17 Februarie '26
Actualizat 17 Februarie '26
Actualizat 17 Februarie '26
