Anuntul accesat este inactiv. Iti sugeram anunturi cu caracteristici asemanatoare.
Anunturi active sugerate
Suprafata utila 97 mp
Teren 118 mp
An 2018
5 camere
La cheie
Ilfov, 17 Decembrie '25
Suprafata utila 130 mp
An 2000
5 camere
La cheie
Prahova, 17 Decembrie '25
Suprafata utila 138 mp
Teren 33 mp
An 2022
5 camere
La cheie
Ilfov, 25 August '25
190.000 €
Suprafata utila 145 mp
Teren 300 mp
An 2025
4 camere
La cheie
Ilfov, 19 Decembrie '25
Anunt inactiv
Popesti-Leordeni, Sabarului, casa individuala
205.000 €
Popesti-Leordeni, Sabarului, casa individuala
205.000 €
Caracteristici
Suprafata utila 147 mp
Teren 100 mp
An 2021
6 camere
La cheie
Descriere
Va propun spre achizitie o casa individuala, curte libera 100 mp si 2 locuri de parcare. Casa este construita pe cadre de beton si compartimentare de Ytong.
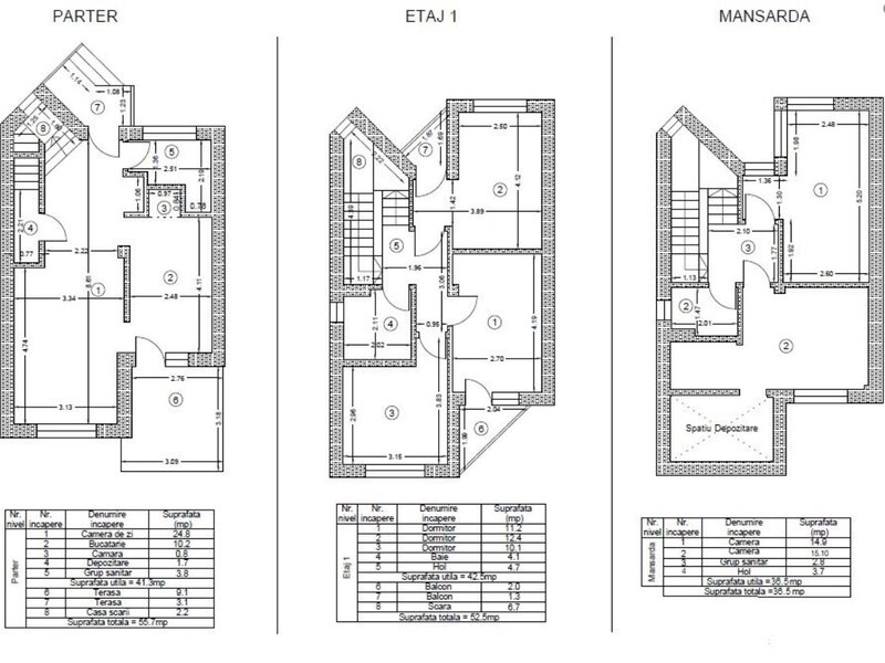
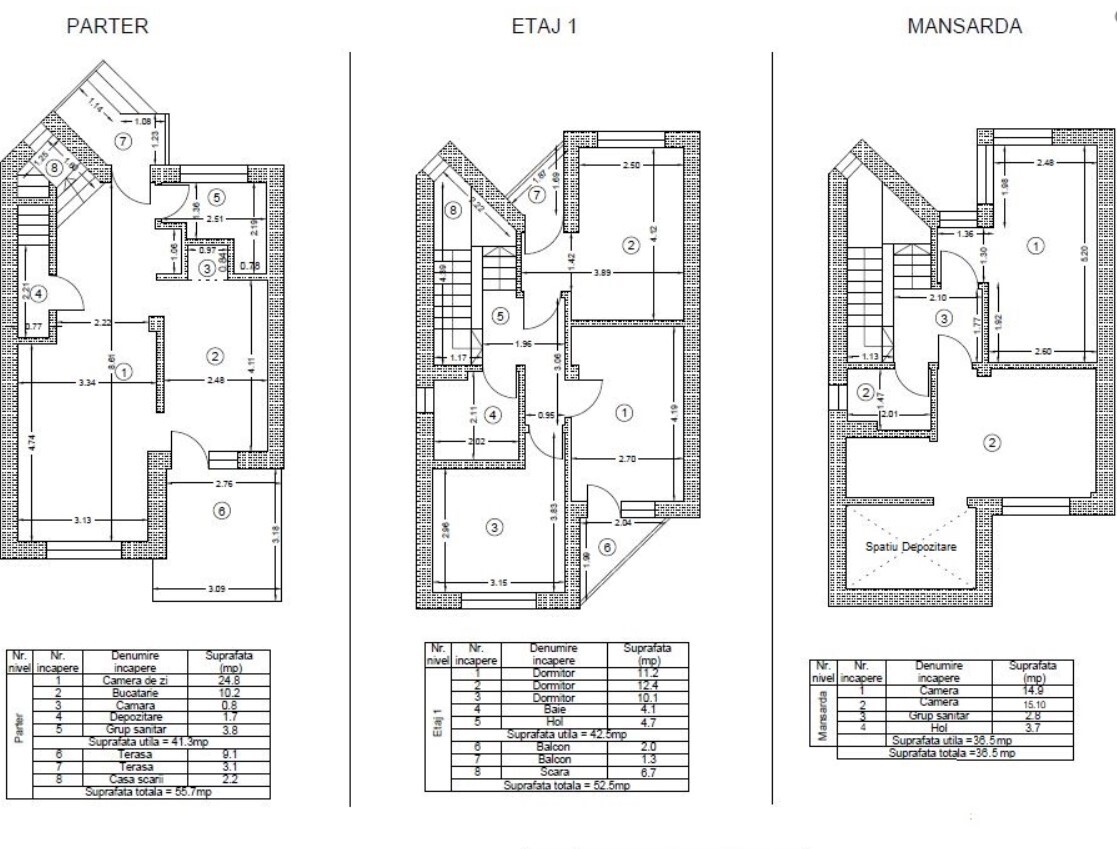
Compartimentare vila:
Parter: Hol, grup sanitar, bucatarie, camara, camera de zi, spatiu depozitare, terasa, scara.
Etajul 1: Hol, trei dormitoare, baie, scara, balcoane.
Mansarda: Doua camere, grup sanitar, scara, camera depozitare.
Toate baile au geam.
Poze reale din casa de prezentare - showroom.
Pretul afisat este cu TVA inclus.
Finisajele le veti alege dumneavoastra.
Acte gata, mutare imediat.
Aveti posibilitatea de a achita 100.000 Euro la antecontract, restul in rate pe 2 ani.
Pentru detalii si vizionari - Iulian 0723.535.968
Reper: Popesti-Leordeni
Serviciul nou oferit de PREMIER Imobiliare! Solicita acum vizionare online pentru aceasta proprietate!
Compartimentare vila:
Parter: Hol, grup sanitar, bucatarie, camara, camera de zi, spatiu depozitare, terasa, scara.
Etajul 1: Hol, trei dormitoare, baie, scara, balcoane.
Mansarda: Doua camere, grup sanitar, scara, camera depozitare.
Toate baile au geam.
Poze reale din casa de prezentare - showroom.
Pretul afisat este cu TVA inclus.
Finisajele le veti alege dumneavoastra.
Acte gata, mutare imediat.
Aveti posibilitatea de a achita 100.000 Euro la antecontract, restul in rate pe 2 ani.
Pentru detalii si vizionari - Iulian 0723.535.968
Reper: Popesti-Leordeni
Serviciul nou oferit de PREMIER Imobiliare! Solicita acum vizionare online pentru aceasta proprietate!
79 vizualizari
Ilfov, Popesti - Leordeni
Actualizat
Actualizat
Anunt inactiv
